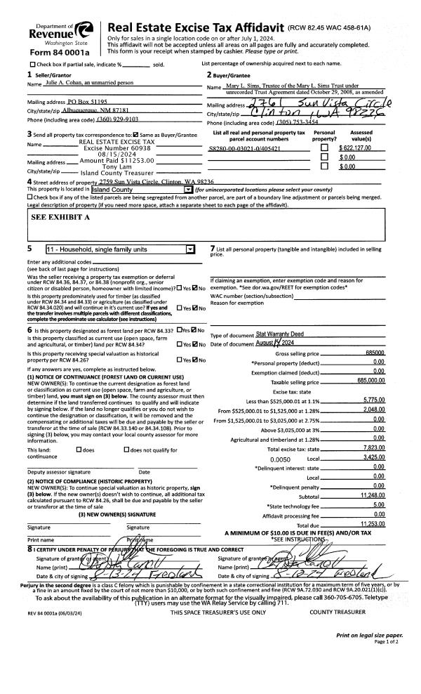
Property
Account |
| Property ID: | 189496 | Abbreviated Legal Description: | BEEKSMA 1ST LOT 3 |
| Geographic ID: | S6110-00-00003-0 | Agent Code: | |
| Type: | Real | | |
| Tax Area: | 100 - APPRAISER-OH Schl Dist, in OH | Land Use Code | 11 |
| Open Space: | N | DFL | N |
| Historic Property: | N | Remodel Property: | N |
| Multi-Family Redevelopment: | N | | |
| Township: | | Section: | |
| Range: | |
Location |
| Address: | 1536 SE 8TH AVE OAK HARBOR, WA 98277 | Mapsco: | |
| Neighborhood: | Cycle 1 | Map ID: | 89 |
| Neighborhood CD: | 1 |
Owner |
| Name: | FIELDS, STEVEN L | Owner ID: | 74749 |
| Mailing Address: | REBECCA L FIELDS 1536 SE 8TH AVE OAK HARBOR, WA 98277 | % Ownership: | 100.0000000000% |
| | | Exemptions: | |
Taxes and Assessment Details
Values
| (+) Improvement Homesite Value: | + | $0 | |
| (+) Improvement Non-Homesite Value: | + | $421,370 | |
| (+) Land Homesite Value: | + | $0 | |
| (+) Land Non-Homesite Value: | + | $185,000 | |
| (+) Curr Use (HS): | + | $0 | $0 |
| (+) Curr Use (NHS): | + | $0 | $0 |
| | | -------------------------- | |
| (=) Market Value: | = | $606,370 | |
| (–) Productivity Loss: | – | $0 | |
| | | -------------------------- | |
| (=) Subtotal: | = | $606,370 | |
| (+) Senior Appraised Value: | + | $0 | |
| (+) Non-Senior Appraised Value: | + | $606,370 | |
| | | -------------------------- | |
| (=) Total Appraised Value: | = | $606,370 | |
| (–) Senior Exemption Loss: | – | $0 | |
| (–) Exemption Loss: | – | $0 | |
| | | -------------------------- | |
| (=) Taxable Value: | = | $606,370 | |
Taxing Jurisdiction
| Owner: | FIELDS, STEVEN L | | |
| % Ownership: | 100.0000000000% | | |
| Total Value: | $606,370 | | |
| Tax Area: | 100 - APPRAISER-OH Schl Dist, in OH |
| CF | Conservation Futures | 0.0316035091 | $606,370 | $606,370 | $19.16 | | |
| CEM1 | Cemetery #1 | 0.0040320932 | $606,370 | $606,370 | $2.44 | | |
| COH | City of Oak Harbor | 2.3001546061 | $606,370 | $606,370 | $1,394.74 | | |
| OAKBOND | City of Oak Harbor BOND | 0.1926904192 | $606,370 | $606,370 | $116.84 | | |
| HOBOND | Hospital BOND | 0.1910887512 | $606,370 | $606,370 | $115.87 | | |
| HOGEN | Hospital GEN | 0.3902502903 | $606,370 | $606,370 | $236.64 | | |
| CE | County Current Expense | 0.3708482477 | $606,370 | $606,370 | $224.87 | | |
| ISLANDEMS | Hospital GEN (EMS) | 0.5000000000 | $606,370 | $606,370 | $303.19 | | |
| LIB | Library Sno-Isle GEN | 0.3153421757 | $606,370 | $606,370 | $191.21 | | |
| NWHIDPRMT | P & R N Whidbey GEN | 0.2004466701 | $606,370 | $606,370 | $121.54 | | |
| SCH201MO | School 201 Enrichment | 1.8559231640 | $606,370 | $606,370 | $1,125.38 | | |
| ST | State School | 1.3035497053 | $606,370 | $606,370 | $790.43 | | |
| ST2 | State School Part 2 | 0.8169543533 | $606,370 | $606,370 | $495.38 | | |
| | Total Tax Rate: | 8.4728839852 | | | | | |
| | | | | Taxes w/Current Exemptions: | $5,137.69 | | |
| | | | | Taxes w/o Exemptions: | $5,137.69 | | |
Improvement / Building
| Improvement #1: | RESIDENTIAL | State Code: | Y | 1711.0 sqft | Value: | $302,223 |
| Bathrooms: | 2 | Bedrooms: | 2 | | Ceiling: | DRYWALL PAINTED | Exterior Wall/Cover: | FACE BRICK VENEER | | Floor Covering: | HARDWOOD/CARP 80-20 | Floor Structure: | WOOD W/SUBFLOOR | | Foundation: | CONCRETE BLOCKS | Heating: | FHA GAS | | Interior Finish: | DRYWALL PAINT | Plumbing Fixture Cnt: | 9 | | Roof Slope: | 3" IN 12" | Roof Structure/Cover: | CJ CONCRETE TILE |
|
| | Type | Description | Class CD | Sub Class CD | Year Built | Area |
| | BAS | BASE/MAIN FLOOR | 3 | 0 | 1960 | 1711.0 |
| | OP3 | OPEN PORCH W/ROOF | 3 | 0 | 1960 | 264.0 |
| | OP4 | OPEN PORCH W/CEILING-ROOF | 3 | 0 | 1960 | 57.0 |
| | UTY | STORAGE/UTILITY | 3 | 0 | 1960 | 192.0 |
| | UTY | STORAGE/UTILITY | 3 | 0 | 1960 | 192.0 |
| Improvement #2: | RESIDENTIAL | State Code: | Y | 637.0 sqft | Value: | $119,147 |
| Bathrooms: | 1 | Bedrooms: | 1 | | Ceiling: | DRYWALL PAINTED | Exterior Wall/Cover: | VINYL | | Floor Covering: | VINYL TILE | Floor Structure: | SLAB ON GRADE | | Foundation: | SLAB | Heating: | WALL HEAT ELECTRIC | | Interior Finish: | DRYWALL PAINT | Plumbing Fixture Cnt: | 6 | | Roof Slope: | 3" IN 12" | Roof Structure/Cover: | CJ ASPHALT |
|
| | Type | Description | Class CD | Sub Class CD | Year Built | Area |
| | BAS | BASE/MAIN FLOOR | 3 | 0 | 1985 | 637.0 |
| | AGR | ATTACHED GARAGE | 3 | 0 | 1985 | 429.0 |
Sketch
Property Image
Land
| 1 | 15 | SQ (12001-21780) | 0.3200 | 13939.20 | 0.00 | 0.00 | 1.00 | $185,000 | $0 |
Roll Value History
| 2026 | N/A | N/A | N/A | N/A | N/A |
| 2025 | $421,370 | $185,000 | $0 | $606,370 | $606,370 |
| 2024 | $427,123 | $175,000 | $0 | $602,123 | $602,123 |
| 2023 | $379,584 | $180,000 | $0 | $559,584 | $559,584 |
| 2022 | $348,579 | $180,000 | $0 | $528,579 | $528,579 |
| 2021 | $307,337 | $125,000 | $0 | $432,337 | $432,337 |
| 2020 | $299,911 | $100,000 | $0 | $399,911 | $399,911 |
| 2019 | $218,174 | $140,000 | $0 | $358,174 | $358,174 |
| 2018 | $218,904 | $125,000 | $0 | $343,904 | $343,904 |
| 2017 | $192,338 | $110,000 | $0 | $302,338 | $302,338 |
| 2016 | $195,370 | $90,000 | $0 | $285,370 | $285,370 |
| 2015 | $198,404 | $70,000 | $0 | $268,404 | $268,404 |
| 2014 | $201,438 | $55,000 | $0 | $256,438 | $256,438 |
| 2013 | $204,473 | $55,000 | $0 | $259,473 | $259,473 |
| 2012 | $207,506 | $60,000 | $0 | $267,506 | $267,506 |
| 2011 | $207,778 | $85,000 | $0 | $292,778 | $292,778 |
| 2010 | $221,164 | $85,000 | $0 | $306,164 | $306,164 |
| 2009 | $230,104 | $90,000 | $0 | $320,104 | $320,104 |
| 2008 | $176,113 | $181,500 | $0 | $357,613 | $357,613 |
| 2007 | $178,740 | $150,000 | $0 | $328,740 | $328,740 |
Deed and Sales History
| 1 | 09/09/2005 | WD | Warranty Deed | PHILLIPS, REBECCA L | FIELDS, STEVEN L | | | $297,700.00 | 54584 | 4147485 |
| 2 | 04/09/1999 | WD | Warranty Deed | BRAINARD, HUBERT E | PHILLIPS, REBECCA L | | | $150,000.00 | 91452 | 99009483 |
| 3 | 04/01/1987 | WD | Warranty Deed | HADDON, JAMES C | BRAINARD, HUBERT E | | | $82,500.00 | 71127 | 87005639 |
| 4 | 01/01/1900 | OTHER | Other - Misc. Documents | Unknown | HADDON, JAMES C | | | $0.00 | 0 | 0 |
Payout Agreement
| No payout information available.. |