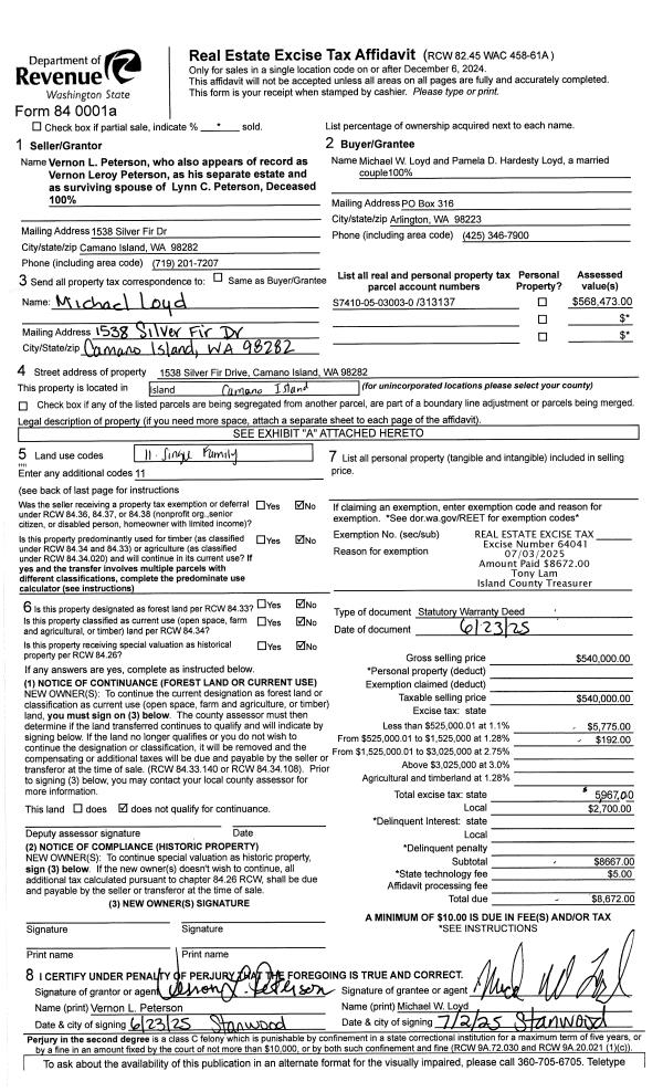
Property
Account |
| Property ID: | 1900 | Abbreviated Legal Description: | 19 - IN NE NE: BG NWCR NE NE S1*W662.07' TPB S88*E780 .70' S16*E40.88' S16*W149 .33' S25*W114.39' N88*W706 .17' N1*E286.82' TPB TGW EZ (TR 24 PHEASANT FARM ACRES) |
| Geographic ID: | R13101-446-4280 | Agent Code: | |
| Type: | Real | | |
| Tax Area: | 312 - APPRAISER-Cpvl Schl Dist, outside Cpvl, improved, greater than 1 acre | Land Use Code | 11 |
| Open Space: | N | DFL | N |
| Historic Property: | N | Remodel Property: | N |
| Multi-Family Redevelopment: | N | | |
| Township: | 31 | Section: | 01 |
| Range: | R1 |
Location |
| Address: | 98 W MORRIS RD COUPEVILLE, WA 98239 | Mapsco: | |
| Neighborhood: | Cycle 2 | Map ID: | 20 |
| Neighborhood CD: | 2 |
Owner |
| Name: | MORGENSTERN, DUWAYNE | Owner ID: | 81513 |
| Mailing Address: | LUANNE MORGENSTERN 98 W MORRIS RD COUPEVILLE, WA 98239-9574 | % Ownership: | 100.0000000000% |
| | | Exemptions: | |
Taxes and Assessment Details
Values
| (+) Improvement Homesite Value: | + | $0 | |
| (+) Improvement Non-Homesite Value: | + | $236,479 | |
| (+) Land Homesite Value: | + | $0 | |
| (+) Land Non-Homesite Value: | + | $340,000 | |
| (+) Curr Use (HS): | + | $0 | $0 |
| (+) Curr Use (NHS): | + | $0 | $0 |
| | | -------------------------- | |
| (=) Market Value: | = | $576,479 | |
| (–) Productivity Loss: | – | $0 | |
| | | -------------------------- | |
| (=) Subtotal: | = | $576,479 | |
| (+) Senior Appraised Value: | + | $0 | |
| (+) Non-Senior Appraised Value: | + | $576,479 | |
| | | -------------------------- | |
| (=) Total Appraised Value: | = | $576,479 | |
| (–) Senior Exemption Loss: | – | $0 | |
| (–) Exemption Loss: | – | $0 | |
| | | -------------------------- | |
| (=) Taxable Value: | = | $576,479 | |
Taxing Jurisdiction
| Owner: | MORGENSTERN, DUWAYNE | | |
| % Ownership: | 100.0000000000% | | |
| Total Value: | $576,479 | | |
| Tax Area: | 312 - APPRAISER-Cpvl Schl Dist, outside Cpvl, improved, greater than 1 acre |
| CF | Conservation Futures | 0.0316035091 | $576,479 | $576,479 | $18.22 | | |
| CEM2 | Cemetery #2 | 0.0095056933 | $576,479 | $576,479 | $5.48 | | |
| FIRE5 | Fire & Rescue Dist #5 C Whidbey GEN | 1.2008080668 | $576,479 | $576,479 | $692.24 | | |
| FIRE5BOND | Fire & Rescue Dist #5 C Whidbey BOND | 0.1400090713 | $576,479 | $576,479 | $80.71 | | |
| HOBOND | Hospital BOND | 0.1910887512 | $576,479 | $576,479 | $110.16 | | |
| HOGEN | Hospital GEN | 0.3902502903 | $576,479 | $576,479 | $224.97 | | |
| CE | County Current Expense | 0.3708482477 | $576,479 | $576,479 | $213.79 | | |
| CR | County Roads | 0.4584763726 | $576,479 | $576,479 | $264.30 | | |
| ISLANDEMS | Hospital GEN (EMS) | 0.5000000000 | $576,479 | $576,479 | $288.24 | | |
| LIB | Library Sno-Isle GEN | 0.3153421757 | $576,479 | $576,479 | $181.79 | | |
| LIBCAP | Library Sno-Isle BOND (Cap Fac Imp Area) | 0.0543427938 | $576,479 | $576,479 | $31.33 | | |
| POCOUP | Port of Coupeville GEN | 0.1093371703 | $576,479 | $576,479 | $63.03 | | |
| POCOUPIDD | Port of Coupeville IDD | 0.3409740022 | $576,479 | $576,479 | $196.56 | | |
| COUPSDTECH | School 204 CP (TECH) | 0.7545480007 | $576,479 | $576,479 | $434.98 | | |
| SCH204MO | School 204 Enrichment | 0.6716186034 | $576,479 | $576,479 | $387.17 | | |
| ST | State School | 1.3035497053 | $576,479 | $576,479 | $751.47 | | |
| ST2 | State School Part 2 | 0.8169543533 | $576,479 | $576,479 | $470.96 | | |
| | Total Tax Rate: | 7.6592568070 | | | | | |
| | | | | Taxes w/Current Exemptions: | $4,415.40 | | |
| | | | | Taxes w/o Exemptions: | $4,415.40 | | |
Improvement / Building
| Improvement #1: | RESIDENTIAL | State Code: | Y | 1180.9 sqft | Value: | $236,479 |
| Bathrooms: | 1.5 | Bedrooms: | 2 | | Ceiling: | TONGUE & GROOVE | Exterior Wall/Cover: | PLY/HARDBOARD T-111 | | Floor Covering: | CARPET/VINYL 60-40 | Floor Structure: | WOOD W/SUBFLOOR | | Foundation: | CONCRETE | Heating: | BASEBOARD ELECTRIC | | Interior Finish: | DRYWALL PAINT | Plumbing Fixture Cnt: | 8 | | Roof Slope: | 12" IN 12" | Roof Structure/Cover: | BEAM ASPHALT |
|
| | Type | Description | Class CD | Sub Class CD | Year Built | Area |
| | BAS | BASE/MAIN FLOOR | 3 | 0 | 1978 | 1000.9 |
| | OWP | OPEN WOOD PORCH W/STEPS | 3 | 0 | 1978 | 42.0 |
| | OWR | OPEN WOOD PORCH W/STEPS/ROOF | 3 | 0 | 1978 | 450.0 |
| | ENP | ENCLOSED PORCH | 3 | 0 | 1978 | 199.8 |
| | UPH | HALF STORY | 3 | 0 | 1978 | 180.0 |
| | DGR | DETACHED GARAGE | 3 | 0 | 1978 | 888.0 |
| | CPD | OPEN CARPORT DIRT FLOOR | 3 | 0 | 1978 | 384.0 |
Sketch
Property Image
Land
| 1 | 91 | UNDEVELOPED LAND-METES AND BOUNDS | 4.0000 | 174240.00 | 0.00 | 0.00 | 1.00 | $120,000 | $0 |
| 2 | HS | HOMESITE | 1.0000 | 43560.00 | 0.00 | 0.00 | 1.00 | $220,000 | $0 |
Roll Value History
| 2026 | N/A | N/A | N/A | N/A | N/A |
| 2025 | $236,479 | $340,000 | $0 | $576,479 | $576,479 |
| 2024 | $237,632 | $300,000 | $0 | $537,632 | $537,632 |
| 2023 | $241,113 | $280,000 | $0 | $521,113 | $521,113 |
| 2022 | $221,488 | $260,000 | $0 | $481,488 | $481,488 |
| 2021 | $195,343 | $180,000 | $0 | $375,343 | $375,343 |
| 2020 | $190,607 | $160,000 | $0 | $350,607 | $350,607 |
| 2019 | $135,300 | $230,000 | $0 | $365,300 | $365,300 |
| 2018 | $126,178 | $200,000 | $0 | $326,178 | $326,178 |
| 2017 | $126,986 | $150,000 | $0 | $276,986 | $276,986 |
| 2016 | $128,603 | $150,000 | $0 | $278,603 | $278,603 |
| 2015 | $130,219 | $121,500 | $0 | $251,719 | $251,719 |
| 2014 | $131,838 | $121,500 | $0 | $253,338 | $253,338 |
| 2013 | $133,455 | $121,500 | $0 | $254,955 | $254,955 |
| 2012 | $134,697 | $121,500 | $0 | $256,197 | $256,197 |
| 2011 | $136,316 | $135,000 | $0 | $271,316 | $271,316 |
| 2010 | $144,535 | $135,000 | $0 | $279,535 | $279,535 |
| 2009 | $143,624 | $150,000 | $0 | $293,624 | $293,624 |
| 2008 | $145,850 | $147,500 | $0 | $293,350 | $293,350 |
| 2007 | $146,720 | $147,500 | $0 | $294,220 | $294,220 |
Deed and Sales History
| 1 | 08/21/2002 | WD | Warranty Deed | JOHNSON, CHARLES T | MORGENSTERN, DUWAYNE | | | $176,000.00 | 23510 | 4030204 |
| 2 | 09/01/1995 | WD | Warranty Deed | ABBOTT, DAVID W | JOHNSON, CHARLES T | | | $124,000.00 | 53584 | 95016446 |
| 3 | 03/01/1989 | WD | Warranty Deed | POOLE, CAROL C | ABBOTT, DAVID W | | | $79,300.00 | 91082 | 89003778 |
| 4 | 09/01/1978 | OTHER | Other - Misc. Documents | TORTORELLI, CAROL C | POOLE, CAROL C | | | $0.00 | 58698 | 0 |
| 5 | 06/01/1976 | EXECUTORD | Executor Deed | ROBERTS, STANFORD E | TORTORELLI, CAROL C | | | $0.00 | 62118 | 0 |
| 6 | 01/01/1900 | OTHER | Other - Misc. Documents | Unknown | ROBERTS, STANFORD E | | | $0.00 | 0 | 0 |
Payout Agreement
| No payout information available.. |