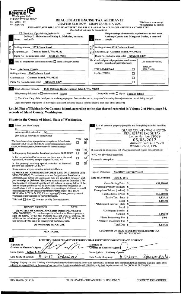
Property
Account |
| Property ID: | 190028 | Abbreviated Legal Description: | BELLS BCH LOT 2 |
| Geographic ID: | S6115-00-00002-0 | Agent Code: | |
| Type: | Real | | |
| Tax Area: | 730 - APPRAISER-S Whid Schl Dist, Special District, improved & less than 1 acre | Land Use Code | 11 |
| Open Space: | N | DFL | N |
| Historic Property: | N | Remodel Property: | N |
| Multi-Family Redevelopment: | N | | |
| Township: | | Section: | |
| Range: | |
Location |
| Address: | 3685 BELLS BEACH RD LANGLEY, WA 98260 | Mapsco: | |
| Neighborhood: | Cycle 4 | Map ID: | 880 |
| Neighborhood CD: | 4 |
Owner |
| Name: | COOK JTWROS, JEFFREY LAURENCE | Owner ID: | 281694 |
| Mailing Address: | WENDY LOU COOK JTWROS 3723 S SARATOGA RD LANGLEY, WA 98260 | % Ownership: | 100.0000000000% |
| | | Exemptions: | |
Taxes and Assessment Details
Values
| (+) Improvement Homesite Value: | + | $0 | |
| (+) Improvement Non-Homesite Value: | + | $228,602 | |
| (+) Land Homesite Value: | + | $0 | |
| (+) Land Non-Homesite Value: | + | $700,000 | |
| (+) Curr Use (HS): | + | $0 | $0 |
| (+) Curr Use (NHS): | + | $0 | $0 |
| | | -------------------------- | |
| (=) Market Value: | = | $928,602 | |
| (–) Productivity Loss: | – | $0 | |
| | | -------------------------- | |
| (=) Subtotal: | = | $928,602 | |
| (+) Senior Appraised Value: | + | $0 | |
| (+) Non-Senior Appraised Value: | + | $928,602 | |
| | | -------------------------- | |
| (=) Total Appraised Value: | = | $928,602 | |
| (–) Senior Exemption Loss: | – | $0 | |
| (–) Exemption Loss: | – | $0 | |
| | | -------------------------- | |
| (=) Taxable Value: | = | $928,602 | |
Taxing Jurisdiction
| Owner: | COOK JTWROS, JEFFREY LAURENCE | | |
| % Ownership: | 100.0000000000% | | |
| Total Value: | $928,602 | | |
| Tax Area: | 730 - APPRAISER-S Whid Schl Dist, Special District, improved & less than 1 acre |
| CF | Conservation Futures | 0.0316035091 | $928,602 | $928,602 | $29.35 | | |
| FIRE3 | Fire & Rescue Dist #3 S Whidbey GEN | 1.2004855531 | $928,602 | $928,602 | $1,114.77 | | |
| HOBOND | Hospital BOND | 0.1910887512 | $928,602 | $928,602 | $177.45 | | |
| HOGEN | Hospital GEN | 0.3902502903 | $928,602 | $928,602 | $362.39 | | |
| CE | County Current Expense | 0.3708482477 | $928,602 | $928,602 | $344.37 | | |
| CR | County Roads | 0.4584763726 | $928,602 | $928,602 | $425.74 | | |
| ISLANDEMS | Hospital GEN (EMS) | 0.5000000000 | $928,602 | $928,602 | $464.30 | | |
| LIB | Library Sno-Isle GEN | 0.3153421757 | $928,602 | $928,602 | $292.83 | | |
| PORTWHID | Port of S Whidbey GEN | 0.1094540357 | $928,602 | $928,602 | $101.64 | | |
| SCH206BOND | School 206 BOND | 0.3161759235 | $928,602 | $928,602 | $293.60 | | |
| SCH206MO | School 206 Enrichment | 0.4547169547 | $928,602 | $928,602 | $422.25 | | |
| ST | State School | 1.3035497053 | $928,602 | $928,602 | $1,210.48 | | |
| ST2 | State School Part 2 | 0.8169543533 | $928,602 | $928,602 | $758.63 | | |
| SWHIDPRBD | P & R S Whidbey BOND | 0.0152817568 | $928,602 | $928,602 | $14.19 | | |
| SWHIDPRBD2 | P & R S Whidbey BOND2 | 0.0138911264 | $928,602 | $928,602 | $12.90 | | |
| SWHIDPRMT | P & R S Whidbey GEN | 0.2053334452 | $928,602 | $928,602 | $190.67 | | |
| | Total Tax Rate: | 6.6934522006 | | | | | |
| | | | | Taxes w/Current Exemptions: | $6,215.56 | | |
| | | | | Taxes w/o Exemptions: | $6,215.56 | | |
Improvement / Building
| Improvement #1: | RESIDENTIAL | State Code: | Y | 1168.0 sqft | Value: | $228,602 |
| Bathrooms: | 2 | Bedrooms: | 3 | | Ceiling: | TONGUE & GROOVE | Exterior Wall/Cover: | LOG TO 10" | | Floor Covering: | CARPET/VINYL 80-20 | Floor Structure: | WOOD W/SUBFLOOR | | Foundation: | CONCRETE BLOCKS | Heating: | BASEBOARD ELECTRIC | | Interior Finish: | DRYWALL PAINT | Plumbing Fixture Cnt: | 10 | | Roof Slope: | 4" IN 12" | Roof Structure/Cover: | BEAM ASPHALT |
|
| | Type | Description | Class CD | Sub Class CD | Year Built | Area |
| | BAS | BASE/MAIN FLOOR | 3 | 0 | 1956 | 1168.0 |
| | OWP | OPEN WOOD PORCH W/STEPS | 3 | 0 | 1956 | 1020.0 |
| | UTY | STORAGE/UTILITY | 3 | 0 | 1956 | 154.0 |
| | OCP | OPEN CARPORT | 3 | 0 | 1956 | 528.0 |
Sketch
Property Image
Land
| 1 | LB | LOW BANK | 0.0000 | 0.00 | 39.00 | 0.00 | 1.00 | $700,000 | $0 |
Roll Value History
| 2026 | N/A | N/A | N/A | N/A | N/A |
| 2025 | $228,602 | $700,000 | $0 | $928,602 | $928,602 |
| 2024 | $217,354 | $700,000 | $0 | $917,354 | $917,354 |
| 2023 | $220,635 | $700,000 | $0 | $920,635 | $920,635 |
| 2022 | $202,763 | $700,000 | $0 | $902,763 | $902,763 |
| 2021 | $178,898 | $450,000 | $0 | $628,898 | $628,898 |
| 2020 | $133,005 | $450,000 | $0 | $583,005 | $583,005 |
| 2019 | $98,681 | $450,000 | $0 | $548,681 | $548,681 |
| 2018 | $99,084 | $450,000 | $0 | $549,084 | $549,084 |
| 2017 | $99,889 | $375,000 | $0 | $474,889 | $474,889 |
| 2016 | $101,501 | $375,000 | $0 | $476,501 | $476,501 |
| 2015 | $103,111 | $350,000 | $0 | $453,111 | $453,111 |
| 2014 | $71,921 | $350,000 | $0 | $421,921 | $421,921 |
| 2013 | $73,303 | $283,681 | $0 | $356,984 | $356,984 |
| 2012 | $74,685 | $283,681 | $0 | $358,366 | $358,366 |
| 2011 | $76,068 | $283,681 | $0 | $359,749 | $359,749 |
| 2010 | $92,817 | $283,681 | $0 | $376,498 | $376,498 |
| 2009 | $97,128 | $333,969 | $0 | $431,097 | $431,097 |
| 2008 | $92,910 | $313,338 | $0 | $406,248 | $406,248 |
| 2007 | $94,389 | $354,601 | $0 | $448,990 | $448,990 |
Deed and Sales History
| 1 | 08/31/2017 | QCD | Quit Claim Deed | COOK, JEFFREY LAURENCE | COOK JTWROS, JEFFREY LAURENCE | | | $0.00 | 30889 | 4429275 |
| 2 | 08/31/2017 | QCD | Quit Claim Deed | COOK, JEFFREY LAURENCE | COOK, JEFFREY LAURENCE | | | $240,000.00 | 30887 | 4429274 |
| 3 | 01/13/2015 | CCOMPROP | Create Community Property | COOK JR, HAROLD THOMAS | COOK, JEFFREY LAURENCE | | | $0.00 | 18293 | 4372119 |
| 4 | 05/26/2006 | QCD | Quit Claim Deed | JOHNSTON, JENNIFER M | COOK JR, HAROLD THOMAS | | | $100,000.00 | 62421 | 4172092 |
| 5 | 12/01/1996 | WD | Warranty Deed | MILLER, BONNIE B | JOHNSTON, JENNIFER M | | | $0.00 | 64485 | 96021833 |
| 6 | 11/01/1996 | ESTSEPPROP | Establish Separate Property | MILLER, BONNIE B | MILLER, BONNIE B | | | $0.00 | 64177 | 96020343 |
| 7 | 09/01/1996 | ESTSEPPROP | Establish Separate Property | MILLER, BONNIE B | MILLER, BONNIE B | | | $0.00 | 63436 | 96017024 |
| 8 | 10/01/1977 | OTHER | Other - Misc. Documents | COOK, BONNIE B | MILLER, BONNIE B | | | $0.00 | 59283 | 0 |
| 9 | 01/01/1900 | OTHER | Other - Misc. Documents | Unknown | COOK, BONNIE B | | | $0.00 | 0 | 0 |
Payout Agreement
| No payout information available.. |