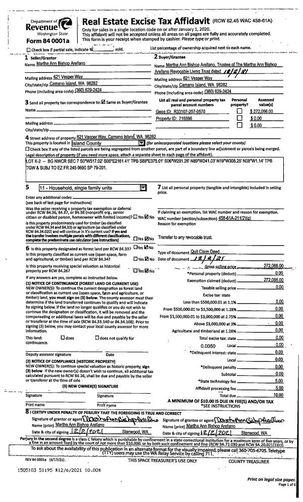
Property
Account |
| Property ID: | 190073 | Abbreviated Legal Description: | BELLS BCH LOT 7 SUB EZ AF#84006029 |
| Geographic ID: | S6115-00-00007-0 | Agent Code: | |
| Type: | Real | | |
| Tax Area: | 730 - APPRAISER-S Whid Schl Dist, Special District, improved & less than 1 acre | Land Use Code | 11 |
| Open Space: | N | DFL | N |
| Historic Property: | N | Remodel Property: | N |
| Multi-Family Redevelopment: | N | | |
| Township: | | Section: | |
| Range: | |
Location |
| Address: | 3701 BELLS BEACH RD LANGLEY, WA 98260 | Mapsco: | |
| Neighborhood: | Cycle 4 | Map ID: | 880 |
| Neighborhood CD: | 4 |
Owner |
| Name: | RBBH LLC | Owner ID: | 302094 |
| Mailing Address: | 6206 53RD AVE NE SEATTLE, WA 98115 | % Ownership: | 100.0000000000% |
| | | Exemptions: | |
Taxes and Assessment Details
Values
| (+) Improvement Homesite Value: | + | $0 | |
| (+) Improvement Non-Homesite Value: | + | $353,419 | |
| (+) Land Homesite Value: | + | $0 | |
| (+) Land Non-Homesite Value: | + | $700,000 | |
| (+) Curr Use (HS): | + | $0 | $0 |
| (+) Curr Use (NHS): | + | $0 | $0 |
| | | -------------------------- | |
| (=) Market Value: | = | $1,053,419 | |
| (–) Productivity Loss: | – | $0 | |
| | | -------------------------- | |
| (=) Subtotal: | = | $1,053,419 | |
| (+) Senior Appraised Value: | + | $0 | |
| (+) Non-Senior Appraised Value: | + | $1,053,419 | |
| | | -------------------------- | |
| (=) Total Appraised Value: | = | $1,053,419 | |
| (–) Senior Exemption Loss: | – | $0 | |
| (–) Exemption Loss: | – | $0 | |
| | | -------------------------- | |
| (=) Taxable Value: | = | $1,053,419 | |
Taxing Jurisdiction
| Owner: | RBBH LLC | | |
| % Ownership: | 100.0000000000% | | |
| Total Value: | $1,053,419 | | |
| Tax Area: | 730 - APPRAISER-S Whid Schl Dist, Special District, improved & less than 1 acre |
| CF | Conservation Futures | 0.0316035091 | $1,053,419 | $1,053,419 | $33.29 | | |
| FIRE3 | Fire & Rescue Dist #3 S Whidbey GEN | 1.2004855531 | $1,053,419 | $1,053,419 | $1,264.61 | | |
| HOBOND | Hospital BOND | 0.1910887512 | $1,053,419 | $1,053,419 | $201.30 | | |
| HOGEN | Hospital GEN | 0.3902502903 | $1,053,419 | $1,053,419 | $411.10 | | |
| CE | County Current Expense | 0.3708482477 | $1,053,419 | $1,053,419 | $390.66 | | |
| CR | County Roads | 0.4584763726 | $1,053,419 | $1,053,419 | $482.97 | | |
| ISLANDEMS | Hospital GEN (EMS) | 0.5000000000 | $1,053,419 | $1,053,419 | $526.71 | | |
| LIB | Library Sno-Isle GEN | 0.3153421757 | $1,053,419 | $1,053,419 | $332.19 | | |
| PORTWHID | Port of S Whidbey GEN | 0.1094540357 | $1,053,419 | $1,053,419 | $115.30 | | |
| SCH206BOND | School 206 BOND | 0.3161759235 | $1,053,419 | $1,053,419 | $333.07 | | |
| SCH206MO | School 206 Enrichment | 0.4547169547 | $1,053,419 | $1,053,419 | $479.01 | | |
| ST | State School | 1.3035497053 | $1,053,419 | $1,053,419 | $1,373.18 | | |
| ST2 | State School Part 2 | 0.8169543533 | $1,053,419 | $1,053,419 | $860.60 | | |
| SWHIDPRBD | P & R S Whidbey BOND | 0.0152817568 | $1,053,419 | $1,053,419 | $16.10 | | |
| SWHIDPRBD2 | P & R S Whidbey BOND2 | 0.0138911264 | $1,053,419 | $1,053,419 | $14.63 | | |
| SWHIDPRMT | P & R S Whidbey GEN | 0.2053334452 | $1,053,419 | $1,053,419 | $216.30 | | |
| | Total Tax Rate: | 6.6934522006 | | | | | |
| | | | | Taxes w/Current Exemptions: | $7,051.02 | | |
| | | | | Taxes w/o Exemptions: | $7,051.02 | | |
Improvement / Building
| Improvement #1: | RESIDENTIAL | State Code: | Y | 1822.0 sqft | Value: | $353,419 |
| Bathrooms: | 2 | Bedrooms: | 3 | | Ceiling: | TONGUE & GROOVE | Cooling: | HEAT PUMP/CONV/V | | Exterior Wall/Cover: | WOOD SIDING | Floor Covering: | CARPET/VINYL 80-20 | | Floor Structure: | WOOD W/SUBFLOOR | Foundation: | CONCRETE | | Interior Finish: | DRYWALL PAINT | Plumbing Fixture Cnt: | 10 | | Roof Slope: | 4" IN 12" | Roof Structure/Cover: | CJ ASPHALT |
|
| | Type | Description | Class CD | Sub Class CD | Year Built | Area |
| | BAS | BASE/MAIN FLOOR | 4 | 0 | 1961 | 909.0 |
| | ATF | ATTIC FINISHED | 4 | 0 | 1961 | 405.0 |
| | OCP | OPEN CARPORT | 4 | 0 | 1961 | 594.0 |
| | UTY | STORAGE/UTILITY | 4 | 0 | 1961 | 88.0 |
| | UTY | STORAGE/UTILITY | 4 | 0 | 1961 | 88.0 |
| | UPS | UPPER STORY | 4 | 0 | 1961 | 913.0 |
| | OWP | OPEN WOOD PORCH W/STEPS | 4 | 0 | 1961 | 468.0 |
| | OWC | OPEN WOOD PORCH W/STEPS/ROOF/C | 4 | 0 | 1961 | 48.0 |
| | ENP | ENCLOSED PORCH | 4 | 0 | 1961 | 228.0 |
| | OWP | OPEN WOOD PORCH W/STEPS | 4 | 0 | 1961 | 190.0 |
Sketch
Property Image
Land
| 1 | LB | LOW BANK | 0.2077 | 9047.41 | 40.00 | 0.00 | 1.00 | $700,000 | $0 |
Roll Value History
| 2026 | N/A | N/A | N/A | N/A | N/A |
| 2025 | $353,419 | $700,000 | $0 | $1,053,419 | $1,053,419 |
| 2024 | $358,115 | $700,000 | $0 | $1,058,115 | $1,058,115 |
| 2023 | $362,813 | $700,000 | $0 | $1,062,813 | $1,062,813 |
| 2022 | $285,258 | $700,000 | $0 | $985,258 | $985,258 |
| 2021 | $191,576 | $450,000 | $0 | $641,576 | $641,576 |
| 2020 | $187,473 | $450,000 | $0 | $637,473 | $637,473 |
| 2019 | $140,284 | $450,000 | $0 | $590,284 | $590,284 |
| 2018 | $140,819 | $450,000 | $0 | $590,819 | $590,819 |
| 2017 | $141,895 | $375,000 | $0 | $516,895 | $516,895 |
| 2016 | $144,045 | $375,000 | $0 | $519,045 | $519,045 |
| 2015 | $146,196 | $350,000 | $0 | $496,196 | $496,196 |
| 2014 | $142,050 | $350,000 | $0 | $492,050 | $492,050 |
| 2013 | $144,204 | $290,954 | $0 | $435,158 | $435,158 |
| 2012 | $146,355 | $290,954 | $0 | $437,309 | $437,309 |
| 2011 | $148,509 | $290,954 | $0 | $439,463 | $439,463 |
| 2010 | $159,990 | $290,954 | $0 | $450,944 | $450,944 |
| 2009 | $167,015 | $342,533 | $0 | $509,548 | $509,548 |
| 2008 | $167,588 | $321,372 | $0 | $488,960 | $488,960 |
| 2007 | $169,751 | $363,693 | $0 | $533,444 | $533,444 |
Deed and Sales History
| 1 | 10/15/2021 | WD | Warranty Deed | ROSE, KRISTIN | RBBH LLC | | | $0.00 | 51047 | 4534375 |
| 2 | 07/28/2021 | WD | Warranty Deed | TUMAN TRUSTEE, LISA N | ROSE, KRISTIN | | | $0.00 | 50410 | 4531052 |
| 3 | 07/28/2021 | WD | Warranty Deed | TUMAN TRUSTEE, LISA N | ROSE, KRISTIN | | | $1,150,000.00 | 49437 | 4525858 |
| 4 | 12/07/2000 | QCD | Quit Claim Deed | MILLS ET AL, SALLY T | MILLS ET AL, SALLY T | | | $0.00 | 10226 | 20024002 |
| 5 | 12/07/2000 | ESTSEPPROP | Establish Separate Property | HERRON, LISA M | MILLS ET AL, SALLY T | | | $0.00 | 10225 | 20024001 |
| 6 | 01/01/1994 | QCD | Quit Claim Deed | HERRON, LISA M | HERRON, LISA M | | | $0.00 | 40251 | 94001517 |
| 7 | 01/01/1994 | QCD | Quit Claim Deed | HERRON, LISA M | HERRON, LISA M | | | $0.00 | 40252 | 94001518 |
| 8 | 08/01/1993 | WD | Warranty Deed | HERRON, LISA M | HERRON, LISA M | | | $280,000.00 | 33189 | 93016561 |
| 9 | 08/01/1993 | QCD | Quit Claim Deed | HERRON, LISA M | HERRON, LISA M | | | $0.00 | 33190 | 93016562 |
| 10 | 08/01/1993 | QCD | Quit Claim Deed | BARNARD, BRADFORD L | HERRON, LISA M | | | $0.00 | 33191 | 93016563 |
| 11 | 01/01/1990 | QCD | Quit Claim Deed | WANG, MATTHEW E | BARNARD, BRADFORD L | | | $0.00 | 665 | 90002206 |
| 12 | 08/01/1989 | WD | Warranty Deed | BARNARD, BRAD E | WANG, MATTHEW E | | | $175,000.00 | 93629 | 89012147 |
| 13 | 08/01/1989 | WD | Warranty Deed | BARNARD, BRAD E | BARNARD, BRAD E | | | $0.00 | 93630 | 89012148 |
| 14 | 08/01/1989 | WD | Warranty Deed | BARNARD, BRADFORD L | BARNARD, BRAD E | | | $0.00 | 93631 | 89012149 |
| 15 | 08/01/1989 | QCD | Quit Claim Deed | BARNARD, BRADFORD L | BARNARD, BRADFORD L | | | $0.00 | 93632 | 89012150 |
| 16 | 08/01/1989 | QCD | Quit Claim Deed | JOHNSON, HOWARD J | BARNARD, BRADFORD L | | | $0.00 | 93633 | 89012151 |
| 17 | 11/01/1984 | WD | Warranty Deed | JOHNSON, HOWARD J | JOHNSON, HOWARD J | | | $160,000.00 | 43429 | 84006031 |
| 18 | 11/01/1984 | EZ | Easement | ROBERTSON, NEYSA B | JOHNSON, HOWARD J | | | $0.00 | 60941 | 84006029 |
| 19 | 10/01/1983 | QCD | Quit Claim Deed | ROBERTSON, JOHN R | ROBERTSON, NEYSA B | | | $0.00 | 33004 | 416114 |
| 20 | 10/01/1974 | CD | DNU - Correction Deed | KEATING, NEYSA B | ROBERTSON, JOHN R | | | $0.00 | 53630 | 0 |
| 21 | 01/01/1900 | OTHER | Other - Misc. Documents | Unknown | KEATING, NEYSA B | | | $0.00 | 0 | 0 |
Payout Agreement
| No payout information available.. |