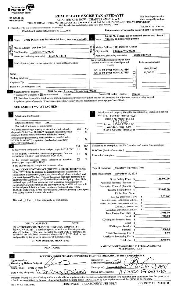
Property
Account |
| Property ID: | 190457 | Abbreviated Legal Description: | BELLS BCH 1ST LOT 18 |
| Geographic ID: | S6115-01-00018-2 | Agent Code: | |
| Type: | Real | | |
| Tax Area: | 730 - APPRAISER-S Whid Schl Dist, Special District, improved & less than 1 acre | Land Use Code | 11 |
| Open Space: | N | DFL | N |
| Historic Property: | N | Remodel Property: | N |
| Multi-Family Redevelopment: | N | | |
| Township: | | Section: | |
| Range: | |
Location |
| Address: | 3631 BELLS BEACH RD LANGLEY, WA 98260 | Mapsco: | |
| Neighborhood: | Cycle 4 | Map ID: | 880 |
| Neighborhood CD: | 4 |
Owner |
| Name: | BAILEY, DEBORAH CLINTON | Owner ID: | 260406 |
| Mailing Address: | CHARLES A JR & BARBARA H TOMPKINS CO TRUSTEES C/O DEBRAH CLINTON-BAILEY 5837 NE PARKPOINT DR SEATTLE, WA 98115 | % Ownership: | 100.0000000000% |
| | | Exemptions: | |
Taxes and Assessment Details
Values
| (+) Improvement Homesite Value: | + | $0 | |
| (+) Improvement Non-Homesite Value: | + | $162,129 | |
| (+) Land Homesite Value: | + | $0 | |
| (+) Land Non-Homesite Value: | + | $700,000 | |
| (+) Curr Use (HS): | + | $0 | $0 |
| (+) Curr Use (NHS): | + | $0 | $0 |
| | | -------------------------- | |
| (=) Market Value: | = | $862,129 | |
| (–) Productivity Loss: | – | $0 | |
| | | -------------------------- | |
| (=) Subtotal: | = | $862,129 | |
| (+) Senior Appraised Value: | + | $0 | |
| (+) Non-Senior Appraised Value: | + | $862,129 | |
| | | -------------------------- | |
| (=) Total Appraised Value: | = | $862,129 | |
| (–) Senior Exemption Loss: | – | $0 | |
| (–) Exemption Loss: | – | $0 | |
| | | -------------------------- | |
| (=) Taxable Value: | = | $862,129 | |
Taxing Jurisdiction
| Owner: | BAILEY, DEBORAH CLINTON | | |
| % Ownership: | 100.0000000000% | | |
| Total Value: | $862,129 | | |
| Tax Area: | 730 - APPRAISER-S Whid Schl Dist, Special District, improved & less than 1 acre |
| CF | Conservation Futures | 0.0316035091 | $862,129 | $862,129 | $27.25 | | |
| FIRE3 | Fire & Rescue Dist #3 S Whidbey GEN | 1.2004855531 | $862,129 | $862,129 | $1,034.97 | | |
| HOBOND | Hospital BOND | 0.1910887512 | $862,129 | $862,129 | $164.74 | | |
| HOGEN | Hospital GEN | 0.3902502903 | $862,129 | $862,129 | $336.45 | | |
| CE | County Current Expense | 0.3708482477 | $862,129 | $862,129 | $319.72 | | |
| CR | County Roads | 0.4584763726 | $862,129 | $862,129 | $395.27 | | |
| ISLANDEMS | Hospital GEN (EMS) | 0.5000000000 | $862,129 | $862,129 | $431.06 | | |
| LIB | Library Sno-Isle GEN | 0.3153421757 | $862,129 | $862,129 | $271.87 | | |
| PORTWHID | Port of S Whidbey GEN | 0.1094540357 | $862,129 | $862,129 | $94.36 | | |
| SCH206BOND | School 206 BOND | 0.3161759235 | $862,129 | $862,129 | $272.58 | | |
| SCH206MO | School 206 Enrichment | 0.4547169547 | $862,129 | $862,129 | $392.02 | | |
| ST | State School | 1.3035497053 | $862,129 | $862,129 | $1,123.83 | | |
| ST2 | State School Part 2 | 0.8169543533 | $862,129 | $862,129 | $704.32 | | |
| SWHIDPRBD | P & R S Whidbey BOND | 0.0152817568 | $862,129 | $862,129 | $13.17 | | |
| SWHIDPRBD2 | P & R S Whidbey BOND2 | 0.0138911264 | $862,129 | $862,129 | $11.98 | | |
| SWHIDPRMT | P & R S Whidbey GEN | 0.2053334452 | $862,129 | $862,129 | $177.02 | | |
| | Total Tax Rate: | 6.6934522006 | | | | | |
| | | | | Taxes w/Current Exemptions: | $5,770.61 | | |
| | | | | Taxes w/o Exemptions: | $5,770.61 | | |
Improvement / Building
| Improvement #1: | RESIDENTIAL | State Code: | Y | 1260.0 sqft | Value: | $162,129 |
| Bathrooms: | 2 | Bedrooms: | 3 | | Ceiling: | DRYWALL PAINTED | Exterior Wall/Cover: | PLY/HARDBOARD T-111 | | Floor Covering: | CARPET/VINYL 80-20 | Floor Structure: | WOOD W/SUBFLOOR | | Foundation: | CONCRETE | Heating: | BASEBOARD ELECTRIC | | Interior Finish: | DRYWALL PAINT | Plumbing Fixture Cnt: | 9 | | Roof Slope: | 4" IN 12" | Roof Structure/Cover: | ALUM LIGHT |
|
| | Type | Description | Class CD | Sub Class CD | Year Built | Area |
| | BAS | BASE/MAIN FLOOR | 3 | 0 | 1954 | 630.0 |
| | OP1 | OPEN PORCH SLAB | 3 | 0 | 1954 | 273.0 |
| | OP1 | OPEN PORCH SLAB | 3 | 0 | 1954 | 207.0 |
| | UPS | UPPER STORY | 3 | 0 | 1954 | 630.0 |
| | BAW | BALCONY WOOD RAIL | 3 | 0 | 1954 | 102.0 |
| | OWP | OPEN WOOD PORCH W/STEPS | 3 | 0 | 1954 | 198.0 |
| | UTY | STORAGE/UTILITY | 3 | 0 | 1954 | 140.0 |
| | OP3 | OPEN PORCH W/ROOF | 3 | 0 | 1954 | 42.0 |
Sketch
Property Image
Land
| 1 | LB | LOW BANK | 0.0000 | 0.00 | 60.00 | 0.00 | 1.00 | $700,000 | $0 |
Roll Value History
| 2026 | N/A | N/A | N/A | N/A | N/A |
| 2025 | $162,129 | $700,000 | $0 | $862,129 | $862,129 |
| 2024 | $168,073 | $700,000 | $0 | $868,073 | $868,073 |
| 2023 | $170,612 | $700,000 | $0 | $870,612 | $870,612 |
| 2022 | $156,791 | $750,000 | $0 | $906,791 | $906,791 |
| 2021 | $138,344 | $600,000 | $0 | $738,344 | $738,344 |
| 2020 | $123,365 | $475,000 | $0 | $598,365 | $598,365 |
| 2019 | $87,276 | $475,000 | $0 | $562,276 | $562,276 |
| 2018 | $87,611 | $475,000 | $0 | $562,611 | $562,611 |
| 2017 | $88,280 | $475,000 | $0 | $563,280 | $563,280 |
| 2016 | $89,618 | $475,000 | $0 | $564,618 | $564,618 |
| 2015 | $90,955 | $450,000 | $0 | $540,955 | $540,955 |
| 2014 | $82,699 | $450,000 | $0 | $532,699 | $532,699 |
| 2013 | $83,994 | $407,880 | $0 | $491,874 | $491,874 |
| 2012 | $85,290 | $407,880 | $0 | $493,170 | $493,170 |
| 2011 | $86,585 | $407,880 | $0 | $494,465 | $494,465 |
| 2010 | $94,231 | $407,880 | $0 | $502,111 | $502,111 |
| 2009 | $98,356 | $480,186 | $0 | $578,542 | $578,542 |
| 2008 | $97,038 | $450,522 | $0 | $547,560 | $547,560 |
| 2007 | $98,356 | $509,850 | $0 | $608,206 | $608,206 |
Deed and Sales History
| 1 | 11/15/2012 | QCD | Quit Claim Deed | BAILEY, DEBORAH CLINTON | BAILEY, DEBORAH CLINTON | | | $0.00 | 9890 | 4330021 |
| 2 | 06/02/2012 | OTHER | Other - Misc. Documents | CLINTON TRUSTEES, GORDON S | BAILEY, DEBORAH CLINTON | | | $0.00 | 8611 | 4321577 |
| 3 | 01/01/1990 | QCD | Quit Claim Deed | CLINTON, FLORENCE H | CLINTON, GORDON S | | | $0.00 | 518 | 90001645 |
| 4 | 01/01/1900 | OTHER | Other - Misc. Documents | Unknown | CLINTON, FLORENCE H | | | $0.00 | 0 | 0 |
Payout Agreement
| No payout information available.. |