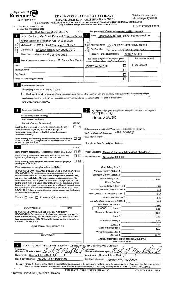
Property
Account |
| Property ID: | 190634 | Abbreviated Legal Description: | BELLS BCH HTS PT LOTS 18, 19, 20 & 26 DESC: BG NWLY CR LOT 26 & SWLY LN SARATOGA RD TPB S53*E223.61' S70*W194.60' TO ELN LOT 5 S74*W104.36' N125' PARA/TO ELY LN LOT 5 N82*E101.14' TO ELN LOT 5 N84.81' ALG ELY LN LOT 5 TPB TGW EZ AF#94009068 DRAINFIELD LO |
| Geographic ID: | S6120-00-00018-0 | Agent Code: | |
| Type: | Real | | |
| Tax Area: | 730 - APPRAISER-S Whid Schl Dist, Special District, improved & less than 1 acre | Land Use Code | 11 |
| Open Space: | N | DFL | N |
| Historic Property: | N | Remodel Property: | N |
| Multi-Family Redevelopment: | N | | |
| Township: | | Section: | |
| Range: | |
Location |
| Address: | 3704 SARATOGA RD LANGLEY, WA 98260 | Mapsco: | |
| Neighborhood: | Cycle 4 | Map ID: | 880 |
| Neighborhood CD: | 4 |
Owner |
| Name: | FORERO, MONICA | Owner ID: | 294972 |
| Mailing Address: | WILLIAM WARE 3704 SARATOGA RD LANGLEY, WA 98260 | % Ownership: | 100.0000000000% |
| | | Exemptions: | |
Taxes and Assessment Details
Values
| (+) Improvement Homesite Value: | + | $0 | |
| (+) Improvement Non-Homesite Value: | + | $439,605 | |
| (+) Land Homesite Value: | + | $0 | |
| (+) Land Non-Homesite Value: | + | $320,000 | |
| (+) Curr Use (HS): | + | $0 | $0 |
| (+) Curr Use (NHS): | + | $0 | $0 |
| | | -------------------------- | |
| (=) Market Value: | = | $759,605 | |
| (–) Productivity Loss: | – | $0 | |
| | | -------------------------- | |
| (=) Subtotal: | = | $759,605 | |
| (+) Senior Appraised Value: | + | $0 | |
| (+) Non-Senior Appraised Value: | + | $759,605 | |
| | | -------------------------- | |
| (=) Total Appraised Value: | = | $759,605 | |
| (–) Senior Exemption Loss: | – | $0 | |
| (–) Exemption Loss: | – | $0 | |
| | | -------------------------- | |
| (=) Taxable Value: | = | $759,605 | |
Taxing Jurisdiction
| Owner: | FORERO, MONICA | | |
| % Ownership: | 100.0000000000% | | |
| Total Value: | $759,605 | | |
| Tax Area: | 730 - APPRAISER-S Whid Schl Dist, Special District, improved & less than 1 acre |
| CF | Conservation Futures | 0.0316035091 | $759,605 | $759,605 | $24.01 | | |
| FIRE3 | Fire & Rescue Dist #3 S Whidbey GEN | 1.2004855531 | $759,605 | $759,605 | $911.89 | | |
| HOBOND | Hospital BOND | 0.1910887512 | $759,605 | $759,605 | $145.15 | | |
| HOGEN | Hospital GEN | 0.3902502903 | $759,605 | $759,605 | $296.44 | | |
| CE | County Current Expense | 0.3708482477 | $759,605 | $759,605 | $281.70 | | |
| CR | County Roads | 0.4584763726 | $759,605 | $759,605 | $348.26 | | |
| ISLANDEMS | Hospital GEN (EMS) | 0.5000000000 | $759,605 | $759,605 | $379.80 | | |
| LIB | Library Sno-Isle GEN | 0.3153421757 | $759,605 | $759,605 | $239.54 | | |
| PORTWHID | Port of S Whidbey GEN | 0.1094540357 | $759,605 | $759,605 | $83.14 | | |
| SCH206BOND | School 206 BOND | 0.3161759235 | $759,605 | $759,605 | $240.17 | | |
| SCH206MO | School 206 Enrichment | 0.4547169547 | $759,605 | $759,605 | $345.41 | | |
| ST | State School | 1.3035497053 | $759,605 | $759,605 | $990.18 | | |
| ST2 | State School Part 2 | 0.8169543533 | $759,605 | $759,605 | $620.56 | | |
| SWHIDPRBD | P & R S Whidbey BOND | 0.0152817568 | $759,605 | $759,605 | $11.61 | | |
| SWHIDPRBD2 | P & R S Whidbey BOND2 | 0.0138911264 | $759,605 | $759,605 | $10.55 | | |
| SWHIDPRMT | P & R S Whidbey GEN | 0.2053334452 | $759,605 | $759,605 | $155.97 | | |
| | Total Tax Rate: | 6.6934522006 | | | | | |
| | | | | Taxes w/Current Exemptions: | $5,084.38 | | |
| | | | | Taxes w/o Exemptions: | $5,084.38 | | |
Improvement / Building
| Improvement #1: | RESIDENTIAL | State Code: | Y | 2633.0 sqft | Value: | $439,605 |
| Bathrooms: | 3.5 | Bedrooms: | 3 | | Ceiling: | TONGUE & GROOVE | Cooling: | HEAT PUMP/CONV/V | | Exterior Wall/Cover: | STUCCO | Floor Covering: | CERAMIC TILE/CPT 40-60 | | Floor Structure: | WOOD W/SUBFLOOR | Foundation: | CONCRETE | | Interior Finish: | DRYWALL PAINT | Plumbing Fixture Cnt: | 17 | | Roof Slope: | 4" IN 12" | Roof Structure/Cover: | BEAM ASPHALT |
|
| | Type | Description | Class CD | Sub Class CD | Year Built | Area |
| | BAS | BASE/MAIN FLOOR | 3 | 0 | 1996 | 1065.0 |
| | BAS | BASE/MAIN FLOOR | 3 | 0 | 1996 | 600.0 |
| | OP1 | OPEN PORCH SLAB | 3 | 0 | 1996 | 56.0 |
| | OP1 | OPEN PORCH SLAB | 3 | 0 | 1996 | 220.0 |
| | BIG | BUILT IN GARAGE | 3 | 0 | 1996 | 576.0 |
| | OWP | OPEN WOOD PORCH W/STEPS | 3 | 0 | 1996 | 243.8 |
| | OWP | OPEN WOOD PORCH W/STEPS | 3 | 0 | 1996 | 90.8 |
| | DWN | DOWNSTAIRS LIVING AREA | 3 | 0 | 1996 | 968.0 |
Sketch
Property Image
Land
| 1 | 16 | AC (00.51-01.00) | 0.0000 | 0.00 | 0.00 | 0.00 | 1.00 | $320,000 | $0 |
Roll Value History
| 2026 | N/A | N/A | N/A | N/A | N/A |
| 2025 | $439,605 | $320,000 | $0 | $759,605 | $759,605 |
| 2024 | $444,887 | $320,000 | $0 | $764,887 | $764,887 |
| 2023 | $450,166 | $320,000 | $0 | $770,166 | $770,166 |
| 2022 | $412,420 | $280,000 | $0 | $692,420 | $692,420 |
| 2021 | $362,788 | $220,000 | $0 | $582,788 | $582,788 |
| 2020 | $296,373 | $220,000 | $0 | $516,373 | $516,373 |
| 2019 | $227,747 | $250,000 | $0 | $477,747 | $477,747 |
| 2018 | $228,446 | $180,000 | $0 | $408,446 | $408,446 |
| 2017 | $229,831 | $125,000 | $0 | $354,831 | $354,831 |
| 2016 | $232,633 | $100,000 | $0 | $332,633 | $332,633 |
| 2015 | $235,437 | $100,000 | $0 | $335,437 | $335,437 |
| 2014 | $235,395 | $100,000 | $0 | $335,395 | $335,395 |
| 2013 | $238,265 | $100,000 | $0 | $338,265 | $338,265 |
| 2012 | $241,135 | $119,000 | $0 | $360,135 | $360,135 |
| 2011 | $244,007 | $140,000 | $0 | $384,007 | $384,007 |
| 2010 | $257,423 | $140,000 | $0 | $397,423 | $397,423 |
| 2009 | $268,505 | $175,000 | $0 | $443,505 | $443,505 |
| 2008 | $275,064 | $160,395 | $0 | $435,459 | $435,459 |
| 2007 | $278,321 | $160,395 | $0 | $438,716 | $438,716 |
Deed and Sales History
| 1 | 06/25/2020 | WD | Warranty Deed | BINGMAN, ROY A | FORERO, MONICA | | | $585,000.00 | 43597 | 4490116 |
| 2 | 09/25/1998 | BLA | DNU - Boundary Line Adjustment | SWANSON, TERRY/FAWN | BINGMAN, ROY A/CAROL LEE | | | $0.00 | 66697 | 98009327 |
| 3 | 09/01/1998 | OTHER | Other - Misc. Documents | Unknown | BINGMAN, ROY A | | | $0.00 | 66697 | 98009327 |
| 4 | 04/01/1994 | OTHER | Other - Misc. Documents | BINGMAN, ROY A | SWANSON, TERRY/FAWN | | | $0.00 | 65853 | 94008559 |
| 5 | 04/01/1994 | WD | Warranty Deed | SWANSON, TERRY/FAWN | BINGMAN, ROY A | | | $50,000.00 | 41717 | 94010172 |
| 6 | 03/01/1994 | QCD | Quit Claim Deed | BINGMAN, ROY A | SWANSON, TERRY/FAWN | | | $0.00 | 41385 | 94008560 |
| 7 | 03/01/1994 | QCD | Quit Claim Deed | SWANSON, TERRY/FAWN | BINGMAN, ROY A | | | $0.00 | 52047 | 95009533 |
| 8 | 05/01/1993 | QCD | Quit Claim Deed | SWANSON, TERRY L | SWANSON, TERRY/FAWN | | | $0.00 | 32954 | 93015443 |
| 9 | 11/01/1991 | WD | Warranty Deed | OFTEBRO, JAMES B | SWANSON, TERRY L | | | $25,000.00 | 14466 | 91019493 |
| 10 | 07/01/1991 | OTHER | Other - Misc. Documents | BELLS, BEACH T | OFTEBRO, JAMES B | | | $0.00 | 64351 | 91010652 |
| 11 | 07/01/1991 | QCD | Quit Claim Deed | OFTEBRO, JAMES B | BELLS, BEACH T | | | $0.00 | 12691 | 91011514 |
| 12 | 12/01/1980 | CD | DNU - Correction Deed | BINGMAN, ROY A | OFTEBRO, JAMES B | | | $0.00 | 4212 | 377665 |
Payout Agreement
| No payout information available.. |