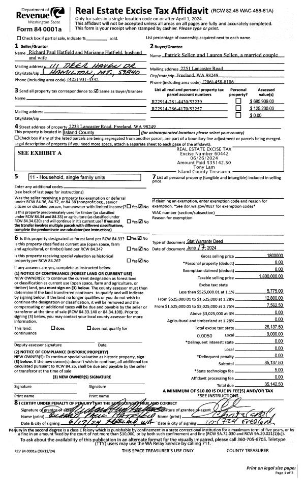
Property
Account |
| Property ID: | 190956 | Abbreviated Legal Description: | BERGQUAM LOT 8 |
| Geographic ID: | S6130-00-00008-0 | Agent Code: | |
| Type: | Real | | |
| Tax Area: | 100 - APPRAISER-OH Schl Dist, in OH | Land Use Code | 11 |
| Open Space: | N | DFL | N |
| Historic Property: | N | Remodel Property: | N |
| Multi-Family Redevelopment: | N | | |
| Township: | | Section: | |
| Range: | |
Location |
| Address: | 1745 SE 2ND CT OAK HARBOR, WA 98277 | Mapsco: | |
| Neighborhood: | Cycle 1 | Map ID: | 260 |
| Neighborhood CD: | 1 |
Owner |
| Name: | BERRY, EDDIE DEVAR | Owner ID: | 301209 |
| Mailing Address: | RENALYN G BERRY 1745 SE 2ND CT OAK HARBOR, WA 98277 | % Ownership: | 100.0000000000% |
| | | Exemptions: | |
Taxes and Assessment Details
Values
| (+) Improvement Homesite Value: | + | $0 | |
| (+) Improvement Non-Homesite Value: | + | $230,016 | |
| (+) Land Homesite Value: | + | $0 | |
| (+) Land Non-Homesite Value: | + | $180,000 | |
| (+) Curr Use (HS): | + | $0 | $0 |
| (+) Curr Use (NHS): | + | $0 | $0 |
| | | -------------------------- | |
| (=) Market Value: | = | $410,016 | |
| (–) Productivity Loss: | – | $0 | |
| | | -------------------------- | |
| (=) Subtotal: | = | $410,016 | |
| (+) Senior Appraised Value: | + | $0 | |
| (+) Non-Senior Appraised Value: | + | $410,016 | |
| | | -------------------------- | |
| (=) Total Appraised Value: | = | $410,016 | |
| (–) Senior Exemption Loss: | – | $0 | |
| (–) Exemption Loss: | – | $0 | |
| | | -------------------------- | |
| (=) Taxable Value: | = | $410,016 | |
Taxing Jurisdiction
| Owner: | BERRY, EDDIE DEVAR | | |
| % Ownership: | 100.0000000000% | | |
| Total Value: | $410,016 | | |
| Tax Area: | 100 - APPRAISER-OH Schl Dist, in OH |
| CF | Conservation Futures | 0.0316035091 | $410,016 | $410,016 | $12.96 | | |
| CEM1 | Cemetery #1 | 0.0040320932 | $410,016 | $410,016 | $1.65 | | |
| COH | City of Oak Harbor | 2.3001546061 | $410,016 | $410,016 | $943.10 | | |
| OAKBOND | City of Oak Harbor BOND | 0.1926904192 | $410,016 | $410,016 | $79.01 | | |
| HOBOND | Hospital BOND | 0.1910887512 | $410,016 | $410,016 | $78.35 | | |
| HOGEN | Hospital GEN | 0.3902502903 | $410,016 | $410,016 | $160.01 | | |
| CE | County Current Expense | 0.3708482477 | $410,016 | $410,016 | $152.05 | | |
| ISLANDEMS | Hospital GEN (EMS) | 0.5000000000 | $410,016 | $410,016 | $205.01 | | |
| LIB | Library Sno-Isle GEN | 0.3153421757 | $410,016 | $410,016 | $129.30 | | |
| NWHIDPRMT | P & R N Whidbey GEN | 0.2004466701 | $410,016 | $410,016 | $82.19 | | |
| SCH201MO | School 201 Enrichment | 1.8559231640 | $410,016 | $410,016 | $760.96 | | |
| ST | State School | 1.3035497053 | $410,016 | $410,016 | $534.48 | | |
| ST2 | State School Part 2 | 0.8169543533 | $410,016 | $410,016 | $334.96 | | |
| | Total Tax Rate: | 8.4728839852 | | | | | |
| | | | | Taxes w/Current Exemptions: | $3,474.03 | | |
| | | | | Taxes w/o Exemptions: | $3,474.03 | | |
Improvement / Building
| Improvement #1: | RESIDENTIAL | State Code: | Y | 1351.0 sqft | Value: | $230,016 |
| Bathrooms: | 1.5 | Bedrooms: | 3 | | Ceiling: | DRYWALL PAINTED | Exterior Wall/Cover: | WOOD SIDING | | Floor Covering: | HARDWOOD 100% | Floor Structure: | WOOD W/SUBFLOOR | | Foundation: | CONCRETE | Heating: | FHA ELECTRIC | | Interior Finish: | DRYWALL PAINT | Plumbing Fixture Cnt: | 8 | | Roof Slope: | 4" IN 12" | Roof Structure/Cover: | CJ ASPHALT |
|
| | Type | Description | Class CD | Sub Class CD | Year Built | Area |
| | BAS | BASE/MAIN FLOOR | 3 | 0 | 1958 | 1351.0 |
| | OP1 | OPEN PORCH SLAB | 3 | 0 | 1958 | 364.0 |
| | AGR | ATTACHED GARAGE | 3 | 0 | 1958 | 322.0 |
| | OP4 | OPEN PORCH W/CEILING-ROOF | 3 | 0 | 1958 | 20.0 |
Sketch
Property Image
Land
| 1 | HS | HOMESITE | 0.1700 | 7405.20 | 0.00 | 0.00 | 1.00 | $180,000 | $0 |
Roll Value History
| 2026 | N/A | N/A | N/A | N/A | N/A |
| 2025 | $230,016 | $180,000 | $0 | $410,016 | $410,016 |
| 2024 | $233,156 | $170,000 | $0 | $403,156 | $403,156 |
| 2023 | $235,552 | $170,000 | $0 | $405,552 | $405,552 |
| 2022 | $216,122 | $160,000 | $0 | $376,122 | $376,122 |
| 2021 | $180,535 | $120,000 | $0 | $300,535 | $300,535 |
| 2020 | $176,309 | $100,000 | $0 | $276,309 | $276,309 |
| 2019 | $128,225 | $140,000 | $0 | $268,225 | $268,225 |
| 2018 | $128,650 | $125,000 | $0 | $253,650 | $253,650 |
| 2017 | $121,061 | $110,000 | $0 | $231,061 | $231,061 |
| 2016 | $122,742 | $90,000 | $0 | $212,742 | $212,742 |
| 2015 | $124,424 | $70,000 | $0 | $194,424 | $194,424 |
| 2014 | $100,187 | $55,000 | $0 | $155,187 | $155,187 |
| 2013 | $101,856 | $55,000 | $0 | $156,856 | $156,856 |
| 2012 | $103,526 | $60,000 | $0 | $163,526 | $163,526 |
| 2011 | $90,399 | $113,000 | $0 | $203,399 | $203,399 |
| 2010 | $102,123 | $113,000 | $0 | $215,123 | $215,123 |
| 2009 | $106,768 | $132,000 | $0 | $238,768 | $238,768 |
| 2008 | $108,463 | $138,605 | $0 | $247,068 | $247,068 |
| 2007 | $110,170 | $114,550 | $0 | $224,720 | $224,720 |
Deed and Sales History
| 1 | 09/16/2021 | WD | Warranty Deed | ARKLIN, CINDY C | BERRY, EDDIE DEVAR | | | $402,000.00 | 50083 | 4529377 |
| 2 | 03/23/2018 | QCD | Quit Claim Deed | ARKLIN, CINDY C | ARKLIN, CINDY C | | | $0.00 | 33426 | 4443630 |
| 3 | 12/29/2016 | DECREE | Divorce Decree/Legal Separation | ARKLIN, RICHARD V | ARKLIN, CINDY C | | | $0.00 | 27572 | 4414370 |
| 4 | 12/18/2014 | WD | Warranty Deed | KELLY, BRIAN S | ARKLIN, RICHARD V | | | $199,500.00 | 17952 | 4370381 |
| 5 | 12/01/2004 | WD | Warranty Deed | SCHULLE, OLA M | KELLEY, BRIAN S | | | $167,000.00 | 45676 | 4119941 |
| 6 | 01/29/2002 | 5 | DNU - Marriage License/Name Change | SCHULLE, MILTON W | SCHULLE, OLA M | | | $0.00 | 69300 | 0 |
| 7 | 06/01/1990 | WD | Warranty Deed | BAKER, ROGER D | SCHULLE, MILTON W | | | $54,764.00 | 3917 | 90012736 |
| 8 | 02/01/1986 | QCD | Quit Claim Deed | ROOKSTOOL, EVELYN M | BAKER, ROGER D | | | $0.00 | 60354 | 86001769 |
| 9 | 06/01/1984 | WD | Warranty Deed | SCHULLE, OLA M | ROOKSTOOL, EVELYN M | | | $67,000.00 | 41738 | 426037 |
Payout Agreement
| No payout information available.. |