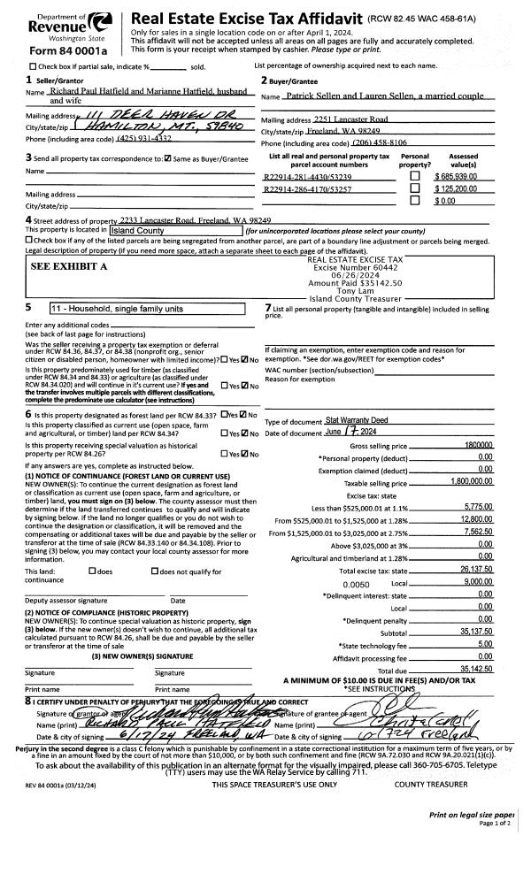
Property
Account |
| Property ID: | 190965 | Abbreviated Legal Description: | BERGQUAM LOT 9 |
| Geographic ID: | S6130-00-00009-0 | Agent Code: | |
| Type: | Real | | |
| Tax Area: | 100 - APPRAISER-OH Schl Dist, in OH | Land Use Code | 11 |
| Open Space: | N | DFL | N |
| Historic Property: | N | Remodel Property: | N |
| Multi-Family Redevelopment: | N | | |
| Township: | | Section: | |
| Range: | |
Location |
| Address: | 1727 SE 2ND CT OAK HARBOR, WA 98277 | Mapsco: | |
| Neighborhood: | Cycle 1 | Map ID: | 257 |
| Neighborhood CD: | 1 |
Owner |
| Name: | DOTEGOWSKI, JOHN E | Owner ID: | 301674 |
| Mailing Address: | 1727 SE 2ND CT OAK HARBOR, WA 98277 | % Ownership: | 100.0000000000% |
| | | Exemptions: | |
Taxes and Assessment Details
Values
| (+) Improvement Homesite Value: | + | $0 | |
| (+) Improvement Non-Homesite Value: | + | $180,272 | |
| (+) Land Homesite Value: | + | $0 | |
| (+) Land Non-Homesite Value: | + | $180,000 | |
| (+) Curr Use (HS): | + | $0 | $0 |
| (+) Curr Use (NHS): | + | $0 | $0 |
| | | -------------------------- | |
| (=) Market Value: | = | $360,272 | |
| (–) Productivity Loss: | – | $0 | |
| | | -------------------------- | |
| (=) Subtotal: | = | $360,272 | |
| (+) Senior Appraised Value: | + | $0 | |
| (+) Non-Senior Appraised Value: | + | $360,272 | |
| | | -------------------------- | |
| (=) Total Appraised Value: | = | $360,272 | |
| (–) Senior Exemption Loss: | – | $0 | |
| (–) Exemption Loss: | – | $0 | |
| | | -------------------------- | |
| (=) Taxable Value: | = | $360,272 | |
Taxing Jurisdiction
| Owner: | DOTEGOWSKI, JOHN E | | |
| % Ownership: | 100.0000000000% | | |
| Total Value: | $360,272 | | |
| Tax Area: | 100 - APPRAISER-OH Schl Dist, in OH |
| CF | Conservation Futures | 0.0316035091 | $360,272 | $360,272 | $11.39 | | |
| CEM1 | Cemetery #1 | 0.0040320932 | $360,272 | $360,272 | $1.45 | | |
| COH | City of Oak Harbor | 2.3001546061 | $360,272 | $360,272 | $828.68 | | |
| OAKBOND | City of Oak Harbor BOND | 0.1926904192 | $360,272 | $360,272 | $69.42 | | |
| HOBOND | Hospital BOND | 0.1910887512 | $360,272 | $360,272 | $68.84 | | |
| HOGEN | Hospital GEN | 0.3902502903 | $360,272 | $360,272 | $140.60 | | |
| CE | County Current Expense | 0.3708482477 | $360,272 | $360,272 | $133.61 | | |
| ISLANDEMS | Hospital GEN (EMS) | 0.5000000000 | $360,272 | $360,272 | $180.14 | | |
| LIB | Library Sno-Isle GEN | 0.3153421757 | $360,272 | $360,272 | $113.61 | | |
| NWHIDPRMT | P & R N Whidbey GEN | 0.2004466701 | $360,272 | $360,272 | $72.22 | | |
| SCH201MO | School 201 Enrichment | 1.8559231640 | $360,272 | $360,272 | $668.64 | | |
| ST | State School | 1.3035497053 | $360,272 | $360,272 | $469.63 | | |
| ST2 | State School Part 2 | 0.8169543533 | $360,272 | $360,272 | $294.33 | | |
| | Total Tax Rate: | 8.4728839852 | | | | | |
| | | | | Taxes w/Current Exemptions: | $3,052.56 | | |
| | | | | Taxes w/o Exemptions: | $3,052.56 | | |
Improvement / Building
| Improvement #1: | RESIDENTIAL | State Code: | Y | 1147.0 sqft | Value: | $180,272 |
| Bathrooms: | 1 | Bedrooms: | 3 | | Ceiling: | DRYWALL PAINTED | Exterior Wall/Cover: | VINYL | | Floor Covering: | VINYL/HARDWOOD 60-40 | Floor Structure: | WOOD W/SUBFLOOR | | Foundation: | CONCRETE | Heating: | FHA GAS | | Interior Finish: | DRYWALL PAINT | Plumbing Fixture Cnt: | 6 | | Roof Slope: | 4" IN 12" | Roof Structure/Cover: | CJ ASPHALT |
|
| | Type | Description | Class CD | Sub Class CD | Year Built | Area |
| | BAS | BASE/MAIN FLOOR | 3 | 0 | 1958 | 1147.0 |
| | OP4 | OPEN PORCH W/CEILING-ROOF | 3 | 0 | 1958 | 24.0 |
| | AGR | ATTACHED GARAGE | 3 | 0 | 1958 | 345.0 |
| | OWP | OPEN WOOD PORCH W/STEPS | 3 | 0 | 1958 | 256.0 |
Sketch
Property Image
Land
| 1 | HS | HOMESITE | 0.2000 | 8712.00 | 0.00 | 0.00 | 1.00 | $180,000 | $0 |
Roll Value History
| 2026 | N/A | N/A | N/A | N/A | N/A |
| 2025 | $180,272 | $180,000 | $0 | $360,272 | $360,272 |
| 2024 | $182,875 | $170,000 | $0 | $352,875 | $352,875 |
| 2023 | $184,289 | $170,000 | $0 | $354,289 | $354,289 |
| 2022 | $169,283 | $160,000 | $0 | $329,283 | $329,283 |
| 2021 | $140,927 | $120,000 | $0 | $260,927 | $260,927 |
| 2020 | $137,902 | $100,000 | $0 | $237,902 | $67,929 |
| 2019 | $99,190 | $140,000 | $0 | $239,190 | $67,929 |
| 2018 | $99,548 | $125,000 | $0 | $224,548 | $67,929 |
| 2017 | $78,447 | $110,000 | $0 | $188,447 | $67,929 |
| 2016 | $79,823 | $90,000 | $0 | $169,823 | $67,929 |
| 2015 | $81,200 | $70,000 | $0 | $151,200 | $151,200 |
| 2014 | $82,576 | $55,000 | $0 | $137,576 | $137,576 |
| 2013 | $83,952 | $55,000 | $0 | $138,952 | $138,952 |
| 2012 | $85,329 | $60,000 | $0 | $145,329 | $145,329 |
| 2011 | $69,237 | $113,000 | $0 | $182,237 | $182,237 |
| 2010 | $79,523 | $113,000 | $0 | $192,523 | $192,523 |
| 2009 | $83,322 | $132,000 | $0 | $215,322 | $130,446 |
| 2008 | $84,880 | $138,488 | $0 | $223,368 | $130,446 |
| 2007 | $86,325 | $114,431 | $0 | $200,756 | $130,446 |
Deed and Sales History
| 1 | 10/04/2021 | WD | Warranty Deed | JACOBS, KAREN Y | DOTEGOWSKI, JOHN E | | | $375,000.00 | 50534 | 4531716 |
| 2 | 06/10/1999 | WD | Warranty Deed | SEC VETERANS AFFAIRS, | JACOBS, KAREN Y | | | $95,000.00 | 92284 | 99014164 |
| 3 | 03/03/1999 | WD | Warranty Deed | NORWEST MORTGAGE INC, | SEC VETERANS AFFAIRS, | | | $0.00 | 90784 | 99005535 |
| 4 | 03/01/1999 | TRUSTEED | Trustee's Deed | DORTCH, CARL W | NORWEST MORTGAGE INC, | | | $84,080.00 | 90749 | 99005371 |
| 5 | 07/01/1992 | WD | Warranty Deed | BROWN, BASIL | DORTCH, CARL W | | | $84,000.00 | 22906 | 92014111 |
| 6 | 01/01/1900 | OTHER | Other - Misc. Documents | Unknown | BROWN, BASIL | | | $0.00 | 0 | 0 |
Payout Agreement
| No payout information available.. |