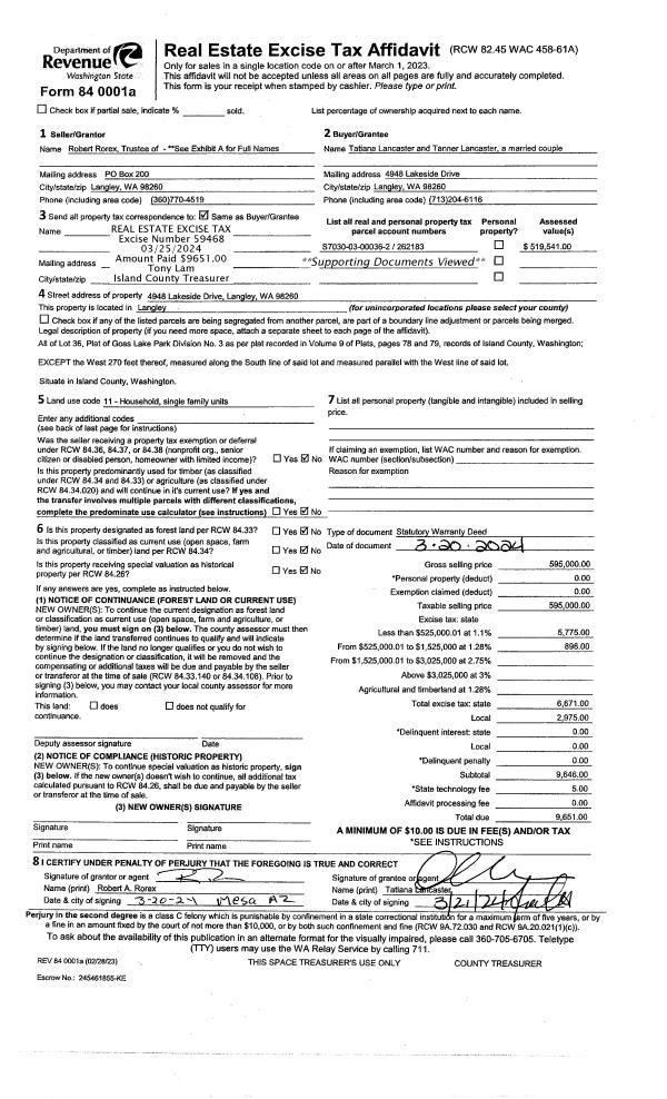
Property
Account |
| Property ID: | 19125 | Abbreviated Legal Description: | 8 FORD DC - BG 1081.08'E & 595.5'S OF NWCR FORD DLC E623' S296' TPB N296' E18' S148' E TO ML S ALG ML TP E OF TPB W TPB EX: BG 1081 .08'E & 595.5'S OF NWCR SD DC E623' S148' E213.94' TPB S6.42' E12.17' N6.42' W12 .17' TPB ALSO: BG 1081.08' E & 607.5'S O |
| Geographic ID: | R13214-372-1170 | Agent Code: | |
| Type: | Real | | |
| Tax Area: | 112 - APPRAISER-OH Schl Dist, outside OH, improved, greater than 1 acre | Land Use Code | 11 |
| Open Space: | N | DFL | N |
| Historic Property: | N | Remodel Property: | N |
| Multi-Family Redevelopment: | N | | |
| Township: | 32 | Section: | 14 |
| Range: | R1 |
Location |
| Address: | 1482 SCENIC HEIGHTS RD OAK HARBOR, WA 98277 | Mapsco: | |
| Neighborhood: | Cycle 1 | Map ID: | 123 |
| Neighborhood CD: | 1 |
Owner |
| Name: | POOR, RANDALL WILLIAM | Owner ID: | 268544 |
| Mailing Address: | CATHRYN ANNE COLLIER 1482 SCENIC HEIGHTS RD OAK HARBOR, WA 98277 | % Ownership: | 100.0000000000% |
| | | Exemptions: | |
Taxes and Assessment Details
Values
| (+) Improvement Homesite Value: | + | $0 | |
| (+) Improvement Non-Homesite Value: | + | $518,510 | |
| (+) Land Homesite Value: | + | $0 | |
| (+) Land Non-Homesite Value: | + | $550,000 | |
| (+) Curr Use (HS): | + | $0 | $0 |
| (+) Curr Use (NHS): | + | $0 | $0 |
| | | -------------------------- | |
| (=) Market Value: | = | $1,068,510 | |
| (–) Productivity Loss: | – | $0 | |
| | | -------------------------- | |
| (=) Subtotal: | = | $1,068,510 | |
| (+) Senior Appraised Value: | + | $0 | |
| (+) Non-Senior Appraised Value: | + | $1,068,510 | |
| | | -------------------------- | |
| (=) Total Appraised Value: | = | $1,068,510 | |
| (–) Senior Exemption Loss: | – | $0 | |
| (–) Exemption Loss: | – | $0 | |
| | | -------------------------- | |
| (=) Taxable Value: | = | $1,068,510 | |
Taxing Jurisdiction
| Owner: | POOR, RANDALL WILLIAM | | |
| % Ownership: | 100.0000000000% | | |
| Total Value: | $1,068,510 | | |
| Tax Area: | 112 - APPRAISER-OH Schl Dist, outside OH, improved, greater than 1 acre |
| CF | Conservation Futures | 0.0316035091 | $1,068,510 | $1,068,510 | $33.77 | | |
| CEM1 | Cemetery #1 | 0.0040320932 | $1,068,510 | $1,068,510 | $4.31 | | |
| FIRE2 | Fire & Rescue Dist #2 N Whidbey GEN | 0.5475949600 | $1,068,510 | $1,068,510 | $585.11 | | |
| HOBOND | Hospital BOND | 0.1910887512 | $1,068,510 | $1,068,510 | $204.18 | | |
| HOGEN | Hospital GEN | 0.3902502903 | $1,068,510 | $1,068,510 | $416.99 | | |
| CE | County Current Expense | 0.3708482477 | $1,068,510 | $1,068,510 | $396.26 | | |
| CR | County Roads | 0.4584763726 | $1,068,510 | $1,068,510 | $489.89 | | |
| ISLANDEMS | Hospital GEN (EMS) | 0.5000000000 | $1,068,510 | $1,068,510 | $534.26 | | |
| LIB | Library Sno-Isle GEN | 0.3153421757 | $1,068,510 | $1,068,510 | $336.95 | | |
| NWHIDPRMT | P & R N Whidbey GEN | 0.2004466701 | $1,068,510 | $1,068,510 | $214.18 | | |
| SCH201MO | School 201 Enrichment | 1.8559231640 | $1,068,510 | $1,068,510 | $1,983.07 | | |
| ST | State School | 1.3035497053 | $1,068,510 | $1,068,510 | $1,392.86 | | |
| ST2 | State School Part 2 | 0.8169543533 | $1,068,510 | $1,068,510 | $872.92 | | |
| | Total Tax Rate: | 6.9861102925 | | | | | |
| | | | | Taxes w/Current Exemptions: | $7,464.75 | | |
| | | | | Taxes w/o Exemptions: | $7,464.75 | | |
Improvement / Building
| Improvement #1: | RESIDENTIAL | State Code: | Y | 3464.0 sqft | Value: | $518,510 |
| Bathrooms: | 3 | Bedrooms: | 3 | | Ceiling: | DRYWALL PAINTED | Cooling: | HEAT PUMP/CONV/V | | Exterior Wall/Cover: | WOOD SIDING | Floor Covering: | HARDWOOD/CARP 60-40 | | Floor Structure: | WOOD W/SUBFLOOR | Foundation: | CONCRETE | | Interior Finish: | DRYWALL PAINT | Plumbing Fixture Cnt: | 13 | | Roof Slope: | 5" IN 12" | Roof Structure/Cover: | CJ ASPHALT |
|
| | Type | Description | Class CD | Sub Class CD | Year Built | Area |
| | BAS | BASE/MAIN FLOOR | 4 | 0 | 1965 | 2114.0 |
| | OP1 | OPEN PORCH SLAB | 4 | 0 | 1965 | 717.5 |
| | OCP | OPEN CARPORT | 4 | 0 | 1965 | 609.0 |
| | UPS | UPPER STORY | 4 | 0 | 1965 | 1350.0 |
| | UTY | STORAGE/UTILITY | 4 | 0 | 1965 | 476.0 |
| | OP4 | OPEN PORCH W/CEILING-ROOF | 4 | 0 | 1965 | 480.0 |
Sketch
Property Image
Land
| 1 | HB | HIGH BLUFF | 1.7800 | 77536.80 | 148.00 | 0.00 | 1.00 | $550,000 | $0 |
Roll Value History
| 2026 | N/A | N/A | N/A | N/A | N/A |
| 2025 | $518,510 | $550,000 | $0 | $1,068,510 | $1,068,510 |
| 2024 | $525,587 | $525,000 | $0 | $1,050,587 | $1,050,587 |
| 2023 | $493,061 | $525,000 | $0 | $1,018,061 | $1,018,061 |
| 2022 | $452,932 | $500,000 | $0 | $952,932 | $952,932 |
| 2021 | $399,446 | $300,000 | $0 | $699,446 | $699,446 |
| 2020 | $391,182 | $300,000 | $0 | $691,182 | $691,182 |
| 2019 | $317,927 | $400,000 | $0 | $717,927 | $717,927 |
| 2018 | $319,013 | $350,000 | $0 | $669,013 | $669,013 |
| 2017 | $294,928 | $350,000 | $0 | $644,928 | $644,928 |
| 2016 | $299,255 | $350,000 | $0 | $649,255 | $649,255 |
| 2015 | $303,583 | $350,000 | $0 | $653,583 | $653,583 |
| 2014 | $280,256 | $400,000 | $0 | $680,256 | $680,256 |
| 2013 | $284,380 | $350,124 | $0 | $634,504 | $634,504 |
| 2012 | $288,504 | $350,124 | $0 | $638,628 | $638,628 |
| 2011 | $313,054 | $350,124 | $0 | $663,178 | $663,178 |
| 2010 | $333,841 | $350,124 | $0 | $683,965 | $683,965 |
| 2009 | $347,315 | $437,655 | $0 | $784,970 | $784,970 |
| 2008 | $351,502 | $493,257 | $0 | $844,759 | $844,759 |
| 2007 | $356,438 | $493,257 | $0 | $849,695 | $849,695 |
Deed and Sales History
| 1 | 11/13/2014 | WD | Warranty Deed | POTTER TRUSTEE, BEVERLY J | POOR, RANDALL WILLIAM | | | $630,000.00 | 17615 | 4368709 |
| 2 | 02/09/2013 | TRUSTEED | Trustee's Deed | POTTER, EDWARD | POTTER TRUSTEE, BEVERLY J | | | $0.00 | 10391 | 4333338 |
| 3 | 04/25/2012 | CCOMPROP | Create Community Property | POTTER, BEVERLY J | POTTER, EDWARD | | | $0.00 | 7543 | 4314609 |
| 4 | 03/30/2004 | 5 | DNU - Marriage License/Name Change | POTTER, BEVERLY J | POTTER, BEVERLY J | | | $0.00 | 41296 | 4096031 |
| 5 | 06/01/1996 | OTHER | Other - Misc. Documents | ESTERLY, BEVERLY J | POTTER, BEVERLY J | | | $0.00 | 66998 | 0 |
| 6 | 06/01/1990 | QCD | Quit Claim Deed | ESTERLY, BEVERLY J | ESTERLY, BEVERLY J | | | $0.00 | 3214 | 90010389 |
| 7 | 03/01/1988 | DECREE | Divorce Decree/Legal Separation | ESTERLY, DANIEL M | ESTERLY, BEVERLY J | | | $0.00 | 80892 | 88003492 |
| 8 | 02/01/1965 | CD | DNU - Correction Deed | ESTERLY, ALICE | ESTERLY, DANIEL M | | | $0.00 | 18096 | 169723 |
| 9 | 01/01/1900 | OTHER | Other - Misc. Documents | Unknown | ESTERLY, ALICE | | | $0.00 | 0 | 0 |
Payout Agreement
| No payout information available.. |