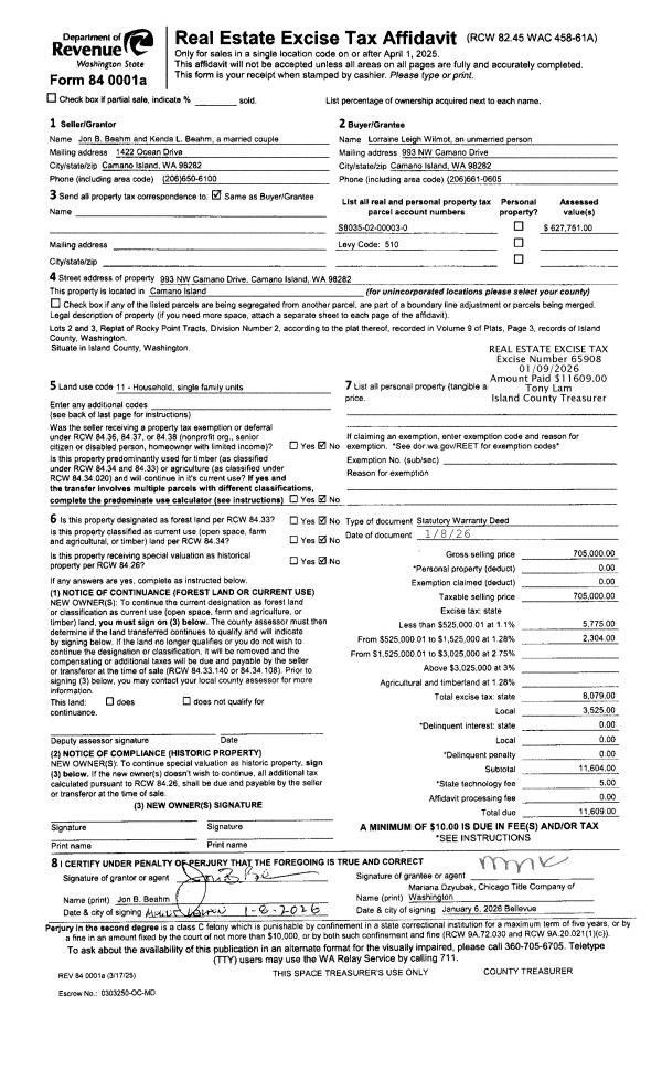
Property
Account |
| Property ID: | 191296 | Abbreviated Legal Description: | BEVERLY BCH 1 LOT 50 INCL INT IN RESERVE EX: BG NWCR SD LOT 50 E ALG NLN SD LOT 50 38.28' S2*W10.68' W28.22' TO WLN SD LOT 50 N42*W ALG WLN SD LOT 50 14.36' TPB TGW PT LOT 51 SD PLAT DESC: BG NWCR SD LOT 50 E38.28' TPB N2*E6.07' S89*E62' S2*W5.39' TO N |
| Geographic ID: | S6135-00-00050-0 | Agent Code: | |
| Type: | Real | | |
| Tax Area: | 710 - APPRAISER-S Whid Schl Dist, outside Langley, improved & 1 acre or less | Land Use Code | 11 |
| Open Space: | N | DFL | N |
| Historic Property: | N | Remodel Property: | N |
| Multi-Family Redevelopment: | N | | |
| Township: | | Section: | |
| Range: | |
Location |
| Address: | | Mapsco: | |
| Neighborhood: | Cycle 3 | Map ID: | 417 |
| Neighborhood CD: | 3 |
Owner |
| Name: | JEROME, MORRIS | Owner ID: | 256095 |
| Mailing Address: | ANITA JEROME 4118 BEACH AVE DR FREELAND, WA 98249 | % Ownership: | 100.0000000000% |
| | | Exemptions: | |
Taxes and Assessment Details
Values
| (+) Improvement Homesite Value: | + | $0 | |
| (+) Improvement Non-Homesite Value: | + | $20,000 | |
| (+) Land Homesite Value: | + | $0 | |
| (+) Land Non-Homesite Value: | + | $12,000 | |
| (+) Curr Use (HS): | + | $0 | $0 |
| (+) Curr Use (NHS): | + | $0 | $0 |
| | | -------------------------- | |
| (=) Market Value: | = | $32,000 | |
| (–) Productivity Loss: | – | $0 | |
| | | -------------------------- | |
| (=) Subtotal: | = | $32,000 | |
| (+) Senior Appraised Value: | + | $0 | |
| (+) Non-Senior Appraised Value: | + | $32,000 | |
| | | -------------------------- | |
| (=) Total Appraised Value: | = | $32,000 | |
| (–) Senior Exemption Loss: | – | $0 | |
| (–) Exemption Loss: | – | $0 | |
| | | -------------------------- | |
| (=) Taxable Value: | = | $32,000 | |
Taxing Jurisdiction
| Owner: | JEROME, MORRIS | | |
| % Ownership: | 100.0000000000% | | |
| Total Value: | $32,000 | | |
| Tax Area: | 710 - APPRAISER-S Whid Schl Dist, outside Langley, improved & 1 acre or less |
| CF | Conservation Futures | 0.0316035091 | $32,000 | $32,000 | $1.01 | | |
| FIRE3 | Fire & Rescue Dist #3 S Whidbey GEN | 1.2004855531 | $32,000 | $32,000 | $38.42 | | |
| HOBOND | Hospital BOND | 0.1910887512 | $32,000 | $32,000 | $6.11 | | |
| HOGEN | Hospital GEN | 0.3902502903 | $32,000 | $32,000 | $12.49 | | |
| CE | County Current Expense | 0.3708482477 | $32,000 | $32,000 | $11.87 | | |
| CR | County Roads | 0.4584763726 | $32,000 | $32,000 | $14.67 | | |
| ISLANDEMS | Hospital GEN (EMS) | 0.5000000000 | $32,000 | $32,000 | $16.00 | | |
| LIB | Library Sno-Isle GEN | 0.3153421757 | $32,000 | $32,000 | $10.09 | | |
| PORTWHID | Port of S Whidbey GEN | 0.1094540357 | $32,000 | $32,000 | $3.50 | | |
| SCH206BOND | School 206 BOND | 0.3161759235 | $32,000 | $32,000 | $10.12 | | |
| SCH206MO | School 206 Enrichment | 0.4547169547 | $32,000 | $32,000 | $14.55 | | |
| ST | State School | 1.3035497053 | $32,000 | $32,000 | $41.71 | | |
| ST2 | State School Part 2 | 0.8169543533 | $32,000 | $32,000 | $26.14 | | |
| SWHIDPRBD | P & R S Whidbey BOND | 0.0152817568 | $32,000 | $32,000 | $0.49 | | |
| SWHIDPRBD2 | P & R S Whidbey BOND2 | 0.0138911264 | $32,000 | $32,000 | $0.44 | | |
| SWHIDPRMT | P & R S Whidbey GEN | 0.2053334452 | $32,000 | $32,000 | $6.57 | | |
| | Total Tax Rate: | 6.6934522006 | | | | | |
| | | | | Taxes w/Current Exemptions: | $214.18 | | |
| | | | | Taxes w/o Exemptions: | $214.18 | | |
Improvement / Building
| Improvement #1: | MISC | State Code: | Y | 0.0 sqft | Value: | $20,000 |
Sketch
| No sketches available for this property. |
Property Image
Land
| 1 | 12 | SQ (00000-06000) | 0.1200 | 5227.20 | 0.00 | 0.00 | 1.00 | $12,000 | $0 |
Roll Value History
| 2026 | N/A | N/A | N/A | N/A | N/A |
| 2025 | $20,000 | $12,000 | $0 | $32,000 | $32,000 |
| 2024 | $20,000 | $12,000 | $0 | $32,000 | $32,000 |
| 2023 | $20,000 | $9,000 | $0 | $29,000 | $29,000 |
| 2022 | $20,000 | $9,000 | $0 | $29,000 | $29,000 |
| 2021 | $20,000 | $7,000 | $0 | $27,000 | $27,000 |
| 2020 | $20,000 | $7,000 | $0 | $27,000 | $27,000 |
| 2019 | $20,000 | $7,000 | $0 | $27,000 | $27,000 |
| 2018 | $20,000 | $7,000 | $0 | $27,000 | $27,000 |
| 2017 | $20,000 | $5,000 | $0 | $25,000 | $25,000 |
| 2016 | $20,000 | $5,000 | $0 | $25,000 | $25,000 |
| 2015 | $20,000 | $5,000 | $0 | $25,000 | $25,000 |
| 2014 | $20,000 | $5,000 | $0 | $25,000 | $25,000 |
| 2013 | $17,523 | $5,000 | $0 | $22,523 | $22,523 |
| 2012 | $17,523 | $8,262 | $0 | $25,785 | $25,785 |
| 2011 | $17,523 | $9,720 | $0 | $27,243 | $27,243 |
| 2010 | $17,691 | $10,800 | $0 | $28,491 | $28,491 |
| 2009 | $18,045 | $7,000 | $0 | $25,045 | $25,045 |
| 2008 | $18,401 | $9,044 | $0 | $27,445 | $27,445 |
| 2007 | $18,749 | $9,044 | $0 | $27,793 | $27,793 |
Deed and Sales History
| 1 | 12/29/2010 | WD | Warranty Deed | WASHINGTON TRUST BANK TRUSTEE | JEROME, MORRIS W | | | $53,000.00 | 3251 | 4287837 |
| 2 | 03/20/2009 | PRD | Personal Representatives Deed | BUZARD, LYMAN E | WASHINGTON TRUST BANK, | | | $0.00 | 90829 | 4249008 |
| 3 | 06/01/1988 | PRD | Personal Representatives Deed | BUZARD, LYMAN E | BUZARD, LYMAN E | | | $0.00 | 81779 | 88006629 |
| 4 | 01/01/1983 | EZ | Easement | BUZARD, LYMAN E | BUZARD, LYMAN E | | | $0.00 | 60937 | 404568 |
| 5 | 01/01/1900 | OTHER | Other - Misc. Documents | Unknown | BUZARD, LYMAN E | | | $0.00 | 0 | 0 |
Payout Agreement
| No payout information available.. |