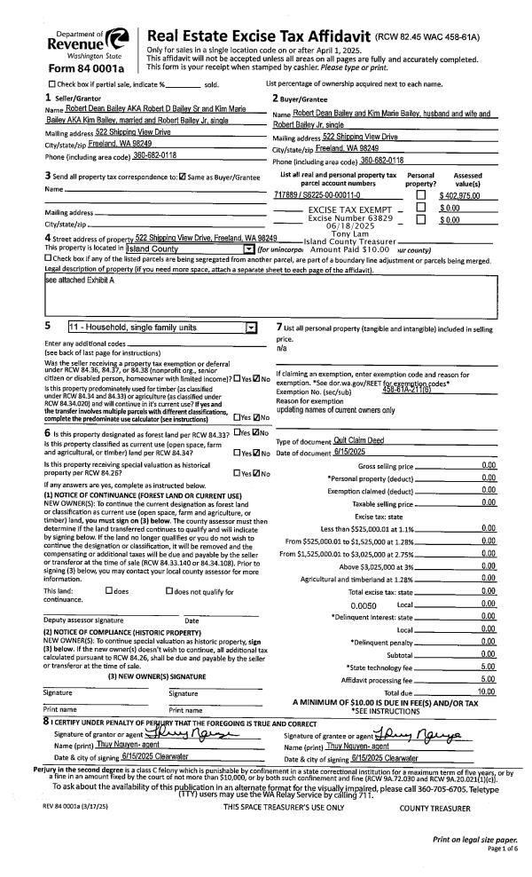
Property
Account |
| Property ID: | 191321 | Abbreviated Legal Description: | BEVERLY BCH 1 LOT 58 |
| Geographic ID: | S6135-00-00058-0 | Agent Code: | |
| Type: | Real | | |
| Tax Area: | 710 - APPRAISER-S Whid Schl Dist, outside Langley, improved & 1 acre or less | Land Use Code | 11 |
| Open Space: | N | DFL | N |
| Historic Property: | N | Remodel Property: | N |
| Multi-Family Redevelopment: | N | | |
| Township: | | Section: | |
| Range: | |
Location |
| Address: | 4080 ALDER AVE FREELAND, WA 98249 | Mapsco: | |
| Neighborhood: | Cycle 3 | Map ID: | 417 |
| Neighborhood CD: | 3 |
Owner |
| Name: | BAKER, REUBEN | Owner ID: | 315019 |
| Mailing Address: | JENNIFER BAKER 3154 232ND ST SOUTHWEST BRIER, WA 98036 | % Ownership: | 100.0000000000% |
| | | Exemptions: | |
Taxes and Assessment Details
Values
| (+) Improvement Homesite Value: | + | $0 | |
| (+) Improvement Non-Homesite Value: | + | $71,560 | |
| (+) Land Homesite Value: | + | $0 | |
| (+) Land Non-Homesite Value: | + | $270,000 | |
| (+) Curr Use (HS): | + | $0 | $0 |
| (+) Curr Use (NHS): | + | $0 | $0 |
| | | -------------------------- | |
| (=) Market Value: | = | $341,560 | |
| (–) Productivity Loss: | – | $0 | |
| | | -------------------------- | |
| (=) Subtotal: | = | $341,560 | |
| (+) Senior Appraised Value: | + | $0 | |
| (+) Non-Senior Appraised Value: | + | $341,560 | |
| | | -------------------------- | |
| (=) Total Appraised Value: | = | $341,560 | |
| (–) Senior Exemption Loss: | – | $0 | |
| (–) Exemption Loss: | – | $0 | |
| | | -------------------------- | |
| (=) Taxable Value: | = | $341,560 | |
Taxing Jurisdiction
| Owner: | BAKER, REUBEN | | |
| % Ownership: | 100.0000000000% | | |
| Total Value: | $341,560 | | |
| Tax Area: | 710 - APPRAISER-S Whid Schl Dist, outside Langley, improved & 1 acre or less |
| CF | Conservation Futures | 0.0316035091 | $341,560 | $341,560 | $10.79 | | |
| FIRE3 | Fire & Rescue Dist #3 S Whidbey GEN | 1.2004855531 | $341,560 | $341,560 | $410.04 | | |
| HOBOND | Hospital BOND | 0.1910887512 | $341,560 | $341,560 | $65.27 | | |
| HOGEN | Hospital GEN | 0.3902502903 | $341,560 | $341,560 | $133.29 | | |
| CE | County Current Expense | 0.3708482477 | $341,560 | $341,560 | $126.67 | | |
| CR | County Roads | 0.4584763726 | $341,560 | $341,560 | $156.60 | | |
| ISLANDEMS | Hospital GEN (EMS) | 0.5000000000 | $341,560 | $341,560 | $170.78 | | |
| LIB | Library Sno-Isle GEN | 0.3153421757 | $341,560 | $341,560 | $107.71 | | |
| PORTWHID | Port of S Whidbey GEN | 0.1094540357 | $341,560 | $341,560 | $37.39 | | |
| SCH206BOND | School 206 BOND | 0.3161759235 | $341,560 | $341,560 | $107.99 | | |
| SCH206MO | School 206 Enrichment | 0.4547169547 | $341,560 | $341,560 | $155.31 | | |
| ST | State School | 1.3035497053 | $341,560 | $341,560 | $445.24 | | |
| ST2 | State School Part 2 | 0.8169543533 | $341,560 | $341,560 | $279.04 | | |
| SWHIDPRBD | P & R S Whidbey BOND | 0.0152817568 | $341,560 | $341,560 | $5.22 | | |
| SWHIDPRBD2 | P & R S Whidbey BOND2 | 0.0138911264 | $341,560 | $341,560 | $4.74 | | |
| SWHIDPRMT | P & R S Whidbey GEN | 0.2053334452 | $341,560 | $341,560 | $70.13 | | |
| | Total Tax Rate: | 6.6934522006 | | | | | |
| | | | | Taxes w/Current Exemptions: | $2,286.21 | | |
| | | | | Taxes w/o Exemptions: | $2,286.21 | | |
Improvement / Building
| Improvement #1: | RESIDENTIAL | State Code: | Y | 500.0 sqft | Value: | $71,560 |
| Bathrooms: | 1 | Ceiling: | PLASTER PAINTED | | Cooling: | (NONE) | Exterior Wall/Cover: | WOOD SIDING | | Floor Covering: | VINYL 100% | Floor Structure: | WOOD W/SUBFLOOR | | Foundation: | WOOD BLOCKS | Heating: | BASEBOARD ELECTRIC | | Interior Finish: | DRYWALL PAINT | Plumbing Fixture Cnt: | 6 | | Roof Slope: | 3" IN 12" | Roof Structure/Cover: | CJ COMP ROLL |
|
| | Type | Description | Class CD | Sub Class CD | Year Built | Area |
| | BAS | BASE/MAIN FLOOR | 2 | 0 | 1983 | 420.0 |
| | OWP | OPEN WOOD PORCH W/STEPS | 2 | 0 | 1983 | 72.0 |
| | OWP | OPEN WOOD PORCH W/STEPS | 2 | 0 | 1983 | 323.5 |
| | LOF | LOFT | 2 | 0 | 1983 | 80.0 |
Sketch
Property Image
Land
| 1 | 14 | SQ (08001-12000) | 0.0000 | 0.00 | 0.00 | 0.00 | 1.00 | $270,000 | $0 |
Roll Value History
| 2026 | N/A | N/A | N/A | N/A | N/A |
| 2025 | $71,560 | $270,000 | $0 | $341,560 | $341,560 |
| 2024 | $74,239 | $300,000 | $0 | $374,239 | $374,239 |
| 2023 | $75,394 | $300,000 | $0 | $375,394 | $375,394 |
| 2022 | $69,316 | $240,000 | $0 | $309,316 | $309,316 |
| 2021 | $61,185 | $220,000 | $0 | $281,185 | $281,185 |
| 2020 | $59,447 | $170,000 | $0 | $229,447 | $229,447 |
| 2019 | $42,061 | $200,000 | $0 | $242,061 | $242,061 |
| 2018 | $42,213 | $150,000 | $0 | $192,213 | $192,213 |
| 2017 | $42,517 | $120,000 | $0 | $162,517 | $162,517 |
| 2016 | $40,566 | $90,000 | $0 | $130,566 | $130,566 |
| 2015 | $41,137 | $65,000 | $0 | $106,137 | $106,137 |
| 2014 | $41,708 | $65,000 | $0 | $106,708 | $106,708 |
| 2013 | $30,578 | $65,000 | $0 | $95,578 | $95,578 |
| 2012 | $30,578 | $68,850 | $0 | $99,428 | $99,428 |
| 2011 | $30,578 | $81,000 | $0 | $111,578 | $111,578 |
| 2010 | $31,369 | $90,000 | $0 | $121,369 | $121,369 |
| 2009 | $32,097 | $140,000 | $0 | $172,097 | $172,097 |
| 2008 | $33,120 | $140,000 | $0 | $173,120 | $173,120 |
| 2007 | $31,820 | $140,000 | $0 | $171,820 | $171,820 |
Deed and Sales History
| 1 | 12/28/2024 | WD | Warranty Deed | JOHNSON, DEANNA R | BAKER, REUBEN | | | $0.00 | 62220 | 4580870 |
| 2 | 03/04/2005 | 5 | DNU - Marriage License/Name Change | DRAKE, DEANNA R | JOHNSON, DEANNA R | | | $0.00 | 70599 | 0 |
| 3 | 07/08/2004 | DECREE | Divorce Decree/Legal Separation | DRAKE, DEANNA R | DRAKE, DEANNA R | | | $0.00 | 45225 | 4117281 |
| 4 | 05/01/1991 | WD | Warranty Deed | ARNOLD, JANICE | DRAKE, DEANNA R | | | $29,000.00 | 11577 | 91006667 |
| 5 | 04/01/1986 | WD | Warranty Deed | GOSHAN, JON M | ARNOLD, JANICE | | | $13,000.00 | 61098 | 86005149 |
| 6 | 01/01/1985 | WD | Warranty Deed | GILFILEN, L R | GOSHAN, JON M | | | $11,600.00 | 50017 | 85000075 |
| 7 | 01/01/1900 | OTHER | Other - Misc. Documents | Unknown | GILFILEN, L R | | | $0.00 | 0 | 0 |
Payout Agreement
| No payout information available.. |