Property
Account |
| Property ID: | 191349 | Abbreviated Legal Description: | BEVERLY BCH 1 LOT 60 INCL INT IN RESERVE |
| Geographic ID: | S6135-00-00060-0 | Agent Code: | |
| Type: | Real | | |
| Tax Area: | 710 - APPRAISER-S Whid Schl Dist, outside Langley, improved & 1 acre or less | Land Use Code | 11 |
| Open Space: | N | DFL | N |
| Historic Property: | N | Remodel Property: | N |
| Multi-Family Redevelopment: | N | | |
| Township: | | Section: | |
| Range: | |
Location |
| Address: | ALDER AVE FREELAND, WA 98249 | Mapsco: | |
| Neighborhood: | Cycle 3 | Map ID: | 417 |
| Neighborhood CD: | 3 |
Owner |
| Name: | GRACE, RICHARD H | Owner ID: | 95646 |
| Mailing Address: | 8802 38TH AVE NE SEATTLE, WA 98115-3703 | % Ownership: | 100.0000000000% |
| | | Exemptions: | |
Taxes and Assessment Details
Values
| (+) Improvement Homesite Value: | + | $0 | |
| (+) Improvement Non-Homesite Value: | + | $130,712 | |
| (+) Land Homesite Value: | + | $0 | |
| (+) Land Non-Homesite Value: | + | $270,000 | |
| (+) Curr Use (HS): | + | $0 | $0 |
| (+) Curr Use (NHS): | + | $0 | $0 |
| | | -------------------------- | |
| (=) Market Value: | = | $400,712 | |
| (–) Productivity Loss: | – | $0 | |
| | | -------------------------- | |
| (=) Subtotal: | = | $400,712 | |
| (+) Senior Appraised Value: | + | $0 | |
| (+) Non-Senior Appraised Value: | + | $400,712 | |
| | | -------------------------- | |
| (=) Total Appraised Value: | = | $400,712 | |
| (–) Senior Exemption Loss: | – | $0 | |
| (–) Exemption Loss: | – | $0 | |
| | | -------------------------- | |
| (=) Taxable Value: | = | $400,712 | |
Taxing Jurisdiction
| Owner: | GRACE, RICHARD H | | |
| % Ownership: | 100.0000000000% | | |
| Total Value: | $400,712 | | |
| Tax Area: | 710 - APPRAISER-S Whid Schl Dist, outside Langley, improved & 1 acre or less |
| CF | Conservation Futures | 0.0316035091 | $400,712 | $400,712 | $12.66 | | |
| FIRE3 | Fire & Rescue Dist #3 S Whidbey GEN | 1.2004855531 | $400,712 | $400,712 | $481.05 | | |
| HOBOND | Hospital BOND | 0.1910887512 | $400,712 | $400,712 | $76.57 | | |
| HOGEN | Hospital GEN | 0.3902502903 | $400,712 | $400,712 | $156.38 | | |
| CE | County Current Expense | 0.3708482477 | $400,712 | $400,712 | $148.60 | | |
| CR | County Roads | 0.4584763726 | $400,712 | $400,712 | $183.72 | | |
| ISLANDEMS | Hospital GEN (EMS) | 0.5000000000 | $400,712 | $400,712 | $200.36 | | |
| LIB | Library Sno-Isle GEN | 0.3153421757 | $400,712 | $400,712 | $126.36 | | |
| PORTWHID | Port of S Whidbey GEN | 0.1094540357 | $400,712 | $400,712 | $43.86 | | |
| SCH206BOND | School 206 BOND | 0.3161759235 | $400,712 | $400,712 | $126.70 | | |
| SCH206MO | School 206 Enrichment | 0.4547169547 | $400,712 | $400,712 | $182.21 | | |
| ST | State School | 1.3035497053 | $400,712 | $400,712 | $522.35 | | |
| ST2 | State School Part 2 | 0.8169543533 | $400,712 | $400,712 | $327.36 | | |
| SWHIDPRBD | P & R S Whidbey BOND | 0.0152817568 | $400,712 | $400,712 | $6.12 | | |
| SWHIDPRBD2 | P & R S Whidbey BOND2 | 0.0138911264 | $400,712 | $400,712 | $5.57 | | |
| SWHIDPRMT | P & R S Whidbey GEN | 0.2053334452 | $400,712 | $400,712 | $82.28 | | |
| | Total Tax Rate: | 6.6934522006 | | | | | |
| | | | | Taxes w/Current Exemptions: | $2,682.15 | | |
| | | | | Taxes w/o Exemptions: | $2,682.15 | | |
Improvement / Building
| Improvement #1: | RESIDENTIAL | State Code: | Y | 960.0 sqft | Value: | $130,712 |
| Bathrooms: | 1 | Bedrooms: | 2 | | Ceiling: | TONGUE & GROOVE | Exterior Wall/Cover: | SHINGLE | | Floor Covering: | VINYL 100% | Floor Structure: | WOOD W/SUBFLOOR | | Foundation: | CONCRETE | Heating: | BASEBOARD ELECTRIC | | Interior Finish: | DRYWALL PAINT | Plumbing Fixture Cnt: | 5 | | Roof Slope: | 12" IN 12" | Roof Structure/Cover: | CJ ASPHALT |
|
| | Type | Description | Class CD | Sub Class CD | Year Built | Area |
| | BAS | BASE/MAIN FLOOR | 3 | 0 | 1972 | 672.0 |
| | OWP | OPEN WOOD PORCH W/STEPS | 3 | 0 | 1972 | 630.0 |
| | LOF | LOFT | 3 | 0 | 1972 | 288.0 |
Sketch
Property Image
Land
| 1 | 13 | SQ (06001-08000) | 0.0000 | 0.00 | 0.00 | 0.00 | 1.00 | $270,000 | $0 |
Roll Value History
| 2026 | N/A | N/A | N/A | N/A | N/A |
| 2025 | $130,712 | $270,000 | $0 | $400,712 | $400,712 |
| 2024 | $135,238 | $300,000 | $0 | $435,238 | $435,238 |
| 2023 | $137,110 | $300,000 | $0 | $437,110 | $437,110 |
| 2022 | $125,847 | $240,000 | $0 | $365,847 | $365,847 |
| 2021 | $110,906 | $220,000 | $0 | $330,906 | $330,906 |
| 2020 | $108,346 | $170,000 | $0 | $278,346 | $278,346 |
| 2019 | $69,705 | $200,000 | $0 | $269,705 | $269,705 |
| 2018 | $69,956 | $150,000 | $0 | $219,956 | $219,956 |
| 2017 | $65,801 | $120,000 | $0 | $185,801 | $185,801 |
| 2016 | $66,742 | $90,000 | $0 | $156,742 | $156,742 |
| 2015 | $67,681 | $65,000 | $0 | $132,681 | $132,681 |
| 2014 | $68,622 | $65,000 | $0 | $133,622 | $133,622 |
| 2013 | $65,724 | $65,000 | $0 | $130,724 | $130,724 |
| 2012 | $66,663 | $68,850 | $0 | $135,513 | $135,513 |
| 2011 | $67,603 | $81,000 | $0 | $148,603 | $148,603 |
| 2010 | $75,469 | $90,000 | $0 | $165,469 | $165,469 |
| 2009 | $78,691 | $140,000 | $0 | $218,691 | $218,691 |
| 2008 | $79,692 | $140,000 | $0 | $219,692 | $219,692 |
| 2007 | $72,391 | $140,000 | $0 | $212,391 | $212,391 |
Deed and Sales History
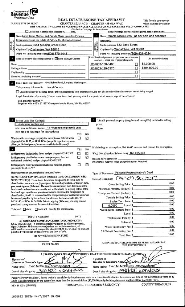
| 1 | 03/30/2017 | PRD | Personal Representatives Deed | GRACE, RICHARD H | GRACE, RICHARD H | | | $0.00 | 28750 | 4420247 |
Payout Agreement
| No payout information available.. |