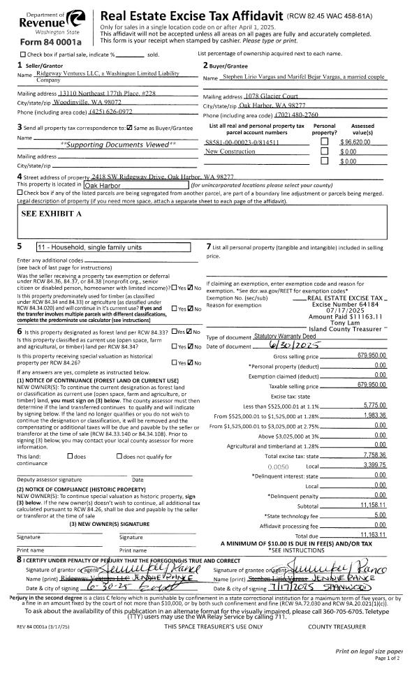
Property
Account |
| Property ID: | 1919 | Abbreviated Legal Description: | 12 - IN NE NE: BG NECR SEC 1 S1*W555.90' TPB S1*W273 .36' N88*W356.70' N1*E273 .36' S88*E356.7' TPB TGW & SUB EZ (TR 28 SP 75-32 AF#308735) |
| Geographic ID: | R13101-458-5020 | Agent Code: | |
| Type: | Real | | |
| Tax Area: | 312 - APPRAISER-Cpvl Schl Dist, outside Cpvl, improved, greater than 1 acre | Land Use Code | 11 |
| Open Space: | N | DFL | N |
| Historic Property: | N | Remodel Property: | N |
| Multi-Family Redevelopment: | N | | |
| Township: | 31 | Section: | 01 |
| Range: | R1 |
Location |
| Address: | 55 S PHEASANT RUN RD COUPEVILLE, WA 98239 | Mapsco: | |
| Neighborhood: | Cycle 2 | Map ID: | 20 |
| Neighborhood CD: | 2 |
Owner |
| Name: | JOHNSON, CLYDE J / SANDRA C | Owner ID: | 111109 |
| Mailing Address: | PO BOX 488 COUPEVILLE, WA 98239-0488 | % Ownership: | 100.0000000000% |
| | | Exemptions: | |
Taxes and Assessment Details
Values
| (+) Improvement Homesite Value: | + | $0 | |
| (+) Improvement Non-Homesite Value: | + | $159,910 | |
| (+) Land Homesite Value: | + | $0 | |
| (+) Land Non-Homesite Value: | + | $299,735 | |
| (+) Curr Use (HS): | + | $0 | $0 |
| (+) Curr Use (NHS): | + | $0 | $0 |
| | | -------------------------- | |
| (=) Market Value: | = | $459,645 | |
| (–) Productivity Loss: | – | $0 | |
| | | -------------------------- | |
| (=) Subtotal: | = | $459,645 | |
| (+) Senior Appraised Value: | + | $0 | |
| (+) Non-Senior Appraised Value: | + | $459,645 | |
| | | -------------------------- | |
| (=) Total Appraised Value: | = | $459,645 | |
| (–) Senior Exemption Loss: | – | $0 | |
| (–) Exemption Loss: | – | $0 | |
| | | -------------------------- | |
| (=) Taxable Value: | = | $459,645 | |
Taxing Jurisdiction
| Owner: | JOHNSON, CLYDE J / SANDRA C | | |
| % Ownership: | 100.0000000000% | | |
| Total Value: | $459,645 | | |
| Tax Area: | 312 - APPRAISER-Cpvl Schl Dist, outside Cpvl, improved, greater than 1 acre |
| CF | Conservation Futures | 0.0316035091 | $459,645 | $459,645 | $14.53 | | |
| CEM2 | Cemetery #2 | 0.0095056933 | $459,645 | $459,645 | $4.37 | | |
| FIRE5 | Fire & Rescue Dist #5 C Whidbey GEN | 1.2008080668 | $459,645 | $459,645 | $551.95 | | |
| FIRE5BOND | Fire & Rescue Dist #5 C Whidbey BOND | 0.1400090713 | $459,645 | $459,645 | $64.35 | | |
| HOBOND | Hospital BOND | 0.1910887512 | $459,645 | $459,645 | $87.83 | | |
| HOGEN | Hospital GEN | 0.3902502903 | $459,645 | $459,645 | $179.38 | | |
| CE | County Current Expense | 0.3708482477 | $459,645 | $459,645 | $170.46 | | |
| CR | County Roads | 0.4584763726 | $459,645 | $459,645 | $210.74 | | |
| ISLANDEMS | Hospital GEN (EMS) | 0.5000000000 | $459,645 | $459,645 | $229.82 | | |
| LIB | Library Sno-Isle GEN | 0.3153421757 | $459,645 | $459,645 | $144.95 | | |
| LIBCAP | Library Sno-Isle BOND (Cap Fac Imp Area) | 0.0543427938 | $459,645 | $459,645 | $24.98 | | |
| POCOUP | Port of Coupeville GEN | 0.1093371703 | $459,645 | $459,645 | $50.26 | | |
| POCOUPIDD | Port of Coupeville IDD | 0.3409740022 | $459,645 | $459,645 | $156.73 | | |
| COUPSDTECH | School 204 CP (TECH) | 0.7545480007 | $459,645 | $459,645 | $346.82 | | |
| SCH204MO | School 204 Enrichment | 0.6716186034 | $459,645 | $459,645 | $308.71 | | |
| ST | State School | 1.3035497053 | $459,645 | $459,645 | $599.17 | | |
| ST2 | State School Part 2 | 0.8169543533 | $459,645 | $459,645 | $375.51 | | |
| | Total Tax Rate: | 7.6592568070 | | | | | |
| | | | | Taxes w/Current Exemptions: | $3,520.56 | | |
| | | | | Taxes w/o Exemptions: | $3,520.56 | | |
Improvement / Building
| Improvement #1: | RESIDENTIAL | State Code: | Y | 1040.0 sqft | Value: | $159,910 |
| Bathrooms: | 1 | Bedrooms: | 2 | | Ceiling: | DRYWALL PAINTED | Exterior Wall/Cover: | STUCCO | | Floor Covering: | CERAMIC TILE/HWD 40/60 | Floor Structure: | WOOD W/SUBFLOOR | | Foundation: | CONCRETE | Heating: | BASEBOARD ELECTRIC | | Interior Finish: | DRYWALL PAINT | Plumbing Fixture Cnt: | 6 | | Roof Slope: | 4" IN 12" | Roof Structure/Cover: | CJ ASPHALT |
|
| | Type | Description | Class CD | Sub Class CD | Year Built | Area |
| | BAS | BASE/MAIN FLOOR | 3 | 0 | 1980 | 1040.0 |
| | OWP | OPEN WOOD PORCH W/STEPS | 3 | 0 | 1980 | 322.0 |
| | OWP | OPEN WOOD PORCH W/STEPS | 3 | 0 | 1980 | 48.0 |
| | OWC | OPEN WOOD PORCH W/STEPS/ROOF/C | 3 | 0 | 1980 | 54.0 |
Sketch
Property Image
Land
| 1 | 91 | UNDEVELOPED LAND-METES AND BOUNDS | 1.2300 | 53578.80 | 0.00 | 0.00 | 1.00 | $79,735 | $0 |
| 2 | HS | HOMESITE | 1.0000 | 43560.00 | 0.00 | 0.00 | 1.00 | $220,000 | $0 |
Roll Value History
| 2026 | N/A | N/A | N/A | N/A | N/A |
| 2025 | $159,910 | $299,735 | $0 | $459,645 | $459,645 |
| 2024 | $150,530 | $280,000 | $0 | $430,530 | $430,530 |
| 2023 | $152,705 | $260,000 | $0 | $412,705 | $412,705 |
| 2022 | $140,241 | $250,000 | $0 | $390,241 | $390,241 |
| 2021 | $123,663 | $160,000 | $0 | $283,663 | $283,663 |
| 2020 | $120,747 | $150,000 | $0 | $270,747 | $270,747 |
| 2019 | $86,168 | $180,000 | $0 | $266,168 | $266,168 |
| 2018 | $74,870 | $135,000 | $0 | $209,870 | $209,870 |
| 2017 | $75,432 | $125,000 | $0 | $200,432 | $200,432 |
| 2016 | $76,559 | $120,000 | $0 | $196,559 | $196,559 |
| 2015 | $77,684 | $95,000 | $0 | $172,684 | $172,684 |
| 2014 | $78,810 | $95,000 | $0 | $173,810 | $173,810 |
| 2013 | $79,936 | $95,000 | $0 | $174,936 | $174,936 |
| 2012 | $75,432 | $114,750 | $0 | $190,182 | $190,182 |
| 2011 | $76,559 | $135,000 | $0 | $211,559 | $211,559 |
| 2010 | $72,440 | $135,000 | $0 | $207,440 | $207,440 |
| 2009 | $75,745 | $150,000 | $0 | $225,745 | $225,745 |
| 2008 | $76,867 | $124,000 | $0 | $200,867 | $200,867 |
| 2007 | $77,989 | $124,000 | $0 | $201,989 | $201,989 |
Deed and Sales History
| 1 | 10/01/1995 | WD | Warranty Deed | AMTMANN, CAROLE A | JOHNSON, CLYDE J | | | $115,000.00 | 53658 | 95016855 |
| 2 | 07/01/1995 | QCD | Quit Claim Deed | FALING, WM R | AMTMANN, CAROLE A | | | $0.00 | 52654 | 95012193 |
| 3 | 01/01/1980 | CD | DNU - Correction Deed | Unknown | FALING, WM R | | | $0.00 | 286 | 364421 |
Payout Agreement
| No payout information available.. |