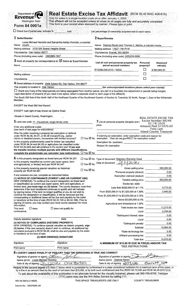
Property
Account |
| Property ID: | 191991 | Abbreviated Legal Description: | BEVERLY BCH 1 LOT 140 & S/2 LOT 139 INCL ADJ TIDES & INT IN RES |
| Geographic ID: | S6135-00-00140-0 | Agent Code: | |
| Type: | Real | | |
| Tax Area: | 710 - APPRAISER-S Whid Schl Dist, outside Langley, improved & 1 acre or less | Land Use Code | 11 |
| Open Space: | N | DFL | N |
| Historic Property: | N | Remodel Property: | N |
| Multi-Family Redevelopment: | N | | |
| Township: | | Section: | |
| Range: | |
Location |
| Address: | 4046 BEACH DR FREELAND, WA 98249 | Mapsco: | |
| Neighborhood: | Cycle 3 | Map ID: | 417 |
| Neighborhood CD: | 3 |
Owner |
| Name: | WEISZ TTEE, PAUL R | Owner ID: | 304830 |
| Mailing Address: | CHERYL L. WEISZ 4046 BEACH DRIVE FREELAND, WA 98249 | % Ownership: | 100.0000000000% |
| | | Exemptions: | |
Taxes and Assessment Details
Values
| (+) Improvement Homesite Value: | + | $0 | |
| (+) Improvement Non-Homesite Value: | + | $296,103 | |
| (+) Land Homesite Value: | + | $0 | |
| (+) Land Non-Homesite Value: | + | $650,750 | |
| (+) Curr Use (HS): | + | $0 | $0 |
| (+) Curr Use (NHS): | + | $0 | $0 |
| | | -------------------------- | |
| (=) Market Value: | = | $946,853 | |
| (–) Productivity Loss: | – | $0 | |
| | | -------------------------- | |
| (=) Subtotal: | = | $946,853 | |
| (+) Senior Appraised Value: | + | $0 | |
| (+) Non-Senior Appraised Value: | + | $946,853 | |
| | | -------------------------- | |
| (=) Total Appraised Value: | = | $946,853 | |
| (–) Senior Exemption Loss: | – | $0 | |
| (–) Exemption Loss: | – | $0 | |
| | | -------------------------- | |
| (=) Taxable Value: | = | $946,853 | |
Taxing Jurisdiction
| Owner: | WEISZ TTEE, PAUL R | | |
| % Ownership: | 100.0000000000% | | |
| Total Value: | $946,853 | | |
| Tax Area: | 710 - APPRAISER-S Whid Schl Dist, outside Langley, improved & 1 acre or less |
| CF | Conservation Futures | 0.0316035091 | $946,853 | $946,853 | $29.92 | | |
| FIRE3 | Fire & Rescue Dist #3 S Whidbey GEN | 1.2004855531 | $946,853 | $946,853 | $1,136.68 | | |
| HOBOND | Hospital BOND | 0.1910887512 | $946,853 | $946,853 | $180.93 | | |
| HOGEN | Hospital GEN | 0.3902502903 | $946,853 | $946,853 | $369.51 | | |
| CE | County Current Expense | 0.3708482477 | $946,853 | $946,853 | $351.14 | | |
| CR | County Roads | 0.4584763726 | $946,853 | $946,853 | $434.11 | | |
| ISLANDEMS | Hospital GEN (EMS) | 0.5000000000 | $946,853 | $946,853 | $473.43 | | |
| LIB | Library Sno-Isle GEN | 0.3153421757 | $946,853 | $946,853 | $298.58 | | |
| PORTWHID | Port of S Whidbey GEN | 0.1094540357 | $946,853 | $946,853 | $103.64 | | |
| SCH206BOND | School 206 BOND | 0.3161759235 | $946,853 | $946,853 | $299.37 | | |
| SCH206MO | School 206 Enrichment | 0.4547169547 | $946,853 | $946,853 | $430.55 | | |
| ST | State School | 1.3035497053 | $946,853 | $946,853 | $1,234.27 | | |
| ST2 | State School Part 2 | 0.8169543533 | $946,853 | $946,853 | $773.54 | | |
| SWHIDPRBD | P & R S Whidbey BOND | 0.0152817568 | $946,853 | $946,853 | $14.47 | | |
| SWHIDPRBD2 | P & R S Whidbey BOND2 | 0.0138911264 | $946,853 | $946,853 | $13.15 | | |
| SWHIDPRMT | P & R S Whidbey GEN | 0.2053334452 | $946,853 | $946,853 | $194.42 | | |
| | Total Tax Rate: | 6.6934522006 | | | | | |
| | | | | Taxes w/Current Exemptions: | $6,337.71 | | |
| | | | | Taxes w/o Exemptions: | $6,337.71 | | |
Improvement / Building
| Improvement #1: | RESIDENTIAL | State Code: | Y | 1452.0 sqft | Value: | $296,103 |
| Bathrooms: | 1.75 | Bedrooms: | 2 | | Ceiling: | DRYWALL PAINTED | Exterior Wall/Cover: | SHINGLE | | Floor Covering: | VINYL/HARDWOOD 20-80 | Floor Structure: | WOOD W/SUBFLOOR | | Foundation: | CONCRETE | Heating: | WALL HEAT ELECTRIC | | Interior Finish: | DRYWALL PAINT | Plumbing Fixture Cnt: | 11 | | Roof Slope: | 8" IN 12" | Roof Structure/Cover: | CJ ALUMINIUM HEAVY |
|
| | Type | Description | Class CD | Sub Class CD | Year Built | Area |
| | BAS | BASE/MAIN FLOOR | 3 | 0 | 1948 | 780.0 |
| | OWP | OPEN WOOD PORCH W/STEPS | 3 | 0 | 1948 | 84.0 |
| | OWP | OPEN WOOD PORCH W/STEPS | 3 | 0 | 1948 | 266.0 |
| | DWN | DOWNSTAIRS LIVING AREA | 3 | 0 | 1948 | 672.0 |
| | DGR | DETACHED GARAGE | 3 | 0 | 1948 | 466.3 |
| | OP4 | OPEN PORCH W/CEILING-ROOF | 3 | 0 | 1948 | 120.0 |
| | UTY | STORAGE/UTILITY | 3 | 0 | 1948 | 192.0 |
| | DGR | DETACHED GARAGE | 3 | 0 | 1948 | 252.0 |
Sketch
Property Image
Land
| 1 | MB | MEDIUM BANK | 0.3638 | 15847.13 | 75.00 | 0.00 | 1.00 | $650,000 | $0 |
| 2 | 55 | TIDES | 0.0000 | 0.00 | 75.00 | 0.00 | 1.00 | $750 | $0 |
Roll Value History
| 2026 | N/A | N/A | N/A | N/A | N/A |
| 2025 | $296,103 | $650,750 | $0 | $946,853 | $946,853 |
| 2024 | $300,037 | $650,750 | $0 | $950,787 | $950,787 |
| 2023 | $303,973 | $600,750 | $0 | $904,723 | $904,723 |
| 2022 | $278,815 | $500,750 | $0 | $779,565 | $779,565 |
| 2021 | $245,541 | $450,750 | $0 | $696,291 | $696,291 |
| 2020 | $239,173 | $450,750 | $0 | $689,923 | $689,923 |
| 2019 | $172,697 | $500,750 | $0 | $673,447 | $673,447 |
| 2018 | $173,228 | $500,750 | $0 | $673,978 | $673,978 |
| 2017 | $174,291 | $450,680 | $0 | $624,971 | $624,971 |
| 2016 | $176,415 | $450,680 | $0 | $627,095 | $627,095 |
| 2015 | $127,880 | $250,680 | $0 | $378,560 | $378,560 |
| 2014 | $129,707 | $250,680 | $0 | $380,387 | $380,387 |
| 2013 | $140,113 | $270,330 | $0 | $410,443 | $410,443 |
| 2012 | $141,894 | $270,330 | $0 | $412,224 | $412,224 |
| 2011 | $143,677 | $270,330 | $0 | $414,007 | $414,007 |
| 2010 | $153,161 | $300,360 | $0 | $453,521 | $453,521 |
| 2009 | $159,770 | $429,941 | $0 | $589,711 | $589,711 |
| 2008 | $162,484 | $429,941 | $0 | $592,425 | $592,425 |
| 2007 | $158,912 | $429,416 | $0 | $588,328 | $588,328 |
Deed and Sales History
| 1 | 06/16/2022 | QCD | Quit Claim Deed | WEISZ, PAUL RANDALL | WEISZ TTEE, PAUL R | | | $0.00 | 53541 | 4547076 |
| 2 | 07/24/2015 | WD | Warranty Deed | LANE, KAREN E | WEISZ, PAUL RANDALL | | | $707,000.00 | 20766 | 4383456 |
| 3 | 07/30/2014 | TRUSTEED | Trustee's Deed | HAMMEL TRUSTEE, SHARON | LANE, KAREN E | | | $0.00 | 16312 | 4363512 |
| 4 | 07/30/2014 | PRD | Personal Representatives Deed | HAMMEL JR, LLOYD G | HAMMEL TRUSTEE, SHARON | | | $0.00 | 16311 | 4363511 |
| 5 | 03/01/1996 | WD | Warranty Deed | AGNEW, ROBERT T | HAMMEL, LLOYD G | | | $339,500.00 | 61024 | 96005180 |
| 6 | 08/01/1993 | WD | Warranty Deed | BREZING, OTTO | AGNEW, ROBERT T | | | $225,000.00 | 33307 | 93017154 |
| 7 | 01/01/1900 | OTHER | Other - Misc. Documents | Unknown | BREZING, OTTO | | | $0.00 | 0 | 0 |
Payout Agreement
| No payout information available.. |