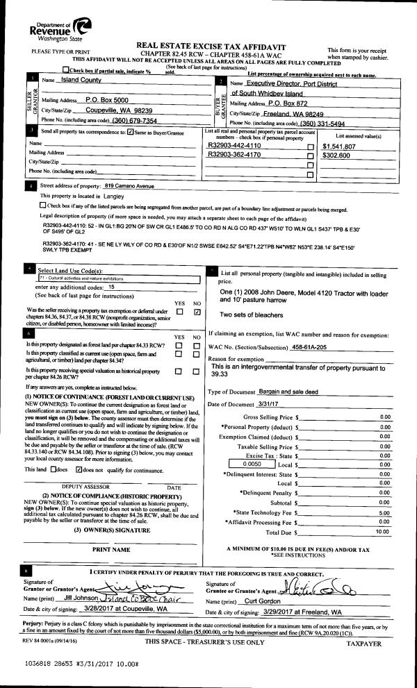
Property
Account |
| Property ID: | 192017 | Abbreviated Legal Description: | BEVERLY BCH 1 LOT 143 INCL INT IN RES |
| Geographic ID: | S6135-00-00143-0 | Agent Code: | |
| Type: | Real | | |
| Tax Area: | 710 - APPRAISER-S Whid Schl Dist, outside Langley, improved & 1 acre or less | Land Use Code | 11 |
| Open Space: | N | DFL | N |
| Historic Property: | N | Remodel Property: | N |
| Multi-Family Redevelopment: | N | | |
| Township: | | Section: | |
| Range: | |
Location |
| Address: | 4058 BEACH DR FREELAND, WA 98249 | Mapsco: | |
| Neighborhood: | Cycle 3 | Map ID: | 417 |
| Neighborhood CD: | 3 |
Owner |
| Name: | ARNETT, DOUGLAS B | Owner ID: | 279215 |
| Mailing Address: | LENEE M ARNETT 4058 BEACH DR FREELAND, WA 98249 | % Ownership: | 100.0000000000% |
| | | Exemptions: | |
Taxes and Assessment Details
Values
| (+) Improvement Homesite Value: | + | $0 | |
| (+) Improvement Non-Homesite Value: | + | $660,903 | |
| (+) Land Homesite Value: | + | $0 | |
| (+) Land Non-Homesite Value: | + | $650,000 | |
| (+) Curr Use (HS): | + | $0 | $0 |
| (+) Curr Use (NHS): | + | $0 | $0 |
| | | -------------------------- | |
| (=) Market Value: | = | $1,310,903 | |
| (–) Productivity Loss: | – | $0 | |
| | | -------------------------- | |
| (=) Subtotal: | = | $1,310,903 | |
| (+) Senior Appraised Value: | + | $0 | |
| (+) Non-Senior Appraised Value: | + | $1,310,903 | |
| | | -------------------------- | |
| (=) Total Appraised Value: | = | $1,310,903 | |
| (–) Senior Exemption Loss: | – | $0 | |
| (–) Exemption Loss: | – | $0 | |
| | | -------------------------- | |
| (=) Taxable Value: | = | $1,310,903 | |
Taxing Jurisdiction
| Owner: | ARNETT, DOUGLAS B | | |
| % Ownership: | 100.0000000000% | | |
| Total Value: | $1,310,903 | | |
| Tax Area: | 710 - APPRAISER-S Whid Schl Dist, outside Langley, improved & 1 acre or less |
| CF | Conservation Futures | 0.0316035091 | $1,310,903 | $1,310,903 | $41.43 | | |
| FIRE3 | Fire & Rescue Dist #3 S Whidbey GEN | 1.2004855531 | $1,310,903 | $1,310,903 | $1,573.72 | | |
| HOBOND | Hospital BOND | 0.1910887512 | $1,310,903 | $1,310,903 | $250.50 | | |
| HOGEN | Hospital GEN | 0.3902502903 | $1,310,903 | $1,310,903 | $511.58 | | |
| CE | County Current Expense | 0.3708482477 | $1,310,903 | $1,310,903 | $486.15 | | |
| CR | County Roads | 0.4584763726 | $1,310,903 | $1,310,903 | $601.02 | | |
| ISLANDEMS | Hospital GEN (EMS) | 0.5000000000 | $1,310,903 | $1,310,903 | $655.45 | | |
| LIB | Library Sno-Isle GEN | 0.3153421757 | $1,310,903 | $1,310,903 | $413.38 | | |
| PORTWHID | Port of S Whidbey GEN | 0.1094540357 | $1,310,903 | $1,310,903 | $143.48 | | |
| SCH206BOND | School 206 BOND | 0.3161759235 | $1,310,903 | $1,310,903 | $414.48 | | |
| SCH206MO | School 206 Enrichment | 0.4547169547 | $1,310,903 | $1,310,903 | $596.09 | | |
| ST | State School | 1.3035497053 | $1,310,903 | $1,310,903 | $1,708.83 | | |
| ST2 | State School Part 2 | 0.8169543533 | $1,310,903 | $1,310,903 | $1,070.95 | | |
| SWHIDPRBD | P & R S Whidbey BOND | 0.0152817568 | $1,310,903 | $1,310,903 | $20.03 | | |
| SWHIDPRBD2 | P & R S Whidbey BOND2 | 0.0138911264 | $1,310,903 | $1,310,903 | $18.21 | | |
| SWHIDPRMT | P & R S Whidbey GEN | 0.2053334452 | $1,310,903 | $1,310,903 | $269.17 | | |
| | Total Tax Rate: | 6.6934522006 | | | | | |
| | | | | Taxes w/Current Exemptions: | $8,774.47 | | |
| | | | | Taxes w/o Exemptions: | $8,774.47 | | |
Improvement / Building
| Improvement #1: | RESIDENTIAL | State Code: | Y | 3307.5 sqft | Value: | $660,903 |
| Bathrooms: | 2.5 | Bedrooms: | 2 | | Ceiling: | DRYWALL PAINTED | Cooling: | HEAT PUMP/CONV/V | | Exterior Wall/Cover: | VINYL | Floor Covering: | HARDWOOD/CARP 60-40 | | Floor Structure: | WOOD W/SUBFLOOR | Foundation: | PIERS/CONCRETE | | Interior Finish: | DRYWALL PAINT | Plumbing Fixture Cnt: | 13 | | Roof Slope: | 3" IN 12" | Roof Structure/Cover: | BEAM ALUMINUM HEAVY |
|
| | Type | Description | Class CD | Sub Class CD | Year Built | Area |
| | BAS | BASE/MAIN FLOOR | 4 | 0 | 1946 | 1212.5 |
| | DWN | DOWNSTAIRS LIVING AREA | 4 | 0 | 1946 | 1212.5 |
| | OWP | OPEN WOOD PORCH W/STEPS | 4 | 0 | 1946 | 357.8 |
| | OWP | OPEN WOOD PORCH W/STEPS | 4 | 0 | 1946 | 256.0 |
| | UTY | STORAGE/UTILITY | 4 | 0 | 1946 | 100.0 |
| | UPS | UPPER STORY | 4 | 0 | 1946 | 882.5 |
| | DGR | DETACHED GARAGE | 4 | 0 | 2023 | 396.0 |
| | ENP | ENCLOSED PORCH | 4 | 0 | 2023 | 396.0 |
| | OWP | OPEN WOOD PORCH W/STEPS | 4 | 0 | 1946 | 30.0 |
Sketch
Property Image
Land
| 1 | MB | MEDIUM BANK | 0.0000 | 8694.58 | 50.00 | 0.00 | 1.00 | $650,000 | $0 |
Roll Value History
| 2026 | N/A | N/A | N/A | N/A | N/A |
| 2025 | $660,903 | $650,000 | $0 | $1,310,903 | $1,310,903 |
| 2024 | $666,188 | $650,000 | $0 | $1,316,188 | $1,316,188 |
| 2023 | $671,477 | $550,000 | $0 | $1,221,477 | $1,221,477 |
| 2022 | $557,997 | $500,000 | $0 | $1,057,997 | $1,057,997 |
| 2021 | $419,933 | $450,000 | $0 | $869,933 | $869,933 |
| 2020 | $77,993 | $450,000 | $0 | $527,993 | $527,993 |
| 2019 | $109,861 | $500,000 | $0 | $609,861 | $609,861 |
| 2018 | $110,224 | $500,000 | $0 | $610,224 | $610,224 |
| 2017 | $110,944 | $350,000 | $0 | $460,944 | $460,944 |
| 2016 | $110,598 | $350,000 | $0 | $460,598 | $460,598 |
| 2015 | $111,656 | $250,000 | $0 | $361,656 | $361,656 |
| 2014 | $113,070 | $250,000 | $0 | $363,070 | $363,070 |
| 2013 | $93,602 | $190,890 | $0 | $284,492 | $284,492 |
| 2012 | $94,840 | $190,890 | $0 | $285,730 | $285,730 |
| 2011 | $96,076 | $190,890 | $0 | $286,966 | $286,966 |
| 2010 | $90,400 | $212,095 | $0 | $302,495 | $302,495 |
| 2009 | $93,324 | $303,826 | $0 | $397,150 | $397,150 |
| 2008 | $94,769 | $303,826 | $0 | $398,595 | $398,595 |
| 2007 | $76,694 | $303,826 | $0 | $380,520 | $380,520 |
Deed and Sales History
| 1 | 03/29/2017 | WD | Warranty Deed | MINE, TOMMY T | ARNETT, DOUGLAS B | | | $700,000.00 | 28663 | 4419919 |
| 2 | 11/16/2007 | ESTSEPPROP | Establish Separate Property | MINE, TOMMY T | MINE, T0MMY T | | | $0.00 | 73882 | 4217011 |
| 3 | 11/16/2007 | WD | Warranty Deed | GRANNUM, JEFFREY | MINE, TOMMY T | | | $640,000.00 | 73881 | 4217010 |
| 4 | 01/25/2003 | TRUSTEED | Trustee's Deed | DAVIDSEN, GLORIA F | GRANNUM, JEFFREY | | | $160,000.00 | 30441 | 4046722 |
| 5 | 03/01/1995 | QCD | Quit Claim Deed | DAVIDSON, GLORIA F | DAVIDSEN, GLORIA F | | | $0.00 | 50697 | 95003239 |
| 6 | 12/01/1982 | WD | Warranty Deed | MCCARTY, JEAN M | DAVIDSON, GLORIA F | | | $28,500.00 | 30458 | 406286 |
| 7 | 01/01/1982 | REC | Real Estate Contract | REYS, ELSIE | MCCARTY, JEAN M | | | $1.00 | 59349 | 0 |
| 8 | 01/01/1900 | OTHER | Other - Misc. Documents | Unknown | REYS, ELSIE | | | $0.00 | 0 | 0 |
Payout Agreement
| No payout information available.. |