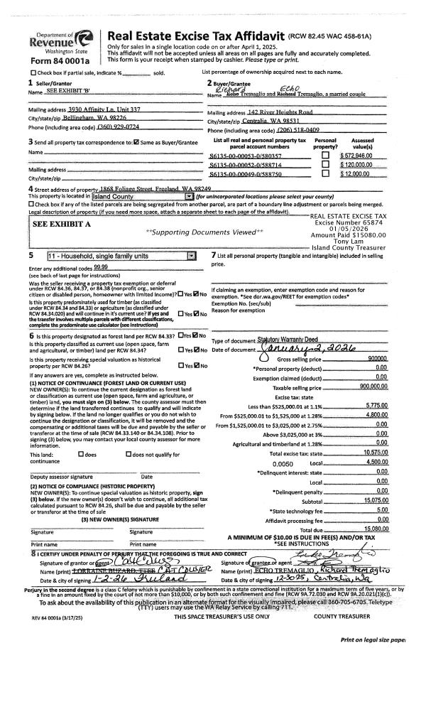
Property
Account |
| Property ID: | 192026 | Abbreviated Legal Description: | BEVERLY BCH 1 LOTS 144 & 145 INCL INT IN RES |
| Geographic ID: | S6135-00-00144-0 | Agent Code: | |
| Type: | Real | | |
| Tax Area: | 710 - APPRAISER-S Whid Schl Dist, outside Langley, improved & 1 acre or less | Land Use Code | 11 |
| Open Space: | N | DFL | N |
| Historic Property: | N | Remodel Property: | N |
| Multi-Family Redevelopment: | N | | |
| Township: | | Section: | |
| Range: | |
Location |
| Address: | 4062 BEACH DR FREELAND, WA 98249 | Mapsco: | |
| Neighborhood: | Cycle 3 | Map ID: | 417 |
| Neighborhood CD: | 3 |
Owner |
| Name: | PENTZ TRUSTEE, HEATHER L | Owner ID: | 265077 |
| Mailing Address: | 4062 BEACH DR FREELAND, WA 98249 | % Ownership: | 100.0000000000% |
| | | Exemptions: | |
Taxes and Assessment Details
Values
| (+) Improvement Homesite Value: | + | $0 | |
| (+) Improvement Non-Homesite Value: | + | $380,748 | |
| (+) Land Homesite Value: | + | $0 | |
| (+) Land Non-Homesite Value: | + | $650,000 | |
| (+) Curr Use (HS): | + | $0 | $0 |
| (+) Curr Use (NHS): | + | $0 | $0 |
| | | -------------------------- | |
| (=) Market Value: | = | $1,030,748 | |
| (–) Productivity Loss: | – | $0 | |
| | | -------------------------- | |
| (=) Subtotal: | = | $1,030,748 | |
| (+) Senior Appraised Value: | + | $0 | |
| (+) Non-Senior Appraised Value: | + | $1,030,748 | |
| | | -------------------------- | |
| (=) Total Appraised Value: | = | $1,030,748 | |
| (–) Senior Exemption Loss: | – | $0 | |
| (–) Exemption Loss: | – | $0 | |
| | | -------------------------- | |
| (=) Taxable Value: | = | $1,030,748 | |
Taxing Jurisdiction
| Owner: | PENTZ TRUSTEE, HEATHER L | | |
| % Ownership: | 100.0000000000% | | |
| Total Value: | $1,030,748 | | |
| Tax Area: | 710 - APPRAISER-S Whid Schl Dist, outside Langley, improved & 1 acre or less |
| CF | Conservation Futures | 0.0316035091 | $1,030,748 | $1,030,748 | $32.58 | | |
| FIRE3 | Fire & Rescue Dist #3 S Whidbey GEN | 1.2004855531 | $1,030,748 | $1,030,748 | $1,237.40 | | |
| HOBOND | Hospital BOND | 0.1910887512 | $1,030,748 | $1,030,748 | $196.96 | | |
| HOGEN | Hospital GEN | 0.3902502903 | $1,030,748 | $1,030,748 | $402.25 | | |
| CE | County Current Expense | 0.3708482477 | $1,030,748 | $1,030,748 | $382.25 | | |
| CR | County Roads | 0.4584763726 | $1,030,748 | $1,030,748 | $472.57 | | |
| ISLANDEMS | Hospital GEN (EMS) | 0.5000000000 | $1,030,748 | $1,030,748 | $515.37 | | |
| LIB | Library Sno-Isle GEN | 0.3153421757 | $1,030,748 | $1,030,748 | $325.04 | | |
| PORTWHID | Port of S Whidbey GEN | 0.1094540357 | $1,030,748 | $1,030,748 | $112.82 | | |
| SCH206BOND | School 206 BOND | 0.3161759235 | $1,030,748 | $1,030,748 | $325.90 | | |
| SCH206MO | School 206 Enrichment | 0.4547169547 | $1,030,748 | $1,030,748 | $468.70 | | |
| ST | State School | 1.3035497053 | $1,030,748 | $1,030,748 | $1,343.63 | | |
| ST2 | State School Part 2 | 0.8169543533 | $1,030,748 | $1,030,748 | $842.07 | | |
| SWHIDPRBD | P & R S Whidbey BOND | 0.0152817568 | $1,030,748 | $1,030,748 | $15.75 | | |
| SWHIDPRBD2 | P & R S Whidbey BOND2 | 0.0138911264 | $1,030,748 | $1,030,748 | $14.32 | | |
| SWHIDPRMT | P & R S Whidbey GEN | 0.2053334452 | $1,030,748 | $1,030,748 | $211.65 | | |
| | Total Tax Rate: | 6.6934522006 | | | | | |
| | | | | Taxes w/Current Exemptions: | $6,899.26 | | |
| | | | | Taxes w/o Exemptions: | $6,899.26 | | |
Improvement / Building
| Improvement #1: | RESIDENTIAL | State Code: | Y | 2041.5 sqft | Value: | $380,748 |
| Bathrooms: | 1 | Bedrooms: | 2 | | Ceiling: | DRYWALL PAINTED | Exterior Wall/Cover: | SHINGLE | | Floor Covering: | HARDWOOD/CARP 60-40 | Floor Structure: | WOOD W/SUBFLOOR | | Foundation: | CONCRETE | Heating: | FHA ELECTRIC | | Interior Finish: | DRYWALL PAINT | Plumbing Fixture Cnt: | 10 | | Roof Slope: | 12" IN 12" | Roof Structure/Cover: | CJ ASPHALT |
|
| | Type | Description | Class CD | Sub Class CD | Year Built | Area |
| | BAS | BASE/MAIN FLOOR | 4 | 0 | 1988 | 1273.5 |
| | UPH | HALF STORY | 4 | 0 | 1988 | 320.0 |
| | DGR | DETACHED GARAGE | 4 | 0 | 1988 | 616.0 |
| | OWP | OPEN WOOD PORCH W/STEPS | 4 | 0 | 1988 | 706.0 |
| | OWP | OPEN WOOD PORCH W/STEPS | 4 | 0 | 1988 | 114.0 |
| | oCB1 | CABIN UNFI | 4 | 0 | 1988 | 0.0 |
| | UPS | UPPER STORY | 4 | 0 | 1988 | 448.0 |
Sketch
Property Image
Land
| 1 | MB | MEDIUM BANK | 0.0000 | 0.00 | 50.00 | 0.00 | 1.00 | $575,000 | $0 |
| 2 | MB | MEDIUM BANK | 0.0000 | 0.00 | 50.00 | 0.00 | 1.00 | $75,000 | $0 |
Roll Value History
| 2026 | N/A | N/A | N/A | N/A | N/A |
| 2025 | $380,748 | $650,000 | $0 | $1,030,748 | $1,030,748 |
| 2024 | $385,742 | $650,000 | $0 | $1,035,742 | $1,035,742 |
| 2023 | $390,734 | $650,000 | $0 | $1,040,734 | $1,040,734 |
| 2022 | $358,818 | $525,000 | $0 | $883,818 | $883,818 |
| 2021 | $316,593 | $525,000 | $0 | $841,593 | $841,593 |
| 2020 | $309,201 | $525,000 | $0 | $834,201 | $834,201 |
| 2019 | $216,252 | $500,000 | $0 | $716,252 | $716,252 |
| 2018 | $216,953 | $500,000 | $0 | $716,953 | $716,953 |
| 2017 | $216,385 | $450,000 | $0 | $666,385 | $666,385 |
| 2016 | $219,165 | $450,000 | $0 | $669,165 | $669,165 |
| 2015 | $221,947 | $400,000 | $0 | $621,947 | $621,947 |
| 2014 | $224,729 | $400,000 | $0 | $624,729 | $624,729 |
| 2013 | $210,755 | $381,780 | $0 | $592,535 | $592,535 |
| 2012 | $213,283 | $381,780 | $0 | $595,063 | $595,063 |
| 2011 | $215,814 | $381,780 | $0 | $597,594 | $597,594 |
| 2010 | $226,886 | $424,190 | $0 | $651,076 | $651,076 |
| 2009 | $236,307 | $607,652 | $0 | $843,959 | $843,959 |
| 2008 | $239,227 | $607,652 | $0 | $846,879 | $846,879 |
| 2007 | $226,676 | $607,652 | $0 | $834,328 | $834,328 |
Deed and Sales History
| 1 | 02/11/2014 | PRD | Personal Representatives Deed | PENTZ, DAVID L & HEATHER | PENTZ TRUSTEE, HEATHER L | | | $0.00 | 14279 | 4355203 |
| 2 | 10/01/1996 | WD | Warranty Deed | HALLE, KRISTEN R | PENTZ, DAVID L | | | $375,000.00 | 63752 | 96018116 |
| 3 | 02/01/1988 | QCD | Quit Claim Deed | HALLE, KRISTEN R | HALLE, KRISTEN R | | | $0.00 | 80368 | 88001554 |
| 4 | 05/01/1987 | WD | Warranty Deed | ANDERSEN, KENNETH R | HALLE, KRISTEN R | | | $97,500.00 | 71377 | 87006730 |
| 5 | 07/01/1986 | WD | Warranty Deed | ANDERSEN, KENNETH R | ANDERSEN, KENNETH R | | | $40,000.00 | 62016 | 86009477 |
| 6 | 04/01/1986 | TRUSTEED | Trustee's Deed | ANDERSEN, ANDERS | ANDERSEN, KENNETH R | | | $0.00 | 60813 | 86003794 |
| 7 | 01/01/1900 | OTHER | Other - Misc. Documents | Unknown | ANDERSEN, ANDERS | | | $0.00 | 0 | 0 |
Payout Agreement
| No payout information available.. |