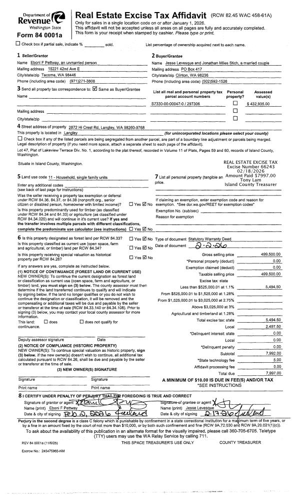
Property
Account |
| Property ID: | 192142 | Abbreviated Legal Description: | BEVERLY BCH 1 LOT 160 INCL ADJ TIDES & INT IN RES |
| Geographic ID: | S6135-00-00160-0 | Agent Code: | |
| Type: | Real | | |
| Tax Area: | 710 - APPRAISER-S Whid Schl Dist, outside Langley, improved & 1 acre or less | Land Use Code | 11 |
| Open Space: | N | DFL | N |
| Historic Property: | N | Remodel Property: | N |
| Multi-Family Redevelopment: | N | | |
| Township: | | Section: | |
| Range: | |
Location |
| Address: | 4120 BEACH DR FREELAND, WA 98249 | Mapsco: | |
| Neighborhood: | Cycle 3 | Map ID: | 417 |
| Neighborhood CD: | 3 |
Owner |
| Name: | DALLY, DONALD F | Owner ID: | 95715 |
| Mailing Address: | SUZANNE B DALLY 4120 BEACH DR FREELAND, WA 98249 | % Ownership: | 100.0000000000% |
| | | Exemptions: | |
Taxes and Assessment Details
Values
| (+) Improvement Homesite Value: | + | $0 | |
| (+) Improvement Non-Homesite Value: | + | $669,754 | |
| (+) Land Homesite Value: | + | $0 | |
| (+) Land Non-Homesite Value: | + | $650,500 | |
| (+) Curr Use (HS): | + | $0 | $0 |
| (+) Curr Use (NHS): | + | $0 | $0 |
| | | -------------------------- | |
| (=) Market Value: | = | $1,320,254 | |
| (–) Productivity Loss: | – | $0 | |
| | | -------------------------- | |
| (=) Subtotal: | = | $1,320,254 | |
| (+) Senior Appraised Value: | + | $0 | |
| (+) Non-Senior Appraised Value: | + | $1,320,254 | |
| | | -------------------------- | |
| (=) Total Appraised Value: | = | $1,320,254 | |
| (–) Senior Exemption Loss: | – | $0 | |
| (–) Exemption Loss: | – | $0 | |
| | | -------------------------- | |
| (=) Taxable Value: | = | $1,320,254 | |
Taxing Jurisdiction
| Owner: | DALLY, DONALD F | | |
| % Ownership: | 100.0000000000% | | |
| Total Value: | $1,320,254 | | |
| Tax Area: | 710 - APPRAISER-S Whid Schl Dist, outside Langley, improved & 1 acre or less |
| CF | Conservation Futures | 0.0316035091 | $1,320,254 | $1,320,254 | $41.72 | | |
| FIRE3 | Fire & Rescue Dist #3 S Whidbey GEN | 1.2004855531 | $1,320,254 | $1,320,254 | $1,584.95 | | |
| HOBOND | Hospital BOND | 0.1910887512 | $1,320,254 | $1,320,254 | $252.29 | | |
| HOGEN | Hospital GEN | 0.3902502903 | $1,320,254 | $1,320,254 | $515.23 | | |
| CE | County Current Expense | 0.3708482477 | $1,320,254 | $1,320,254 | $489.61 | | |
| CR | County Roads | 0.4584763726 | $1,320,254 | $1,320,254 | $605.31 | | |
| ISLANDEMS | Hospital GEN (EMS) | 0.5000000000 | $1,320,254 | $1,320,254 | $660.13 | | |
| LIB | Library Sno-Isle GEN | 0.3153421757 | $1,320,254 | $1,320,254 | $416.33 | | |
| PORTWHID | Port of S Whidbey GEN | 0.1094540357 | $1,320,254 | $1,320,254 | $144.51 | | |
| SCH206BOND | School 206 BOND | 0.3161759235 | $1,320,254 | $1,320,254 | $417.43 | | |
| SCH206MO | School 206 Enrichment | 0.4547169547 | $1,320,254 | $1,320,254 | $600.34 | | |
| ST | State School | 1.3035497053 | $1,320,254 | $1,320,254 | $1,721.02 | | |
| ST2 | State School Part 2 | 0.8169543533 | $1,320,254 | $1,320,254 | $1,078.59 | | |
| SWHIDPRBD | P & R S Whidbey BOND | 0.0152817568 | $1,320,254 | $1,320,254 | $20.18 | | |
| SWHIDPRBD2 | P & R S Whidbey BOND2 | 0.0138911264 | $1,320,254 | $1,320,254 | $18.34 | | |
| SWHIDPRMT | P & R S Whidbey GEN | 0.2053334452 | $1,320,254 | $1,320,254 | $271.09 | | |
| | Total Tax Rate: | 6.6934522006 | | | | | |
| | | | | Taxes w/Current Exemptions: | $8,837.07 | | |
| | | | | Taxes w/o Exemptions: | $8,837.07 | | |
Improvement / Building
| Improvement #1: | RESIDENTIAL | State Code: | Y | 2560.8 sqft | Value: | $669,754 |
| Bathrooms: | 2.5 | Bedrooms: | 3 | | Ceiling: | DRYWALL PAINTED | Exterior Wall/Cover: | CEMENT FIBER | | Floor Covering: | HARDWOOD/CARP 80-20 | Floor Structure: | WOOD W/SUBFLOOR | | Foundation: | CONCRETE | Heating: | FHA GAS | | Interior Finish: | DRYWALL PAINT | Plumbing Fixture Cnt: | 14 | | Roof Slope: | 6" IN 12" | Roof Structure/Cover: | CJ ASPHALT |
|
| | Type | Description | Class CD | Sub Class CD | Year Built | Area |
| | BAS | BASE/MAIN FLOOR | 5 | 0 | 2003 | 1408.3 |
| | AGR | ATTACHED GARAGE | 5 | 0 | 2003 | 247.5 |
| | BIG | BUILT IN GARAGE | 5 | 0 | 2003 | 247.5 |
| | UPS | UPPER STORY | 5 | 0 | 2003 | 1152.5 |
| | BAW | BALCONY WOOD RAIL | 5 | 0 | 2003 | 21.0 |
| | OWP | OPEN WOOD PORCH W/STEPS | 5 | 0 | 2003 | 1071.3 |
| | OWC | OPEN WOOD PORCH W/STEPS/ROOF/C | 5 | 0 | 2003 | 36.0 |
| | OWC | OPEN WOOD PORCH W/STEPS/ROOF/C | 5 | 0 | 2003 | 156.0 |
| | oGAR | GARAGE | 5 | 0 | 2003 | 0.0 |
Sketch
Property Image
Land
| 1 | MB | MEDIUM BANK | 0.0000 | 0.00 | 50.00 | 0.00 | 1.00 | $650,000 | $0 |
| 2 | 55 | TIDES | 0.0000 | 0.00 | 50.00 | 0.00 | 1.00 | $500 | $0 |
Roll Value History
| 2026 | N/A | N/A | N/A | N/A | N/A |
| 2025 | $669,754 | $650,500 | $0 | $1,320,254 | $1,320,254 |
| 2024 | $677,646 | $650,500 | $0 | $1,328,146 | $1,328,146 |
| 2023 | $685,535 | $550,500 | $0 | $1,236,035 | $1,236,035 |
| 2022 | $628,368 | $500,500 | $0 | $1,128,868 | $1,128,868 |
| 2021 | $553,276 | $450,500 | $0 | $1,003,776 | $1,003,776 |
| 2020 | $538,467 | $450,500 | $0 | $988,967 | $988,967 |
| 2019 | $418,993 | $500,500 | $0 | $919,493 | $919,493 |
| 2018 | $420,180 | $500,500 | $0 | $920,680 | $920,680 |
| 2017 | $422,432 | $300,450 | $0 | $722,882 | $722,882 |
| 2016 | $427,175 | $300,450 | $0 | $727,625 | $727,625 |
| 2015 | $431,918 | $250,450 | $0 | $682,368 | $682,368 |
| 2014 | $436,662 | $250,450 | $0 | $687,112 | $687,112 |
| 2013 | $493,135 | $191,340 | $0 | $684,475 | $684,475 |
| 2012 | $498,559 | $191,340 | $0 | $689,899 | $689,899 |
| 2011 | $503,982 | $191,340 | $0 | $695,322 | $695,322 |
| 2010 | $514,299 | $212,595 | $0 | $726,894 | $726,894 |
| 2009 | $535,736 | $304,326 | $0 | $840,062 | $840,062 |
| 2008 | $547,197 | $304,326 | $0 | $851,523 | $851,523 |
| 2007 | $535,215 | $303,976 | $0 | $839,191 | $839,191 |
Deed and Sales History
| 1 | 07/19/1982 | WD | Warranty Deed | DALLY, DONALD F | DALLY, DONALD F | | | $0.00 | 32355 | 4061550 |
| 2 | 07/01/1982 | TRUSTEED | Trustee's Deed | MENDLESON, BRUCE S | DALLY, DONALD F | | | $125,000.00 | 21720 | 398538 |
| 3 | 08/01/1981 | TRUSTEED | Trustee's Deed | EPSTEIN, LEWIS | MENDLESON, BRUCE S | | | $135,000.00 | 12642 | 387208 |
| 4 | 07/01/1978 | OTHER | Other - Misc. Documents | Unknown | EPSTEIN, LEWIS | | | $77,000.00 | 83538 | 336883 |
Payout Agreement
| No payout information available.. |