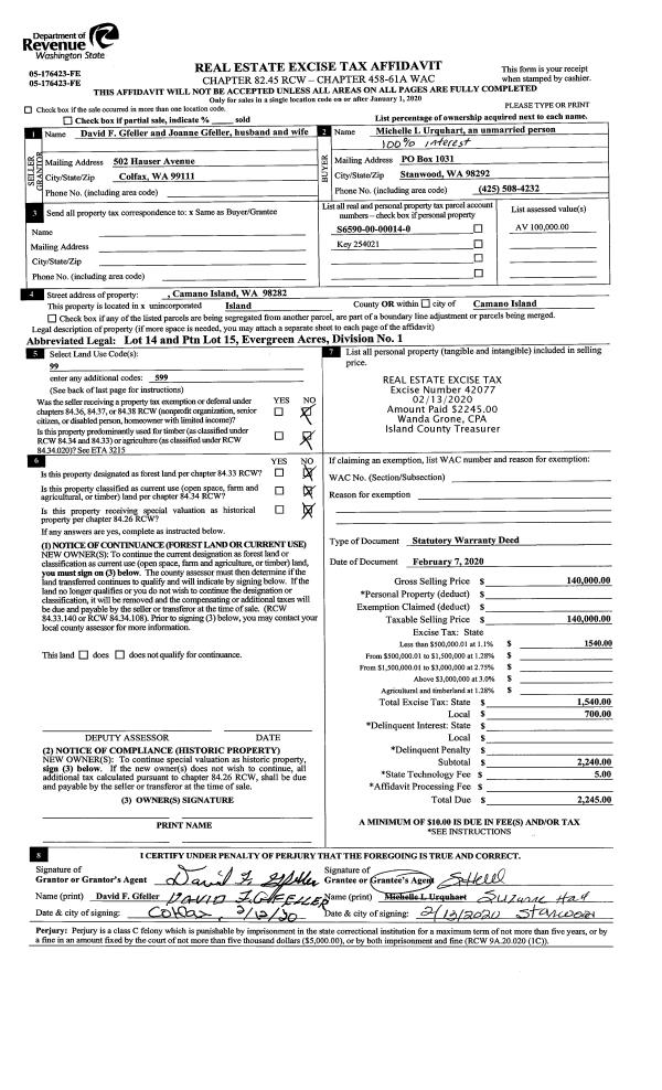
Property
Account |
| Property ID: | 192231 | Abbreviated Legal Description: | BEVERLY BCH 2 LOT 3 INCL INT IN RESERVE |
| Geographic ID: | S6135-02-00003-0 | Agent Code: | |
| Type: | Real | | |
| Tax Area: | 710 - APPRAISER-S Whid Schl Dist, outside Langley, improved & 1 acre or less | Land Use Code | 11 |
| Open Space: | N | DFL | N |
| Historic Property: | N | Remodel Property: | N |
| Multi-Family Redevelopment: | N | | |
| Township: | | Section: | |
| Range: | |
Location |
| Address: | 4167 BEACH DR FREELAND, WA 98249 | Mapsco: | |
| Neighborhood: | Cycle 3 | Map ID: | 417 |
| Neighborhood CD: | 3 |
Owner |
| Name: | LEMBO, ANNALISA | Owner ID: | 290821 |
| Mailing Address: | 10212 NE 68TH ST APT B302 KIRKLAND, WA 98033 | % Ownership: | 100.0000000000% |
| | | Exemptions: | |
Taxes and Assessment Details
Values
| (+) Improvement Homesite Value: | + | $0 | |
| (+) Improvement Non-Homesite Value: | + | $58,707 | |
| (+) Land Homesite Value: | + | $0 | |
| (+) Land Non-Homesite Value: | + | $310,000 | |
| (+) Curr Use (HS): | + | $0 | $0 |
| (+) Curr Use (NHS): | + | $0 | $0 |
| | | -------------------------- | |
| (=) Market Value: | = | $368,707 | |
| (–) Productivity Loss: | – | $0 | |
| | | -------------------------- | |
| (=) Subtotal: | = | $368,707 | |
| (+) Senior Appraised Value: | + | $0 | |
| (+) Non-Senior Appraised Value: | + | $368,707 | |
| | | -------------------------- | |
| (=) Total Appraised Value: | = | $368,707 | |
| (–) Senior Exemption Loss: | – | $0 | |
| (–) Exemption Loss: | – | $0 | |
| | | -------------------------- | |
| (=) Taxable Value: | = | $368,707 | |
Taxing Jurisdiction
| Owner: | LEMBO, ANNALISA | | |
| % Ownership: | 100.0000000000% | | |
| Total Value: | $368,707 | | |
| Tax Area: | 710 - APPRAISER-S Whid Schl Dist, outside Langley, improved & 1 acre or less |
| CF | Conservation Futures | 0.0316035091 | $368,707 | $368,707 | $11.65 | | |
| FIRE3 | Fire & Rescue Dist #3 S Whidbey GEN | 1.2004855531 | $368,707 | $368,707 | $442.63 | | |
| HOBOND | Hospital BOND | 0.1910887512 | $368,707 | $368,707 | $70.46 | | |
| HOGEN | Hospital GEN | 0.3902502903 | $368,707 | $368,707 | $143.89 | | |
| CE | County Current Expense | 0.3708482477 | $368,707 | $368,707 | $136.73 | | |
| CR | County Roads | 0.4584763726 | $368,707 | $368,707 | $169.04 | | |
| ISLANDEMS | Hospital GEN (EMS) | 0.5000000000 | $368,707 | $368,707 | $184.35 | | |
| LIB | Library Sno-Isle GEN | 0.3153421757 | $368,707 | $368,707 | $116.27 | | |
| PORTWHID | Port of S Whidbey GEN | 0.1094540357 | $368,707 | $368,707 | $40.36 | | |
| SCH206BOND | School 206 BOND | 0.3161759235 | $368,707 | $368,707 | $116.58 | | |
| SCH206MO | School 206 Enrichment | 0.4547169547 | $368,707 | $368,707 | $167.66 | | |
| ST | State School | 1.3035497053 | $368,707 | $368,707 | $480.63 | | |
| ST2 | State School Part 2 | 0.8169543533 | $368,707 | $368,707 | $301.22 | | |
| SWHIDPRBD | P & R S Whidbey BOND | 0.0152817568 | $368,707 | $368,707 | $5.63 | | |
| SWHIDPRBD2 | P & R S Whidbey BOND2 | 0.0138911264 | $368,707 | $368,707 | $5.12 | | |
| SWHIDPRMT | P & R S Whidbey GEN | 0.2053334452 | $368,707 | $368,707 | $75.71 | | |
| | Total Tax Rate: | 6.6934522006 | | | | | |
| | | | | Taxes w/Current Exemptions: | $2,467.93 | | |
| | | | | Taxes w/o Exemptions: | $2,467.93 | | |
Improvement / Building
| Improvement #1: | RESIDENTIAL | State Code: | Y | 608.0 sqft | Value: | $58,707 |
| Bathrooms: | 1 | Bedrooms: | 1 | | Ceiling: | PLASTER PAINTED | Exterior Wall/Cover: | SHINGLE | | Floor Covering: | VINYL 100% | Floor Structure: | WOOD W/SUBFLOOR | | Foundation: | WOOD BLOCKS | Interior Finish: | DRYWALL PAINT | | Plumbing Fixture Cnt: | 5 | Roof Slope: | 5" IN 12" | | Roof Structure/Cover: | CJ COMP ROLL |   |   |
|
| | Type | Description | Class CD | Sub Class CD | Year Built | Area |
| | BAS | BASE/MAIN FLOOR | 2 | 0 | 1945 | 608.0 |
| | OWP | OPEN WOOD PORCH W/STEPS | 2 | 0 | 1945 | 544.0 |
Sketch
Property Image
Land
| 1 | 13 | SQ (06001-08000) | 0.0000 | 0.00 | 0.00 | 0.00 | 1.00 | $310,000 | $0 |
Roll Value History
| 2026 | N/A | N/A | N/A | N/A | N/A |
| 2025 | $58,707 | $310,000 | $0 | $368,707 | $368,707 |
| 2024 | $60,004 | $310,000 | $0 | $370,004 | $370,004 |
| 2023 | $61,302 | $280,000 | $0 | $341,302 | $341,302 |
| 2022 | $56,684 | $280,000 | $0 | $336,684 | $336,684 |
| 2021 | $50,313 | $220,000 | $0 | $270,313 | $270,313 |
| 2020 | $49,301 | $200,000 | $0 | $249,301 | $249,301 |
| 2019 | $25,175 | $230,000 | $0 | $255,175 | $255,175 |
| 2018 | $25,349 | $180,000 | $0 | $205,349 | $205,349 |
| 2017 | $25,697 | $150,000 | $0 | $175,697 | $175,697 |
| 2016 | $24,651 | $150,000 | $0 | $174,651 | $174,651 |
| 2015 | $25,300 | $85,000 | $0 | $110,300 | $110,300 |
| 2014 | $25,948 | $85,000 | $0 | $110,948 | $110,948 |
| 2013 | $20,142 | $65,000 | $0 | $85,142 | $85,142 |
| 2012 | $20,687 | $64,260 | $0 | $84,947 | $84,947 |
| 2011 | $21,232 | $75,600 | $0 | $96,832 | $96,832 |
| 2010 | $24,073 | $84,000 | $0 | $108,073 | $108,073 |
| 2009 | $25,361 | $98,000 | $0 | $123,361 | $123,361 |
| 2008 | $18,321 | $122,610 | $0 | $140,931 | $140,931 |
| 2007 | $24,180 | $177,321 | $0 | $201,501 | $201,501 |
Deed and Sales History
| 1 | 06/18/2019 | QCD | Quit Claim Deed | PETERSON, CARL OLIVER | LEMBO, ANNALISA | | | $0.00 | 39297 | 4466677 |
| 2 | 12/12/2018 | QCD | Quit Claim Deed | PETERSON, CARL OLIVER | PETERSON, CARL OLIVER | | | $0.00 | 37130 | 4457204 |
| 3 | 11/23/2012 | QCD | Quit Claim Deed | BIGGER, CELESTINE H | PETERSON, CARL OLIVER | | | $0.00 | 9652 | 4328369 |
| 4 | 10/01/1995 | QCD | Quit Claim Deed | BIGGER, CELESTINE H | BIGGER, CELESTINE H | | | $0.00 | 53653 | 95016820 |
| 5 | 12/01/1994 | QCD | Quit Claim Deed | BIGGER, CELESTINE H | BIGGER, CELESTINE H | | | $0.00 | 45027 | 94025651 |
| 6 | 01/01/1985 | OTHER | Other - Misc. Documents | PETERSON, CELESTINE H | BIGGER, CELESTINE H | | | $0.00 | 61009 | 0 |
| 7 | 01/01/1983 | OTHER | Other - Misc. Documents | PETERSON, J R | PETERSON, CELESTINE H | | | $0.00 | 59803 | 0 |
| 8 | 01/01/1900 | OTHER | Other - Misc. Documents | Unknown | PETERSON, J R | | | $0.00 | 0 | 0 |
Payout Agreement
| No payout information available.. |