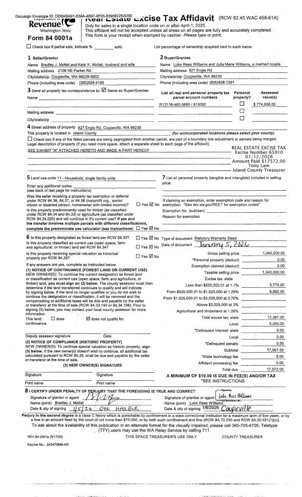
Property
Account |
| Property ID: | 192259 | Abbreviated Legal Description: | BEVERLY BCH 2 LOTS 5 & 6 INCL INT IN RESERVE |
| Geographic ID: | S6135-02-00005-0 | Agent Code: | |
| Type: | Real | | |
| Tax Area: | 719 - APPRAISER-S Whid Schl Dist, outside Langley, vacant & 50 acres or less | Land Use Code | 99 |
| Open Space: | N | DFL | N |
| Historic Property: | N | Remodel Property: | N |
| Multi-Family Redevelopment: | N | | |
| Township: | | Section: | |
| Range: | |
Location |
| Address: | | Mapsco: | |
| Neighborhood: | Cycle 3 | Map ID: | 417 |
| Neighborhood CD: | 3 |
Owner |
| Name: | ALKOVE, JAMES M | Owner ID: | 283541 |
| Mailing Address: | ANGELA H ALKOVE 2722 BROADWAY E SEATTLE, WA 98102 | % Ownership: | 100.0000000000% |
| | | Exemptions: | |
Taxes and Assessment Details
Values
| (+) Improvement Homesite Value: | + | $0 | |
| (+) Improvement Non-Homesite Value: | + | $0 | |
| (+) Land Homesite Value: | + | $0 | |
| (+) Land Non-Homesite Value: | + | $24,000 | |
| (+) Curr Use (HS): | + | $0 | $0 |
| (+) Curr Use (NHS): | + | $0 | $0 |
| | | -------------------------- | |
| (=) Market Value: | = | $24,000 | |
| (–) Productivity Loss: | – | $0 | |
| | | -------------------------- | |
| (=) Subtotal: | = | $24,000 | |
| (+) Senior Appraised Value: | + | $0 | |
| (+) Non-Senior Appraised Value: | + | $24,000 | |
| | | -------------------------- | |
| (=) Total Appraised Value: | = | $24,000 | |
| (–) Senior Exemption Loss: | – | $0 | |
| (–) Exemption Loss: | – | $0 | |
| | | -------------------------- | |
| (=) Taxable Value: | = | $24,000 | |
Taxing Jurisdiction
| Owner: | ALKOVE, JAMES M | | |
| % Ownership: | 100.0000000000% | | |
| Total Value: | $24,000 | | |
| Tax Area: | 719 - APPRAISER-S Whid Schl Dist, outside Langley, vacant & 50 acres or less |
| CF | Conservation Futures | 0.0316035091 | $24,000 | $24,000 | $0.76 | | |
| HOBOND | Hospital BOND | 0.1910887512 | $24,000 | $24,000 | $4.59 | | |
| HOGEN | Hospital GEN | 0.3902502903 | $24,000 | $24,000 | $9.37 | | |
| CE | County Current Expense | 0.3708482477 | $24,000 | $24,000 | $8.90 | | |
| CR | County Roads | 0.4584763726 | $24,000 | $24,000 | $11.00 | | |
| ISLANDEMS | Hospital GEN (EMS) | 0.5000000000 | $24,000 | $24,000 | $12.00 | | |
| LIB | Library Sno-Isle GEN | 0.3153421757 | $24,000 | $24,000 | $7.57 | | |
| PORTWHID | Port of S Whidbey GEN | 0.1094540357 | $24,000 | $24,000 | $2.63 | | |
| SCH206BOND | School 206 BOND | 0.3161759235 | $24,000 | $24,000 | $7.59 | | |
| SCH206MO | School 206 Enrichment | 0.4547169547 | $24,000 | $24,000 | $10.91 | | |
| ST | State School | 1.3035497053 | $24,000 | $24,000 | $31.29 | | |
| ST2 | State School Part 2 | 0.8169543533 | $24,000 | $24,000 | $19.61 | | |
| SWHIDPRBD | P & R S Whidbey BOND | 0.0152817568 | $24,000 | $24,000 | $0.37 | | |
| SWHIDPRBD2 | P & R S Whidbey BOND2 | 0.0138911264 | $24,000 | $24,000 | $0.33 | | |
| SWHIDPRMT | P & R S Whidbey GEN | 0.2053334452 | $24,000 | $24,000 | $4.93 | | |
| | Total Tax Rate: | 5.4929666475 | | | | | |
| | | | | Taxes w/Current Exemptions: | $131.85 | | |
| | | | | Taxes w/o Exemptions: | $131.85 | | |
Improvement / Building
Sketch
| No sketches available for this property. |
Property Image
Land
| 1 | 13 | SQ (06001-08000) | 0.0000 | 0.00 | 0.00 | 0.00 | 1.00 | $12,000 | $0 |
| 2 | 13 | SQ (06001-08000) | 0.0000 | 0.00 | 0.00 | 0.00 | 1.00 | $12,000 | $0 |
Roll Value History
| 2026 | N/A | N/A | N/A | N/A | N/A |
| 2025 | $0 | $24,000 | $0 | $24,000 | $24,000 |
| 2024 | $0 | $24,000 | $0 | $24,000 | $24,000 |
| 2023 | $0 | $14,000 | $0 | $14,000 | $14,000 |
| 2022 | $0 | $14,000 | $0 | $14,000 | $14,000 |
| 2021 | $0 | $14,000 | $0 | $14,000 | $14,000 |
| 2020 | $0 | $14,000 | $0 | $14,000 | $14,000 |
| 2019 | $0 | $14,000 | $0 | $14,000 | $14,000 |
| 2018 | $0 | $14,000 | $0 | $14,000 | $14,000 |
| 2017 | $0 | $10,000 | $0 | $10,000 | $10,000 |
| 2016 | $0 | $10,000 | $0 | $10,000 | $10,000 |
| 2015 | $0 | $10,000 | $0 | $10,000 | $10,000 |
| 2014 | $0 | $10,000 | $0 | $10,000 | $10,000 |
| 2013 | $0 | $10,000 | $0 | $10,000 | $10,000 |
| 2012 | $0 | $18,720 | $0 | $18,720 | $18,720 |
| 2011 | $0 | $18,720 | $0 | $18,720 | $18,720 |
| 2010 | $0 | $20,800 | $0 | $20,800 | $20,800 |
| 2009 | $0 | $25,200 | $0 | $25,200 | $25,200 |
| 2008 | $0 | $30,000 | $0 | $30,000 | $30,000 |
| 2007 | $0 | $40,000 | $0 | $40,000 | $40,000 |
Deed and Sales History
| 1 | 08/25/2020 | WD | Warranty Deed | PETERSON, CARL OLIVER | ALKOVE, JAMES M | | | $195,000.00 | 44572 | 4495543 |
|   | |
| 2 | 12/12/2018 | QCD | Quit Claim Deed | PETERSON, CARL OLIVER | PETERSON, CARL OLIVER | | | $0.00 | 37129 | 4457205 |
| 3 | 11/23/2012 | QCD | Quit Claim Deed | BIGGER, CELESTINE H | PETERSON, CARL OLIVER | | | $0.00 | 9651 | 4328370 |
| 4 | 12/06/2005 | QCD | Quit Claim Deed | BIGGER, CELESTINE H | BIGGER, CELESTINE H | | | $0.00 | 56101 | 4156267 |
| 5 | 09/21/2004 | WD | Warranty Deed | MCFARLANE, SUSAN & | BIGGER, CELESTINE H | | | $23,000.00 | 44484 | 4113750 |
| 6 | 09/17/2004 | ESTSEPPROP | Establish Separate Property | BIGGER, CELESTINE H | BIGGER, CELESTINE H | | | $0.00 | 44485 | 4116751 |
| 7 | 11/01/1989 | QCD | Quit Claim Deed | MARTIN, OMA E | MCFARLANE, SUSAN & | | | $0.00 | 95278 | 89016987 |
| 8 | 08/01/1980 | PACD | Purchaser's Assignment | MARTIN, MRS H | MARTIN, OMA E | | | $0.00 | 58905 | 0 |
| 9 | 01/01/1900 | OTHER | Other - Misc. Documents | Unknown | MARTIN, MRS H | | | $0.00 | 0 | 0 |
Payout Agreement
| No payout information available.. |