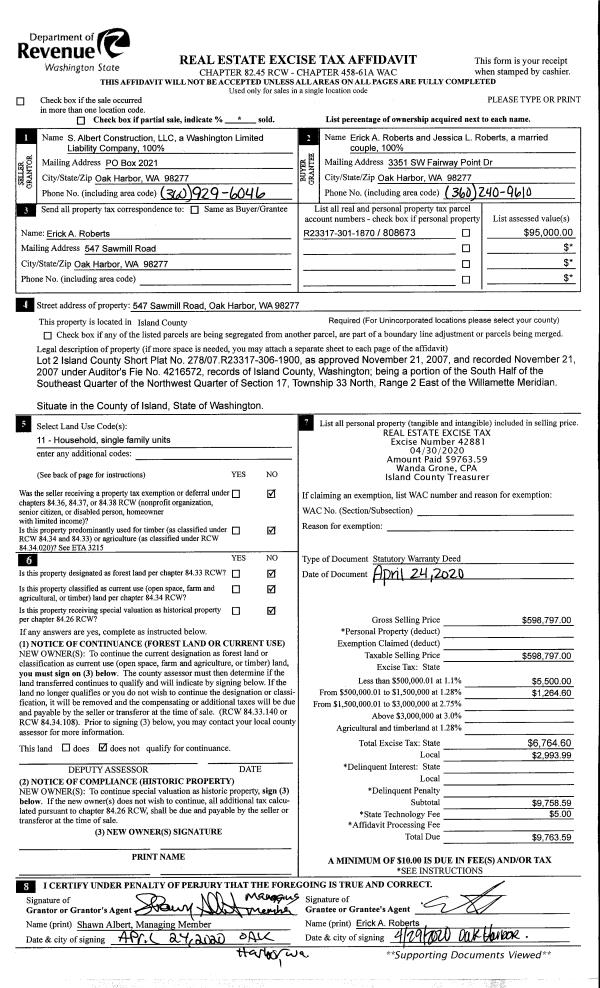
Property
Account |
| Property ID: | 192543 | Abbreviated Legal Description: | BEVERLY BCH 2 LOT 49 INCL INT IN RESERVE |
| Geographic ID: | S6135-02-00049-0 | Agent Code: | |
| Type: | Real | | |
| Tax Area: | 710 - APPRAISER-S Whid Schl Dist, outside Langley, improved & 1 acre or less | Land Use Code | 11 |
| Open Space: | N | DFL | N |
| Historic Property: | N | Remodel Property: | N |
| Multi-Family Redevelopment: | N | | |
| Township: | | Section: | |
| Range: | |
Location |
| Address: | 1874 BEVERLY BEACH RD FREELAND, WA 98249 | Mapsco: | |
| Neighborhood: | Cycle 3 | Map ID: | 416 |
| Neighborhood CD: | 3 |
Owner |
| Name: | HUGHSON, DIXIE A | Owner ID: | 263358 |
| Mailing Address: | 2016 N LAFAYETTE AVE BREMERTON, WA 98212 | % Ownership: | 100.0000000000% |
| | | Exemptions: | |
Taxes and Assessment Details
Values
| (+) Improvement Homesite Value: | + | $0 | |
| (+) Improvement Non-Homesite Value: | + | $173,579 | |
| (+) Land Homesite Value: | + | $0 | |
| (+) Land Non-Homesite Value: | + | $270,000 | |
| (+) Curr Use (HS): | + | $0 | $0 |
| (+) Curr Use (NHS): | + | $0 | $0 |
| | | -------------------------- | |
| (=) Market Value: | = | $443,579 | |
| (–) Productivity Loss: | – | $0 | |
| | | -------------------------- | |
| (=) Subtotal: | = | $443,579 | |
| (+) Senior Appraised Value: | + | $0 | |
| (+) Non-Senior Appraised Value: | + | $443,579 | |
| | | -------------------------- | |
| (=) Total Appraised Value: | = | $443,579 | |
| (–) Senior Exemption Loss: | – | $0 | |
| (–) Exemption Loss: | – | $0 | |
| | | -------------------------- | |
| (=) Taxable Value: | = | $443,579 | |
Taxing Jurisdiction
| Owner: | HUGHSON, DIXIE A | | |
| % Ownership: | 100.0000000000% | | |
| Total Value: | $443,579 | | |
| Tax Area: | 710 - APPRAISER-S Whid Schl Dist, outside Langley, improved & 1 acre or less |
| CF | Conservation Futures | 0.0316035091 | $443,579 | $443,579 | $14.02 | | |
| FIRE3 | Fire & Rescue Dist #3 S Whidbey GEN | 1.2004855531 | $443,579 | $443,579 | $532.51 | | |
| HOBOND | Hospital BOND | 0.1910887512 | $443,579 | $443,579 | $84.76 | | |
| HOGEN | Hospital GEN | 0.3902502903 | $443,579 | $443,579 | $173.11 | | |
| CE | County Current Expense | 0.3708482477 | $443,579 | $443,579 | $164.50 | | |
| CR | County Roads | 0.4584763726 | $443,579 | $443,579 | $203.37 | | |
| ISLANDEMS | Hospital GEN (EMS) | 0.5000000000 | $443,579 | $443,579 | $221.79 | | |
| LIB | Library Sno-Isle GEN | 0.3153421757 | $443,579 | $443,579 | $139.88 | | |
| PORTWHID | Port of S Whidbey GEN | 0.1094540357 | $443,579 | $443,579 | $48.55 | | |
| SCH206BOND | School 206 BOND | 0.3161759235 | $443,579 | $443,579 | $140.25 | | |
| SCH206MO | School 206 Enrichment | 0.4547169547 | $443,579 | $443,579 | $201.70 | | |
| ST | State School | 1.3035497053 | $443,579 | $443,579 | $578.23 | | |
| ST2 | State School Part 2 | 0.8169543533 | $443,579 | $443,579 | $362.38 | | |
| SWHIDPRBD | P & R S Whidbey BOND | 0.0152817568 | $443,579 | $443,579 | $6.78 | | |
| SWHIDPRBD2 | P & R S Whidbey BOND2 | 0.0138911264 | $443,579 | $443,579 | $6.16 | | |
| SWHIDPRMT | P & R S Whidbey GEN | 0.2053334452 | $443,579 | $443,579 | $91.08 | | |
| | Total Tax Rate: | 6.6934522006 | | | | | |
| | | | | Taxes w/Current Exemptions: | $2,969.07 | | |
| | | | | Taxes w/o Exemptions: | $2,969.07 | | |
Improvement / Building
| Improvement #1: | RESIDENTIAL | State Code: | Y | 1004.0 sqft | Value: | $173,579 |
| Bathrooms: | 2 | Bedrooms: | 2 | | Ceiling: | DRY WALL SPRAYED | Exterior Wall/Cover: | WOOD SIDING | | Floor Covering: | CARPET/VINYL 80-20 | Floor Structure: | WOOD W/SUBFLOOR | | Foundation: | CONCRETE | Heating: | WALL HEAT ELECTRIC | | Interior Finish: | DRYWALL PAINT | Plumbing Fixture Cnt: | 9 | | Roof Slope: | 12" IN 12" | Roof Structure/Cover: | CJ ASPHALT |
|
| | Type | Description | Class CD | Sub Class CD | Year Built | Area |
| | BAS | BASE/MAIN FLOOR | 3 | 0 | 1984 | 576.0 |
| | UPS | UPPER STORY | 3 | 0 | 1984 | 428.0 |
| | OWP | OPEN WOOD PORCH W/STEPS | 3 | 0 | 1984 | 40.0 |
| | OWP | OPEN WOOD PORCH W/STEPS | 3 | 0 | 1984 | 287.0 |
| | OWC | OPEN WOOD PORCH W/STEPS/ROOF/C | 3 | 0 | 1984 | 60.0 |
Sketch
Property Image
Land
| 1 | 13 | SQ (06001-08000) | 0.0000 | 0.00 | 0.00 | 0.00 | 1.00 | $270,000 | $0 |
Roll Value History
| 2026 | N/A | N/A | N/A | N/A | N/A |
| 2025 | $173,579 | $270,000 | $0 | $443,579 | $443,579 |
| 2024 | $175,885 | $300,000 | $0 | $475,885 | $475,885 |
| 2023 | $178,193 | $300,000 | $0 | $478,193 | $478,193 |
| 2022 | $163,441 | $240,000 | $0 | $403,441 | $403,441 |
| 2021 | $143,942 | $220,000 | $0 | $363,942 | $363,942 |
| 2020 | $139,870 | $170,000 | $0 | $309,870 | $309,870 |
| 2019 | $92,334 | $200,000 | $0 | $292,334 | $292,334 |
| 2018 | $92,638 | $150,000 | $0 | $242,638 | $242,638 |
| 2017 | $93,243 | $120,000 | $0 | $213,243 | $213,243 |
| 2016 | $94,453 | $115,000 | $0 | $209,453 | $209,453 |
| 2015 | $95,664 | $75,000 | $0 | $170,664 | $170,664 |
| 2014 | $96,876 | $85,000 | $0 | $181,876 | $181,876 |
| 2013 | $89,611 | $85,000 | $0 | $174,611 | $174,611 |
| 2012 | $90,821 | $107,100 | $0 | $197,921 | $197,921 |
| 2011 | $92,031 | $126,000 | $0 | $218,031 | $218,031 |
| 2010 | $95,897 | $140,000 | $0 | $235,897 | $235,897 |
| 2009 | $99,964 | $200,000 | $0 | $299,964 | $299,964 |
| 2008 | $101,163 | $200,000 | $0 | $301,163 | $301,163 |
| 2007 | $97,567 | $200,000 | $0 | $297,567 | $297,567 |
Deed and Sales History
| 1 | 08/02/2013 | WD | Warranty Deed | FEDERAL NATIONAL MORTGAGE ASSOCIATION | HUGHSON, DIXIE A | | | $147,900.00 | 12340 | 4346041 |
| 2 | 02/12/2013 | TRUSTEED | Trustee's Deed | LIGHTNER, JAMES E | FEDERAL NATIONAL MORTGAGE ASSOCIATION | | | $240,815.00 | 10411 | 4333510 |
| 3 | 04/17/2008 | WD | Warranty Deed | CURRIE, FRED M | LIGHTNER, JAMES E | | | $325,000.00 | 80957 | 4226667 |
| 4 | 07/01/1979 | EXECUTORD | Executor Deed | RICHARDS, LAURENCE P | CURRIE, FRED M | | | $12,000.00 | 93717 | 356401 |
| 5 | 01/01/1900 | OTHER | Other - Misc. Documents | Unknown | RICHARDS, LAURENCE P | | | $0.00 | 0 | 0 |
Payout Agreement
| No payout information available.. |