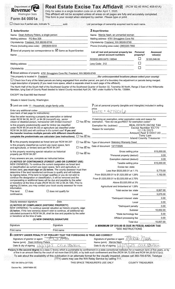
Property
Account |
| Property ID: | 192847 | Abbreviated Legal Description: | BEVERLY BCH 2 LOT 82 & 83 INCL INT IN RESERVE |
| Geographic ID: | S6135-02-00082-0 | Agent Code: | |
| Type: | Real | | |
| Tax Area: | 710 - APPRAISER-S Whid Schl Dist, outside Langley, improved & 1 acre or less | Land Use Code | 11 |
| Open Space: | N | DFL | N |
| Historic Property: | N | Remodel Property: | N |
| Multi-Family Redevelopment: | N | | |
| Township: | | Section: | |
| Range: | |
Location |
| Address: | | Mapsco: | |
| Neighborhood: | Cycle 3 | Map ID: | 416 |
| Neighborhood CD: | 3 |
Owner |
| Name: | SUMMERS, DOROTHY JEAN | Owner ID: | 95783 |
| Mailing Address: | 4244 BEACH DR FREELAND, WA 98249-9439 | % Ownership: | 100.0000000000% |
| | | Exemptions: | |
Taxes and Assessment Details
Values
| (+) Improvement Homesite Value: | + | $0 | |
| (+) Improvement Non-Homesite Value: | + | $283,106 | |
| (+) Land Homesite Value: | + | $0 | |
| (+) Land Non-Homesite Value: | + | $280,000 | |
| (+) Curr Use (HS): | + | $0 | $0 |
| (+) Curr Use (NHS): | + | $0 | $0 |
| | | -------------------------- | |
| (=) Market Value: | = | $563,106 | |
| (–) Productivity Loss: | – | $0 | |
| | | -------------------------- | |
| (=) Subtotal: | = | $563,106 | |
| (+) Senior Appraised Value: | + | $0 | |
| (+) Non-Senior Appraised Value: | + | $563,106 | |
| | | -------------------------- | |
| (=) Total Appraised Value: | = | $563,106 | |
| (–) Senior Exemption Loss: | – | $0 | |
| (–) Exemption Loss: | – | $0 | |
| | | -------------------------- | |
| (=) Taxable Value: | = | $563,106 | |
Taxing Jurisdiction
| Owner: | SUMMERS, DOROTHY JEAN | | |
| % Ownership: | 100.0000000000% | | |
| Total Value: | $563,106 | | |
| Tax Area: | 710 - APPRAISER-S Whid Schl Dist, outside Langley, improved & 1 acre or less |
| CF | Conservation Futures | 0.0316035091 | $563,106 | $563,106 | $17.80 | | |
| FIRE3 | Fire & Rescue Dist #3 S Whidbey GEN | 1.2004855531 | $563,106 | $563,106 | $676.00 | | |
| HOBOND | Hospital BOND | 0.1910887512 | $563,106 | $563,106 | $107.60 | | |
| HOGEN | Hospital GEN | 0.3902502903 | $563,106 | $563,106 | $219.75 | | |
| CE | County Current Expense | 0.3708482477 | $563,106 | $563,106 | $208.83 | | |
| CR | County Roads | 0.4584763726 | $563,106 | $563,106 | $258.17 | | |
| ISLANDEMS | Hospital GEN (EMS) | 0.5000000000 | $563,106 | $563,106 | $281.55 | | |
| LIB | Library Sno-Isle GEN | 0.3153421757 | $563,106 | $563,106 | $177.57 | | |
| PORTWHID | Port of S Whidbey GEN | 0.1094540357 | $563,106 | $563,106 | $61.63 | | |
| SCH206BOND | School 206 BOND | 0.3161759235 | $563,106 | $563,106 | $178.04 | | |
| SCH206MO | School 206 Enrichment | 0.4547169547 | $563,106 | $563,106 | $256.05 | | |
| ST | State School | 1.3035497053 | $563,106 | $563,106 | $734.04 | | |
| ST2 | State School Part 2 | 0.8169543533 | $563,106 | $563,106 | $460.03 | | |
| SWHIDPRBD | P & R S Whidbey BOND | 0.0152817568 | $563,106 | $563,106 | $8.61 | | |
| SWHIDPRBD2 | P & R S Whidbey BOND2 | 0.0138911264 | $563,106 | $563,106 | $7.82 | | |
| SWHIDPRMT | P & R S Whidbey GEN | 0.2053334452 | $563,106 | $563,106 | $115.62 | | |
| | Total Tax Rate: | 6.6934522006 | | | | | |
| | | | | Taxes w/Current Exemptions: | $3,769.11 | | |
| | | | | Taxes w/o Exemptions: | $3,769.11 | | |
Improvement / Building
| Improvement #1: | RESIDENTIAL | State Code: | Y | 1486.0 sqft | Value: | $283,106 |
| Bathrooms: | 2 | Bedrooms: | 2 | | Ceiling: | DRYWALL PAINTED | Exterior Wall/Cover: | SHINGLE | | Floor Covering: | HARDWOOD/CARP 80-20 | Floor Structure: | WOOD W/SUBFLOOR | | Foundation: | CONCRETE | Heating: | FHA ELECTRIC | | Interior Finish: | DRYWALL PAINT | Plumbing Fixture Cnt: | 9 | | Roof Slope: | 12" IN 12" | Roof Structure/Cover: | CJ ALUMINIUM HEAVY |
|
| | Type | Description | Class CD | Sub Class CD | Year Built | Area |
| | BAS | BASE/MAIN FLOOR | 4 | 0 | 1978 | 1066.0 |
| | UB8 | BASEMENT UNFINISHED 8" | 4 | 0 | 1978 | 442.0 |
| | BAW | BALCONY WOOD RAIL | 4 | 0 | 1978 | 52.0 |
| | OWP | OPEN WOOD PORCH W/STEPS | 4 | 0 | 1978 | 280.0 |
| | OWP | OPEN WOOD PORCH W/STEPS | 4 | 0 | 1978 | 168.0 |
| | OWP | OPEN WOOD PORCH W/STEPS | 4 | 0 | 1978 | 48.0 |
| | OWR | OPEN WOOD PORCH W/STEPS/ROOF | 4 | 0 | 1978 | 42.0 |
| | OWC | OPEN WOOD PORCH W/STEPS/ROOF/C | 4 | 0 | 1978 | 42.0 |
| | UPH | HALF STORY | 4 | 0 | 1978 | 420.0 |
Sketch
Property Image
Land
| 1 | 15 | SQ (12001-21780) | 0.0000 | 0.00 | 0.00 | 0.00 | 1.00 | $280,000 | $0 |
Roll Value History
| 2026 | N/A | N/A | N/A | N/A | N/A |
| 2025 | $283,106 | $280,000 | $0 | $563,106 | $563,106 |
| 2024 | $287,582 | $300,000 | $0 | $587,582 | $587,582 |
| 2023 | $292,055 | $300,000 | $0 | $592,055 | $592,055 |
| 2022 | $268,511 | $240,000 | $0 | $508,511 | $508,511 |
| 2021 | $237,015 | $220,000 | $0 | $457,015 | $457,015 |
| 2020 | $231,685 | $170,000 | $0 | $401,685 | $401,685 |
| 2019 | $170,753 | $200,000 | $0 | $370,753 | $370,753 |
| 2018 | $171,370 | $150,000 | $0 | $321,370 | $321,370 |
| 2017 | $172,601 | $120,000 | $0 | $292,601 | $292,601 |
| 2016 | $175,067 | $90,000 | $0 | $265,067 | $265,067 |
| 2015 | $177,533 | $65,000 | $0 | $242,533 | $242,533 |
| 2014 | $179,999 | $65,000 | $0 | $244,999 | $244,999 |
| 2013 | $177,536 | $65,000 | $0 | $242,536 | $242,536 |
| 2012 | $180,002 | $68,850 | $0 | $248,852 | $248,852 |
| 2011 | $182,468 | $81,000 | $0 | $263,468 | $263,468 |
| 2010 | $192,322 | $90,000 | $0 | $282,322 | $282,322 |
| 2009 | $169,093 | $169,093 | $0 | $338,186 | $338,186 |
| 2008 | $200,746 | $140,000 | $0 | $340,746 | $340,746 |
| 2007 | $195,087 | $140,000 | $0 | $335,087 | $335,087 |
Deed and Sales History
| 1 | 04/18/2002 | WD | Warranty Deed | JOHNSON, DIANE G | SUMMERS, DOROTHY JEAN | | | $260,000.00 | 21463 | 4017500 |
| 2 | 07/01/1990 | DECREE | Divorce Decree/Legal Separation | PRICE, JAMES C | JOHNSON, DIANE G | | | $0.00 | 63735 | 0 |
| 3 | 01/01/1900 | OTHER | Other - Misc. Documents | Unknown | PRICE, JAMES C | | | $0.00 | 0 | 0 |
Payout Agreement
| No payout information available.. |