Property
Account |
| Property ID: | 192883 | Abbreviated Legal Description: | BEVERLY BCH 2 LOTS 88 & 89 INCL INT IN RESERVE |
| Geographic ID: | S6135-02-00088-0 | Agent Code: | |
| Type: | Real | | |
| Tax Area: | 710 - APPRAISER-S Whid Schl Dist, outside Langley, improved & 1 acre or less | Land Use Code | 11 |
| Open Space: | N | DFL | N |
| Historic Property: | N | Remodel Property: | N |
| Multi-Family Redevelopment: | N | | |
| Township: | | Section: | |
| Range: | |
Location |
| Address: | 4267 MAPLE AVE FREELAND, WA 98249 | Mapsco: | |
| Neighborhood: | Cycle 3 | Map ID: | 416 |
| Neighborhood CD: | 3 |
Owner |
| Name: | KOUTSKY TTEE, ELLEN J | Owner ID: | 95787 |
| Mailing Address: | 6036 BELLEVUE AVE LA JOLLA, CA 92037-6706 | % Ownership: | 100.0000000000% |
| | | Exemptions: | |
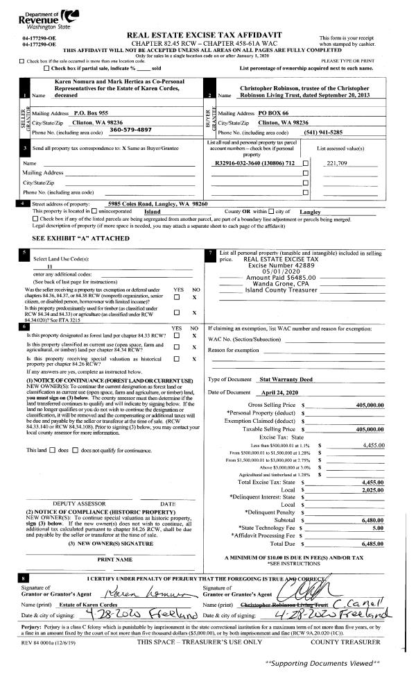
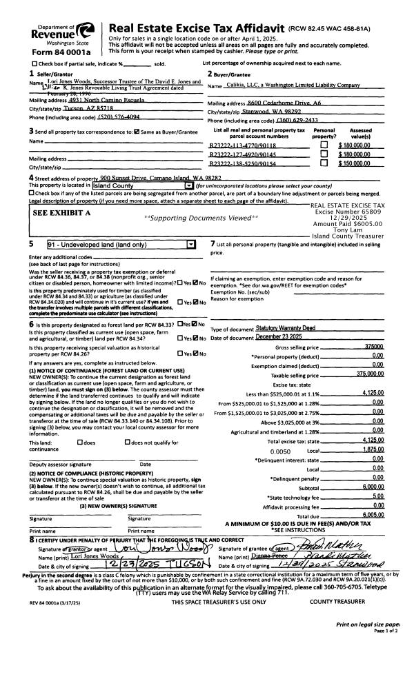
Taxes and Assessment Details
Values
| (+) Improvement Homesite Value: | + | $0 | |
| (+) Improvement Non-Homesite Value: | + | $404,694 | |
| (+) Land Homesite Value: | + | $0 | |
| (+) Land Non-Homesite Value: | + | $310,000 | |
| (+) Curr Use (HS): | + | $0 | $0 |
| (+) Curr Use (NHS): | + | $0 | $0 |
| | | -------------------------- | |
| (=) Market Value: | = | $714,694 | |
| (–) Productivity Loss: | – | $0 | |
| | | -------------------------- | |
| (=) Subtotal: | = | $714,694 | |
| (+) Senior Appraised Value: | + | $0 | |
| (+) Non-Senior Appraised Value: | + | $714,694 | |
| | | -------------------------- | |
| (=) Total Appraised Value: | = | $714,694 | |
| (–) Senior Exemption Loss: | – | $0 | |
| (–) Exemption Loss: | – | $0 | |
| | | -------------------------- | |
| (=) Taxable Value: | = | $714,694 | |
Taxing Jurisdiction
| Owner: | KOUTSKY TTEE, ELLEN J | | |
| % Ownership: | 100.0000000000% | | |
| Total Value: | $714,694 | | |
| Tax Area: | 710 - APPRAISER-S Whid Schl Dist, outside Langley, improved & 1 acre or less |
| CF | Conservation Futures | 0.0316035091 | $714,694 | $714,694 | $22.59 | | |
| FIRE3 | Fire & Rescue Dist #3 S Whidbey GEN | 1.2004855531 | $714,694 | $714,694 | $857.98 | | |
| HOBOND | Hospital BOND | 0.1910887512 | $714,694 | $714,694 | $136.57 | | |
| HOGEN | Hospital GEN | 0.3902502903 | $714,694 | $714,694 | $278.91 | | |
| CE | County Current Expense | 0.3708482477 | $714,694 | $714,694 | $265.04 | | |
| CR | County Roads | 0.4584763726 | $714,694 | $714,694 | $327.67 | | |
| ISLANDEMS | Hospital GEN (EMS) | 0.5000000000 | $714,694 | $714,694 | $357.35 | | |
| LIB | Library Sno-Isle GEN | 0.3153421757 | $714,694 | $714,694 | $225.37 | | |
| PORTWHID | Port of S Whidbey GEN | 0.1094540357 | $714,694 | $714,694 | $78.23 | | |
| SCH206BOND | School 206 BOND | 0.3161759235 | $714,694 | $714,694 | $225.97 | | |
| SCH206MO | School 206 Enrichment | 0.4547169547 | $714,694 | $714,694 | $324.98 | | |
| ST | State School | 1.3035497053 | $714,694 | $714,694 | $931.64 | | |
| ST2 | State School Part 2 | 0.8169543533 | $714,694 | $714,694 | $583.87 | | |
| SWHIDPRBD | P & R S Whidbey BOND | 0.0152817568 | $714,694 | $714,694 | $10.92 | | |
| SWHIDPRBD2 | P & R S Whidbey BOND2 | 0.0138911264 | $714,694 | $714,694 | $9.93 | | |
| SWHIDPRMT | P & R S Whidbey GEN | 0.2053334452 | $714,694 | $714,694 | $146.75 | | |
| | Total Tax Rate: | 6.6934522006 | | | | | |
| | | | | Taxes w/Current Exemptions: | $4,783.77 | | |
| | | | | Taxes w/o Exemptions: | $4,783.77 | | |
Improvement / Building
| Improvement #1: | RESIDENTIAL | State Code: | Y | 1701.5 sqft | Value: | $404,694 |
| Bathrooms: | 2 | Bedrooms: | 2 | | Ceiling: | DRYWALL PAINTED | Cooling: | HEAT PUMP/CONV/V | | Exterior Wall/Cover: | CEMENT FIBER | Floor Covering: | CORK | | Floor Structure: | WOOD W/SUBFLOOR | Foundation: | CONCRETE | | Interior Finish: | DRYWALL PAINT | Plumbing Fixture Cnt: | 9 | | Roof Slope: | 3" IN 12" | Roof Structure/Cover: | CJ ASPHALT |
|
| | Type | Description | Class CD | Sub Class CD | Year Built | Area |
| | BAS | BASE/MAIN FLOOR | 4 | 0 | 2018 | 1701.5 |
| | UTY | STORAGE/UTILITY | 4 | 0 | 2018 | 322.0 |
| | BGR | BASEMENT GARAGE | 4 | 0 | 2018 | 576.0 |
| | OP4 | OPEN PORCH W/CEILING-ROOF | 4 | 0 | 2018 | 154.0 |
| | OP1 | OPEN PORCH SLAB | 4 | 0 | 2018 | 294.0 |
| | BAI | BALCONY IRON RAIL | 4 | 0 | 2018 | 144.0 |
Sketch
Property Image
Land
| 1 | 15 | SQ (12001-21780) | 0.0000 | 0.00 | 0.00 | 0.00 | 1.00 | $310,000 | $0 |
Roll Value History
| 2026 | N/A | N/A | N/A | N/A | N/A |
| 2025 | $404,694 | $310,000 | $0 | $714,694 | $714,694 |
| 2024 | $407,985 | $310,000 | $0 | $717,985 | $717,985 |
| 2023 | $411,276 | $280,000 | $0 | $691,276 | $691,276 |
| 2022 | $375,398 | $280,000 | $0 | $655,398 | $655,398 |
| 2021 | $329,021 | $220,000 | $0 | $549,021 | $549,021 |
| 2020 | $320,093 | $200,000 | $0 | $520,093 | $520,093 |
| 2019 | $238,855 | $230,000 | $0 | $468,855 | $468,855 |
| 2018 | $240,660 | $180,000 | $0 | $420,660 | $420,660 |
| 2017 | $4,000 | $120,000 | $0 | $124,000 | $124,000 |
| 2016 | $103,355 | $115,000 | $0 | $218,355 | $218,355 |
| 2015 | $105,305 | $75,000 | $0 | $180,305 | $180,305 |
| 2014 | $107,256 | $85,000 | $0 | $192,256 | $192,256 |
| 2013 | $104,352 | $85,000 | $0 | $189,352 | $189,352 |
| 2012 | $106,088 | $91,800 | $0 | $197,888 | $197,888 |
| 2011 | $107,823 | $108,000 | $0 | $215,823 | $215,823 |
| 2010 | $123,279 | $120,000 | $0 | $243,279 | $243,279 |
| 2009 | $126,743 | $200,000 | $0 | $326,743 | $326,743 |
| 2008 | $128,787 | $140,000 | $0 | $268,787 | $268,787 |
| 2007 | $117,326 | $140,000 | $0 | $257,326 | $257,326 |
Deed and Sales History
| 1 | 12/03/2008 | QCD | Quit Claim Deed | SHULTS, CLIFFORD W | KOUTSKY TTEE, ELLEN J | | | $0.00 | 83096 | 4241024 |
| 2 | 06/01/1996 | QCD | Quit Claim Deed | SHULTS, CLIFFORD W | SHULTS, CLIFFORD W | | | $0.00 | 62375 | 96011749 |
| 3 | 07/01/1994 | OTHER | Other - Misc. Documents | SHULTS, CLIFFORD W | SHULTS, CLIFFORD W | | | $0.00 | 65983 | 94016022 |
| 4 | 07/01/1993 | WD | Warranty Deed | OWENS, CECILIA | SHULTS, CLIFFORD W | | | $150,000.00 | 32815 | 93014486 |
| 5 | 06/01/1992 | WD | Warranty Deed | KALB, CAROL M | OWENS, CECILIA | | | $120,000.00 | 22356 | 92011354 |
| 6 | 03/01/1992 | OTHER | Other - Misc. Documents | KALB, RICHARD L | KALB, CAROL M | | | $0.00 | 64721 | 91008591 |
| 7 | 01/01/1900 | OTHER | Other - Misc. Documents | Unknown | KALB, RICHARD L | | | $0.00 | 39957 | 0 |
Payout Agreement
| No payout information available.. |