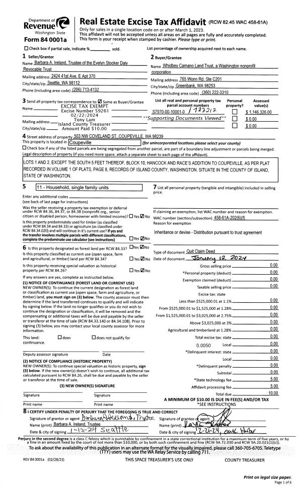
Property
Account |
| Property ID: | 19312 | Abbreviated Legal Description: | 38 - BG SWCR SW SE E970' TPB N580' E325' TO WLN BALDA RD S TO SLN SW SE W325' TPB SUB TO EZ |
| Geographic ID: | R13215-029-3790 | Agent Code: | |
| Type: | Real | | |
| Tax Area: | 112 - APPRAISER-OH Schl Dist, outside OH, improved, greater than 1 acre | Land Use Code | 11 |
| Open Space: | N | DFL | N |
| Historic Property: | N | Remodel Property: | N |
| Multi-Family Redevelopment: | N | | |
| Township: | 32 | Section: | 15 |
| Range: | R1 |
Location |
| Address: | 910 MOORE BECK LN OAK HARBOR, WA 98277 | Mapsco: | |
| Neighborhood: | Cycle 1 | Map ID: | 125 |
| Neighborhood CD: | 1 |
Owner |
| Name: | ROLLINS, WILLIAM W JR | Owner ID: | 70790 |
| Mailing Address: | REBECCA L ROLLINS 910 MOORE BECK LN OAK HARBOR, WA 98277-8487 | % Ownership: | 100.0000000000% |
| | | Exemptions: | |
Taxes and Assessment Details
Values
| (+) Improvement Homesite Value: | + | $0 | |
| (+) Improvement Non-Homesite Value: | + | $201,839 | |
| (+) Land Homesite Value: | + | $0 | |
| (+) Land Non-Homesite Value: | + | $290,000 | |
| (+) Curr Use (HS): | + | $0 | $0 |
| (+) Curr Use (NHS): | + | $0 | $0 |
| | | -------------------------- | |
| (=) Market Value: | = | $491,839 | |
| (–) Productivity Loss: | – | $0 | |
| | | -------------------------- | |
| (=) Subtotal: | = | $491,839 | |
| (+) Senior Appraised Value: | + | $0 | |
| (+) Non-Senior Appraised Value: | + | $491,839 | |
| | | -------------------------- | |
| (=) Total Appraised Value: | = | $491,839 | |
| (–) Senior Exemption Loss: | – | $0 | |
| (–) Exemption Loss: | – | $0 | |
| | | -------------------------- | |
| (=) Taxable Value: | = | $491,839 | |
Taxing Jurisdiction
| Owner: | ROLLINS, WILLIAM W JR | | |
| % Ownership: | 100.0000000000% | | |
| Total Value: | $491,839 | | |
| Tax Area: | 112 - APPRAISER-OH Schl Dist, outside OH, improved, greater than 1 acre |
| CF | Conservation Futures | 0.0316035091 | $491,839 | $491,839 | $15.54 | | |
| CEM1 | Cemetery #1 | 0.0040320932 | $491,839 | $491,839 | $1.98 | | |
| FIRE2 | Fire & Rescue Dist #2 N Whidbey GEN | 0.5475949600 | $491,839 | $491,839 | $269.33 | | |
| HOBOND | Hospital BOND | 0.1910887512 | $491,839 | $491,839 | $93.98 | | |
| HOGEN | Hospital GEN | 0.3902502903 | $491,839 | $491,839 | $191.94 | | |
| CE | County Current Expense | 0.3708482477 | $491,839 | $491,839 | $182.40 | | |
| CR | County Roads | 0.4584763726 | $491,839 | $491,839 | $225.50 | | |
| ISLANDEMS | Hospital GEN (EMS) | 0.5000000000 | $491,839 | $491,839 | $245.92 | | |
| LIB | Library Sno-Isle GEN | 0.3153421757 | $491,839 | $491,839 | $155.10 | | |
| NWHIDPRMT | P & R N Whidbey GEN | 0.2004466701 | $491,839 | $491,839 | $98.59 | | |
| SCH201MO | School 201 Enrichment | 1.8559231640 | $491,839 | $491,839 | $912.82 | | |
| ST | State School | 1.3035497053 | $491,839 | $491,839 | $641.14 | | |
| ST2 | State School Part 2 | 0.8169543533 | $491,839 | $491,839 | $401.81 | | |
| | Total Tax Rate: | 6.9861102925 | | | | | |
| | | | | Taxes w/Current Exemptions: | $3,436.05 | | |
| | | | | Taxes w/o Exemptions: | $3,436.05 | | |
Improvement / Building
| Improvement #1: | RESIDENTIAL | State Code: | Y | 1492.0 sqft | Value: | $201,839 |
| Bathrooms: | 2 | Bedrooms: | 3 | | Ceiling: | DRYWALL PAINTED | Exterior Wall/Cover: | VINYL | | Floor Covering: | CARPET/VINYL 20-80 | Floor Structure: | WOOD W/SUBFLOOR | | Foundation: | CONCRETE BLOCKS | Heating: | FHA OIL | | Interior Finish: | DRYWALL PAINT | Plumbing Fixture Cnt: | 9 | | Roof Slope: | 4" IN 12" | Roof Structure/Cover: | CJ ALUMINIUM HEAVY |
|
| | Type | Description | Class CD | Sub Class CD | Year Built | Area |
| | BAS | BASE/MAIN FLOOR | 3 | 0 | 1957 | 1492.0 |
| | UTY | STORAGE/UTILITY | 3 | 0 | 1957 | 672.0 |
Sketch
Property Image
Land
| 1 | 32 | AC (03.01-09.99) | 4.3400 | 0.00 | 0.00 | 0.00 | 1.00 | $290,000 | $0 |
Roll Value History
| 2026 | N/A | N/A | N/A | N/A | N/A |
| 2025 | $201,839 | $290,000 | $0 | $491,839 | $491,839 |
| 2024 | $205,134 | $260,000 | $0 | $465,134 | $465,134 |
| 2023 | $162,295 | $250,000 | $0 | $412,295 | $412,295 |
| 2022 | $149,947 | $220,000 | $0 | $369,947 | $369,947 |
| 2021 | $132,985 | $190,000 | $0 | $322,985 | $322,985 |
| 2020 | $130,595 | $140,000 | $0 | $270,595 | $270,595 |
| 2019 | $94,888 | $200,000 | $0 | $294,888 | $294,888 |
| 2018 | $95,333 | $170,000 | $0 | $265,333 | $265,333 |
| 2017 | $76,451 | $160,000 | $0 | $236,451 | $236,451 |
| 2016 | $77,759 | $160,000 | $0 | $237,759 | $237,759 |
| 2015 | $79,067 | $135,000 | $0 | $214,067 | $214,067 |
| 2014 | $80,375 | $135,000 | $0 | $215,375 | $215,375 |
| 2013 | $81,683 | $105,462 | $0 | $187,145 | $187,145 |
| 2012 | $82,991 | $105,462 | $0 | $188,453 | $188,453 |
| 2011 | $85,051 | $117,180 | $0 | $202,231 | $202,231 |
| 2010 | $89,784 | $117,180 | $0 | $206,964 | $206,964 |
| 2009 | $94,388 | $138,880 | $0 | $233,268 | $233,268 |
| 2008 | $101,847 | $139,991 | $0 | $241,838 | $241,838 |
| 2007 | $103,952 | $139,991 | $0 | $243,943 | $243,943 |
Deed and Sales History
| 1 | 06/01/1993 | WD | Warranty Deed | MOORE, MICHAEL E | ROLLINS, WILLIAM W | | | $112,000.00 | 32437 | 93012499 |
| 2 | 03/01/1991 | WD | Warranty Deed | HUMPHREY, RHONDA C | MOORE, MICHAEL E | | | $82,000.00 | 10787 | 91003462 |
| 3 | 08/01/1989 | DECREE | Divorce Decree/Legal Separation | LAPRESTA, TIMOTHY M | HUMPHREY, RHONDA C | | | $0.00 | 93871 | 89012931 |
| 4 | 01/01/1900 | OTHER | Other - Misc. Documents | Unknown | LAPRESTA, TIMOTHY M | | | $0.00 | 0 | 0 |
Payout Agreement
| No payout information available.. |