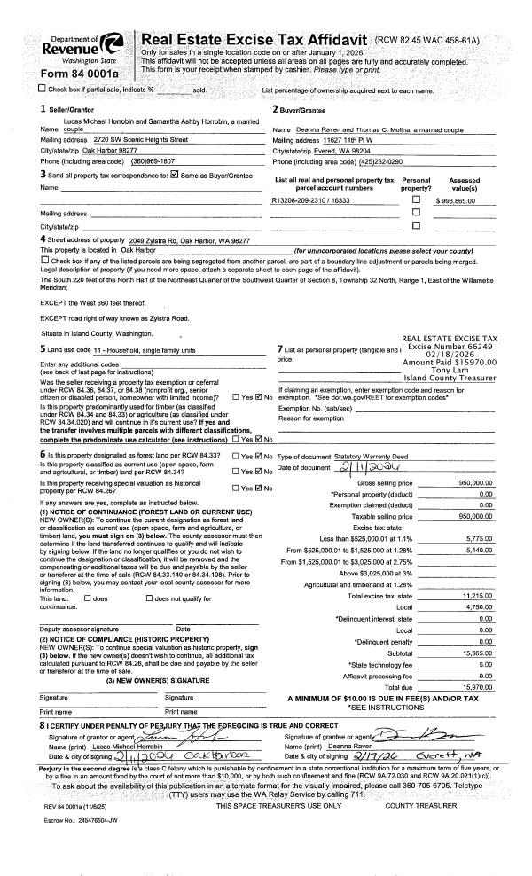
Property
Account |
| Property ID: | 193285 | Abbreviated Legal Description: | BEVERLY BCH 2 LOT 137 INCL ADJ TIDES & INT IN RES |
| Geographic ID: | S6135-02-00137-0 | Agent Code: | |
| Type: | Real | | |
| Tax Area: | 710 - APPRAISER-S Whid Schl Dist, outside Langley, improved & 1 acre or less | Land Use Code | 11 |
| Open Space: | N | DFL | N |
| Historic Property: | N | Remodel Property: | N |
| Multi-Family Redevelopment: | N | | |
| Township: | | Section: | |
| Range: | |
Location |
| Address: | | Mapsco: | |
| Neighborhood: | Cycle 3 | Map ID: | 417 |
| Neighborhood CD: | 3 |
Owner |
| Name: | GUICHARD, JOHN E | Owner ID: | 95825 |
| Mailing Address: | THOMAS R GUICHARD 17417 ASHWORTH AVE N U#208 SHORELINE, WA 98133-5463 | % Ownership: | 100.0000000000% |
| | | Exemptions: | |
Taxes and Assessment Details
Values
| (+) Improvement Homesite Value: | + | $0 | |
| (+) Improvement Non-Homesite Value: | + | $478,241 | |
| (+) Land Homesite Value: | + | $0 | |
| (+) Land Non-Homesite Value: | + | $600,450 | |
| (+) Curr Use (HS): | + | $0 | $0 |
| (+) Curr Use (NHS): | + | $0 | $0 |
| | | -------------------------- | |
| (=) Market Value: | = | $1,078,691 | |
| (–) Productivity Loss: | – | $0 | |
| | | -------------------------- | |
| (=) Subtotal: | = | $1,078,691 | |
| (+) Senior Appraised Value: | + | $0 | |
| (+) Non-Senior Appraised Value: | + | $1,078,691 | |
| | | -------------------------- | |
| (=) Total Appraised Value: | = | $1,078,691 | |
| (–) Senior Exemption Loss: | – | $0 | |
| (–) Exemption Loss: | – | $0 | |
| | | -------------------------- | |
| (=) Taxable Value: | = | $1,078,691 | |
Taxing Jurisdiction
| Owner: | GUICHARD, JOHN E | | |
| % Ownership: | 100.0000000000% | | |
| Total Value: | $1,078,691 | | |
| Tax Area: | 710 - APPRAISER-S Whid Schl Dist, outside Langley, improved & 1 acre or less |
| CF | Conservation Futures | 0.0316035091 | $1,078,691 | $1,078,691 | $34.09 | | |
| FIRE3 | Fire & Rescue Dist #3 S Whidbey GEN | 1.2004855531 | $1,078,691 | $1,078,691 | $1,294.95 | | |
| HOBOND | Hospital BOND | 0.1910887512 | $1,078,691 | $1,078,691 | $206.13 | | |
| HOGEN | Hospital GEN | 0.3902502903 | $1,078,691 | $1,078,691 | $420.96 | | |
| CE | County Current Expense | 0.3708482477 | $1,078,691 | $1,078,691 | $400.03 | | |
| CR | County Roads | 0.4584763726 | $1,078,691 | $1,078,691 | $494.55 | | |
| ISLANDEMS | Hospital GEN (EMS) | 0.5000000000 | $1,078,691 | $1,078,691 | $539.35 | | |
| LIB | Library Sno-Isle GEN | 0.3153421757 | $1,078,691 | $1,078,691 | $340.16 | | |
| PORTWHID | Port of S Whidbey GEN | 0.1094540357 | $1,078,691 | $1,078,691 | $118.07 | | |
| SCH206BOND | School 206 BOND | 0.3161759235 | $1,078,691 | $1,078,691 | $341.06 | | |
| SCH206MO | School 206 Enrichment | 0.4547169547 | $1,078,691 | $1,078,691 | $490.50 | | |
| ST | State School | 1.3035497053 | $1,078,691 | $1,078,691 | $1,406.13 | | |
| ST2 | State School Part 2 | 0.8169543533 | $1,078,691 | $1,078,691 | $881.24 | | |
| SWHIDPRBD | P & R S Whidbey BOND | 0.0152817568 | $1,078,691 | $1,078,691 | $16.48 | | |
| SWHIDPRBD2 | P & R S Whidbey BOND2 | 0.0138911264 | $1,078,691 | $1,078,691 | $14.98 | | |
| SWHIDPRMT | P & R S Whidbey GEN | 0.2053334452 | $1,078,691 | $1,078,691 | $221.49 | | |
| | Total Tax Rate: | 6.6934522006 | | | | | |
| | | | | Taxes w/Current Exemptions: | $7,220.17 | | |
| | | | | Taxes w/o Exemptions: | $7,220.17 | | |
Improvement / Building
| Improvement #1: | RESIDENTIAL | State Code: | Y | 2603.2 sqft | Value: | $478,241 |
| Bathrooms: | 3.5 | Bedrooms: | 4 | | Ceiling: | DRYWALL PAINTED | Cooling: | HEAT PUMP/CONV/V | | Exterior Wall/Cover: | CEMENT FIBER | Floor Covering: | HARDWOOD/CARP 20-80 | | Floor Structure: | WOOD W/SUBFLOOR | Foundation: | SLAB/CONCRETE | | Interior Finish: | DRYWALL PAINT | Plumbing Fixture Cnt: | 17 | | Roof Slope: | 6" IN 12" | Roof Structure/Cover: | CJ ASPHALT |
|
| | Type | Description | Class CD | Sub Class CD | Year Built | Area |
| | BAS | BASE/MAIN FLOOR | 4 | 0 | 2019 | 1082.2 |
| | AGR | ATTACHED GARAGE | 4 | 0 | 2019 | 445.5 |
| | DWN | DOWNSTAIRS LIVING AREA | 4 | 0 | 2019 | 1521.0 |
| | OWP | OPEN WOOD PORCH W/STEPS | 4 | 0 | 2019 | 400.0 |
| | OWP | OPEN WOOD PORCH W/STEPS | 4 | 0 | 2019 | 289.0 |
Sketch
Property Image
Land
| 1 | HB | HIGH BLUFF | 0.0000 | 0.00 | 50.00 | 0.00 | 1.00 | $600,000 | $0 |
| 2 | 55 | TIDES | 0.0000 | 0.00 | 50.00 | 0.00 | 1.00 | $450 | $0 |
Roll Value History
| 2026 | N/A | N/A | N/A | N/A | N/A |
| 2025 | $478,241 | $600,450 | $0 | $1,078,691 | $1,078,691 |
| 2024 | $482,099 | $600,450 | $0 | $1,082,549 | $1,082,549 |
| 2023 | $485,955 | $550,450 | $0 | $1,036,405 | $1,036,405 |
| 2022 | $443,532 | $500,450 | $0 | $943,982 | $943,982 |
| 2021 | $389,726 | $450,450 | $0 | $840,176 | $840,176 |
| 2020 | $267,057 | $450,450 | $0 | $717,507 | $717,507 |
| 2019 | $199,359 | $500,450 | $0 | $699,809 | $699,809 |
| 2018 | $0 | $500,450 | $0 | $500,450 | $500,450 |
| 2017 | $0 | $35,450 | $0 | $35,450 | $35,450 |
| 2016 | $0 | $35,450 | $0 | $35,450 | $35,450 |
| 2015 | $0 | $31,440 | $0 | $31,440 | $31,440 |
| 2014 | $0 | $31,440 | $0 | $31,440 | $31,440 |
| 2013 | $0 | $31,440 | $0 | $31,440 | $31,440 |
| 2012 | $0 | $31,440 | $0 | $31,440 | $31,440 |
| 2011 | $0 | $31,440 | $0 | $31,440 | $31,440 |
| 2010 | $0 | $34,938 | $0 | $34,938 | $34,938 |
| 2009 | $2 | $48,299 | $0 | $48,301 | $48,301 |
| 2008 | $2 | $36,329 | $0 | $36,331 | $36,331 |
| 2007 | $2 | $35,979 | $0 | $35,981 | $35,981 |
Deed and Sales History
| 1 | 12/01/1991 | QCD | Quit Claim Deed | THELBERG, LLOYD | GUICHARD, JOHN E | | | $0.00 | 14591 | 91020054 |
| 2 | 01/01/1900 | OTHER | Other - Misc. Documents | Unknown | THELBERG, LLOYD | | | $0.00 | 0 | 0 |
Payout Agreement
| No payout information available.. |