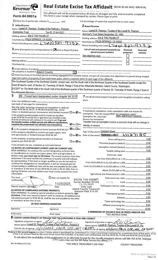
Property
Account |
| Property ID: | 193454 | Abbreviated Legal Description: | BEVERLY BCH 3 LOT 16 BLK 1 |
| Geographic ID: | S6135-03-01016-0 | Agent Code: | |
| Type: | Real | | |
| Tax Area: | 710 - APPRAISER-S Whid Schl Dist, outside Langley, improved & 1 acre or less | Land Use Code | 11 |
| Open Space: | N | DFL | N |
| Historic Property: | N | Remodel Property: | N |
| Multi-Family Redevelopment: | N | | |
| Township: | | Section: | |
| Range: | |
Location |
| Address: | 1952 MOONLIGHT DR FREELAND, WA 98249 | Mapsco: | |
| Neighborhood: | Cycle 3 | Map ID: | 406 |
| Neighborhood CD: | 3 |
Owner |
| Name: | BINGHAM, STEPHEN E | Owner ID: | 269028 |
| Mailing Address: | ARDETH B BOLIN TRUSTEE 3675 HOLMES VIEW DR LANGLEY, WA 98260 | % Ownership: | 100.0000000000% |
| | | Exemptions: | |
Taxes and Assessment Details
Values
| (+) Improvement Homesite Value: | + | $0 | |
| (+) Improvement Non-Homesite Value: | + | $243,877 | |
| (+) Land Homesite Value: | + | $0 | |
| (+) Land Non-Homesite Value: | + | $280,000 | |
| (+) Curr Use (HS): | + | $0 | $0 |
| (+) Curr Use (NHS): | + | $0 | $0 |
| | | -------------------------- | |
| (=) Market Value: | = | $523,877 | |
| (–) Productivity Loss: | – | $0 | |
| | | -------------------------- | |
| (=) Subtotal: | = | $523,877 | |
| (+) Senior Appraised Value: | + | $0 | |
| (+) Non-Senior Appraised Value: | + | $523,877 | |
| | | -------------------------- | |
| (=) Total Appraised Value: | = | $523,877 | |
| (–) Senior Exemption Loss: | – | $0 | |
| (–) Exemption Loss: | – | $0 | |
| | | -------------------------- | |
| (=) Taxable Value: | = | $523,877 | |
Taxing Jurisdiction
| Owner: | BINGHAM, STEPHEN E | | |
| % Ownership: | 100.0000000000% | | |
| Total Value: | $523,877 | | |
| Tax Area: | 710 - APPRAISER-S Whid Schl Dist, outside Langley, improved & 1 acre or less |
| CF | Conservation Futures | 0.0316035091 | $523,877 | $523,877 | $16.56 | | |
| FIRE3 | Fire & Rescue Dist #3 S Whidbey GEN | 1.2004855531 | $523,877 | $523,877 | $628.91 | | |
| HOBOND | Hospital BOND | 0.1910887512 | $523,877 | $523,877 | $100.11 | | |
| HOGEN | Hospital GEN | 0.3902502903 | $523,877 | $523,877 | $204.44 | | |
| CE | County Current Expense | 0.3708482477 | $523,877 | $523,877 | $194.28 | | |
| CR | County Roads | 0.4584763726 | $523,877 | $523,877 | $240.19 | | |
| ISLANDEMS | Hospital GEN (EMS) | 0.5000000000 | $523,877 | $523,877 | $261.94 | | |
| LIB | Library Sno-Isle GEN | 0.3153421757 | $523,877 | $523,877 | $165.20 | | |
| PORTWHID | Port of S Whidbey GEN | 0.1094540357 | $523,877 | $523,877 | $57.34 | | |
| SCH206BOND | School 206 BOND | 0.3161759235 | $523,877 | $523,877 | $165.64 | | |
| SCH206MO | School 206 Enrichment | 0.4547169547 | $523,877 | $523,877 | $238.22 | | |
| ST | State School | 1.3035497053 | $523,877 | $523,877 | $682.90 | | |
| ST2 | State School Part 2 | 0.8169543533 | $523,877 | $523,877 | $427.98 | | |
| SWHIDPRBD | P & R S Whidbey BOND | 0.0152817568 | $523,877 | $523,877 | $8.01 | | |
| SWHIDPRBD2 | P & R S Whidbey BOND2 | 0.0138911264 | $523,877 | $523,877 | $7.28 | | |
| SWHIDPRMT | P & R S Whidbey GEN | 0.2053334452 | $523,877 | $523,877 | $107.57 | | |
| | Total Tax Rate: | 6.6934522006 | | | | | |
| | | | | Taxes w/Current Exemptions: | $3,506.57 | | |
| | | | | Taxes w/o Exemptions: | $3,506.57 | | |
Improvement / Building
| Improvement #1: | RESIDENTIAL | State Code: | Y | 1294.0 sqft | Value: | $243,877 |
| Bathrooms: | 2 | Bedrooms: | 3 | | Ceiling: | DRYWALL PAINTED | Exterior Wall/Cover: | PLY/HARDBOARD T-111 | | Floor Covering: | CARPET/VINYL 80-20 | Floor Structure: | WOOD W/SUBFLOOR | | Foundation: | CONCRETE | Heating: | WALL HEAT ELECTRIC | | Interior Finish: | DRYWALL PAINT | Plumbing Fixture Cnt: | 10 | | Roof Slope: | 6" IN 12" | Roof Structure/Cover: | CJ ASPHALT |
|
| | Type | Description | Class CD | Sub Class CD | Year Built | Area |
| | BAS | BASE/MAIN FLOOR | 3 | 0 | 1993 | 1294.0 |
| | AGR | ATTACHED GARAGE | 3 | 0 | 1993 | 484.0 |
| | OWP | OPEN WOOD PORCH W/STEPS | 3 | 0 | 1993 | 58.6 |
| | OWC | OPEN WOOD PORCH W/STEPS/ROOF/C | 3 | 0 | 1993 | 110.0 |
| | OWC | OPEN WOOD PORCH W/STEPS/ROOF/C | 3 | 0 | 1993 | 88.0 |
| | oUTI | UTILITY | 3 | 0 | 1993 | 0.0 |
Sketch
Property Image
Land
| 1 | 15 | SQ (12001-21780) | 0.0000 | 0.00 | 0.00 | 0.00 | 1.00 | $280,000 | $0 |
Roll Value History
| 2026 | N/A | N/A | N/A | N/A | N/A |
| 2025 | $243,877 | $280,000 | $0 | $523,877 | $523,877 |
| 2024 | $247,086 | $300,000 | $0 | $547,086 | $547,086 |
| 2023 | $250,293 | $300,000 | $0 | $550,293 | $550,293 |
| 2022 | $229,779 | $240,000 | $0 | $469,779 | $469,779 |
| 2021 | $202,664 | $220,000 | $0 | $422,664 | $422,664 |
| 2020 | $197,180 | $170,000 | $0 | $367,180 | $367,180 |
| 2019 | $128,804 | $200,000 | $0 | $328,804 | $328,804 |
| 2018 | $129,231 | $150,000 | $0 | $279,231 | $279,231 |
| 2017 | $130,076 | $120,000 | $0 | $250,076 | $250,076 |
| 2016 | $131,776 | $90,000 | $0 | $221,776 | $221,776 |
| 2015 | $133,477 | $65,000 | $0 | $198,477 | $198,477 |
| 2014 | $135,177 | $65,000 | $0 | $200,177 | $200,177 |
| 2013 | $139,905 | $65,000 | $0 | $204,905 | $204,905 |
| 2012 | $141,606 | $68,850 | $0 | $210,456 | $210,456 |
| 2011 | $143,307 | $81,000 | $0 | $224,307 | $224,307 |
| 2010 | $151,194 | $90,000 | $0 | $241,194 | $241,194 |
| 2009 | $157,656 | $200,000 | $0 | $357,656 | $357,656 |
| 2008 | $159,771 | $140,000 | $0 | $299,771 | $299,771 |
| 2007 | $161,406 | $140,000 | $0 | $301,406 | $301,406 |
Deed and Sales History
| 1 | 11/13/2014 | WD | Warranty Deed | BINGHAM TRUSTEE, STEPHEN E | BINGHAM, STEPHEN E | | | $0.00 | 18268 | 4372052 |
| 2 | 12/13/2011 | PRD | Personal Representatives Deed | BINGHAM, MARGARET A | BINGHAM TRUSTEE, STEPHEN E | | | $0.00 | 6583 | 4307792 |
| 3 | 08/01/2007 | WD | Warranty Deed | MITCHELL III, WILLIAM P | BINGHAM, MARGARET A | | | $291,500.00 | 72723 | 4209226 |
| 4 | 05/20/2003 | QCD | Quit Claim Deed | MITCHELL, WILLIAM P | MITCHELL III, WILLIAM P | | | $0.00 | 32210 | 4060334 |
| 5 | 02/01/1994 | WD | Warranty Deed | MALOY, MIKE & | MITCHELL, WILLIAM P | | | $118,250.00 | 40744 | 94004641 |
| 6 | 04/01/1993 | WD | Warranty Deed | KLOTZ, MEL | MALOY, MIKE & | | | $20,000.00 | 31132 | 93005752 |
| 7 | 11/01/1988 | WD | Warranty Deed | JAMES, I M | KLOTZ, MEL | | | $7,000.00 | 83956 | 88014816 |
| 8 | 01/01/1900 | OTHER | Other - Misc. Documents | Unknown | JAMES, I M | | | $0.00 | 0 | 0 |
Payout Agreement
| No payout information available.. |