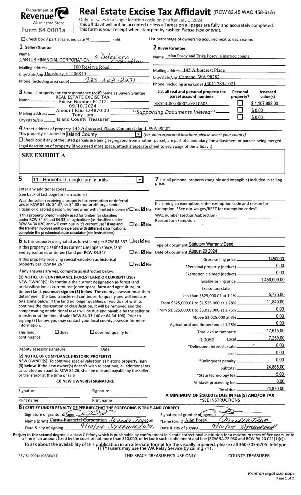
Property
Account |
| Property ID: | 193588 | Abbreviated Legal Description: | BEVERLY BCH 3 LOT 5 BLK 3 |
| Geographic ID: | S6135-03-03005-0 | Agent Code: | |
| Type: | Real | | |
| Tax Area: | 710 - APPRAISER-S Whid Schl Dist, outside Langley, improved & 1 acre or less | Land Use Code | 11 |
| Open Space: | N | DFL | N |
| Historic Property: | N | Remodel Property: | N |
| Multi-Family Redevelopment: | N | | |
| Township: | | Section: | |
| Range: | |
Location |
| Address: | 1923 MOONLIGHT DR FREELAND, WA 98249 | Mapsco: | |
| Neighborhood: | Cycle 3 | Map ID: | 406 |
| Neighborhood CD: | 3 |
Owner |
| Name: | SLATTUM, TYLER D | Owner ID: | 310779 |
| Mailing Address: | 1923 MOONLIGHT DR FREELAND, WA 98249 | % Ownership: | 100.0000000000% |
| | | Exemptions: | |
Taxes and Assessment Details
Values
| (+) Improvement Homesite Value: | + | $0 | |
| (+) Improvement Non-Homesite Value: | + | $117,793 | |
| (+) Land Homesite Value: | + | $0 | |
| (+) Land Non-Homesite Value: | + | $270,000 | |
| (+) Curr Use (HS): | + | $0 | $0 |
| (+) Curr Use (NHS): | + | $0 | $0 |
| | | -------------------------- | |
| (=) Market Value: | = | $387,793 | |
| (–) Productivity Loss: | – | $0 | |
| | | -------------------------- | |
| (=) Subtotal: | = | $387,793 | |
| (+) Senior Appraised Value: | + | $0 | |
| (+) Non-Senior Appraised Value: | + | $387,793 | |
| | | -------------------------- | |
| (=) Total Appraised Value: | = | $387,793 | |
| (–) Senior Exemption Loss: | – | $0 | |
| (–) Exemption Loss: | – | $0 | |
| | | -------------------------- | |
| (=) Taxable Value: | = | $387,793 | |
Taxing Jurisdiction
| Owner: | SLATTUM, TYLER D | | |
| % Ownership: | 100.0000000000% | | |
| Total Value: | $387,793 | | |
| Tax Area: | 710 - APPRAISER-S Whid Schl Dist, outside Langley, improved & 1 acre or less |
| CF | Conservation Futures | 0.0316035091 | $387,793 | $387,793 | $12.26 | | |
| FIRE3 | Fire & Rescue Dist #3 S Whidbey GEN | 1.2004855531 | $387,793 | $387,793 | $465.54 | | |
| HOBOND | Hospital BOND | 0.1910887512 | $387,793 | $387,793 | $74.10 | | |
| HOGEN | Hospital GEN | 0.3902502903 | $387,793 | $387,793 | $151.34 | | |
| CE | County Current Expense | 0.3708482477 | $387,793 | $387,793 | $143.81 | | |
| CR | County Roads | 0.4584763726 | $387,793 | $387,793 | $177.79 | | |
| ISLANDEMS | Hospital GEN (EMS) | 0.5000000000 | $387,793 | $387,793 | $193.90 | | |
| LIB | Library Sno-Isle GEN | 0.3153421757 | $387,793 | $387,793 | $122.29 | | |
| PORTWHID | Port of S Whidbey GEN | 0.1094540357 | $387,793 | $387,793 | $42.45 | | |
| SCH206BOND | School 206 BOND | 0.3161759235 | $387,793 | $387,793 | $122.61 | | |
| SCH206MO | School 206 Enrichment | 0.4547169547 | $387,793 | $387,793 | $176.34 | | |
| ST | State School | 1.3035497053 | $387,793 | $387,793 | $505.51 | | |
| ST2 | State School Part 2 | 0.8169543533 | $387,793 | $387,793 | $316.81 | | |
| SWHIDPRBD | P & R S Whidbey BOND | 0.0152817568 | $387,793 | $387,793 | $5.93 | | |
| SWHIDPRBD2 | P & R S Whidbey BOND2 | 0.0138911264 | $387,793 | $387,793 | $5.39 | | |
| SWHIDPRMT | P & R S Whidbey GEN | 0.2053334452 | $387,793 | $387,793 | $79.63 | | |
| | Total Tax Rate: | 6.6934522006 | | | | | |
| | | | | Taxes w/Current Exemptions: | $2,595.70 | | |
| | | | | Taxes w/o Exemptions: | $2,595.70 | | |
Improvement / Building
| Improvement #1: | RESIDENTIAL | State Code: | Y | 624.0 sqft | Value: | $117,793 |
| Bathrooms: | 0 | Bedrooms: | 1 | | Ceiling: | DRYWALL PAINTED | Exterior Wall/Cover: | PLY/HARDBOARD T-111 | | Floor Covering: | CARPET/VINYL 80-20 | Floor Structure: | WOOD W/SUBFLOOR | | Foundation: | CONCRETE | Heating: | WALL HEAT ELECTRIC | | Interior Finish: | DRYWALL PAINT | Plumbing Fixture Cnt: | 6 | | Roof Slope: | 5" IN 12" | Roof Structure/Cover: | CJ ASPHALT |
|
| | Type | Description | Class CD | Sub Class CD | Year Built | Area |
| | BAS | BASE/MAIN FLOOR | 3 | 0 | 1998 | 624.0 |
| | UTY | STORAGE/UTILITY | 3 | 0 | 1998 | 80.0 |
| | OWP | OPEN WOOD PORCH W/STEPS | 3 | 0 | 1998 | 250.0 |
| | OWC | OPEN WOOD PORCH W/STEPS/ROOF/C | 3 | 0 | 1998 | 40.0 |
| | oUTI | UTILITY | 3 | 0 | 1998 | 0.0 |
| | oUTI | UTILITY | 3 | 0 | 1998 | 0.0 |
Sketch
Property Image
Land
| 1 | 14 | SQ (08001-12000) | 0.0000 | 0.00 | 0.00 | 0.00 | 1.00 | $270,000 | $0 |
Roll Value History
| 2026 | N/A | N/A | N/A | N/A | N/A |
| 2025 | $117,793 | $270,000 | $0 | $387,793 | $387,793 |
| 2024 | $119,359 | $300,000 | $0 | $419,359 | $419,359 |
| 2023 | $120,924 | $300,000 | $0 | $420,924 | $420,924 |
| 2022 | $111,210 | $240,000 | $0 | $351,210 | $47,074 |
| 2021 | $98,346 | $220,000 | $0 | $318,346 | $47,074 |
| 2020 | $95,567 | $170,000 | $0 | $265,567 | $47,074 |
| 2019 | $67,141 | $200,000 | $0 | $267,141 | $47,074 |
| 2018 | $67,343 | $150,000 | $0 | $217,343 | $47,074 |
| 2017 | $67,746 | $120,000 | $0 | $187,746 | $47,074 |
| 2016 | $68,555 | $90,000 | $0 | $158,555 | $47,074 |
| 2015 | $69,363 | $65,000 | $0 | $134,363 | $47,074 |
| 2014 | $70,169 | $65,000 | $0 | $135,169 | $47,074 |
| 2013 | $70,978 | $65,000 | $0 | $135,978 | $47,074 |
| 2012 | $71,785 | $68,850 | $0 | $140,635 | $47,074 |
| 2011 | $72,592 | $81,000 | $0 | $153,592 | $47,074 |
| 2010 | $69,838 | $90,000 | $0 | $159,838 | $47,074 |
| 2009 | $72,835 | $140,000 | $0 | $212,835 | $47,074 |
| 2008 | $73,782 | $140,000 | $0 | $213,782 | $47,074 |
| 2007 | $73,338 | $140,000 | $0 | $213,338 | $47,074 |
Deed and Sales History
| 1 | 11/27/2023 | WD | Warranty Deed | READER, MARK S | SLATTUM, TYLER D | | | $245,000.00 | 58618 | 4567088 |
| 2 | 07/01/1986 | WD | Warranty Deed | RITCHIE, WILLIAM H | READER, MARK S | | | $8,000.00 | 61819 | 86008583 |
| 3 | 01/01/1900 | OTHER | Other - Misc. Documents | Unknown | RITCHIE, WILLIAM H | | | $0.00 | 0 | 0 |
Payout Agreement
| No payout information available.. |