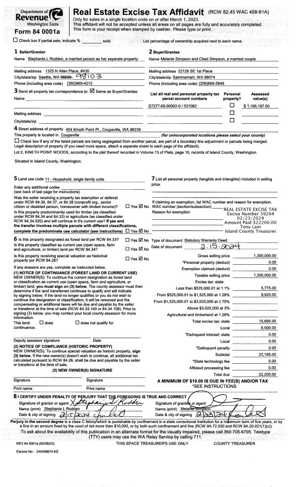
Property
Account |
| Property ID: | 19401 | Abbreviated Legal Description: | 41 - BG SE CR SW SE N716' W30' TPB W75' N135' E175' S135' TPB TGW EZ |
| Geographic ID: | R13215-079-3850 | Agent Code: | |
| Type: | Real | | |
| Tax Area: | 110 - APPRAISER-OH Schl Dist, outside OH, improved & 1 acre or less | Land Use Code | 11 |
| Open Space: | N | DFL | N |
| Historic Property: | N | Remodel Property: | N |
| Multi-Family Redevelopment: | N | | |
| Township: | 32 | Section: | 15 |
| Range: | R1 |
Location |
| Address: | 908 JAYDEE WAY OAK HARBOR, WA 98277 | Mapsco: | |
| Neighborhood: | Cycle 1 | Map ID: | 125 |
| Neighborhood CD: | 1 |
Owner |
| Name: | SIMONDS, MICHAEL L | Owner ID: | 42265 |
| Mailing Address: | 336 36TH ST #787 BELLINGHAM, WA 98225 | % Ownership: | 100.0000000000% |
| | | Exemptions: | |
Taxes and Assessment Details
Values
| (+) Improvement Homesite Value: | + | $0 | |
| (+) Improvement Non-Homesite Value: | + | $161,588 | |
| (+) Land Homesite Value: | + | $0 | |
| (+) Land Non-Homesite Value: | + | $220,000 | |
| (+) Curr Use (HS): | + | $0 | $0 |
| (+) Curr Use (NHS): | + | $0 | $0 |
| | | -------------------------- | |
| (=) Market Value: | = | $381,588 | |
| (–) Productivity Loss: | – | $0 | |
| | | -------------------------- | |
| (=) Subtotal: | = | $381,588 | |
| (+) Senior Appraised Value: | + | $0 | |
| (+) Non-Senior Appraised Value: | + | $381,588 | |
| | | -------------------------- | |
| (=) Total Appraised Value: | = | $381,588 | |
| (–) Senior Exemption Loss: | – | $0 | |
| (–) Exemption Loss: | – | $0 | |
| | | -------------------------- | |
| (=) Taxable Value: | = | $381,588 | |
Taxing Jurisdiction
| Owner: | SIMONDS, MICHAEL L | | |
| % Ownership: | 100.0000000000% | | |
| Total Value: | $381,588 | | |
| Tax Area: | 110 - APPRAISER-OH Schl Dist, outside OH, improved & 1 acre or less |
| CF | Conservation Futures | 0.0316035091 | $381,588 | $381,588 | $12.06 | | |
| CEM1 | Cemetery #1 | 0.0040320932 | $381,588 | $381,588 | $1.54 | | |
| FIRE2 | Fire & Rescue Dist #2 N Whidbey GEN | 0.5475949600 | $381,588 | $381,588 | $208.96 | | |
| HOBOND | Hospital BOND | 0.1910887512 | $381,588 | $381,588 | $72.92 | | |
| HOGEN | Hospital GEN | 0.3902502903 | $381,588 | $381,588 | $148.91 | | |
| CE | County Current Expense | 0.3708482477 | $381,588 | $381,588 | $141.51 | | |
| CR | County Roads | 0.4584763726 | $381,588 | $381,588 | $174.95 | | |
| ISLANDEMS | Hospital GEN (EMS) | 0.5000000000 | $381,588 | $381,588 | $190.79 | | |
| LIB | Library Sno-Isle GEN | 0.3153421757 | $381,588 | $381,588 | $120.33 | | |
| NWHIDPRMT | P & R N Whidbey GEN | 0.2004466701 | $381,588 | $381,588 | $76.49 | | |
| SCH201MO | School 201 Enrichment | 1.8559231640 | $381,588 | $381,588 | $708.20 | | |
| ST | State School | 1.3035497053 | $381,588 | $381,588 | $497.42 | | |
| ST2 | State School Part 2 | 0.8169543533 | $381,588 | $381,588 | $311.74 | | |
| | Total Tax Rate: | 6.9861102925 | | | | | |
| | | | | Taxes w/Current Exemptions: | $2,665.82 | | |
| | | | | Taxes w/o Exemptions: | $2,665.82 | | |
Improvement / Building
| Improvement #1: | RESIDENTIAL | State Code: | Y | 1088.0 sqft | Value: | $161,588 |
| Bathrooms: | 1.75 | Bedrooms: | 3 | | Ceiling: | DRY WALL SPRAYED | Exterior Wall/Cover: | WOOD SIDING | | Floor Covering: | CARPET/VINYL 80-20 | Floor Structure: | WOOD W/SUBFLOOR | | Foundation: | CONCRETE | Heating: | BASEBOARD ELECTRIC | | Interior Finish: | DRYWALL PAINT | Plumbing Fixture Cnt: | 9 | | Roof Slope: | 4" IN 12" | Roof Structure/Cover: | CJ ASPHALT |
|
| | Type | Description | Class CD | Sub Class CD | Year Built | Area |
| | BAS | BASE/MAIN FLOOR | 3 | 0 | 1974 | 1088.0 |
| | AGR | ATTACHED GARAGE | 3 | 0 | 1974 | 480.0 |
Sketch
Property Image
Land
| 1 | 16 | AC (00.51-01.00) | 0.5400 | 23522.40 | 0.00 | 0.00 | 1.00 | $220,000 | $0 |
Roll Value History
| 2026 | N/A | N/A | N/A | N/A | N/A |
| 2025 | $161,588 | $220,000 | $0 | $381,588 | $381,588 |
| 2024 | $167,531 | $200,000 | $0 | $367,531 | $367,531 |
| 2023 | $170,223 | $200,000 | $0 | $370,223 | $370,223 |
| 2022 | $156,572 | $180,000 | $0 | $336,572 | $336,572 |
| 2021 | $138,272 | $135,000 | $0 | $273,272 | $273,272 |
| 2020 | $134,801 | $100,000 | $0 | $234,801 | $234,801 |
| 2019 | $95,418 | $160,000 | $0 | $255,418 | $255,418 |
| 2018 | $95,773 | $140,000 | $0 | $235,773 | $235,773 |
| 2017 | $87,598 | $120,000 | $0 | $207,598 | $207,598 |
| 2016 | $89,012 | $120,000 | $0 | $209,012 | $209,012 |
| 2015 | $90,424 | $90,000 | $0 | $180,424 | $180,424 |
| 2014 | $91,837 | $90,000 | $0 | $181,837 | $181,837 |
| 2013 | $93,250 | $102,000 | $0 | $195,250 | $195,250 |
| 2012 | $94,664 | $102,000 | $0 | $196,664 | $196,664 |
| 2011 | $96,386 | $120,000 | $0 | $216,386 | $216,386 |
| 2010 | $101,260 | $120,000 | $0 | $221,260 | $221,260 |
| 2009 | $105,695 | $108,000 | $0 | $213,695 | $213,695 |
| 2008 | $107,085 | $98,010 | $0 | $205,095 | $205,095 |
| 2007 | $108,474 | $98,010 | $0 | $206,484 | $206,484 |
Deed and Sales History
| 1 | 01/01/1900 | OTHER | Other - Misc. Documents | Unknown | SIMONDS, MICHAEL L | | | $0.00 | 0 | 0 |
Payout Agreement
| No payout information available.. |