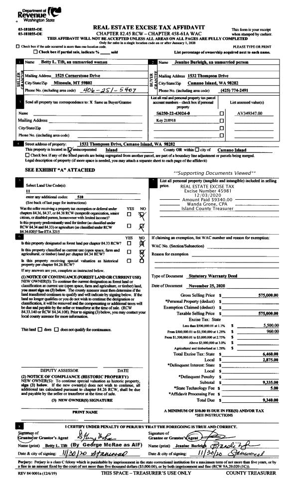
Property
Account |
| Property ID: | 194435 | Abbreviated Legal Description: | BON AIR 3 LOTS 11 & 12 BLK 6 |
| Geographic ID: | S6140-03-06011-0 | Agent Code: | |
| Type: | Real | | |
| Tax Area: | 310 - APPRAISER-Cpvl Schl Dist, outside Cpvl, improved & 1 acre or less | Land Use Code | 11 |
| Open Space: | N | DFL | N |
| Historic Property: | N | Remodel Property: | N |
| Multi-Family Redevelopment: | N | | |
| Township: | | Section: | |
| Range: | |
Location |
| Address: | | Mapsco: | |
| Neighborhood: | Cycle 2 | Map ID: | 525 |
| Neighborhood CD: | 2 |
Owner |
| Name: | LANG, JEFFREY A | Owner ID: | 295794 |
| Mailing Address: | SYDNEY LANG 350 LEDGEWOOD BEACH RD COUPEVILLE, WA 98239 | % Ownership: | 100.0000000000% |
| | | Exemptions: | |
Taxes and Assessment Details
Values
| (+) Improvement Homesite Value: | + | $0 | |
| (+) Improvement Non-Homesite Value: | + | $347,424 | |
| (+) Land Homesite Value: | + | $0 | |
| (+) Land Non-Homesite Value: | + | $190,000 | |
| (+) Curr Use (HS): | + | $0 | $0 |
| (+) Curr Use (NHS): | + | $0 | $0 |
| | | -------------------------- | |
| (=) Market Value: | = | $537,424 | |
| (–) Productivity Loss: | – | $0 | |
| | | -------------------------- | |
| (=) Subtotal: | = | $537,424 | |
| (+) Senior Appraised Value: | + | $0 | |
| (+) Non-Senior Appraised Value: | + | $537,424 | |
| | | -------------------------- | |
| (=) Total Appraised Value: | = | $537,424 | |
| (–) Senior Exemption Loss: | – | $0 | |
| (–) Exemption Loss: | – | $0 | |
| | | -------------------------- | |
| (=) Taxable Value: | = | $537,424 | |
Taxing Jurisdiction
| Owner: | LANG, JEFFREY A | | |
| % Ownership: | 100.0000000000% | | |
| Total Value: | $537,424 | | |
| Tax Area: | 310 - APPRAISER-Cpvl Schl Dist, outside Cpvl, improved & 1 acre or less |
| CF | Conservation Futures | 0.0316035091 | $537,424 | $537,424 | $16.98 | | |
| CEM2 | Cemetery #2 | 0.0095056933 | $537,424 | $537,424 | $5.11 | | |
| FIRE5 | Fire & Rescue Dist #5 C Whidbey GEN | 1.2008080668 | $537,424 | $537,424 | $645.34 | | |
| FIRE5BOND | Fire & Rescue Dist #5 C Whidbey BOND | 0.1400090713 | $537,424 | $537,424 | $75.24 | | |
| HOBOND | Hospital BOND | 0.1910887512 | $537,424 | $537,424 | $102.70 | | |
| HOGEN | Hospital GEN | 0.3902502903 | $537,424 | $537,424 | $209.73 | | |
| CE | County Current Expense | 0.3708482477 | $537,424 | $537,424 | $199.30 | | |
| CR | County Roads | 0.4584763726 | $537,424 | $537,424 | $246.40 | | |
| ISLANDEMS | Hospital GEN (EMS) | 0.5000000000 | $537,424 | $537,424 | $268.71 | | |
| LIB | Library Sno-Isle GEN | 0.3153421757 | $537,424 | $537,424 | $169.47 | | |
| LIBCAP | Library Sno-Isle BOND (Cap Fac Imp Area) | 0.0543427938 | $537,424 | $537,424 | $29.21 | | |
| POCOUP | Port of Coupeville GEN | 0.1093371703 | $537,424 | $537,424 | $58.76 | | |
| POCOUPIDD | Port of Coupeville IDD | 0.3409740022 | $537,424 | $537,424 | $183.25 | | |
| COUPSDTECH | School 204 CP (TECH) | 0.7545480007 | $537,424 | $537,424 | $405.51 | | |
| SCH204MO | School 204 Enrichment | 0.6716186034 | $537,424 | $537,424 | $360.94 | | |
| ST | State School | 1.3035497053 | $537,424 | $537,424 | $700.56 | | |
| ST2 | State School Part 2 | 0.8169543533 | $537,424 | $537,424 | $439.05 | | |
| | Total Tax Rate: | 7.6592568070 | | | | | |
| | | | | Taxes w/Current Exemptions: | $4,116.26 | | |
| | | | | Taxes w/o Exemptions: | $4,116.26 | | |
Improvement / Building
| Improvement #1: | RESIDENTIAL | State Code: | Y | 1982.0 sqft | Value: | $347,424 |
| Bathrooms: | 2.5 | Bedrooms: | 2 | | Ceiling: | DRYWALL PAINTED | Exterior Wall/Cover: | CEMENT FIBER | | Floor Covering: | CARPET/VINYL 80-20 | Floor Structure: | WOOD W/SUBFLOOR | | Foundation: | CONCRETE | Heating: | FHA GAS | | Interior Finish: | DRYWALL PAINT | Plumbing Fixture Cnt: | 12 | | Roof Slope: | 6" IN 12" | Roof Structure/Cover: | CJ ASPHALT |
|
| | Type | Description | Class CD | Sub Class CD | Year Built | Area |
| | BAS | BASE/MAIN FLOOR | 3 | 0 | 2007 | 1108.0 |
| | AGR | ATTACHED GARAGE | 3 | 0 | 2007 | 595.4 |
| | UPS | UPPER STORY | 3 | 0 | 2007 | 874.0 |
| | OWP | OPEN WOOD PORCH W/STEPS | 3 | 0 | 2007 | 280.0 |
| | OWC | OPEN WOOD PORCH W/STEPS/ROOF/C | 3 | 0 | 2007 | 112.0 |
Sketch
Property Image
Land
| 1 | 15 | SQ (12001-21780) | 0.3300 | 14374.80 | 0.00 | 0.00 | 1.00 | $190,000 | $0 |
Roll Value History
| 2026 | N/A | N/A | N/A | N/A | N/A |
| 2025 | $347,424 | $190,000 | $0 | $537,424 | $537,424 |
| 2024 | $344,528 | $180,000 | $0 | $524,528 | $524,528 |
| 2023 | $347,424 | $175,000 | $0 | $522,424 | $522,424 |
| 2022 | $317,390 | $150,000 | $0 | $467,390 | $467,390 |
| 2021 | $278,116 | $100,000 | $0 | $378,116 | $378,116 |
| 2020 | $263,356 | $85,000 | $0 | $348,356 | $348,356 |
| 2019 | $199,354 | $130,000 | $0 | $329,354 | $329,354 |
| 2018 | $205,900 | $130,000 | $0 | $335,900 | $335,900 |
| 2017 | $205,370 | $100,000 | $0 | $305,370 | $305,370 |
| 2016 | $207,603 | $75,000 | $0 | $282,603 | $282,603 |
| 2015 | $209,836 | $50,000 | $0 | $259,836 | $259,836 |
| 2014 | $212,066 | $50,000 | $0 | $262,066 | $262,066 |
| 2013 | $214,301 | $50,000 | $0 | $264,301 | $264,301 |
| 2012 | $207,765 | $57,000 | $0 | $264,765 | $264,765 |
| 2011 | $209,977 | $60,000 | $0 | $269,977 | $269,977 |
| 2010 | $215,083 | $60,000 | $0 | $275,083 | $275,083 |
| 2009 | $223,958 | $75,000 | $0 | $298,958 | $298,958 |
| 2008 | $224,002 | $76,000 | $0 | $300,002 | $300,002 |
Deed and Sales History
| 1 | 08/19/2020 | WD | Warranty Deed | NIEMANN, DEAN C | LANG, JEFFREY A | | | $445,000.00 | 44417 | 4494771 |
| 2 | 12/08/2014 | WD | Warranty Deed | SCHACKER, EDWARD H | NIEMANN, DEAN C | | | $274,000.00 | 17818 | 4369860 |
| 3 | 04/16/2008 | WD | Warranty Deed | CC CONSTRUCTION, LLC, | SCHACKER, EDWARD H | | | $299,900.00 | 80922 | 4226435 |
| 4 | 10/12/2007 | QCD | Quit Claim Deed | COOK, CHARLES A | CC CONSTRUCTION, LLC, | | | $0.00 | 73453 | 4214189 |
| 5 | 04/13/2007 | BLA | DNU - Boundary Line Adjustment | COOK, CHARLES A | COOK, CHARLES A | | | $0.00 | 80165 | 4187365 |
| 6 | 03/17/2004 | WD | Warranty Deed | NOBLE, ESTHER L | COOK, CHARLES A | | | $4,000.00 | 41478 | 4097211 |
| 7 | 11/01/1986 | OTHER | Other - Misc. Documents | NOBLE, ALVIN E | NOBLE, ESTHER L | | | $0.00 | 61949 | 0 |
| 8 | 01/01/1900 | OTHER | Other - Misc. Documents | Unknown | NOBLE, ALVIN E | | | $0.00 | 0 | 0 |
Payout Agreement
| No payout information available.. |