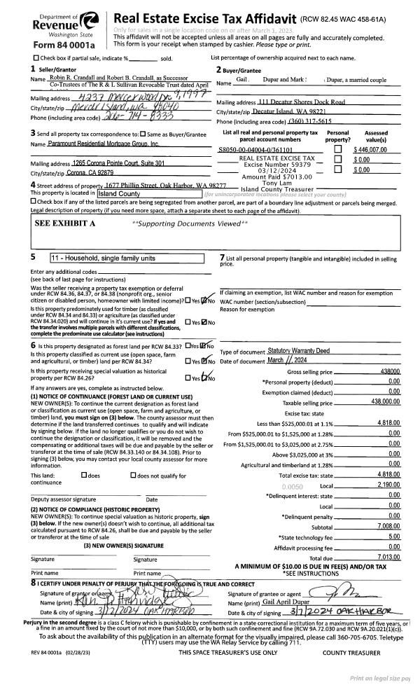
Property
Account |
| Property ID: | 19447 | Abbreviated Legal Description: | 51 - IN SW SE: BG NWCR SW SE TPB E430' S537.75' W430' TO WLN SW SE N TPB TGW EZS TGW & SUB EZ AF#96005258 |
| Geographic ID: | R13215-106-2860 | Agent Code: | |
| Type: | Real | | |
| Tax Area: | 112 - APPRAISER-OH Schl Dist, outside OH, improved, greater than 1 acre | Land Use Code | 11 |
| Open Space: | N | DFL | N |
| Historic Property: | N | Remodel Property: | N |
| Multi-Family Redevelopment: | N | | |
| Township: | 32 | Section: | 15 |
| Range: | R1 |
Location |
| Address: | 968 JAYDEE WAY OAK HARBOR, WA 98277 | Mapsco: | |
| Neighborhood: | Cycle 1 | Map ID: | 125 |
| Neighborhood CD: | 1 |
Owner |
| Name: | ROSS TTEE, RANDAL GLEN | Owner ID: | 316671 |
| Mailing Address: | SHANNON MARIEM ROSS TTEE 968 JAYDEE WAY OAK HARBOR, WA 98277 | % Ownership: | 100.0000000000% |
| | | Exemptions: | |
Taxes and Assessment Details
Values
| (+) Improvement Homesite Value: | + | $0 | |
| (+) Improvement Non-Homesite Value: | + | $542,737 | |
| (+) Land Homesite Value: | + | $0 | |
| (+) Land Non-Homesite Value: | + | $290,000 | |
| (+) Curr Use (HS): | + | $0 | $0 |
| (+) Curr Use (NHS): | + | $0 | $0 |
| | | -------------------------- | |
| (=) Market Value: | = | $832,737 | |
| (–) Productivity Loss: | – | $0 | |
| | | -------------------------- | |
| (=) Subtotal: | = | $832,737 | |
| (+) Senior Appraised Value: | + | $0 | |
| (+) Non-Senior Appraised Value: | + | $832,737 | |
| | | -------------------------- | |
| (=) Total Appraised Value: | = | $832,737 | |
| (–) Senior Exemption Loss: | – | $0 | |
| (–) Exemption Loss: | – | $0 | |
| | | -------------------------- | |
| (=) Taxable Value: | = | $832,737 | |
Taxing Jurisdiction
| Owner: | ROSS TTEE, RANDAL GLEN | | |
| % Ownership: | 100.0000000000% | | |
| Total Value: | $832,737 | | |
| Tax Area: | 112 - APPRAISER-OH Schl Dist, outside OH, improved, greater than 1 acre |
| CF | Conservation Futures | 0.0316035091 | $832,737 | $832,737 | $26.32 | | |
| CEM1 | Cemetery #1 | 0.0040320932 | $832,737 | $832,737 | $3.36 | | |
| FIRE2 | Fire & Rescue Dist #2 N Whidbey GEN | 0.5475949600 | $832,737 | $832,737 | $456.00 | | |
| HOBOND | Hospital BOND | 0.1910887512 | $832,737 | $832,737 | $159.13 | | |
| HOGEN | Hospital GEN | 0.3902502903 | $832,737 | $832,737 | $324.98 | | |
| CE | County Current Expense | 0.3708482477 | $832,737 | $832,737 | $308.82 | | |
| CR | County Roads | 0.4584763726 | $832,737 | $832,737 | $381.79 | | |
| ISLANDEMS | Hospital GEN (EMS) | 0.5000000000 | $832,737 | $832,737 | $416.37 | | |
| LIB | Library Sno-Isle GEN | 0.3153421757 | $832,737 | $832,737 | $262.60 | | |
| NWHIDPRMT | P & R N Whidbey GEN | 0.2004466701 | $832,737 | $832,737 | $166.92 | | |
| SCH201MO | School 201 Enrichment | 1.8559231640 | $832,737 | $832,737 | $1,545.50 | | |
| ST | State School | 1.3035497053 | $832,737 | $832,737 | $1,085.51 | | |
| ST2 | State School Part 2 | 0.8169543533 | $832,737 | $832,737 | $680.31 | | |
| | Total Tax Rate: | 6.9861102925 | | | | | |
| | | | | Taxes w/Current Exemptions: | $5,817.61 | | |
| | | | | Taxes w/o Exemptions: | $5,817.61 | | |
Improvement / Building
| Improvement #1: | RESIDENTIAL | State Code: | Y | 2882.0 sqft | Value: | $542,737 |
| Bathrooms: | 3 | Bedrooms: | 3 | | Ceiling: | DRYWALL PAINTED | Cooling: | HEAT PUMP/CONV/V | | Exterior Wall/Cover: | CEMENT FIBER | Floor Covering: | HARDWOOD/CARP 20-80 | | Floor Structure: | WOOD W/SUBFLOOR | Foundation: | CONCRETE | | Interior Finish: | DRYWALL PAINT | Plumbing Fixture Cnt: | 15 | | Roof Slope: | 8" IN 12" | Roof Structure/Cover: | CJ ASPHALT |
|
| | Type | Description | Class CD | Sub Class CD | Year Built | Area |
| | BAS | BASE/MAIN FLOOR | 4 | 0 | 1997 | 1269.0 |
| | OP2 | OPEN PORCH W/STEPS | 4 | 0 | 1997 | 803.9 |
| | OP4 | OPEN PORCH W/CEILING-ROOF | 4 | 0 | 1997 | 54.0 |
| | BIG | BUILT IN GARAGE | 4 | 0 | 1997 | 647.0 |
| | UPS | UPPER STORY | 4 | 0 | 1997 | 1613.0 |
| | CPD | OPEN CARPORT DIRT FLOOR | 4 | 0 | 1997 | 224.0 |
Sketch
Property Image
Land
| 1 | 32 | AC (03.01-09.99) | 5.3100 | 0.00 | 0.00 | 0.00 | 1.00 | $290,000 | $0 |
Roll Value History
| 2026 | N/A | N/A | N/A | N/A | N/A |
| 2025 | $542,737 | $290,000 | $0 | $832,737 | $832,737 |
| 2024 | $549,105 | $260,000 | $0 | $809,105 | $809,105 |
| 2023 | $506,451 | $250,000 | $0 | $756,451 | $756,451 |
| 2022 | $464,259 | $220,000 | $0 | $684,259 | $684,259 |
| 2021 | $408,591 | $190,000 | $0 | $598,591 | $598,591 |
| 2020 | $398,357 | $140,000 | $0 | $538,357 | $538,357 |
| 2019 | $305,538 | $200,000 | $0 | $505,538 | $505,538 |
| 2018 | $306,434 | $170,000 | $0 | $476,434 | $476,434 |
| 2017 | $282,057 | $160,000 | $0 | $442,057 | $442,057 |
| 2016 | $285,610 | $160,000 | $0 | $445,610 | $445,610 |
| 2015 | $289,162 | $135,000 | $0 | $424,162 | $424,162 |
| 2014 | $292,714 | $135,000 | $0 | $427,714 | $427,714 |
| 2013 | $296,267 | $129,033 | $0 | $425,300 | $425,300 |
| 2012 | $299,818 | $129,033 | $0 | $428,851 | $428,851 |
| 2011 | $314,492 | $143,370 | $0 | $457,862 | $457,862 |
| 2010 | $312,573 | $143,370 | $0 | $455,943 | $455,943 |
| 2009 | $326,030 | $169,920 | $0 | $495,950 | $495,950 |
| 2008 | $337,448 | $165,927 | $0 | $503,375 | $503,375 |
| 2007 | $341,649 | $165,927 | $0 | $507,576 | $507,576 |
Deed and Sales History
| 1 | 03/28/2025 | QCD | Quit Claim Deed | ROSS, RANDAL G / SHANNON M | ROSS TTEE, RANDAL GLEN | | | $0.00 | 63066 | 4584225 |
| 2 | 06/01/1996 | WD | Warranty Deed | PREDER, GARY W | ROSS, RANDAL G | | | $64,000.00 | 62337 | 96011532 |
| 3 | 12/01/1994 | WD | Warranty Deed | BENNETT, BETTY J | PREDER, GARY W | | | $20,000.00 | 45272 | 94026460 |
| 4 | 06/01/1993 | OTHER | Other - Misc. Documents | COLLINS, BETTY J | BENNETT, BETTY J | | | $0.00 | 65404 | 0 |
| 5 | 01/01/1900 | OTHER | Other - Misc. Documents | Unknown | COLLINS, BETTY J | | | $0.00 | 0 | 0 |
Payout Agreement
| No payout information available.. |