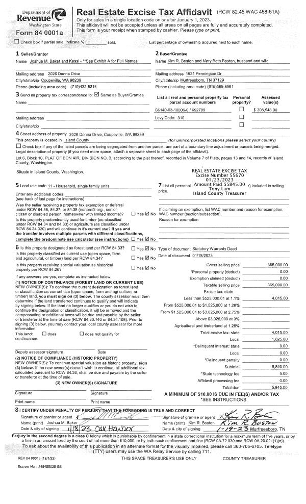
Property
Account |
| Property ID: | 194676 | Abbreviated Legal Description: | BON AIR 3 LOT 7 BLK 8 |
| Geographic ID: | S6140-03-08007-0 | Agent Code: | |
| Type: | Real | | |
| Tax Area: | 310 - APPRAISER-Cpvl Schl Dist, outside Cpvl, improved & 1 acre or less | Land Use Code | 11 |
| Open Space: | N | DFL | N |
| Historic Property: | N | Remodel Property: | N |
| Multi-Family Redevelopment: | N | | |
| Township: | | Section: | |
| Range: | |
Location |
| Address: | | Mapsco: | |
| Neighborhood: | Cycle 2 | Map ID: | 525 |
| Neighborhood CD: | 2 |
Owner |
| Name: | HJORTEN, KARL P | Owner ID: | 306526 |
| Mailing Address: | ALANA J HJORTEN PO BOX 435 GREENBANK, WA 98253 | % Ownership: | 100.0000000000% |
| | | Exemptions: | |
Taxes and Assessment Details
Values
| (+) Improvement Homesite Value: | + | $0 | |
| (+) Improvement Non-Homesite Value: | + | $136,900 | |
| (+) Land Homesite Value: | + | $0 | |
| (+) Land Non-Homesite Value: | + | $190,000 | |
| (+) Curr Use (HS): | + | $0 | $0 |
| (+) Curr Use (NHS): | + | $0 | $0 |
| | | -------------------------- | |
| (=) Market Value: | = | $326,900 | |
| (–) Productivity Loss: | – | $0 | |
| | | -------------------------- | |
| (=) Subtotal: | = | $326,900 | |
| (+) Senior Appraised Value: | + | $0 | |
| (+) Non-Senior Appraised Value: | + | $326,900 | |
| | | -------------------------- | |
| (=) Total Appraised Value: | = | $326,900 | |
| (–) Senior Exemption Loss: | – | $0 | |
| (–) Exemption Loss: | – | $0 | |
| | | -------------------------- | |
| (=) Taxable Value: | = | $326,900 | |
Taxing Jurisdiction
| Owner: | HJORTEN, KARL P | | |
| % Ownership: | 100.0000000000% | | |
| Total Value: | $326,900 | | |
| Tax Area: | 310 - APPRAISER-Cpvl Schl Dist, outside Cpvl, improved & 1 acre or less |
| CF | Conservation Futures | 0.0316035091 | $326,900 | $326,900 | $10.33 | | |
| CEM2 | Cemetery #2 | 0.0095056933 | $326,900 | $326,900 | $3.11 | | |
| FIRE5 | Fire & Rescue Dist #5 C Whidbey GEN | 1.2008080668 | $326,900 | $326,900 | $392.54 | | |
| FIRE5BOND | Fire & Rescue Dist #5 C Whidbey BOND | 0.1400090713 | $326,900 | $326,900 | $45.77 | | |
| HOBOND | Hospital BOND | 0.1910887512 | $326,900 | $326,900 | $62.47 | | |
| HOGEN | Hospital GEN | 0.3902502903 | $326,900 | $326,900 | $127.57 | | |
| CE | County Current Expense | 0.3708482477 | $326,900 | $326,900 | $121.23 | | |
| CR | County Roads | 0.4584763726 | $326,900 | $326,900 | $149.88 | | |
| ISLANDEMS | Hospital GEN (EMS) | 0.5000000000 | $326,900 | $326,900 | $163.45 | | |
| LIB | Library Sno-Isle GEN | 0.3153421757 | $326,900 | $326,900 | $103.09 | | |
| LIBCAP | Library Sno-Isle BOND (Cap Fac Imp Area) | 0.0543427938 | $326,900 | $326,900 | $17.76 | | |
| POCOUP | Port of Coupeville GEN | 0.1093371703 | $326,900 | $326,900 | $35.74 | | |
| POCOUPIDD | Port of Coupeville IDD | 0.3409740022 | $326,900 | $326,900 | $111.46 | | |
| COUPSDTECH | School 204 CP (TECH) | 0.7545480007 | $326,900 | $326,900 | $246.66 | | |
| SCH204MO | School 204 Enrichment | 0.6716186034 | $326,900 | $326,900 | $219.55 | | |
| ST | State School | 1.3035497053 | $326,900 | $326,900 | $426.13 | | |
| ST2 | State School Part 2 | 0.8169543533 | $326,900 | $326,900 | $267.06 | | |
| | Total Tax Rate: | 7.6592568070 | | | | | |
| | | | | Taxes w/Current Exemptions: | $2,503.80 | | |
| | | | | Taxes w/o Exemptions: | $2,503.80 | | |
Improvement / Building
| Improvement #1: | MANUFACTURED HOME | State Code: | Y | 912.0 sqft | Value: | $136,900 |
| Bathrooms: | 2 | Bedrooms: | 2 | | Ceiling: | PLASTER PAINTED | Cooling: | EVAP NO DUCT | | Exterior Wall/Cover: | VINYL | Floor Covering: | CARPET 100% | | Floor Structure: | SLAB ON GRADE | Foundation: | SLAB | | Heating: | FHA ELECTRIC | Interior Finish: | PLASTER | | Roof Slope: | FLAT | Roof Structure/Cover: | CJ ALUMINIUM HEAVY |
|
| | Type | Description | Class CD | Sub Class CD | Year Built | Area |
| | BAS | BASE/MAIN FLOOR | 4 | 0 | 2018 | 912.0 |
| | DGR | DETACHED GARAGE | 4 | 0 | 2018 | 440.0 |
Sketch
Property Image
Land
| 1 | 13 | SQ (06001-08000) | 0.1700 | 7405.20 | 0.00 | 0.00 | 1.00 | $190,000 | $0 |
Roll Value History
| 2026 | N/A | N/A | N/A | N/A | N/A |
| 2025 | $136,900 | $190,000 | $0 | $326,900 | $326,900 |
| 2024 | $135,445 | $180,000 | $0 | $315,445 | $315,445 |
| 2023 | $119,046 | $175,000 | $0 | $294,046 | $294,046 |
| 2022 | $110,092 | $150,000 | $0 | $260,092 | $260,092 |
| 2021 | $96,729 | $100,000 | $0 | $196,729 | $196,729 |
| 2020 | $94,842 | $85,000 | $0 | $179,842 | $179,842 |
| 2019 | $75,523 | $30,000 | $0 | $105,523 | $105,523 |
| 2018 | $0 | $30,000 | $0 | $30,000 | $30,000 |
| 2017 | $0 | $30,000 | $0 | $30,000 | $30,000 |
| 2016 | $0 | $30,000 | $0 | $30,000 | $30,000 |
| 2015 | $0 | $30,000 | $0 | $30,000 | $30,000 |
| 2014 | $0 | $30,000 | $0 | $30,000 | $30,000 |
| 2013 | $0 | $30,000 | $0 | $30,000 | $30,000 |
| 2012 | $0 | $30,000 | $0 | $30,000 | $30,000 |
| 2011 | $0 | $30,000 | $0 | $30,000 | $30,000 |
| 2010 | $0 | $30,000 | $0 | $30,000 | $30,000 |
| 2009 | $0 | $45,000 | $0 | $45,000 | $45,000 |
| 2008 | $0 | $38,000 | $0 | $38,000 | $38,000 |
| 2007 | $0 | $22,500 | $0 | $22,500 | $22,500 |
Deed and Sales History
| 1 | 10/27/2022 | WD | Warranty Deed | DORSEY, NATHANIEL R | HJORTEN, KARL P | | | $0.00 | 55050 | 4553304 |
| 2 | 07/17/2017 | WD | Warranty Deed | BUNKE, DEVERE | DORSEY, NATHANIEL R | | | $14,000.00 | 30408 | 4427211 |
| 3 | 12/17/2013 | TTAXD | Treasurer's Tax Deed | KRISTELL, BONNIE J | BUNKE, DEVERE | | | $5,000.00 | 13770 | 4352843 |
| 4 | 11/01/1989 | QCD | Quit Claim Deed | JELLAR, VICTOR | KRISTELL, BONNIE J | | | $0.00 | 95435 | 89017433 |
| 5 | 06/01/1984 | QCD | Quit Claim Deed | JELLAR, VICTOR | JELLAR, VICTOR | | | $0.00 | 62516 | 86011365 |
| 6 | 07/01/1982 | F | Deed In Fulfillment Of Contract | RYALS, STEVE | JELLAR, VICTOR | | | $0.00 | 59587 | 0 |
| 7 | 11/01/1979 | EXECUTORD | Executor Deed | JELLAR, VICTOR | RYALS, STEVE | | | $3,000.00 | 95692 | 362385 |
| 8 | 01/01/1900 | OTHER | Other - Misc. Documents | Unknown | JELLAR, VICTOR | | | $0.00 | 0 | 0 |
Payout Agreement
| No payout information available.. |