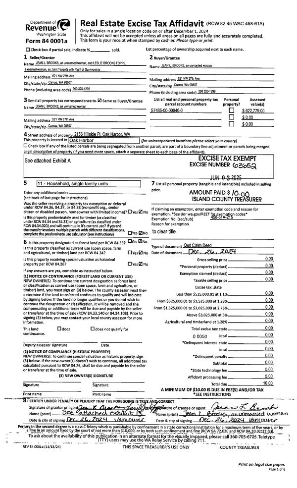
Property
Account |
| Property ID: | 194792 | Abbreviated Legal Description: | BON AIR 3 LOT 19 BLK 8 |
| Geographic ID: | S6140-03-08019-0 | Agent Code: | |
| Type: | Real | | |
| Tax Area: | 310 - APPRAISER-Cpvl Schl Dist, outside Cpvl, improved & 1 acre or less | Land Use Code | 11 |
| Open Space: | N | DFL | N |
| Historic Property: | N | Remodel Property: | N |
| Multi-Family Redevelopment: | N | | |
| Township: | | Section: | |
| Range: | |
Location |
| Address: | 394 COE ST COUPEVILLE, WA 98239 | Mapsco: | |
| Neighborhood: | Cycle 2 | Map ID: | 525 |
| Neighborhood CD: | 2 |
Owner |
| Name: | MOTT, JOHN S | Owner ID: | 308745 |
| Mailing Address: | HILDE S MOTT 3655 LAGOON VIEW DR GREEBANK, WA 98253 | % Ownership: | 100.0000000000% |
| | | Exemptions: | |
Taxes and Assessment Details
Values
| (+) Improvement Homesite Value: | + | $0 | |
| (+) Improvement Non-Homesite Value: | + | $336,648 | |
| (+) Land Homesite Value: | + | $0 | |
| (+) Land Non-Homesite Value: | + | $190,000 | |
| (+) Curr Use (HS): | + | $0 | $0 |
| (+) Curr Use (NHS): | + | $0 | $0 |
| | | -------------------------- | |
| (=) Market Value: | = | $526,648 | |
| (–) Productivity Loss: | – | $0 | |
| | | -------------------------- | |
| (=) Subtotal: | = | $526,648 | |
| (+) Senior Appraised Value: | + | $0 | |
| (+) Non-Senior Appraised Value: | + | $526,648 | |
| | | -------------------------- | |
| (=) Total Appraised Value: | = | $526,648 | |
| (–) Senior Exemption Loss: | – | $0 | |
| (–) Exemption Loss: | – | $0 | |
| | | -------------------------- | |
| (=) Taxable Value: | = | $526,648 | |
Taxing Jurisdiction
| Owner: | MOTT, JOHN S | | |
| % Ownership: | 100.0000000000% | | |
| Total Value: | $526,648 | | |
| Tax Area: | 310 - APPRAISER-Cpvl Schl Dist, outside Cpvl, improved & 1 acre or less |
| CF | Conservation Futures | 0.0316035091 | $526,648 | $526,648 | $16.64 | | |
| CEM2 | Cemetery #2 | 0.0095056933 | $526,648 | $526,648 | $5.01 | | |
| FIRE5 | Fire & Rescue Dist #5 C Whidbey GEN | 1.2008080668 | $526,648 | $526,648 | $632.40 | | |
| FIRE5BOND | Fire & Rescue Dist #5 C Whidbey BOND | 0.1400090713 | $526,648 | $526,648 | $73.74 | | |
| HOBOND | Hospital BOND | 0.1910887512 | $526,648 | $526,648 | $100.64 | | |
| HOGEN | Hospital GEN | 0.3902502903 | $526,648 | $526,648 | $205.52 | | |
| CE | County Current Expense | 0.3708482477 | $526,648 | $526,648 | $195.31 | | |
| CR | County Roads | 0.4584763726 | $526,648 | $526,648 | $241.46 | | |
| ISLANDEMS | Hospital GEN (EMS) | 0.5000000000 | $526,648 | $526,648 | $263.32 | | |
| LIB | Library Sno-Isle GEN | 0.3153421757 | $526,648 | $526,648 | $166.07 | | |
| LIBCAP | Library Sno-Isle BOND (Cap Fac Imp Area) | 0.0543427938 | $526,648 | $526,648 | $28.62 | | |
| POCOUP | Port of Coupeville GEN | 0.1093371703 | $526,648 | $526,648 | $57.58 | | |
| POCOUPIDD | Port of Coupeville IDD | 0.3409740022 | $526,648 | $526,648 | $179.57 | | |
| COUPSDTECH | School 204 CP (TECH) | 0.7545480007 | $526,648 | $526,648 | $397.38 | | |
| SCH204MO | School 204 Enrichment | 0.6716186034 | $526,648 | $526,648 | $353.71 | | |
| ST | State School | 1.3035497053 | $526,648 | $526,648 | $686.51 | | |
| ST2 | State School Part 2 | 0.8169543533 | $526,648 | $526,648 | $430.25 | | |
| | Total Tax Rate: | 7.6592568070 | | | | | |
| | | | | Taxes w/Current Exemptions: | $4,033.73 | | |
| | | | | Taxes w/o Exemptions: | $4,033.73 | | |
Improvement / Building
| Improvement #1: | RESIDENTIAL | State Code: | Y | 1584.5 sqft | Value: | $336,648 |
| Bathrooms: | 2.5 | Bedrooms: | 2 | | Ceiling: | DRYWALL PAINTED | Cooling: | HEAT PUMP/CONV/V | | Exterior Wall/Cover: | CEMENT FIBER | Floor Covering: | CARPET/VINYL 60-40 | | Floor Structure: | WOOD W/SUBFLOOR | Foundation: | CONCRETE | | Interior Finish: | DRYWALL PAINT | Plumbing Fixture Cnt: | 11 | | Roof Slope: | 3" IN 12" | Roof Structure/Cover: | CJ ASPHALT |
|
| | Type | Description | Class CD | Sub Class CD | Year Built | Area |
| | BAS | BASE/MAIN FLOOR | 3 | 0 | 2023 | 782.5 |
| | UPS | UPPER STORY | 3 | 0 | 2023 | 802.0 |
| | AGR | ATTACHED GARAGE | 3 | 0 | 2023 | 441.1 |
| | OP4 | OPEN PORCH W/CEILING-ROOF | 3 | 0 | 2023 | 19.5 |
| | OWP | OPEN WOOD PORCH W/STEPS | 3 | 0 | 2023 | 175.0 |
Sketch
Property Image
Land
| 1 | 13 | SQ (06001-08000) | 0.1700 | 7405.20 | 0.00 | 0.00 | 1.00 | $190,000 | $0 |
Roll Value History
| 2026 | N/A | N/A | N/A | N/A | N/A |
| 2025 | $336,648 | $190,000 | $0 | $526,648 | $526,648 |
| 2024 | $342,769 | $180,000 | $0 | $522,769 | $522,769 |
| 2023 | $349,764 | $175,000 | $0 | $524,764 | $524,764 |
| 2022 | $0 | $45,000 | $0 | $45,000 | $45,000 |
| 2021 | $0 | $30,000 | $0 | $30,000 | $30,000 |
| 2020 | $0 | $30,000 | $0 | $30,000 | $30,000 |
| 2019 | $0 | $30,000 | $0 | $30,000 | $30,000 |
| 2018 | $0 | $30,000 | $0 | $30,000 | $30,000 |
| 2017 | $0 | $30,000 | $0 | $30,000 | $30,000 |
| 2016 | $0 | $30,000 | $0 | $30,000 | $30,000 |
| 2015 | $0 | $30,000 | $0 | $30,000 | $30,000 |
| 2014 | $0 | $30,000 | $0 | $30,000 | $30,000 |
| 2013 | $0 | $30,000 | $0 | $30,000 | $30,000 |
| 2012 | $0 | $30,000 | $0 | $30,000 | $30,000 |
| 2011 | $0 | $30,000 | $0 | $30,000 | $30,000 |
| 2010 | $0 | $30,000 | $0 | $30,000 | $30,000 |
| 2009 | $0 | $45,000 | $0 | $45,000 | $45,000 |
| 2008 | $0 | $38,000 | $0 | $38,000 | $38,000 |
| 2007 | $0 | $22,500 | $0 | $22,500 | $22,500 |
Deed and Sales History
| 1 | 05/23/2023 | WD | Warranty Deed | WALDRON CONSTRUCTION, INC. | MOTT, JOHN S | | | $525,000.00 | 56811 | 4560325 |
| 2 | 04/30/2021 | WD | Warranty Deed | GEORGE, ROY N | WALDRON CONSTRUCTION, INC. | | | $30,000.00 | 48637 | 4521615 |
| 3 | 09/15/2004 | WD | Warranty Deed | WALL, JOHN | GEORGE, ROY N | | | $5,000.00 | 44369 | 4113091 |
| 4 | 08/01/1985 | QCD | Quit Claim Deed | Unknown | WALL, JOHN A | | | $0.00 | 52277 | 85008944 |
| 5 | 08/01/1985 | QCD | Quit Claim Deed | WALL, PETER B | WALL, JOHN | | | $0.00 | 52277 | 85008944 |
| 6 | 05/01/1980 | EXECUTORD | Executor Deed | WALL, JOHN | WALL, PETER B | | | $4,000.00 | 11460 | 382997 |
| 7 | 11/01/1978 | OTHER | Other - Misc. Documents | WALL, JOHN A | WALL, JOHN | | | $3,000.00 | 85842 | 343864 |
| 8 | 01/01/1900 | OTHER | Other - Misc. Documents | WALL, JOHN | WALL, JOHN | | | $0.00 | 0 | 0 |
Payout Agreement
| No payout information available.. |