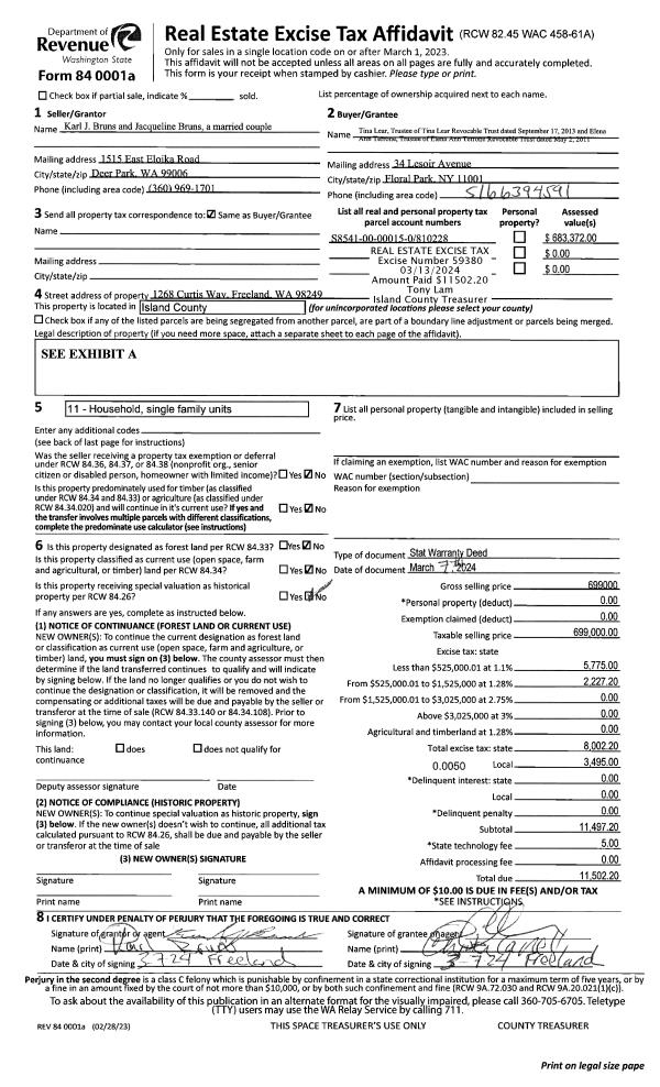
Property
Account |
| Property ID: | 19492 | Abbreviated Legal Description: | 6 - IN NW SE: BG SECR SW SE N1550' TPB W300' N290' E300 M/L TO CLN RD S290' TPB EX E20' RD |
| Geographic ID: | R13215-169-3800 | Agent Code: | |
| Type: | Real | | |
| Tax Area: | 112 - APPRAISER-OH Schl Dist, outside OH, improved, greater than 1 acre | Land Use Code | 11 |
| Open Space: | N | DFL | N |
| Historic Property: | N | Remodel Property: | N |
| Multi-Family Redevelopment: | N | | |
| Township: | 32 | Section: | 15 |
| Range: | R1 |
Location |
| Address: | 1329 BALDA RD OAK HARBOR, WA 98277 | Mapsco: | |
| Neighborhood: | Cycle 1 | Map ID: | 125 |
| Neighborhood CD: | 1 |
Owner |
| Name: | VARNER, ALISON T | Owner ID: | 273574 |
| Mailing Address: | 1329 BALDA RD OAK HARBOR, WA 98277 | % Ownership: | 100.0000000000% |
| | | Exemptions: | |
Taxes and Assessment Details
Values
| (+) Improvement Homesite Value: | + | $0 | |
| (+) Improvement Non-Homesite Value: | + | $383,811 | |
| (+) Land Homesite Value: | + | $0 | |
| (+) Land Non-Homesite Value: | + | $240,000 | |
| (+) Curr Use (HS): | + | $0 | $0 |
| (+) Curr Use (NHS): | + | $0 | $0 |
| | | -------------------------- | |
| (=) Market Value: | = | $623,811 | |
| (–) Productivity Loss: | – | $0 | |
| | | -------------------------- | |
| (=) Subtotal: | = | $623,811 | |
| (+) Senior Appraised Value: | + | $0 | |
| (+) Non-Senior Appraised Value: | + | $623,811 | |
| | | -------------------------- | |
| (=) Total Appraised Value: | = | $623,811 | |
| (–) Senior Exemption Loss: | – | $0 | |
| (–) Exemption Loss: | – | $0 | |
| | | -------------------------- | |
| (=) Taxable Value: | = | $623,811 | |
Taxing Jurisdiction
| Owner: | VARNER, ALISON T | | |
| % Ownership: | 100.0000000000% | | |
| Total Value: | $623,811 | | |
| Tax Area: | 112 - APPRAISER-OH Schl Dist, outside OH, improved, greater than 1 acre |
| CF | Conservation Futures | 0.0316035091 | $623,811 | $623,811 | $19.71 | | |
| CEM1 | Cemetery #1 | 0.0040320932 | $623,811 | $623,811 | $2.52 | | |
| FIRE2 | Fire & Rescue Dist #2 N Whidbey GEN | 0.5475949600 | $623,811 | $623,811 | $341.60 | | |
| HOBOND | Hospital BOND | 0.1910887512 | $623,811 | $623,811 | $119.20 | | |
| HOGEN | Hospital GEN | 0.3902502903 | $623,811 | $623,811 | $243.44 | | |
| CE | County Current Expense | 0.3708482477 | $623,811 | $623,811 | $231.34 | | |
| CR | County Roads | 0.4584763726 | $623,811 | $623,811 | $286.00 | | |
| ISLANDEMS | Hospital GEN (EMS) | 0.5000000000 | $623,811 | $623,811 | $311.91 | | |
| LIB | Library Sno-Isle GEN | 0.3153421757 | $623,811 | $623,811 | $196.71 | | |
| NWHIDPRMT | P & R N Whidbey GEN | 0.2004466701 | $623,811 | $623,811 | $125.04 | | |
| SCH201MO | School 201 Enrichment | 1.8559231640 | $623,811 | $623,811 | $1,157.75 | | |
| ST | State School | 1.3035497053 | $623,811 | $623,811 | $813.17 | | |
| ST2 | State School Part 2 | 0.8169543533 | $623,811 | $623,811 | $509.63 | | |
| | Total Tax Rate: | 6.9861102925 | | | | | |
| | | | | Taxes w/Current Exemptions: | $4,358.02 | | |
| | | | | Taxes w/o Exemptions: | $4,358.02 | | |
Improvement / Building
| Improvement #1: | RESIDENTIAL | State Code: | Y | 864.0 sqft | Value: | $205,103 |
| Bathrooms: | 1 | Bedrooms: | 2 | | Ceiling: | DRYWALL PAINTED | Exterior Wall/Cover: | WOOD SIDING | | Floor Covering: | HARDWOOD/CARP 20-80 | Floor Structure: | WOOD W/SUBFLOOR | | Foundation: | CONCRETE | Heating: | BASEBOARD ELECTRIC | | Interior Finish: | DRYWALL PAINT | Plumbing Fixture Cnt: | 6 | | Roof Slope: | 4" IN 12" | Roof Structure/Cover: | CJ ASPHALT |
|
| | Type | Description | Class CD | Sub Class CD | Year Built | Area |
| | BAS | BASE/MAIN FLOOR | 3 | 0 | 1971 | 864.0 |
| | OP3 | OPEN PORCH W/ROOF | 3 | 0 | 1971 | 80.0 |
| | OWP | OPEN WOOD PORCH W/STEPS | 3 | 0 | 1971 | 148.0 |
| | DGR | DETACHED GARAGE | 3 | 0 | 1971 | 672.0 |
| | OP2 | OPEN PORCH W/STEPS | 3 | 0 | 1971 | 128.0 |
| | CPD | OPEN CARPORT DIRT FLOOR | 3 | 0 | 1971 | 336.0 |
| | CPD | OPEN CARPORT DIRT FLOOR | 3 | 0 | 1971 | 336.0 |
| Improvement #2: | MANUFACTURED HOME | State Code: | Y | 1616.0 sqft | Value: | $178,708 |
| Bathrooms: | 0 | Bedrooms: | 0 | | Ceiling: | PLASTER PAINTED | Cooling: | EVAP NO DUCT | | Exterior Wall/Cover: | VINYL | Floor Covering: | CARPET 100% | | Floor Structure: | SLAB ON GRADE | Foundation: | SLAB | | Heating: | FHA ELECTRIC | Interior Finish: | PLASTER | | Plumbing Fixture Cnt: | 1 | Roof Slope: | FLAT | | Roof Structure/Cover: | CJ ALUMINIUM HEAVY |   |   |
|
| | Type | Description | Class CD | Sub Class CD | Year Built | Area |
| | BAS | BASE/MAIN FLOOR | 4 | 0 | 2006 | 1616.0 |
| | AGR | ATTACHED GARAGE | 4 | 0 | 2006 | 600.0 |
| | OWP | OPEN WOOD PORCH W/STEPS | 4 | 0 | 2006 | 220.0 |
Sketch
Property Image
Land
| 1 | 17 | AC (01.01-02.00) | 1.8700 | 81457.20 | 0.00 | 0.00 | 1.00 | $240,000 | $0 |
Roll Value History
| 2026 | N/A | N/A | N/A | N/A | N/A |
| 2025 | $383,811 | $240,000 | $0 | $623,811 | $623,811 |
| 2024 | $395,038 | $220,000 | $0 | $615,038 | $615,038 |
| 2023 | $321,446 | $220,000 | $0 | $541,446 | $541,446 |
| 2022 | $296,283 | $200,000 | $0 | $496,283 | $496,283 |
| 2021 | $262,162 | $170,000 | $0 | $432,162 | $432,162 |
| 2020 | $257,495 | $130,000 | $0 | $387,495 | $387,495 |
| 2019 | $192,067 | $200,000 | $0 | $392,067 | $392,067 |
| 2018 | $194,443 | $160,000 | $0 | $354,443 | $354,443 |
| 2017 | $192,371 | $150,000 | $0 | $342,371 | $342,371 |
| 2016 | $194,247 | $120,000 | $0 | $314,247 | $314,247 |
| 2015 | $161,545 | $90,000 | $0 | $251,545 | $251,545 |
| 2014 | $163,224 | $90,000 | $0 | $253,224 | $253,224 |
| 2013 | $165,666 | $102,000 | $0 | $267,666 | $267,666 |
| 2012 | $167,347 | $102,000 | $0 | $269,347 | $269,347 |
| 2011 | $175,830 | $120,000 | $0 | $295,830 | $295,830 |
| 2010 | $180,198 | $120,000 | $0 | $300,198 | $300,198 |
| 2009 | $187,418 | $120,000 | $0 | $307,418 | $307,418 |
| 2008 | $190,689 | $102,911 | $0 | $293,600 | $293,600 |
| 2007 | $193,836 | $102,910 | $0 | $296,746 | $296,746 |
Deed and Sales History
| 1 | 01/26/2016 | WD | Warranty Deed | ARNSBERGER, MARILYN R | VARNER, ALISON T | | | $335,000.00 | 23002 | 4393364 |
| 2 | 12/15/2004 | 5 | DNU - Marriage License/Name Change | ARNESBERGER, MARILYN R | ARNSBERGER, MARILYN R | | | $0.00 | 70436 | 0 |
| 3 | 09/12/2004 | 5 | DNU - Marriage License/Name Change | ANDERSON, MARILYN R | ARNESBERGER, MARILYN R | | | $0.00 | 70259 | 0 |
| 4 | 04/05/2002 | WD | Warranty Deed | BOWEN, PATTY S | ANDERSON, MARILYN R | | | $103,000.00 | 21298 | 4016317 |
| 5 | 08/01/1994 | PRD | Personal Representatives Deed | ASMUS, LILA F | BOWEN, PATTY S | | | $0.00 | 43186 | 94017179 |
| 6 | 12/01/1984 | OTHER | Other - Misc. Documents | ASMUS, JOHN A | ASMUS, LILA F | | | $0.00 | 60969 | 0 |
| 7 | 01/01/1900 | OTHER | Other - Misc. Documents | Unknown | ASMUS, JOHN A | | | $0.00 | 0 | 0 |
Payout Agreement
| No payout information available.. |