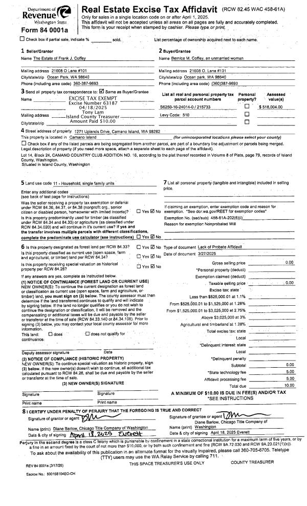
Property
Account |
| Property ID: | 194989 | Abbreviated Legal Description: | BON AIR 3 LOT 1 BLK 10 |
| Geographic ID: | S6140-03-10001-0 | Agent Code: | |
| Type: | Real | | |
| Tax Area: | 310 - APPRAISER-Cpvl Schl Dist, outside Cpvl, improved & 1 acre or less | Land Use Code | 11 |
| Open Space: | N | DFL | N |
| Historic Property: | N | Remodel Property: | N |
| Multi-Family Redevelopment: | N | | |
| Township: | | Section: | |
| Range: | |
Location |
| Address: | 2002 LEDGEWOOD BEACH RD COUPEVILLE, WA 98239 | Mapsco: | |
| Neighborhood: | Cycle 2 | Map ID: | 528 |
| Neighborhood CD: | 2 |
Owner |
| Name: | DIAZ, CHRISTOPHER G | Owner ID: | 280253 |
| Mailing Address: | 2002 DONNA DR COUPEVILLE, WA 98239 | % Ownership: | 100.0000000000% |
| | | Exemptions: | |
Taxes and Assessment Details
Values
| (+) Improvement Homesite Value: | + | $0 | |
| (+) Improvement Non-Homesite Value: | + | $149,640 | |
| (+) Land Homesite Value: | + | $0 | |
| (+) Land Non-Homesite Value: | + | $190,000 | |
| (+) Curr Use (HS): | + | $0 | $0 |
| (+) Curr Use (NHS): | + | $0 | $0 |
| | | -------------------------- | |
| (=) Market Value: | = | $339,640 | |
| (–) Productivity Loss: | – | $0 | |
| | | -------------------------- | |
| (=) Subtotal: | = | $339,640 | |
| (+) Senior Appraised Value: | + | $0 | |
| (+) Non-Senior Appraised Value: | + | $339,640 | |
| | | -------------------------- | |
| (=) Total Appraised Value: | = | $339,640 | |
| (–) Senior Exemption Loss: | – | $0 | |
| (–) Exemption Loss: | – | $0 | |
| | | -------------------------- | |
| (=) Taxable Value: | = | $339,640 | |
Taxing Jurisdiction
| Owner: | DIAZ, CHRISTOPHER G | | |
| % Ownership: | 100.0000000000% | | |
| Total Value: | $339,640 | | |
| Tax Area: | 310 - APPRAISER-Cpvl Schl Dist, outside Cpvl, improved & 1 acre or less |
| CF | Conservation Futures | 0.0316035091 | $339,640 | $339,640 | $10.73 | | |
| CEM2 | Cemetery #2 | 0.0095056933 | $339,640 | $339,640 | $3.23 | | |
| FIRE5 | Fire & Rescue Dist #5 C Whidbey GEN | 1.2008080668 | $339,640 | $339,640 | $407.84 | | |
| FIRE5BOND | Fire & Rescue Dist #5 C Whidbey BOND | 0.1400090713 | $339,640 | $339,640 | $47.55 | | |
| HOBOND | Hospital BOND | 0.1910887512 | $339,640 | $339,640 | $64.90 | | |
| HOGEN | Hospital GEN | 0.3902502903 | $339,640 | $339,640 | $132.54 | | |
| CE | County Current Expense | 0.3708482477 | $339,640 | $339,640 | $125.95 | | |
| CR | County Roads | 0.4584763726 | $339,640 | $339,640 | $155.72 | | |
| ISLANDEMS | Hospital GEN (EMS) | 0.5000000000 | $339,640 | $339,640 | $169.82 | | |
| LIB | Library Sno-Isle GEN | 0.3153421757 | $339,640 | $339,640 | $107.10 | | |
| LIBCAP | Library Sno-Isle BOND (Cap Fac Imp Area) | 0.0543427938 | $339,640 | $339,640 | $18.46 | | |
| POCOUP | Port of Coupeville GEN | 0.1093371703 | $339,640 | $339,640 | $37.14 | | |
| POCOUPIDD | Port of Coupeville IDD | 0.3409740022 | $339,640 | $339,640 | $115.81 | | |
| COUPSDTECH | School 204 CP (TECH) | 0.7545480007 | $339,640 | $339,640 | $256.27 | | |
| SCH204MO | School 204 Enrichment | 0.6716186034 | $339,640 | $339,640 | $228.11 | | |
| ST | State School | 1.3035497053 | $339,640 | $339,640 | $442.74 | | |
| ST2 | State School Part 2 | 0.8169543533 | $339,640 | $339,640 | $277.47 | | |
| | Total Tax Rate: | 7.6592568070 | | | | | |
| | | | | Taxes w/Current Exemptions: | $2,601.38 | | |
| | | | | Taxes w/o Exemptions: | $2,601.38 | | |
Improvement / Building
| Improvement #1: | RESIDENTIAL | State Code: | Y | 1032.0 sqft | Value: | $149,640 |
| Bathrooms: | 1 | Bedrooms: | 3 | | Ceiling: | DRYWALL PAINTED | Exterior Wall/Cover: | PLY/HARDBOARD T-111 | | Floor Covering: | CARPET/VINYL 80-20 | Floor Structure: | WOOD W/SUBFLOOR | | Foundation: | CONCRETE | Heating: | FHA ELECTRIC | | Interior Finish: | DRYWALL PAINT | Plumbing Fixture Cnt: | 6 | | Roof Slope: | 4" IN 12" | Roof Structure/Cover: | CJ ASPHALT |
|
| | Type | Description | Class CD | Sub Class CD | Year Built | Area |
| | BAS | BASE/MAIN FLOOR | 3 | 0 | 1980 | 1032.0 |
| | AGR | ATTACHED GARAGE | 3 | 0 | 1980 | 240.0 |
| | OWP | OPEN WOOD PORCH W/STEPS | 3 | 0 | 1980 | 112.0 |
Sketch
Property Image
Land
| 1 | 14 | SQ (08001-12000) | 0.1900 | 8276.40 | 0.00 | 0.00 | 1.00 | $190,000 | $0 |
Roll Value History
| 2026 | N/A | N/A | N/A | N/A | N/A |
| 2025 | $149,640 | $190,000 | $0 | $339,640 | $339,640 |
| 2024 | $151,801 | $180,000 | $0 | $331,801 | $331,801 |
| 2023 | $153,961 | $175,000 | $0 | $328,961 | $328,961 |
| 2022 | $141,370 | $150,000 | $0 | $291,370 | $291,370 |
| 2021 | $124,631 | $100,000 | $0 | $224,631 | $224,631 |
| 2020 | $121,635 | $85,000 | $0 | $206,635 | $206,635 |
| 2019 | $86,677 | $130,000 | $0 | $216,677 | $216,677 |
| 2018 | $77,750 | $130,000 | $0 | $207,750 | $207,750 |
| 2017 | $78,327 | $100,000 | $0 | $178,327 | $178,327 |
| 2016 | $79,478 | $75,000 | $0 | $154,478 | $154,478 |
| 2015 | $80,630 | $50,000 | $0 | $130,630 | $130,630 |
| 2014 | $81,783 | $50,000 | $0 | $131,783 | $131,783 |
| 2013 | $82,934 | $50,000 | $0 | $132,934 | $132,934 |
| 2012 | $77,175 | $57,000 | $0 | $134,175 | $134,175 |
| 2011 | $78,327 | $60,000 | $0 | $138,327 | $138,327 |
| 2010 | $79,196 | $60,000 | $0 | $139,196 | $139,196 |
| 2009 | $82,767 | $75,000 | $0 | $157,767 | $157,767 |
| 2008 | $83,910 | $76,000 | $0 | $159,910 | $159,910 |
| 2007 | $85,053 | $85,000 | $0 | $170,053 | $170,053 |
Deed and Sales History
| 1 | 06/05/2017 | WD | Warranty Deed | PROPES, BENJAMIN M | DIAZ, CHRISTOPHER G | | | $195,000.00 | 29612 | 4423812 |
| 2 | 09/01/2009 | WD | Warranty Deed | ZIMMERMAN, DALE H | PROPES, BENJAMIN M | | | $150,000.00 | 92079 | 4259570 |
| 3 | 05/01/1987 | QCD | Quit Claim Deed | UNITED, STATES O | ZIMMERMAN, DALE H | | | $29,000.00 | 71450 | 87006972 |
| 4 | 10/01/1986 | QCD | Quit Claim Deed | UNITED, STATES O | UNITED, STATES O | | | $0.00 | 63059 | 86013819 |
| 5 | 08/01/1985 | WD | Warranty Deed | FIXEL, SANDRA L | UNITED, STATES O | | | $0.00 | 63058 | 86013818 |
| 6 | 05/01/1981 | TRUSTEED | Trustee's Deed | HOLTMAN, JACK W | FIXEL, SANDRA L | | | $40,700.00 | 11476 | 383018 |
| 7 | 10/01/1979 | EZ | Easement | BERGDOLL, D A | HOLTMAN, JACK W | | | $5,000.00 | 95267 | 361070 |
| 8 | 06/01/1979 | EXECUTORD | Executor Deed | AUGERSON, NORMAN T | BERGDOLL, D A | | | $3,600.00 | 928040 | 3536930 |
| 9 | 01/01/1900 | OTHER | Other - Misc. Documents | Unknown | AUGERSON, NORMAN T | | | $0.00 | 0 | 0 |
Payout Agreement
| No payout information available.. |