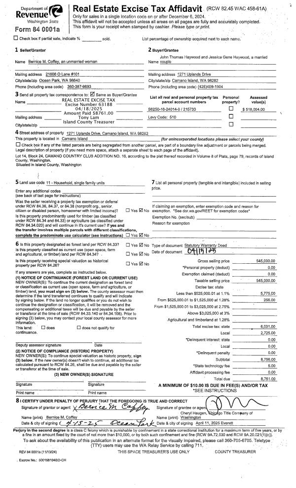
Property
Account |
| Property ID: | 194998 | Abbreviated Legal Description: | BON AIR 3 LOT 2 BLK 10 |
| Geographic ID: | S6140-03-10002-0 | Agent Code: | |
| Type: | Real | | |
| Tax Area: | 310 - APPRAISER-Cpvl Schl Dist, outside Cpvl, improved & 1 acre or less | Land Use Code | 11 |
| Open Space: | N | DFL | N |
| Historic Property: | N | Remodel Property: | N |
| Multi-Family Redevelopment: | N | | |
| Township: | | Section: | |
| Range: | |
Location |
| Address: | 2006 DONNA DR COUPEVILLE, WA 98239 | Mapsco: | |
| Neighborhood: | Cycle 2 | Map ID: | 528 |
| Neighborhood CD: | 2 |
Owner |
| Name: | AVILA, LESLIE LYNN | Owner ID: | 267408 |
| Mailing Address: | 2006 S DONNA DR COUPEVILLE, WA 98239 | % Ownership: | 100.0000000000% |
| | | Exemptions: | |
Taxes and Assessment Details
Values
| (+) Improvement Homesite Value: | + | $0 | |
| (+) Improvement Non-Homesite Value: | + | $149,039 | |
| (+) Land Homesite Value: | + | $0 | |
| (+) Land Non-Homesite Value: | + | $190,000 | |
| (+) Curr Use (HS): | + | $0 | $0 |
| (+) Curr Use (NHS): | + | $0 | $0 |
| | | -------------------------- | |
| (=) Market Value: | = | $339,039 | |
| (–) Productivity Loss: | – | $0 | |
| | | -------------------------- | |
| (=) Subtotal: | = | $339,039 | |
| (+) Senior Appraised Value: | + | $0 | |
| (+) Non-Senior Appraised Value: | + | $339,039 | |
| | | -------------------------- | |
| (=) Total Appraised Value: | = | $339,039 | |
| (–) Senior Exemption Loss: | – | $0 | |
| (–) Exemption Loss: | – | $0 | |
| | | -------------------------- | |
| (=) Taxable Value: | = | $339,039 | |
Taxing Jurisdiction
| Owner: | AVILA, LESLIE LYNN | | |
| % Ownership: | 100.0000000000% | | |
| Total Value: | $339,039 | | |
| Tax Area: | 310 - APPRAISER-Cpvl Schl Dist, outside Cpvl, improved & 1 acre or less |
| CF | Conservation Futures | 0.0316035091 | $339,039 | $339,039 | $10.71 | | |
| CEM2 | Cemetery #2 | 0.0095056933 | $339,039 | $339,039 | $3.22 | | |
| FIRE5 | Fire & Rescue Dist #5 C Whidbey GEN | 1.2008080668 | $339,039 | $339,039 | $407.12 | | |
| FIRE5BOND | Fire & Rescue Dist #5 C Whidbey BOND | 0.1400090713 | $339,039 | $339,039 | $47.47 | | |
| HOBOND | Hospital BOND | 0.1910887512 | $339,039 | $339,039 | $64.79 | | |
| HOGEN | Hospital GEN | 0.3902502903 | $339,039 | $339,039 | $132.31 | | |
| CE | County Current Expense | 0.3708482477 | $339,039 | $339,039 | $125.73 | | |
| CR | County Roads | 0.4584763726 | $339,039 | $339,039 | $155.44 | | |
| ISLANDEMS | Hospital GEN (EMS) | 0.5000000000 | $339,039 | $339,039 | $169.52 | | |
| LIB | Library Sno-Isle GEN | 0.3153421757 | $339,039 | $339,039 | $106.91 | | |
| LIBCAP | Library Sno-Isle BOND (Cap Fac Imp Area) | 0.0543427938 | $339,039 | $339,039 | $18.42 | | |
| POCOUP | Port of Coupeville GEN | 0.1093371703 | $339,039 | $339,039 | $37.07 | | |
| POCOUPIDD | Port of Coupeville IDD | 0.3409740022 | $339,039 | $339,039 | $115.60 | | |
| COUPSDTECH | School 204 CP (TECH) | 0.7545480007 | $339,039 | $339,039 | $255.82 | | |
| SCH204MO | School 204 Enrichment | 0.6716186034 | $339,039 | $339,039 | $227.70 | | |
| ST | State School | 1.3035497053 | $339,039 | $339,039 | $441.95 | | |
| ST2 | State School Part 2 | 0.8169543533 | $339,039 | $339,039 | $276.98 | | |
| | Total Tax Rate: | 7.6592568070 | | | | | |
| | | | | Taxes w/Current Exemptions: | $2,596.76 | | |
| | | | | Taxes w/o Exemptions: | $2,596.76 | | |
Improvement / Building
| Improvement #1: | RESIDENTIAL | State Code: | Y | 1056.0 sqft | Value: | $149,039 |
| Bathrooms: | 1 | Bedrooms: | 3 | | Ceiling: | DRY WALL SPRAYED | Exterior Wall/Cover: | WOOD SIDING | | Floor Covering: | CARPET/VINYL 80-20 | Floor Structure: | WOOD W/SUBFLOOR | | Foundation: | CONCRETE | Heating: | FHA ELECTRIC | | Interior Finish: | DRYWALL PAINT | Plumbing Fixture Cnt: | 6 | | Roof Slope: | 6" IN 12" | Roof Structure/Cover: | CJ ASPHALT |
|
| | Type | Description | Class CD | Sub Class CD | Year Built | Area |
| | BAS | BASE/MAIN FLOOR | 3 | 0 | 1979 | 1056.0 |
| | AGR | ATTACHED GARAGE | 3 | 0 | 1979 | 288.0 |
| | OWP | OPEN WOOD PORCH W/STEPS | 3 | 0 | 1979 | 17.0 |
| | OWR | OPEN WOOD PORCH W/STEPS/ROOF | 3 | 0 | 1979 | 23.0 |
Sketch
Property Image
Land
| 1 | 13 | SQ (06001-08000) | 0.1600 | 6969.60 | 0.00 | 0.00 | 1.00 | $190,000 | $0 |
Roll Value History
| 2026 | N/A | N/A | N/A | N/A | N/A |
| 2025 | $149,039 | $190,000 | $0 | $339,039 | $339,039 |
| 2024 | $151,288 | $180,000 | $0 | $331,288 | $331,288 |
| 2023 | $153,539 | $175,000 | $0 | $328,539 | $328,539 |
| 2022 | $141,075 | $150,000 | $0 | $291,075 | $291,075 |
| 2021 | $124,442 | $100,000 | $0 | $224,442 | $224,442 |
| 2020 | $121,572 | $85,000 | $0 | $206,572 | $206,572 |
| 2019 | $86,862 | $130,000 | $0 | $216,862 | $216,862 |
| 2018 | $79,950 | $130,000 | $0 | $209,950 | $209,950 |
| 2017 | $80,551 | $100,000 | $0 | $180,551 | $180,551 |
| 2016 | $81,754 | $75,000 | $0 | $156,754 | $156,754 |
| 2015 | $82,955 | $50,000 | $0 | $132,955 | $132,955 |
| 2014 | $84,159 | $50,000 | $0 | $134,159 | $134,159 |
| 2013 | $85,361 | $50,000 | $0 | $135,361 | $135,361 |
| 2012 | $82,050 | $57,000 | $0 | $139,050 | $139,050 |
| 2011 | $83,251 | $60,000 | $0 | $143,251 | $143,251 |
| 2010 | $87,087 | $35,000 | $0 | $122,087 | $122,087 |
| 2009 | $91,141 | $65,000 | $0 | $156,141 | $156,141 |
| 2008 | $92,555 | $76,000 | $0 | $168,555 | $168,555 |
| 2007 | $93,972 | $85,000 | $0 | $178,972 | $178,972 |
Deed and Sales History
| 1 | 07/02/2014 | QCD | Quit Claim Deed | MCGINNIS, LESLIE I | AVILA, LESLIE LYNN | | | $0.00 | 16346 | 4363652 |
| 2 | 09/24/2002 | WD | Warranty Deed | FABER, JUSTUS B | MCGINNIS, LESLIE I | | | $109,000.00 | 23826 | 4032343 |
| 3 | 03/22/2001 | WD | Warranty Deed | CARR, JOHN C | FABER, JUSTUS B | | | $90,500.00 | 10926 | 20028123 |
| 4 | 04/01/1990 | WD | Warranty Deed | HOLTMAN, JACK W | CARR, JOHN C | | | $50,300.00 | 2244 | 90007335 |
| 5 | 10/01/1978 | OTHER | Other - Misc. Documents | Unknown | HOLTMAN, JACK W | | | $3,105.00 | 85016 | 341134 |
Payout Agreement
| No payout information available.. |