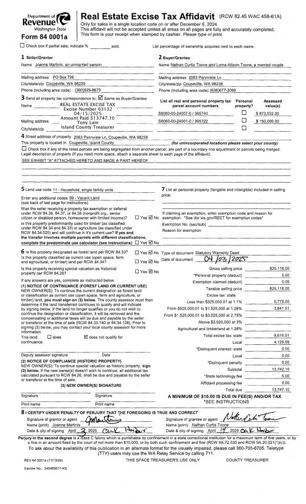
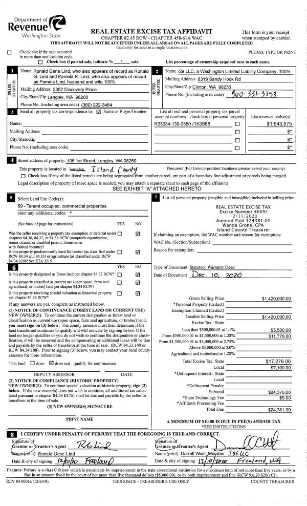
Property
Account |
| Property ID: | 195041 | Abbreviated Legal Description: | BON AIR 3 LOT 9 BLK 10 |
| Geographic ID: | S6140-03-10009-0 | Agent Code: | |
| Type: | Real | | |
| Tax Area: | 310 - APPRAISER-Cpvl Schl Dist, outside Cpvl, improved & 1 acre or less | Land Use Code | 11 |
| Open Space: | N | DFL | N |
| Historic Property: | N | Remodel Property: | N |
| Multi-Family Redevelopment: | N | | |
| Township: | | Section: | |
| Range: | |
Location |
| Address: | 2036 DONNA DR COUPEVILLE, WA 98239 | Mapsco: | |
| Neighborhood: | Cycle 2 | Map ID: | 528 |
| Neighborhood CD: | 2 |
Owner |
| Name: | PARKER, MELEEA | Owner ID: | 300059 |
| Mailing Address: | JAMES PARKER 2036 DONNA DR COUPEVILLE, WA 98239 | % Ownership: | 100.0000000000% |
| | | Exemptions: | |
Taxes and Assessment Details
Values
| (+) Improvement Homesite Value: | + | $0 | |
| (+) Improvement Non-Homesite Value: | + | $365,039 | |
| (+) Land Homesite Value: | + | $0 | |
| (+) Land Non-Homesite Value: | + | $190,000 | |
| (+) Curr Use (HS): | + | $0 | $0 |
| (+) Curr Use (NHS): | + | $0 | $0 |
| | | -------------------------- | |
| (=) Market Value: | = | $555,039 | |
| (–) Productivity Loss: | – | $0 | |
| | | -------------------------- | |
| (=) Subtotal: | = | $555,039 | |
| (+) Senior Appraised Value: | + | $0 | |
| (+) Non-Senior Appraised Value: | + | $555,039 | |
| | | -------------------------- | |
| (=) Total Appraised Value: | = | $555,039 | |
| (–) Senior Exemption Loss: | – | $0 | |
| (–) Exemption Loss: | – | $0 | |
| | | -------------------------- | |
| (=) Taxable Value: | = | $555,039 | |
Taxing Jurisdiction
| Owner: | PARKER, MELEEA | | |
| % Ownership: | 100.0000000000% | | |
| Total Value: | $555,039 | | |
| Tax Area: | 310 - APPRAISER-Cpvl Schl Dist, outside Cpvl, improved & 1 acre or less |
| CF | Conservation Futures | 0.0316035091 | $555,039 | $555,039 | $17.54 | | |
| CEM2 | Cemetery #2 | 0.0095056933 | $555,039 | $555,039 | $5.28 | | |
| FIRE5 | Fire & Rescue Dist #5 C Whidbey GEN | 1.2008080668 | $555,039 | $555,039 | $666.50 | | |
| FIRE5BOND | Fire & Rescue Dist #5 C Whidbey BOND | 0.1400090713 | $555,039 | $555,039 | $77.71 | | |
| HOBOND | Hospital BOND | 0.1910887512 | $555,039 | $555,039 | $106.06 | | |
| HOGEN | Hospital GEN | 0.3902502903 | $555,039 | $555,039 | $216.60 | | |
| CE | County Current Expense | 0.3708482477 | $555,039 | $555,039 | $205.84 | | |
| CR | County Roads | 0.4584763726 | $555,039 | $555,039 | $254.47 | | |
| ISLANDEMS | Hospital GEN (EMS) | 0.5000000000 | $555,039 | $555,039 | $277.52 | | |
| LIB | Library Sno-Isle GEN | 0.3153421757 | $555,039 | $555,039 | $175.03 | | |
| LIBCAP | Library Sno-Isle BOND (Cap Fac Imp Area) | 0.0543427938 | $555,039 | $555,039 | $30.16 | | |
| POCOUP | Port of Coupeville GEN | 0.1093371703 | $555,039 | $555,039 | $60.69 | | |
| POCOUPIDD | Port of Coupeville IDD | 0.3409740022 | $555,039 | $555,039 | $189.25 | | |
| COUPSDTECH | School 204 CP (TECH) | 0.7545480007 | $555,039 | $555,039 | $418.80 | | |
| SCH204MO | School 204 Enrichment | 0.6716186034 | $555,039 | $555,039 | $372.77 | | |
| ST | State School | 1.3035497053 | $555,039 | $555,039 | $723.52 | | |
| ST2 | State School Part 2 | 0.8169543533 | $555,039 | $555,039 | $453.44 | | |
| | Total Tax Rate: | 7.6592568070 | | | | | |
| | | | | Taxes w/Current Exemptions: | $4,251.18 | | |
| | | | | Taxes w/o Exemptions: | $4,251.18 | | |
Improvement / Building
| Improvement #1: | RESIDENTIAL | State Code: | Y | 1936.0 sqft | Value: | $365,039 |
| Bathrooms: | 2.5 | Bedrooms: | 3 | | Ceiling: | DRYWALL PAINTED | Cooling: | HEAT PUMP/CONV/V | | Exterior Wall/Cover: | CEMENT FIBER | Floor Covering: | CARPET/VINYL 60-40 | | Floor Structure: | WOOD W/SUBFLOOR | Foundation: | CONCRETE | | Interior Finish: | DRYWALL PAINT | Plumbing Fixture Cnt: | 11 | | Roof Slope: | 4" IN 12" | Roof Structure/Cover: | CJ ASPHALT |
|
| | Type | Description | Class CD | Sub Class CD | Year Built | Area |
| | BAS | BASE/MAIN FLOOR | 3 | 0 | 2021 | 968.0 |
| | UPS | UPPER STORY | 3 | 0 | 2021 | 968.0 |
| | AGR | ATTACHED GARAGE | 3 | 0 | 2021 | 528.0 |
| | OWP | OPEN WOOD PORCH W/STEPS | 3 | 0 | 2021 | 135.0 |
| | OWR | OPEN WOOD PORCH W/STEPS/ROOF | 3 | 0 | 2021 | 61.0 |
Sketch
| No sketches available for this property. |
Property Image
Land
| 1 | 13 | SQ (06001-08000) | 0.1600 | 6969.60 | 0.00 | 0.00 | 1.00 | $190,000 | $0 |
Roll Value History
| 2026 | N/A | N/A | N/A | N/A | N/A |
| 2025 | $365,039 | $190,000 | $0 | $555,039 | $555,039 |
| 2024 | $370,633 | $180,000 | $0 | $550,633 | $550,633 |
| 2023 | $374,524 | $175,000 | $0 | $549,524 | $549,524 |
| 2022 | $345,294 | $150,000 | $0 | $495,294 | $495,294 |
| 2021 | $306,387 | $100,000 | $0 | $406,387 | $406,387 |
| 2020 | $0 | $30,000 | $0 | $30,000 | $30,000 |
| 2019 | $0 | $30,000 | $0 | $30,000 | $30,000 |
| 2018 | $0 | $30,000 | $0 | $30,000 | $30,000 |
| 2017 | $0 | $30,000 | $0 | $30,000 | $30,000 |
| 2016 | $0 | $30,000 | $0 | $30,000 | $30,000 |
| 2015 | $0 | $30,000 | $0 | $30,000 | $30,000 |
| 2014 | $0 | $30,000 | $0 | $30,000 | $30,000 |
| 2013 | $0 | $30,000 | $0 | $30,000 | $30,000 |
| 2012 | $0 | $30,000 | $0 | $30,000 | $30,000 |
| 2011 | $0 | $30,000 | $0 | $30,000 | $30,000 |
| 2010 | $0 | $30,000 | $0 | $30,000 | $30,000 |
| 2009 | $0 | $45,000 | $0 | $45,000 | $45,000 |
| 2008 | $0 | $38,000 | $0 | $38,000 | $38,000 |
| 2007 | $0 | $22,500 | $0 | $22,500 | $22,500 |
Deed and Sales History
| 1 | 06/07/2021 | WD | Warranty Deed | WALDRON CONSTRUCTION, INC. | PARKER, MELEEA | | | $450,000.00 | 48989 | 4523377 |
| 2 | 07/10/2020 | WD | Warranty Deed | CHUNG, TOMMY K | WALDRON CONSTRUCTION, INC. | | | $30,000.00 | 44070 | 4492884 |
| 3 | 03/03/2015 | WD | Warranty Deed | NAIMAN, ALAN L | CHUNG, TOMMY K | | | $2,000.00 | 18805 | 4375012 |
| 4 | 11/01/2013 | QCD | Quit Claim Deed | NAIMAN, TRUSTEE, BERT L | NAIMAN, ALAN L | | | $0.00 | 13457 | 4351489 |
| 5 | 09/27/2001 | WD | Warranty Deed | Unknown | NAIMAN, TRUSTEE, BERT L | | | $0.00 | 13730 | 20044038 |
Payout Agreement
| No payout information available.. |