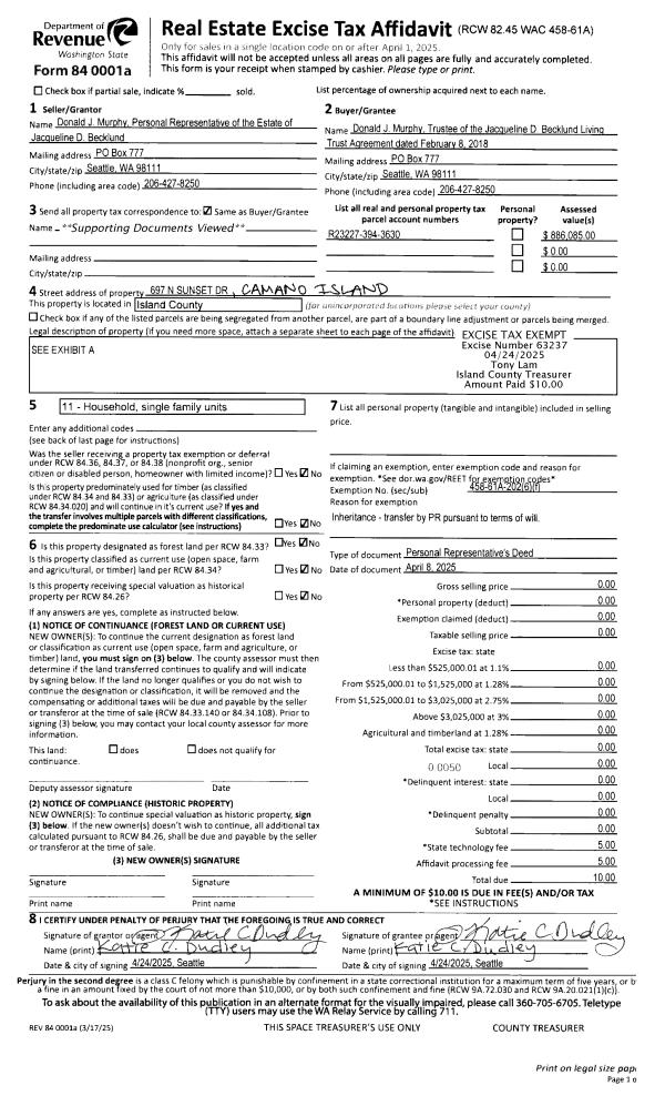
Property
Account |
| Property ID: | 195103 | Abbreviated Legal Description: | Bon Air - 3,s Lot 016,s Blk 10;s LOT A LOT COMB AF#4525018s |
| Geographic ID: | S6140-03-10016-0 | Agent Code: | |
| Type: | Real | | |
| Tax Area: | 310 - APPRAISER-Cpvl Schl Dist, outside Cpvl, improved & 1 acre or less | Land Use Code | 11 |
| Open Space: | N | DFL | N |
| Historic Property: | N | Remodel Property: | N |
| Multi-Family Redevelopment: | N | | |
| Township: | | Section: | |
| Range: | |
Location |
| Address: | 2031 VIRGINIA AVE COUPEVILLE, WA 98239 | Mapsco: | |
| Neighborhood: | Cycle 2 | Map ID: | 528 |
| Neighborhood CD: | 2 |
Owner |
| Name: | ADAMS, MARK P | Owner ID: | 310952 |
| Mailing Address: | PAMELA L ADAMS 1429 AVE D #622 SNOHOMISH, WA 98290 | % Ownership: | 100.0000000000% |
| | | Exemptions: | |
Taxes and Assessment Details
Values
| (+) Improvement Homesite Value: | + | $0 | |
| (+) Improvement Non-Homesite Value: | + | $331,123 | |
| (+) Land Homesite Value: | + | $0 | |
| (+) Land Non-Homesite Value: | + | $190,000 | |
| (+) Curr Use (HS): | + | $0 | $0 |
| (+) Curr Use (NHS): | + | $0 | $0 |
| | | -------------------------- | |
| (=) Market Value: | = | $521,123 | |
| (–) Productivity Loss: | – | $0 | |
| | | -------------------------- | |
| (=) Subtotal: | = | $521,123 | |
| (+) Senior Appraised Value: | + | $0 | |
| (+) Non-Senior Appraised Value: | + | $521,123 | |
| | | -------------------------- | |
| (=) Total Appraised Value: | = | $521,123 | |
| (–) Senior Exemption Loss: | – | $0 | |
| (–) Exemption Loss: | – | $0 | |
| | | -------------------------- | |
| (=) Taxable Value: | = | $521,123 | |
Taxing Jurisdiction
| Owner: | ADAMS, MARK P | | |
| % Ownership: | 100.0000000000% | | |
| Total Value: | $521,123 | | |
| Tax Area: | 310 - APPRAISER-Cpvl Schl Dist, outside Cpvl, improved & 1 acre or less |
| CF | Conservation Futures | 0.0316035091 | $521,123 | $521,123 | $16.47 | | |
| CEM2 | Cemetery #2 | 0.0095056933 | $521,123 | $521,123 | $4.95 | | |
| FIRE5 | Fire & Rescue Dist #5 C Whidbey GEN | 1.2008080668 | $521,123 | $521,123 | $625.77 | | |
| FIRE5BOND | Fire & Rescue Dist #5 C Whidbey BOND | 0.1400090713 | $521,123 | $521,123 | $72.96 | | |
| HOBOND | Hospital BOND | 0.1910887512 | $521,123 | $521,123 | $99.58 | | |
| HOGEN | Hospital GEN | 0.3902502903 | $521,123 | $521,123 | $203.37 | | |
| CE | County Current Expense | 0.3708482477 | $521,123 | $521,123 | $193.26 | | |
| CR | County Roads | 0.4584763726 | $521,123 | $521,123 | $238.92 | | |
| ISLANDEMS | Hospital GEN (EMS) | 0.5000000000 | $521,123 | $521,123 | $260.56 | | |
| LIB | Library Sno-Isle GEN | 0.3153421757 | $521,123 | $521,123 | $164.33 | | |
| LIBCAP | Library Sno-Isle BOND (Cap Fac Imp Area) | 0.0543427938 | $521,123 | $521,123 | $28.32 | | |
| POCOUP | Port of Coupeville GEN | 0.1093371703 | $521,123 | $521,123 | $56.98 | | |
| POCOUPIDD | Port of Coupeville IDD | 0.3409740022 | $521,123 | $521,123 | $177.69 | | |
| COUPSDTECH | School 204 CP (TECH) | 0.7545480007 | $521,123 | $521,123 | $393.21 | | |
| SCH204MO | School 204 Enrichment | 0.6716186034 | $521,123 | $521,123 | $350.00 | | |
| ST | State School | 1.3035497053 | $521,123 | $521,123 | $679.31 | | |
| ST2 | State School Part 2 | 0.8169543533 | $521,123 | $521,123 | $425.73 | | |
| | Total Tax Rate: | 7.6592568070 | | | | | |
| | | | | Taxes w/Current Exemptions: | $3,991.41 | | |
| | | | | Taxes w/o Exemptions: | $3,991.41 | | |
Improvement / Building
| Improvement #1: | RESIDENTIAL | State Code: | Y | 1634.5 sqft | Value: | $331,123 |
| Bathrooms: | 2.5 | Bedrooms: | 3 | | Ceiling: | DRY WALL SPRAYED | Cooling: | HEAT PUMP/CONV/V | | Exterior Wall/Cover: | CEMENT FIBER | Floor Covering: | CARPET/VINYL 20-80 | | Floor Structure: | WOOD W/SUBFLOOR | Foundation: | CONCRETE | | Interior Finish: | DRYWALL PAINT | Plumbing Fixture Cnt: | 10 | | Roof Slope: | 5" IN 12" | Roof Structure/Cover: | CJ ASPHALT |
|
| | Type | Description | Class CD | Sub Class CD | Year Built | Area |
| | BAS | BASE/MAIN FLOOR | 3 | 0 | 2023 | 1634.5 |
| | AGR | ATTACHED GARAGE | 3 | 0 | 2023 | 484.0 |
| | OP4 | OPEN PORCH W/CEILING-ROOF | 3 | 0 | 2023 | 32.0 |
| | OWP | OPEN WOOD PORCH W/STEPS | 3 | 0 | 2023 | 120.1 |
Sketch
| No sketches available for this property. |
Property Image
Land
| 1 | 15 | SQ (12001-21780) | 0.3600 | 15681.60 | 0.00 | 0.00 | 1.00 | $190,000 | $0 |
Roll Value History
| 2026 | N/A | N/A | N/A | N/A | N/A |
| 2025 | $331,123 | $190,000 | $0 | $521,123 | $521,123 |
| 2024 | $336,805 | $180,000 | $0 | $516,805 | $516,805 |
| 2023 | $343,678 | $175,000 | $0 | $518,678 | $518,678 |
| 2022 | $0 | $45,000 | $0 | $45,000 | $45,000 |
| 2021 | $0 | $30,000 | $0 | $30,000 | $30,000 |
| 2020 | $0 | $7,000 | $0 | $7,000 | $7,000 |
| 2019 | $0 | $5,000 | $0 | $5,000 | $5,000 |
| 2018 | $0 | $5,000 | $0 | $5,000 | $5,000 |
| 2017 | $0 | $5,000 | $0 | $5,000 | $5,000 |
| 2016 | $0 | $5,000 | $0 | $5,000 | $5,000 |
| 2015 | $0 | $5,000 | $0 | $5,000 | $5,000 |
| 2014 | $0 | $5,000 | $0 | $5,000 | $5,000 |
| 2013 | $0 | $5,000 | $0 | $5,000 | $5,000 |
| 2012 | $0 | $4,000 | $0 | $4,000 | $4,000 |
| 2011 | $0 | $3,600 | $0 | $3,600 | $3,600 |
| 2010 | $0 | $3,600 | $0 | $3,600 | $3,600 |
| 2009 | $0 | $5,400 | $0 | $5,400 | $5,400 |
| 2008 | $0 | $6,080 | $0 | $6,080 | $6,080 |
| 2007 | $0 | $4,000 | $0 | $4,000 | $4,000 |
Deed and Sales History
| 1 | 12/13/2023 | WD | Warranty Deed | WALDRON CONSTRUCTION, INC. | ADAMS, MARK P | | | $535,000.00 | 58784 | 4567756 |
| 2 | 06/07/2021 | WD | Warranty Deed | BON AIR COMMUNITY, INC | WALDRON CONSTRUCTION, INC. | | | $38,000.00 | 48694 | 4521945 |
| 3 | 03/08/2021 | QCD | Quit Claim Deed | MCCOLLUM, WILLIAM | BON AIR COMMUNITY CLUB | | | $7,000.00 | 47537 | 4514938 |
| 4 | 09/30/2005 | WD | Warranty Deed | NEAL, EDDY W | MCCOLLUM, WILLIAM | | | $3,000.00 | 55131 | 4150355 |
| 5 | 09/01/1995 | WD | Warranty Deed | MYERS, JEAN K | NEAL, EDDY W | | | $2,500.00 | 53356 | 95015497 |
| 6 | 05/01/1995 | TRUSTEED | Trustee's Deed | CRAIG, JANE B | MYERS, JEAN K | | | $0.00 | 51552 | 95007318 |
| 7 | 01/01/1900 | OTHER | Other - Misc. Documents | Unknown | CRAIG, JANE B | | | $0.00 | 0 | 0 |
Payout Agreement
| No payout information available.. |