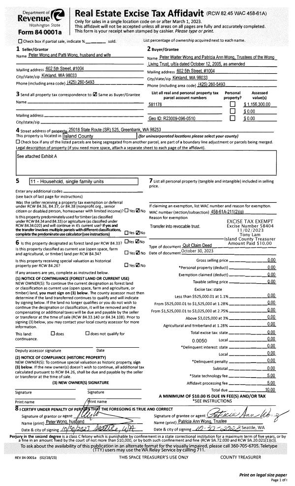
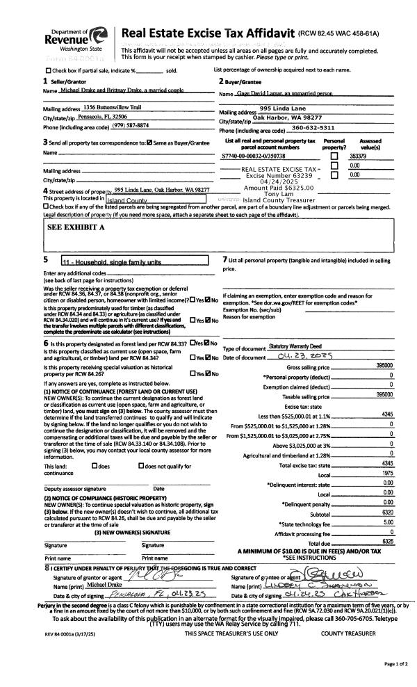
Property
Account |
| Property ID: | 195130 | Abbreviated Legal Description: | BON AIR 3 LOT 19 BLK 10 |
| Geographic ID: | S6140-03-10019-0 | Agent Code: | |
| Type: | Real | | |
| Tax Area: | 310 - APPRAISER-Cpvl Schl Dist, outside Cpvl, improved & 1 acre or less | Land Use Code | 11 |
| Open Space: | N | DFL | N |
| Historic Property: | N | Remodel Property: | N |
| Multi-Family Redevelopment: | N | | |
| Township: | | Section: | |
| Range: | |
Location |
| Address: | 2017 VIRGINIA AVE COUPEVILLE, WA 98239 | Mapsco: | |
| Neighborhood: | Cycle 2 | Map ID: | 528 |
| Neighborhood CD: | 2 |
Owner |
| Name: | MARTINEZ, RACHEL L | Owner ID: | 307746 |
| Mailing Address: | ERIK ANDERSEN 2017 VIRGINIA AVE COUPEVILLE, WA 98239 | % Ownership: | 100.0000000000% |
| | | Exemptions: | |
Taxes and Assessment Details
Values
| (+) Improvement Homesite Value: | + | $0 | |
| (+) Improvement Non-Homesite Value: | + | $140,687 | |
| (+) Land Homesite Value: | + | $0 | |
| (+) Land Non-Homesite Value: | + | $190,000 | |
| (+) Curr Use (HS): | + | $0 | $0 |
| (+) Curr Use (NHS): | + | $0 | $0 |
| | | -------------------------- | |
| (=) Market Value: | = | $330,687 | |
| (–) Productivity Loss: | – | $0 | |
| | | -------------------------- | |
| (=) Subtotal: | = | $330,687 | |
| (+) Senior Appraised Value: | + | $0 | |
| (+) Non-Senior Appraised Value: | + | $330,687 | |
| | | -------------------------- | |
| (=) Total Appraised Value: | = | $330,687 | |
| (–) Senior Exemption Loss: | – | $0 | |
| (–) Exemption Loss: | – | $0 | |
| | | -------------------------- | |
| (=) Taxable Value: | = | $330,687 | |
Taxing Jurisdiction
| Owner: | MARTINEZ, RACHEL L | | |
| % Ownership: | 100.0000000000% | | |
| Total Value: | $330,687 | | |
| Tax Area: | 310 - APPRAISER-Cpvl Schl Dist, outside Cpvl, improved & 1 acre or less |
| CF | Conservation Futures | 0.0316035091 | $330,687 | $330,687 | $10.45 | | |
| CEM2 | Cemetery #2 | 0.0095056933 | $330,687 | $330,687 | $3.14 | | |
| FIRE5 | Fire & Rescue Dist #5 C Whidbey GEN | 1.2008080668 | $330,687 | $330,687 | $397.09 | | |
| FIRE5BOND | Fire & Rescue Dist #5 C Whidbey BOND | 0.1400090713 | $330,687 | $330,687 | $46.30 | | |
| HOBOND | Hospital BOND | 0.1910887512 | $330,687 | $330,687 | $63.19 | | |
| HOGEN | Hospital GEN | 0.3902502903 | $330,687 | $330,687 | $129.05 | | |
| CE | County Current Expense | 0.3708482477 | $330,687 | $330,687 | $122.63 | | |
| CR | County Roads | 0.4584763726 | $330,687 | $330,687 | $151.61 | | |
| ISLANDEMS | Hospital GEN (EMS) | 0.5000000000 | $330,687 | $330,687 | $165.34 | | |
| LIB | Library Sno-Isle GEN | 0.3153421757 | $330,687 | $330,687 | $104.28 | | |
| LIBCAP | Library Sno-Isle BOND (Cap Fac Imp Area) | 0.0543427938 | $330,687 | $330,687 | $17.97 | | |
| POCOUP | Port of Coupeville GEN | 0.1093371703 | $330,687 | $330,687 | $36.16 | | |
| POCOUPIDD | Port of Coupeville IDD | 0.3409740022 | $330,687 | $330,687 | $112.76 | | |
| COUPSDTECH | School 204 CP (TECH) | 0.7545480007 | $330,687 | $330,687 | $249.52 | | |
| SCH204MO | School 204 Enrichment | 0.6716186034 | $330,687 | $330,687 | $222.10 | | |
| ST | State School | 1.3035497053 | $330,687 | $330,687 | $431.07 | | |
| ST2 | State School Part 2 | 0.8169543533 | $330,687 | $330,687 | $270.16 | | |
| | Total Tax Rate: | 7.6592568070 | | | | | |
| | | | | Taxes w/Current Exemptions: | $2,532.82 | | |
| | | | | Taxes w/o Exemptions: | $2,532.82 | | |
Improvement / Building
| Improvement #1: | MANUFACTURED HOME | State Code: | Y | 1296.0 sqft | Value: | $140,687 |
| Bathrooms: | 2 | Bedrooms: | 2 | | Ceiling: | PLASTER PAINTED | Cooling: | EVAP NO DUCT | | Exterior Wall/Cover: | VINYL | Floor Covering: | CARPET 100% | | Floor Structure: | SLAB ON GRADE | Foundation: | SLAB | | Heating: | FHA ELECTRIC | Interior Finish: | PLASTER | | Plumbing Fixture Cnt: | 1 | Roof Slope: | FLAT | | Roof Structure/Cover: | CJ ALUMINIUM HEAVY |   |   |
|
Sketch
Property Image
Land
| 1 | 13 | SQ (06001-08000) | 0.1700 | 7405.20 | 0.00 | 0.00 | 1.00 | $190,000 | $0 |
Roll Value History
| 2026 | N/A | N/A | N/A | N/A | N/A |
| 2025 | $140,687 | $190,000 | $0 | $330,687 | $330,687 |
| 2024 | $142,122 | $180,000 | $0 | $322,122 | $322,122 |
| 2023 | $123,583 | $175,000 | $0 | $298,583 | $298,583 |
| 2022 | $10,000 | $45,000 | $0 | $55,000 | $55,000 |
| 2021 | $0 | $30,000 | $0 | $30,000 | $30,000 |
| 2020 | $0 | $30,000 | $0 | $30,000 | $30,000 |
| 2019 | $0 | $30,000 | $0 | $30,000 | $30,000 |
| 2018 | $0 | $30,000 | $0 | $30,000 | $30,000 |
| 2017 | $0 | $30,000 | $0 | $30,000 | $30,000 |
| 2016 | $0 | $30,000 | $0 | $30,000 | $30,000 |
| 2015 | $0 | $30,000 | $0 | $30,000 | $30,000 |
| 2014 | $0 | $30,000 | $0 | $30,000 | $30,000 |
| 2013 | $0 | $30,000 | $0 | $30,000 | $30,000 |
| 2012 | $0 | $30,000 | $0 | $30,000 | $30,000 |
| 2011 | $0 | $30,000 | $0 | $30,000 | $30,000 |
| 2010 | $0 | $30,000 | $0 | $30,000 | $30,000 |
| 2009 | $0 | $45,000 | $0 | $45,000 | $45,000 |
| 2008 | $0 | $38,000 | $0 | $38,000 | $38,000 |
| 2007 | $0 | $40,000 | $0 | $40,000 | $40,000 |
Deed and Sales History
| 1 | 01/13/2023 | WD | Warranty Deed | HENLEY WA 12 LLC | MARTINEZ, RACHEL L | | | $330,000.00 | 55931 | 4557060 |
| 2 | 10/11/2021 | WD | Warranty Deed | SOCHA, RICHARD | HENLEY WA 12 LLC | | | $72,000.00 | 50435 | 4531285 |
| 3 | 06/08/2007 | WD | Warranty Deed | SOUSHEK, ROBERT L | SOCHA, RICHARD | | | $40,000.00 | 72139 | 4205653 |
| 4 | 11/01/1973 | OTHER | Other - Misc. Documents | Unknown | SOUSHEK, ROBERT L | | | $0.00 | 0 | 267439 |
Payout Agreement
| No payout information available.. |