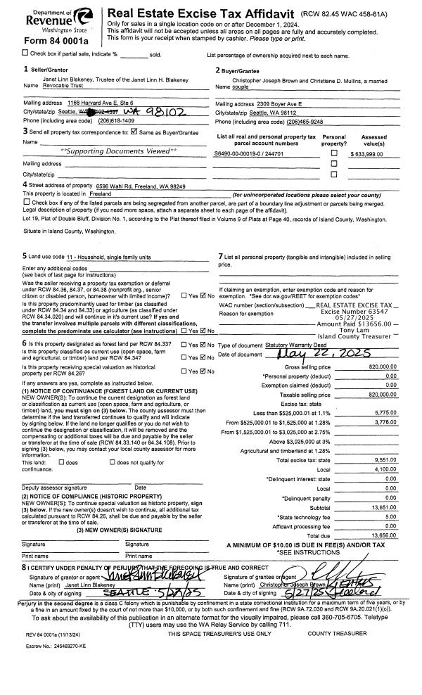
Property
Account |
| Property ID: | 195210 | Abbreviated Legal Description: | LOT 6 BLK 11 BON AIR 4 |
| Geographic ID: | S6140-04-11006-0 | Agent Code: | |
| Type: | Real | | |
| Tax Area: | 310 - APPRAISER-Cpvl Schl Dist, outside Cpvl, improved & 1 acre or less | Land Use Code | 11 |
| Open Space: | N | DFL | N |
| Historic Property: | N | Remodel Property: | N |
| Multi-Family Redevelopment: | N | | |
| Township: | | Section: | |
| Range: | |
Location |
| Address: | 1974 BANJO DR COUPEVILLE, WA 98239 | Mapsco: | |
| Neighborhood: | Cycle 2 | Map ID: | 521 |
| Neighborhood CD: | 2 |
Owner |
| Name: | STEVENS, DEREK K | Owner ID: | 260926 |
| Mailing Address: | 1974 BANJO DR COUPEVILLE, WA 98239 | % Ownership: | 100.0000000000% |
| | | Exemptions: | |
Taxes and Assessment Details
Values
| (+) Improvement Homesite Value: | + | $0 | |
| (+) Improvement Non-Homesite Value: | + | $299,636 | |
| (+) Land Homesite Value: | + | $0 | |
| (+) Land Non-Homesite Value: | + | $190,000 | |
| (+) Curr Use (HS): | + | $0 | $0 |
| (+) Curr Use (NHS): | + | $0 | $0 |
| | | -------------------------- | |
| (=) Market Value: | = | $489,636 | |
| (–) Productivity Loss: | – | $0 | |
| | | -------------------------- | |
| (=) Subtotal: | = | $489,636 | |
| (+) Senior Appraised Value: | + | $0 | |
| (+) Non-Senior Appraised Value: | + | $489,636 | |
| | | -------------------------- | |
| (=) Total Appraised Value: | = | $489,636 | |
| (–) Senior Exemption Loss: | – | $0 | |
| (–) Exemption Loss: | – | $0 | |
| | | -------------------------- | |
| (=) Taxable Value: | = | $489,636 | |
Taxing Jurisdiction
| Owner: | STEVENS, DEREK K | | |
| % Ownership: | 100.0000000000% | | |
| Total Value: | $489,636 | | |
| Tax Area: | 310 - APPRAISER-Cpvl Schl Dist, outside Cpvl, improved & 1 acre or less |
| CF | Conservation Futures | 0.0316035091 | $489,636 | $489,636 | $15.47 | | |
| CEM2 | Cemetery #2 | 0.0095056933 | $489,636 | $489,636 | $4.65 | | |
| FIRE5 | Fire & Rescue Dist #5 C Whidbey GEN | 1.2008080668 | $489,636 | $489,636 | $587.96 | | |
| FIRE5BOND | Fire & Rescue Dist #5 C Whidbey BOND | 0.1400090713 | $489,636 | $489,636 | $68.55 | | |
| HOBOND | Hospital BOND | 0.1910887512 | $489,636 | $489,636 | $93.56 | | |
| HOGEN | Hospital GEN | 0.3902502903 | $489,636 | $489,636 | $191.08 | | |
| CE | County Current Expense | 0.3708482477 | $489,636 | $489,636 | $181.58 | | |
| CR | County Roads | 0.4584763726 | $489,636 | $489,636 | $224.49 | | |
| ISLANDEMS | Hospital GEN (EMS) | 0.5000000000 | $489,636 | $489,636 | $244.82 | | |
| LIB | Library Sno-Isle GEN | 0.3153421757 | $489,636 | $489,636 | $154.40 | | |
| LIBCAP | Library Sno-Isle BOND (Cap Fac Imp Area) | 0.0543427938 | $489,636 | $489,636 | $26.61 | | |
| POCOUP | Port of Coupeville GEN | 0.1093371703 | $489,636 | $489,636 | $53.54 | | |
| POCOUPIDD | Port of Coupeville IDD | 0.3409740022 | $489,636 | $489,636 | $166.95 | | |
| COUPSDTECH | School 204 CP (TECH) | 0.7545480007 | $489,636 | $489,636 | $369.45 | | |
| SCH204MO | School 204 Enrichment | 0.6716186034 | $489,636 | $489,636 | $328.85 | | |
| ST | State School | 1.3035497053 | $489,636 | $489,636 | $638.26 | | |
| ST2 | State School Part 2 | 0.8169543533 | $489,636 | $489,636 | $400.01 | | |
| | Total Tax Rate: | 7.6592568070 | | | | | |
| | | | | Taxes w/Current Exemptions: | $3,750.23 | | |
| | | | | Taxes w/o Exemptions: | $3,750.23 | | |
Improvement / Building
| Improvement #1: | RESIDENTIAL | State Code: | Y | 1460.7 sqft | Value: | $299,636 |
| Bathrooms: | 2 | Bedrooms: | 3 | | Ceiling: | DRYWALL PAINTED | Exterior Wall/Cover: | VINYL | | Floor Covering: | CERAMIC TILE/CPT 40-60 | Floor Structure: | WOOD W/SUBFLOOR | | Foundation: | CONCRETE | Heating: | FHA ELECTRIC | | Interior Finish: | DRYWALL PAINT | Plumbing Fixture Cnt: | 12 | | Roof Slope: | 6" IN 12" | Roof Structure/Cover: | CJ ASPHALT |
|
| | Type | Description | Class CD | Sub Class CD | Year Built | Area |
| | BAS | BASE/MAIN FLOOR | 3 | 0 | 2009 | 1460.7 |
| | AGR | ATTACHED GARAGE | 3 | 0 | 2009 | 399.0 |
| | OP3 | OPEN PORCH W/ROOF | 3 | 0 | 2009 | 37.5 |
Sketch
Property Image
Land
| 1 | 13 | SQ (06001-08000) | 0.1700 | 7405.20 | 0.00 | 0.00 | 1.00 | $190,000 | $0 |
Roll Value History
| 2026 | N/A | N/A | N/A | N/A | N/A |
| 2025 | $299,636 | $190,000 | $0 | $489,636 | $489,636 |
| 2024 | $292,769 | $180,000 | $0 | $472,769 | $472,769 |
| 2023 | $296,202 | $175,000 | $0 | $471,202 | $471,202 |
| 2022 | $271,332 | $150,000 | $0 | $421,332 | $421,332 |
| 2021 | $238,639 | $100,000 | $0 | $338,639 | $338,639 |
| 2020 | $231,921 | $85,000 | $0 | $316,921 | $316,921 |
| 2019 | $166,040 | $130,000 | $0 | $296,040 | $296,040 |
| 2018 | $153,221 | $130,000 | $0 | $283,221 | $283,221 |
| 2017 | $154,068 | $100,000 | $0 | $254,068 | $254,068 |
| 2016 | $155,762 | $75,000 | $0 | $230,762 | $230,762 |
| 2015 | $157,455 | $50,000 | $0 | $207,455 | $207,455 |
| 2014 | $159,148 | $50,000 | $0 | $209,148 | $209,148 |
| 2013 | $160,840 | $50,000 | $0 | $210,840 | $210,840 |
| 2012 | $122,834 | $57,000 | $0 | $179,834 | $179,834 |
| 2011 | $124,114 | $60,000 | $0 | $184,114 | $184,114 |
| 2010 | $115,944 | $35,000 | $0 | $150,944 | $150,944 |
| 2009 | $15,399 | $65,000 | $0 | $80,399 | $80,399 |
| 2008 | $0 | $6,080 | $0 | $6,080 | $6,080 |
| 2007 | $0 | $4,000 | $0 | $4,000 | $4,000 |
Deed and Sales History
| 1 | 12/10/2012 | DECREE | Divorce Decree/Legal Separation | STEVENS, DEREK K | STEVENS, DEREK K | | | $0.00 | 10448 | 4333788 |
| 2 | 09/30/2009 | WD | Warranty Deed | OMEGA HOME CONSTRUCTION LLC, | STEVENS, DEREK K | | | $227,500.00 | 92390 | 4261547 |
| 3 | 06/23/2009 | WD | Warranty Deed | BINGHAM, R LARRY | OMEGA HOME CONSTRUCTION LLC, | | | $25,000.00 | 91394 | 4254628 |
| 4 | 12/13/2004 | QCD | Quit Claim Deed | VAIL, IVAN R | BINGHAM, R LARRY | | | $3,500.00 | 50348 | 4124287 |
| 5 | 10/01/1985 | DECREE | Divorce Decree/Legal Separation | VAIL, IVAN R | VAIL, IVAN R | | | $0.00 | 53336 | 85013182 |
| 6 | 01/01/1900 | OTHER | Other - Misc. Documents | Unknown | VAIL, IVAN R | | | $0.00 | 0 | 0 |
Payout Agreement
| No payout information available.. |