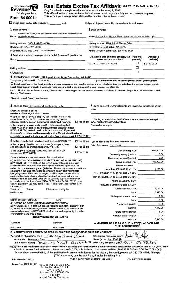
Property
Account |
| Property ID: | 195238 | Abbreviated Legal Description: | BON AIR #4 LOT 9 BLK 11 |
| Geographic ID: | S6140-04-11009-0 | Agent Code: | |
| Type: | Real | | |
| Tax Area: | 310 - APPRAISER-Cpvl Schl Dist, outside Cpvl, improved & 1 acre or less | Land Use Code | 11 |
| Open Space: | N | DFL | N |
| Historic Property: | N | Remodel Property: | N |
| Multi-Family Redevelopment: | N | | |
| Township: | | Section: | |
| Range: | |
Location |
| Address: | 1954 BANJO DR COUPEVILLE, WA 98239 | Mapsco: | |
| Neighborhood: | Cycle 2 | Map ID: | 521 |
| Neighborhood CD: | 2 |
Owner |
| Name: | MARTIN, NANCY DELPRAT | Owner ID: | 310353 |
| Mailing Address: | 6021 178TH ST SW LYNNWOOD, WA 98037 | % Ownership: | 100.0000000000% |
| | | Exemptions: | |
Taxes and Assessment Details
Values
| (+) Improvement Homesite Value: | + | $0 | |
| (+) Improvement Non-Homesite Value: | + | $232,575 | |
| (+) Land Homesite Value: | + | $0 | |
| (+) Land Non-Homesite Value: | + | $190,000 | |
| (+) Curr Use (HS): | + | $0 | $0 |
| (+) Curr Use (NHS): | + | $0 | $0 |
| | | -------------------------- | |
| (=) Market Value: | = | $422,575 | |
| (–) Productivity Loss: | – | $0 | |
| | | -------------------------- | |
| (=) Subtotal: | = | $422,575 | |
| (+) Senior Appraised Value: | + | $0 | |
| (+) Non-Senior Appraised Value: | + | $422,575 | |
| | | -------------------------- | |
| (=) Total Appraised Value: | = | $422,575 | |
| (–) Senior Exemption Loss: | – | $0 | |
| (–) Exemption Loss: | – | $0 | |
| | | -------------------------- | |
| (=) Taxable Value: | = | $422,575 | |
Taxing Jurisdiction
| Owner: | MARTIN, NANCY DELPRAT | | |
| % Ownership: | 100.0000000000% | | |
| Total Value: | $422,575 | | |
| Tax Area: | 310 - APPRAISER-Cpvl Schl Dist, outside Cpvl, improved & 1 acre or less |
| CF | Conservation Futures | 0.0316035091 | $422,575 | $422,575 | $13.35 | | |
| CEM2 | Cemetery #2 | 0.0095056933 | $422,575 | $422,575 | $4.02 | | |
| FIRE5 | Fire & Rescue Dist #5 C Whidbey GEN | 1.2008080668 | $422,575 | $422,575 | $507.43 | | |
| FIRE5BOND | Fire & Rescue Dist #5 C Whidbey BOND | 0.1400090713 | $422,575 | $422,575 | $59.16 | | |
| HOBOND | Hospital BOND | 0.1910887512 | $422,575 | $422,575 | $80.75 | | |
| HOGEN | Hospital GEN | 0.3902502903 | $422,575 | $422,575 | $164.91 | | |
| CE | County Current Expense | 0.3708482477 | $422,575 | $422,575 | $156.71 | | |
| CR | County Roads | 0.4584763726 | $422,575 | $422,575 | $193.74 | | |
| ISLANDEMS | Hospital GEN (EMS) | 0.5000000000 | $422,575 | $422,575 | $211.29 | | |
| LIB | Library Sno-Isle GEN | 0.3153421757 | $422,575 | $422,575 | $133.26 | | |
| LIBCAP | Library Sno-Isle BOND (Cap Fac Imp Area) | 0.0543427938 | $422,575 | $422,575 | $22.96 | | |
| POCOUP | Port of Coupeville GEN | 0.1093371703 | $422,575 | $422,575 | $46.20 | | |
| POCOUPIDD | Port of Coupeville IDD | 0.3409740022 | $422,575 | $422,575 | $144.09 | | |
| COUPSDTECH | School 204 CP (TECH) | 0.7545480007 | $422,575 | $422,575 | $318.85 | | |
| SCH204MO | School 204 Enrichment | 0.6716186034 | $422,575 | $422,575 | $283.81 | | |
| ST | State School | 1.3035497053 | $422,575 | $422,575 | $550.85 | | |
| ST2 | State School Part 2 | 0.8169543533 | $422,575 | $422,575 | $345.22 | | |
| | Total Tax Rate: | 7.6592568070 | | | | | |
| | | | | Taxes w/Current Exemptions: | $3,236.60 | | |
| | | | | Taxes w/o Exemptions: | $3,236.60 | | |
Improvement / Building
| Improvement #1: | RESIDENTIAL | State Code: | Y | 1312.8 sqft | Value: | $232,575 |
| Bathrooms: | 2 | Bedrooms: | 2 | | Ceiling: | DRYWALL PAINTED | Cooling: | HEAT PUMP/CONV/V | | Exterior Wall/Cover: | CEMENT FIBER | Floor Covering: | CARPET/VINYL 80-20 | | Floor Structure: | WOOD W/SUBFLOOR | Foundation: | CONCRETE | | Interior Finish: | DRYWALL PAINT | Plumbing Fixture Cnt: | 9 | | Roof Slope: | 4" IN 12" | Roof Structure/Cover: | CJ ASPHALT |
|
| | Type | Description | Class CD | Sub Class CD | Year Built | Area |
| | BAS | BASE/MAIN FLOOR | 3 | 0 | 2002 | 1312.8 |
| | OP2 | OPEN PORCH W/STEPS | 3 | 0 | 2002 | 45.6 |
| | AGR | ATTACHED GARAGE | 3 | 0 | 2002 | 293.8 |
| | OWR | OPEN WOOD PORCH W/STEPS/ROOF | 3 | 0 | 2002 | 128.4 |
Sketch
Property Image
Land
| 1 | 13 | SQ (06001-08000) | 0.1700 | 7405.20 | 0.00 | 0.00 | 1.00 | $190,000 | $0 |
Roll Value History
| 2026 | N/A | N/A | N/A | N/A | N/A |
| 2025 | $232,575 | $190,000 | $0 | $422,575 | $422,575 |
| 2024 | $227,053 | $180,000 | $0 | $407,053 | $407,053 |
| 2023 | $229,813 | $175,000 | $0 | $404,813 | $404,813 |
| 2022 | $210,601 | $150,000 | $0 | $360,601 | $360,601 |
| 2021 | $185,303 | $100,000 | $0 | $285,303 | $285,303 |
| 2020 | $180,300 | $85,000 | $0 | $265,300 | $265,300 |
| 2019 | $127,871 | $130,000 | $0 | $257,871 | $257,871 |
| 2018 | $122,376 | $130,000 | $0 | $252,376 | $252,376 |
| 2017 | $123,108 | $100,000 | $0 | $223,108 | $223,108 |
| 2016 | $123,076 | $75,000 | $0 | $198,076 | $198,076 |
| 2015 | $124,525 | $50,000 | $0 | $174,525 | $174,525 |
| 2014 | $125,971 | $50,000 | $0 | $175,971 | $175,971 |
| 2013 | $127,419 | $50,000 | $0 | $177,419 | $177,419 |
| 2012 | $136,154 | $57,000 | $0 | $193,154 | $193,154 |
| 2011 | $137,684 | $60,000 | $0 | $197,684 | $197,684 |
| 2010 | $140,245 | $35,000 | $0 | $175,245 | $175,245 |
| 2009 | $144,584 | $65,000 | $0 | $209,584 | $209,584 |
| 2008 | $146,143 | $76,000 | $0 | $222,143 | $222,143 |
| 2007 | $149,231 | $85,000 | $0 | $234,231 | $234,231 |
Deed and Sales History
| 1 | 10/11/2023 | WD | Warranty Deed | ELLIS TTEE, TERESA ANNETTE | MARTIN, NANCY DELPRAT | | | $426,000.00 | 58238 | 4565706 |
| 2 | 11/10/2022 | QCD | Quit Claim Deed | ELLIS, TERESA ANNETTE | ELLIS TTEE, TERESA ANNETTE | | | $0.00 | 55414 | 4554937 |
| 3 | 11/23/2022 | QCD | Quit Claim Deed | LASTER, TRANQUIL RAMONA | ELLIS, TERESA ANNETTE | | | $0.00 | 55413 | 4554929 |
| 4 | 02/08/2022 | QCD | Quit Claim Deed | LASTER, TRANQUIL RAMONA | ELLIS, TERESA ANNETTE | | | $0.00 | 51897 | 4539349 |
| 5 | 03/07/2017 | WD | Warranty Deed | MILLER, LANDEN K | LASTER, TRANQUIL RAMONA | | | $246,500.00 | 28323 | 4418366 |
| 6 | 10/04/2010 | WD | Warranty Deed | FEDERAL HOME LOAN MORTGAGE CORPORATION | MILLER, LANDEN K | | | $160,000.00 | 3406 | 4289049 |
| 7 | 11/03/2009 | TRUSTEED | Trustee's Deed | FORD, STEFANIE | FEDERAL HOME LOAN MORTGAGE COR | | | $140,338.00 | 92708 | 4263173 |
| 8 | 04/03/2008 | WD | Warranty Deed | FORD, STEFANIE | FORD, STEFANIE | | | $0.00 | 80830 | 4225509 |
| 9 | 08/06/2007 | WD | Warranty Deed | COOK, CHARLES A | FORD, STEFANIE | | | $225,500.00 | 72682 | 4209008 |
| 10 | 01/20/1999 | DECREE | Divorce Decree/Legal Separation | COOK, CHARLES A | COOK, CHARLES A | | | $0.00 | 90302 | 99001854 |
| 11 | 10/01/1995 | QCD | Quit Claim Deed | COOK, CHARLES A | COOK, CHARLES A | | | $0.00 | 53634 | 95016678 |
| 12 | 10/01/1995 | QCD | Quit Claim Deed | COOK, CHARLES A | COOK, CHARLES A | | | $0.00 | 53668 | 95016882 |
| 13 | 09/01/1995 | QCD | Quit Claim Deed | COOK, CHARLIE & | COOK, CHARLES A | | | $0.00 | 53512 | 95016090 |
| 14 | 03/01/1995 | QCD | Quit Claim Deed | COOK, CHARLIE A | COOK, CHARLIE & | | | $0.00 | 50968 | 95004685 |
| 15 | 10/01/1994 | WD | Warranty Deed | COOK, CHARLIE & | COOK, CHARLIE A | | | $0.00 | 44111 | 94021156 |
| 16 | 05/01/1993 | WD | Warranty Deed | STONE, EDWARD H | COOK, CHARLIE & | | | $4,700.00 | 31626 | 93008416 |
| 17 | 06/01/1983 | WD | Warranty Deed | BON, AIR C | STONE, EDWARD H | | | $2,000.00 | 31473 | 410380 |
| 18 | 12/01/1978 | OTHER | Other - Misc. Documents | Unknown | BON, AIR C | | | $0.00 | 90536 | 347007 |
Payout Agreement
| No payout information available.. |