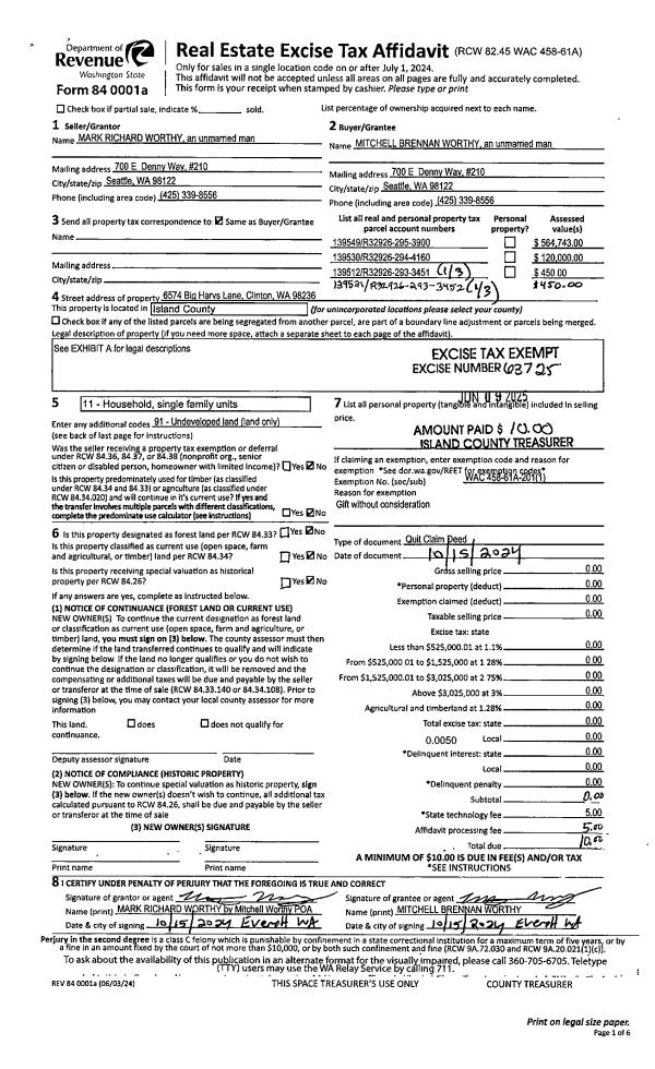
Property
Account |
| Property ID: | 195318 | Abbreviated Legal Description: | BON AIR 4 LOTS 18 & 19 BLK 11 |
| Geographic ID: | S6140-04-11018-0 | Agent Code: | |
| Type: | Real | | |
| Tax Area: | 310 - APPRAISER-Cpvl Schl Dist, outside Cpvl, improved & 1 acre or less | Land Use Code | 11 |
| Open Space: | N | DFL | N |
| Historic Property: | N | Remodel Property: | N |
| Multi-Family Redevelopment: | N | | |
| Township: | | Section: | |
| Range: | |
Location |
| Address: | 1914 BANJO DR COUPEVILLE, WA 98239 | Mapsco: | |
| Neighborhood: | Cycle 2 | Map ID: | 521 |
| Neighborhood CD: | 2 |
Owner |
| Name: | MILLER, BERNIECE | Owner ID: | 277722 |
| Mailing Address: | 1914 BANJO DR COUPEVILLE, WA 98239 | % Ownership: | 100.0000000000% |
| | | Exemptions: | SNR/DSBL |
Taxes and Assessment Details
Values
| (+) Improvement Homesite Value: | + | $170,126 | |
| (+) Improvement Non-Homesite Value: | + | $0 | |
| (+) Land Homesite Value: | + | $190,000 | |
| (+) Land Non-Homesite Value: | + | $0 | |
| (+) Curr Use (HS): | + | $0 | $0 |
| (+) Curr Use (NHS): | + | $0 | $0 |
| | | -------------------------- | |
| (=) Market Value: | = | $360,126 | |
| (–) Productivity Loss: | – | $0 | |
| | | -------------------------- | |
| (=) Subtotal: | = | $360,126 | |
| (+) Senior Appraised Value: | + | $160,073 | |
| (+) Non-Senior Appraised Value: | + | $0 | |
| | | -------------------------- | |
| (=) Total Appraised Value: | = | $160,073 | |
| (–) Senior Exemption Loss: | – | $96,044 | |
| (–) Exemption Loss: | – | $0 | |
| | | -------------------------- | |
| (=) Taxable Value: | = | $64,029 | |
Taxing Jurisdiction
| Owner: | MILLER, BERNIECE | | |
| % Ownership: | 100.0000000000% | | |
| Total Value: | $360,126 | | |
| Tax Area: | 310 - APPRAISER-Cpvl Schl Dist, outside Cpvl, improved & 1 acre or less |
| CF | Conservation Futures | 0.0316035091 | $360,126 | $64,029 | $2.02 | | |
| CEM2 | Cemetery #2 | 0.0095056933 | $360,126 | $64,029 | $0.61 | | |
| FIRE5 | Fire & Rescue Dist #5 C Whidbey GEN | 1.2008080668 | $360,126 | $64,029 | $76.89 | | |
| FIRE5BOND | Fire & Rescue Dist #5 C Whidbey BOND | 0.0000000000 | $360,126 | $0 | $0.00 | | |
| HOBOND | Hospital BOND | 0.0000000000 | $360,126 | $0 | $0.00 | | |
| HOGEN | Hospital GEN | 0.3902502903 | $360,126 | $64,029 | $24.99 | | |
| CE | County Current Expense | 0.3708482477 | $360,126 | $64,029 | $23.75 | | |
| CR | County Roads | 0.4584763726 | $360,126 | $64,029 | $29.36 | | |
| ISLANDEMS | Hospital GEN (EMS) | 0.5000000000 | $360,126 | $64,029 | $32.01 | | |
| LIB | Library Sno-Isle GEN | 0.3153421757 | $360,126 | $64,029 | $20.19 | | |
| LIBCAP | Library Sno-Isle BOND (Cap Fac Imp Area) | 0.0000000000 | $360,126 | $0 | $0.00 | | |
| POCOUP | Port of Coupeville GEN | 0.1093371703 | $360,126 | $64,029 | $7.00 | | |
| POCOUPIDD | Port of Coupeville IDD | 0.3409740022 | $360,126 | $64,029 | $21.83 | | |
| COUPSDTECH | School 204 CP (TECH) | 0.0000000000 | $360,126 | $0 | $0.00 | | |
| SCH204MO | School 204 Enrichment | 0.0000000000 | $360,126 | $0 | $0.00 | | |
| ST | State School | 1.3035497053 | $360,126 | $64,029 | $83.46 | | |
| ST2 | State School Part 2 | 0.0000000000 | $360,126 | $0 | $0.00 | | |
| | Total Tax Rate: | 5.0306952333 | | | | | |
| | | | | Taxes w/Current Exemptions: | $322.11 | | |
| | | | | Taxes w/o Exemptions: | $2,758.29 | | |
Improvement / Building
| Improvement #1: | RESIDENTIAL | State Code: | Y | 1092.0 sqft | Value: | $170,126 |
| Bathrooms: | 1 | Bedrooms: | 2 | | Ceiling: | DRY WALL SPRAYED | Exterior Wall/Cover: | VINYL | | Floor Covering: | CARPET/VINYL 80-20 | Floor Structure: | WOOD W/SUBFLOOR | | Foundation: | CONCRETE BLOCKS | Heating: | (NONE) | | Interior Finish: | DRYWALL PAINT | Plumbing Fixture Cnt: | 6 | | Roof Slope: | 6" IN 12" | Roof Structure/Cover: | CJ ASPHALT |
|
| | Type | Description | Class CD | Sub Class CD | Year Built | Area |
| | BAS | BASE/MAIN FLOOR | 3 | 0 | 1966 | 1092.0 |
| | OWP | OPEN WOOD PORCH W/STEPS | 3 | 0 | 1966 | 72.0 |
| | AGR | ATTACHED GARAGE | 3 | 0 | 1966 | 286.0 |
| | UTY | STORAGE/UTILITY | 3 | 0 | 1966 | 480.0 |
Sketch
| No sketches available for this property. |
Property Image
Land
| 1 | 15 | SQ (12001-21780) | 0.3300 | 14374.80 | 0.00 | 0.00 | 1.00 | $190,000 | $0 |
Roll Value History
| 2026 | N/A | N/A | N/A | N/A | N/A |
| 2025 | $170,126 | $190,000 | $0 | $360,126 | $64,029 |
| 2024 | $164,317 | $180,000 | $0 | $344,317 | $64,029 |
| 2023 | $166,522 | $175,000 | $0 | $341,522 | $64,029 |
| 2022 | $153,252 | $150,000 | $0 | $303,252 | $104,047 |
| 2021 | $135,657 | $100,000 | $0 | $235,657 | $64,029 |
| 2020 | $132,501 | $85,000 | $0 | $217,501 | $64,029 |
| 2019 | $95,966 | $130,000 | $0 | $225,966 | $64,029 |
| 2018 | $83,308 | $130,000 | $0 | $213,308 | $64,029 |
| 2017 | $83,897 | $100,000 | $0 | $183,897 | $64,029 |
| 2016 | $85,073 | $75,000 | $0 | $160,073 | $64,029 |
| 2015 | $86,252 | $50,000 | $0 | $136,252 | $136,252 |
| 2014 | $87,429 | $50,000 | $0 | $137,429 | $137,429 |
| 2013 | $88,606 | $50,000 | $0 | $138,606 | $138,606 |
| 2012 | $82,366 | $57,000 | $0 | $139,366 | $139,366 |
| 2011 | $83,565 | $60,000 | $0 | $143,565 | $143,565 |
| 2010 | $90,554 | $60,000 | $0 | $150,554 | $150,554 |
| 2009 | $94,454 | $75,000 | $0 | $169,454 | $169,454 |
| 2008 | $96,044 | $80,100 | $0 | $176,144 | $176,144 |
| 2007 | $97,775 | $90,000 | $0 | $187,775 | $187,775 |
Deed and Sales History
| 1 | 12/02/2016 | PRD | Personal Representatives Deed | MILLER, DOUGLAS A | MILLER, BERNIECE | | | $0.00 | 27149 | 4412614 |
| 2 | 04/16/2001 | BLA | DNU - Boundary Line Adjustment | MILLER, DOUGLAS A | MILLER, DOUGLAS A | | | $0.00 | 69006 | 20013582 |
Payout Agreement
| No payout information available.. |