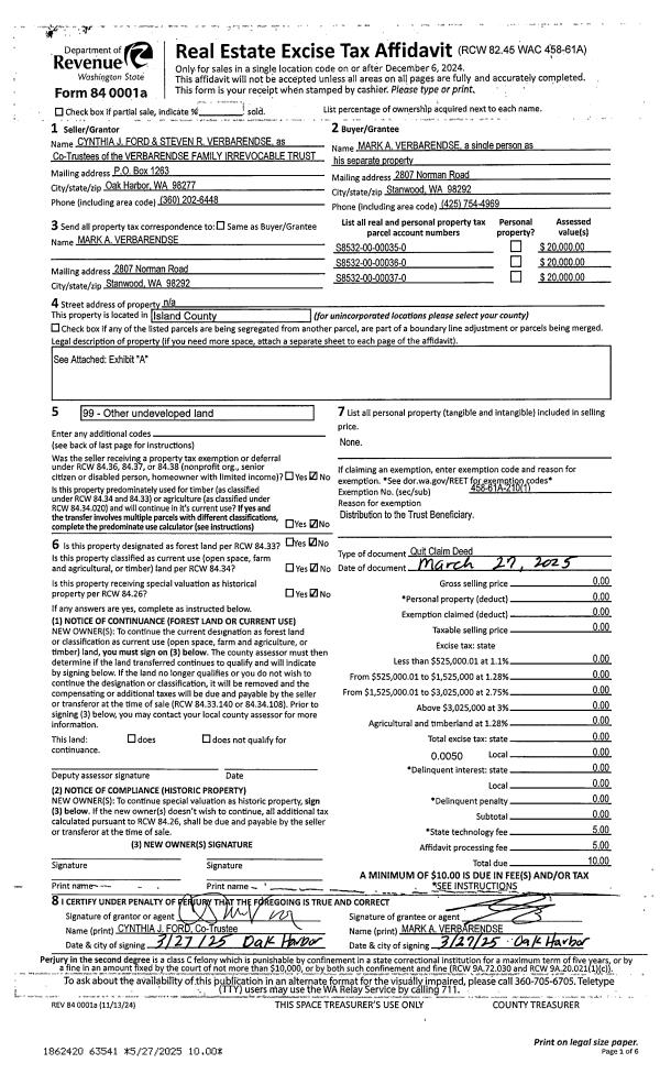
Property
Account |
| Property ID: | 195470 | Abbreviated Legal Description: | BON AIR 4 LOT 1 BLK 13 |
| Geographic ID: | S6140-04-13001-0 | Agent Code: | |
| Type: | Real | | |
| Tax Area: | 310 - APPRAISER-Cpvl Schl Dist, outside Cpvl, improved & 1 acre or less | Land Use Code | 11 |
| Open Space: | N | DFL | N |
| Historic Property: | N | Remodel Property: | N |
| Multi-Family Redevelopment: | N | | |
| Township: | | Section: | |
| Range: | |
Location |
| Address: | 395 SMITH ST COUPEVILLE, WA 98239 | Mapsco: | |
| Neighborhood: | Cycle 2 | Map ID: | 521 |
| Neighborhood CD: | 2 |
Owner |
| Name: | LYLE, BENJAMIN E | Owner ID: | 267282 |
| Mailing Address: | 395 SMITH ST COUPEVILLE, WA 98239-9627 | % Ownership: | 100.0000000000% |
| | | Exemptions: | |
Taxes and Assessment Details
Values
| (+) Improvement Homesite Value: | + | $0 | |
| (+) Improvement Non-Homesite Value: | + | $141,607 | |
| (+) Land Homesite Value: | + | $0 | |
| (+) Land Non-Homesite Value: | + | $190,000 | |
| (+) Curr Use (HS): | + | $0 | $0 |
| (+) Curr Use (NHS): | + | $0 | $0 |
| | | -------------------------- | |
| (=) Market Value: | = | $331,607 | |
| (–) Productivity Loss: | – | $0 | |
| | | -------------------------- | |
| (=) Subtotal: | = | $331,607 | |
| (+) Senior Appraised Value: | + | $0 | |
| (+) Non-Senior Appraised Value: | + | $331,607 | |
| | | -------------------------- | |
| (=) Total Appraised Value: | = | $331,607 | |
| (–) Senior Exemption Loss: | – | $0 | |
| (–) Exemption Loss: | – | $0 | |
| | | -------------------------- | |
| (=) Taxable Value: | = | $331,607 | |
Taxing Jurisdiction
| Owner: | LYLE, BENJAMIN E | | |
| % Ownership: | 100.0000000000% | | |
| Total Value: | $331,607 | | |
| Tax Area: | 310 - APPRAISER-Cpvl Schl Dist, outside Cpvl, improved & 1 acre or less |
| CF | Conservation Futures | 0.0316035091 | $331,607 | $331,607 | $10.48 | | |
| CEM2 | Cemetery #2 | 0.0095056933 | $331,607 | $331,607 | $3.15 | | |
| FIRE5 | Fire & Rescue Dist #5 C Whidbey GEN | 1.2008080668 | $331,607 | $331,607 | $398.20 | | |
| FIRE5BOND | Fire & Rescue Dist #5 C Whidbey BOND | 0.1400090713 | $331,607 | $331,607 | $46.43 | | |
| HOBOND | Hospital BOND | 0.1910887512 | $331,607 | $331,607 | $63.37 | | |
| HOGEN | Hospital GEN | 0.3902502903 | $331,607 | $331,607 | $129.41 | | |
| CE | County Current Expense | 0.3708482477 | $331,607 | $331,607 | $122.98 | | |
| CR | County Roads | 0.4584763726 | $331,607 | $331,607 | $152.03 | | |
| ISLANDEMS | Hospital GEN (EMS) | 0.5000000000 | $331,607 | $331,607 | $165.80 | | |
| LIB | Library Sno-Isle GEN | 0.3153421757 | $331,607 | $331,607 | $104.57 | | |
| LIBCAP | Library Sno-Isle BOND (Cap Fac Imp Area) | 0.0543427938 | $331,607 | $331,607 | $18.02 | | |
| POCOUP | Port of Coupeville GEN | 0.1093371703 | $331,607 | $331,607 | $36.26 | | |
| POCOUPIDD | Port of Coupeville IDD | 0.3409740022 | $331,607 | $331,607 | $113.07 | | |
| COUPSDTECH | School 204 CP (TECH) | 0.7545480007 | $331,607 | $331,607 | $250.21 | | |
| SCH204MO | School 204 Enrichment | 0.6716186034 | $331,607 | $331,607 | $222.71 | | |
| ST | State School | 1.3035497053 | $331,607 | $331,607 | $432.27 | | |
| ST2 | State School Part 2 | 0.8169543533 | $331,607 | $331,607 | $270.91 | | |
| | Total Tax Rate: | 7.6592568070 | | | | | |
| | | | | Taxes w/Current Exemptions: | $2,539.87 | | |
| | | | | Taxes w/o Exemptions: | $2,539.87 | | |
Improvement / Building
| Improvement #1: | RESIDENTIAL | State Code: | Y | 760.0 sqft | Value: | $141,607 |
| Bathrooms: | 1 | Bedrooms: | 2 | | Ceiling: | DRY WALL SPRAYED | Exterior Wall/Cover: | PLY/HARDBOARD T-111 | | Floor Covering: | CARPET/VINYL 80-20 | Floor Structure: | WOOD W/SUBFLOOR | | Foundation: | CONCRETE | Heating: | BASEBOARD ELECTRIC | | Interior Finish: | DRYWALL PAINT | Plumbing Fixture Cnt: | 6 | | Roof Slope: | 4" IN 12" | Roof Structure/Cover: | CJ ASPHALT |
|
| | Type | Description | Class CD | Sub Class CD | Year Built | Area |
| | BAS | BASE/MAIN FLOOR | 3 | 0 | 1968 | 760.0 |
| | OWP | OPEN WOOD PORCH W/STEPS | 3 | 0 | 1968 | 36.0 |
| | OWR | OPEN WOOD PORCH W/STEPS/ROOF | 3 | 0 | 1968 | 36.0 |
| | DGR | DETACHED GARAGE | 3 | 0 | 1968 | 540.0 |
Sketch
Property Image
Land
| 1 | 13 | SQ (06001-08000) | 0.1600 | 6969.60 | 0.00 | 0.00 | 1.00 | $190,000 | $0 |
Roll Value History
| 2026 | N/A | N/A | N/A | N/A | N/A |
| 2025 | $141,607 | $190,000 | $0 | $331,607 | $331,607 |
| 2024 | $146,556 | $180,000 | $0 | $326,556 | $326,556 |
| 2023 | $123,543 | $175,000 | $0 | $298,543 | $298,543 |
| 2022 | $113,394 | $150,000 | $0 | $263,394 | $263,394 |
| 2021 | $99,934 | $100,000 | $0 | $199,934 | $199,934 |
| 2020 | $97,244 | $85,000 | $0 | $182,244 | $182,244 |
| 2019 | $67,801 | $130,000 | $0 | $197,801 | $197,801 |
| 2018 | $50,466 | $130,000 | $0 | $180,466 | $180,466 |
| 2017 | $50,906 | $100,000 | $0 | $150,906 | $150,906 |
| 2016 | $51,783 | $75,000 | $0 | $126,783 | $126,783 |
| 2015 | $52,662 | $50,000 | $0 | $102,662 | $102,662 |
| 2014 | $53,539 | $50,000 | $0 | $103,539 | $103,539 |
| 2013 | $54,415 | $50,000 | $0 | $104,415 | $104,415 |
| 2012 | $51,676 | $57,000 | $0 | $108,676 | $108,676 |
| 2011 | $52,554 | $60,000 | $0 | $112,554 | $112,554 |
| 2010 | $57,566 | $35,000 | $0 | $92,566 | $92,566 |
| 2009 | $60,175 | $65,000 | $0 | $125,175 | $125,175 |
| 2008 | $61,060 | $76,000 | $0 | $137,060 | $137,060 |
| 2007 | $61,945 | $85,000 | $0 | $146,945 | $146,945 |
Deed and Sales History
| 1 | 07/16/2014 | WD | Warranty Deed | MORRIS III, GARNET G | LYLE, BENJAMIN E | | | $80,000.00 | 16136 | 4362844 |
| 2 | 06/16/2005 | PRD | Personal Representatives Deed | MORRIS, KENNETH | MORRIS III, GARNET G | | | $0.00 | 52793 | 4137685 |
| 3 | 07/01/1997 | WD | Warranty Deed | CALL, STRODE V | MORRIS, KENNETH | | | $71,000.00 | 72318 | 97010849 |
| 4 | 02/01/1993 | QCD | Quit Claim Deed | CALL, STRODE V | CALL, STRODE V | | | $0.00 | 30806 | 93004176 |
| 5 | 03/01/1990 | WD | Warranty Deed | COOK, WILLIAM E | CALL, STRODE V | | | $45,100.00 | 1301 | 90004163 |
| 6 | 03/01/1989 | QCD | Quit Claim Deed | ROBBS, BUCK H | COOK, WILLIAM E | | | $0.00 | 90917 | 89003215 |
| 7 | 03/01/1986 | WD | Warranty Deed | SMITH, IRA E | ROBBS, BUCK H | | | $28,000.00 | 60508 | 86002514 |
| 8 | 01/01/1900 | OTHER | Other - Misc. Documents | Unknown | SMITH, IRA E | | | $0.00 | 0 | 0 |
Payout Agreement
| No payout information available.. |