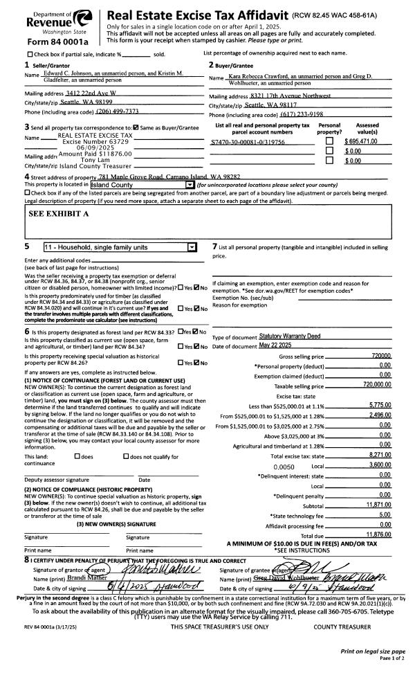
Property
Account |
| Property ID: | 195844 | Abbreviated Legal Description: | BON AIR 4 LOT 2 BLK 16 |
| Geographic ID: | S6140-04-16002-0 | Agent Code: | |
| Type: | Real | | |
| Tax Area: | 310 - APPRAISER-Cpvl Schl Dist, outside Cpvl, improved & 1 acre or less | Land Use Code | 11 |
| Open Space: | N | DFL | N |
| Historic Property: | N | Remodel Property: | N |
| Multi-Family Redevelopment: | N | | |
| Township: | | Section: | |
| Range: | |
Location |
| Address: | 369 HOCKER ST COUPEVILLE, WA 98239 | Mapsco: | |
| Neighborhood: | Cycle 2 | Map ID: | 521 |
| Neighborhood CD: | 2 |
Owner |
| Name: | STORM, JEFFREY R | Owner ID: | 281464 |
| Mailing Address: | QING YAN 326 BON AIR DR COUPEVILLE, WA 98239 | % Ownership: | 100.0000000000% |
| | | Exemptions: | |
Taxes and Assessment Details
Values
| (+) Improvement Homesite Value: | + | $0 | |
| (+) Improvement Non-Homesite Value: | + | $327,699 | |
| (+) Land Homesite Value: | + | $0 | |
| (+) Land Non-Homesite Value: | + | $190,000 | |
| (+) Curr Use (HS): | + | $0 | $0 |
| (+) Curr Use (NHS): | + | $0 | $0 |
| | | -------------------------- | |
| (=) Market Value: | = | $517,699 | |
| (–) Productivity Loss: | – | $0 | |
| | | -------------------------- | |
| (=) Subtotal: | = | $517,699 | |
| (+) Senior Appraised Value: | + | $0 | |
| (+) Non-Senior Appraised Value: | + | $517,699 | |
| | | -------------------------- | |
| (=) Total Appraised Value: | = | $517,699 | |
| (–) Senior Exemption Loss: | – | $0 | |
| (–) Exemption Loss: | – | $0 | |
| | | -------------------------- | |
| (=) Taxable Value: | = | $517,699 | |
Taxing Jurisdiction
| Owner: | STORM, JEFFREY R | | |
| % Ownership: | 100.0000000000% | | |
| Total Value: | $517,699 | | |
| Tax Area: | 310 - APPRAISER-Cpvl Schl Dist, outside Cpvl, improved & 1 acre or less |
| CF | Conservation Futures | 0.0316035091 | $517,699 | $517,699 | $16.36 | | |
| CEM2 | Cemetery #2 | 0.0095056933 | $517,699 | $517,699 | $4.92 | | |
| FIRE5 | Fire & Rescue Dist #5 C Whidbey GEN | 1.2008080668 | $517,699 | $517,699 | $621.66 | | |
| FIRE5BOND | Fire & Rescue Dist #5 C Whidbey BOND | 0.1400090713 | $517,699 | $517,699 | $72.48 | | |
| HOBOND | Hospital BOND | 0.1910887512 | $517,699 | $517,699 | $98.93 | | |
| HOGEN | Hospital GEN | 0.3902502903 | $517,699 | $517,699 | $202.03 | | |
| CE | County Current Expense | 0.3708482477 | $517,699 | $517,699 | $191.99 | | |
| CR | County Roads | 0.4584763726 | $517,699 | $517,699 | $237.35 | | |
| ISLANDEMS | Hospital GEN (EMS) | 0.5000000000 | $517,699 | $517,699 | $258.85 | | |
| LIB | Library Sno-Isle GEN | 0.3153421757 | $517,699 | $517,699 | $163.25 | | |
| LIBCAP | Library Sno-Isle BOND (Cap Fac Imp Area) | 0.0543427938 | $517,699 | $517,699 | $28.13 | | |
| POCOUP | Port of Coupeville GEN | 0.1093371703 | $517,699 | $517,699 | $56.60 | | |
| POCOUPIDD | Port of Coupeville IDD | 0.3409740022 | $517,699 | $517,699 | $176.52 | | |
| COUPSDTECH | School 204 CP (TECH) | 0.7545480007 | $517,699 | $517,699 | $390.63 | | |
| SCH204MO | School 204 Enrichment | 0.6716186034 | $517,699 | $517,699 | $347.70 | | |
| ST | State School | 1.3035497053 | $517,699 | $517,699 | $674.85 | | |
| ST2 | State School Part 2 | 0.8169543533 | $517,699 | $517,699 | $422.94 | | |
| | Total Tax Rate: | 7.6592568070 | | | | | |
| | | | | Taxes w/Current Exemptions: | $3,965.19 | | |
| | | | | Taxes w/o Exemptions: | $3,965.19 | | |
Improvement / Building
| Improvement #1: | RESIDENTIAL | State Code: | Y | 1644.0 sqft | Value: | $327,699 |
| Bathrooms: | 2.25 | Bedrooms: | 3 | | Ceiling: | DRYWALL PAINTED | Cooling: | HEAT PUMP/CONV/V | | Exterior Wall/Cover: | CEMENT FIBER | Floor Covering: | VINYL TILE/CARP 20-80 | | Floor Structure: | WOOD W/SUBFLOOR | Foundation: | CONCRETE | | Interior Finish: | DRYWALL PAINT | Plumbing Fixture Cnt: | 10 | | Roof Slope: | 4" IN 12" | Roof Structure/Cover: | CJ ASPHALT |
|
| | Type | Description | Class CD | Sub Class CD | Year Built | Area |
| | BAS | BASE/MAIN FLOOR | 3 | 0 | 2017 | 702.0 |
| | UPS | UPPER STORY | 3 | 0 | 2017 | 942.0 |
| | AGR | ATTACHED GARAGE | 3 | 0 | 2017 | 441.1 |
| | OWP | OPEN WOOD PORCH W/STEPS | 3 | 0 | 2017 | 130.0 |
| | OWP | OPEN WOOD PORCH W/STEPS | 3 | 0 | 2017 | 50.0 |
Sketch
| No sketches available for this property. |
Property Image
Land
| 1 | 14 | SQ (08001-12000) | 0.1847 | 8045.53 | 0.00 | 0.00 | 1.00 | $190,000 | $0 |
Roll Value History
| 2026 | N/A | N/A | N/A | N/A | N/A |
| 2025 | $327,699 | $190,000 | $0 | $517,699 | $517,699 |
| 2024 | $323,916 | $180,000 | $0 | $503,916 | $503,916 |
| 2023 | $326,549 | $175,000 | $0 | $501,549 | $501,549 |
| 2022 | $298,076 | $150,000 | $0 | $448,076 | $448,076 |
| 2021 | $261,266 | $100,000 | $0 | $361,266 | $361,266 |
| 2020 | $253,507 | $85,000 | $0 | $338,507 | $338,507 |
| 2019 | $188,887 | $130,000 | $0 | $318,887 | $318,887 |
| 2018 | $189,368 | $130,000 | $0 | $319,368 | $319,368 |
| 2017 | $226,358 | $30,000 | $0 | $256,358 | $256,358 |
| 2016 | $0 | $30,000 | $0 | $30,000 | $30,000 |
| 2015 | $0 | $30,000 | $0 | $30,000 | $30,000 |
| 2014 | $0 | $30,000 | $0 | $30,000 | $30,000 |
| 2013 | $0 | $30,000 | $0 | $30,000 | $30,000 |
| 2012 | $0 | $27,075 | $0 | $27,075 | $27,075 |
| 2011 | $0 | $45,000 | $0 | $45,000 | $45,000 |
| 2010 | $0 | $45,000 | $0 | $45,000 | $45,000 |
| 2009 | $0 | $45,000 | $0 | $45,000 | $45,000 |
| 2008 | $0 | $38,000 | $0 | $38,000 | $38,000 |
| 2007 | $0 | $25,000 | $0 | $25,000 | $25,000 |
Deed and Sales History
| 1 | 08/11/2017 | WD | Warranty Deed | THE RUBICON GROUP LLC | STORM, JEFFREY R | | | $288,800.00 | 30666 | 4428310 |
| 2 | 12/02/2016 | WD | Warranty Deed | WALTERS TRUSTEE, TERRY E | THE RUBICON GROUP LLC | | | $16,500.00 | 27189 | 4412715 |
| 3 | 12/12/2011 | WD | Warranty Deed | OLSON, CLIFFORD L / PHYLLIS D | WALTERS TRUSTEE, TERRY E | | | $45,000.00 | 6412 | 4306484 |
|   | |
| 4 | 01/01/1992 | WD | Warranty Deed | MORRISON, MICHAEL J | OLSON, CLIFFORD L | | | $6,000.00 | 20230 | 92000973 |
| 5 | 09/01/1978 | OTHER | Other - Misc. Documents | Unknown | MORRISON, MICHAEL J | | | $4,000.00 | 84473 | 339577 |
Payout Agreement
| No payout information available.. |