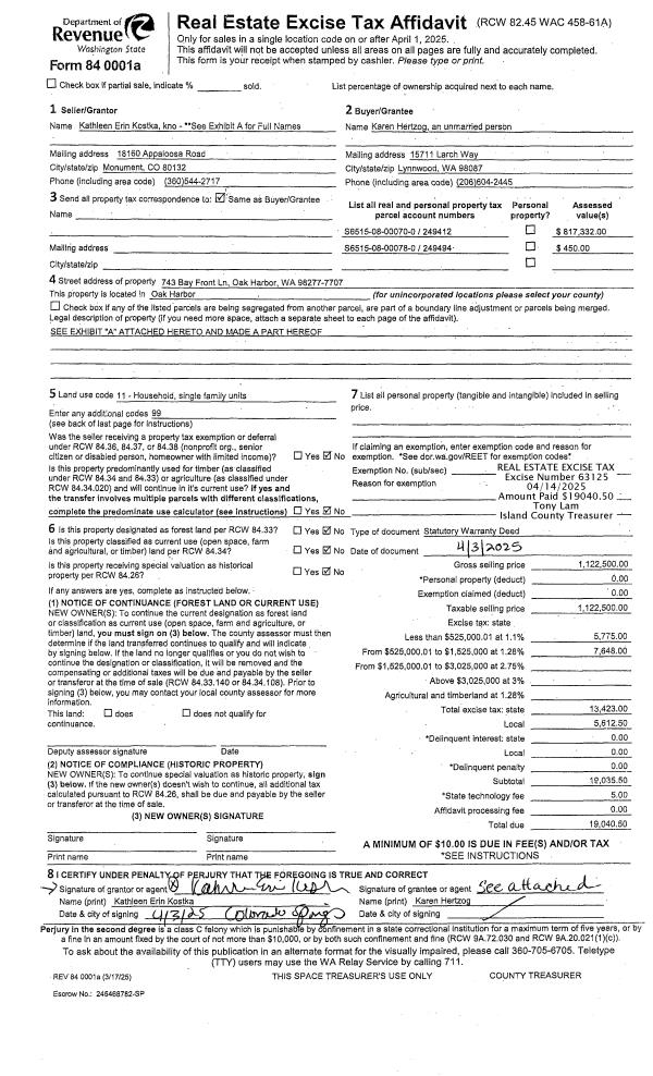
Property
Account |
| Property ID: | 195942 | Abbreviated Legal Description: | BON AIR 4 LOT 12 BLK 17 EX SLY 6' TGW SLY 14' OF LOT 13 BLK 17 EX WLY 20' OF SLY 27.24 MEAS ALG WLN SD LOT 13 ALSO EX WLY 20' OF NLY 32 .76' MEAS ALG WLN LOT 12 BLK 17 |
| Geographic ID: | S6140-04-17012-0 | Agent Code: | |
| Type: | Real | | |
| Tax Area: | 310 - APPRAISER-Cpvl Schl Dist, outside Cpvl, improved & 1 acre or less | Land Use Code | 11 |
| Open Space: | N | DFL | N |
| Historic Property: | N | Remodel Property: | N |
| Multi-Family Redevelopment: | N | | |
| Township: | | Section: | |
| Range: | |
Location |
| Address: | 1946 DONNA DR COUPEVILLE, WA 98239 | Mapsco: | |
| Neighborhood: | Cycle 2 | Map ID: | 516 |
| Neighborhood CD: | 2 |
Owner |
| Name: | MCNEAL, SHAWN L | Owner ID: | 115199 |
| Mailing Address: | 1946 DONNA DR COUPEVILLE, WA 98239-4305 | % Ownership: | 100.0000000000% |
| | | Exemptions: | |
Taxes and Assessment Details
Values
| (+) Improvement Homesite Value: | + | $0 | |
| (+) Improvement Non-Homesite Value: | + | $177,963 | |
| (+) Land Homesite Value: | + | $0 | |
| (+) Land Non-Homesite Value: | + | $190,000 | |
| (+) Curr Use (HS): | + | $0 | $0 |
| (+) Curr Use (NHS): | + | $0 | $0 |
| | | -------------------------- | |
| (=) Market Value: | = | $367,963 | |
| (–) Productivity Loss: | – | $0 | |
| | | -------------------------- | |
| (=) Subtotal: | = | $367,963 | |
| (+) Senior Appraised Value: | + | $0 | |
| (+) Non-Senior Appraised Value: | + | $367,963 | |
| | | -------------------------- | |
| (=) Total Appraised Value: | = | $367,963 | |
| (–) Senior Exemption Loss: | – | $0 | |
| (–) Exemption Loss: | – | $0 | |
| | | -------------------------- | |
| (=) Taxable Value: | = | $367,963 | |
Taxing Jurisdiction
| Owner: | MCNEAL, SHAWN L | | |
| % Ownership: | 100.0000000000% | | |
| Total Value: | $367,963 | | |
| Tax Area: | 310 - APPRAISER-Cpvl Schl Dist, outside Cpvl, improved & 1 acre or less |
| CF | Conservation Futures | 0.0316035091 | $367,963 | $367,963 | $11.63 | | |
| CEM2 | Cemetery #2 | 0.0095056933 | $367,963 | $367,963 | $3.50 | | |
| FIRE5 | Fire & Rescue Dist #5 C Whidbey GEN | 1.2008080668 | $367,963 | $367,963 | $441.85 | | |
| FIRE5BOND | Fire & Rescue Dist #5 C Whidbey BOND | 0.1400090713 | $367,963 | $367,963 | $51.52 | | |
| HOBOND | Hospital BOND | 0.1910887512 | $367,963 | $367,963 | $70.31 | | |
| HOGEN | Hospital GEN | 0.3902502903 | $367,963 | $367,963 | $143.60 | | |
| CE | County Current Expense | 0.3708482477 | $367,963 | $367,963 | $136.46 | | |
| CR | County Roads | 0.4584763726 | $367,963 | $367,963 | $168.70 | | |
| ISLANDEMS | Hospital GEN (EMS) | 0.5000000000 | $367,963 | $367,963 | $183.98 | | |
| LIB | Library Sno-Isle GEN | 0.3153421757 | $367,963 | $367,963 | $116.03 | | |
| LIBCAP | Library Sno-Isle BOND (Cap Fac Imp Area) | 0.0543427938 | $367,963 | $367,963 | $20.00 | | |
| POCOUP | Port of Coupeville GEN | 0.1093371703 | $367,963 | $367,963 | $40.23 | | |
| POCOUPIDD | Port of Coupeville IDD | 0.3409740022 | $367,963 | $367,963 | $125.47 | | |
| COUPSDTECH | School 204 CP (TECH) | 0.7545480007 | $367,963 | $367,963 | $277.65 | | |
| SCH204MO | School 204 Enrichment | 0.6716186034 | $367,963 | $367,963 | $247.13 | | |
| ST | State School | 1.3035497053 | $367,963 | $367,963 | $479.66 | | |
| ST2 | State School Part 2 | 0.8169543533 | $367,963 | $367,963 | $300.61 | | |
| | Total Tax Rate: | 7.6592568070 | | | | | |
| | | | | Taxes w/Current Exemptions: | $2,818.33 | | |
| | | | | Taxes w/o Exemptions: | $2,818.33 | | |
Improvement / Building
| Improvement #1: | RESIDENTIAL | State Code: | Y | 955.0 sqft | Value: | $177,963 |
| Bathrooms: | 1 | Bedrooms: | 2 | | Ceiling: | DRY WALL SPRAYED | Exterior Wall/Cover: | PLY/HARDBOARD T-111 | | Floor Covering: | CARPET/VINYL 80-20 | Floor Structure: | WOOD W/SUBFLOOR | | Foundation: | CONCRETE | Heating: | WALL HEAT ELECTRIC | | Interior Finish: | DRYWALL PAINT | Plumbing Fixture Cnt: | 6 | | Roof Slope: | 4" IN 12" | Roof Structure/Cover: | CJ ASPHALT |
|
| | Type | Description | Class CD | Sub Class CD | Year Built | Area |
| | BAS | BASE/MAIN FLOOR | 3 | 0 | 1995 | 955.0 |
| | OP4 | OPEN PORCH W/CEILING-ROOF | 3 | 0 | 1995 | 87.0 |
| | AGR | ATTACHED GARAGE | 3 | 0 | 1995 | 352.8 |
Sketch
Property Image
Land
| 1 | 14 | SQ (08001-12000) | 0.1700 | 7405.20 | 0.00 | 0.00 | 1.00 | $190,000 | $0 |
Roll Value History
| 2026 | N/A | N/A | N/A | N/A | N/A |
| 2025 | $177,963 | $190,000 | $0 | $367,963 | $367,963 |
| 2024 | $171,700 | $180,000 | $0 | $351,700 | $351,700 |
| 2023 | $173,787 | $175,000 | $0 | $348,787 | $348,787 |
| 2022 | $159,258 | $150,000 | $0 | $309,258 | $309,258 |
| 2021 | $140,128 | $100,000 | $0 | $240,128 | $240,128 |
| 2020 | $136,371 | $85,000 | $0 | $221,371 | $221,371 |
| 2019 | $96,343 | $130,000 | $0 | $226,343 | $226,343 |
| 2018 | $90,926 | $130,000 | $0 | $220,926 | $220,926 |
| 2017 | $91,480 | $100,000 | $0 | $191,480 | $191,480 |
| 2016 | $92,623 | $75,000 | $0 | $167,623 | $167,623 |
| 2015 | $93,766 | $50,000 | $0 | $143,766 | $143,766 |
| 2014 | $94,911 | $50,000 | $0 | $144,911 | $144,911 |
| 2013 | $96,054 | $50,000 | $0 | $146,054 | $146,054 |
| 2012 | $93,691 | $57,000 | $0 | $150,691 | $150,691 |
| 2011 | $94,828 | $60,000 | $0 | $154,828 | $154,828 |
| 2010 | $98,049 | $60,000 | $0 | $158,049 | $158,049 |
| 2009 | $102,286 | $75,000 | $0 | $177,286 | $177,286 |
| 2008 | $103,562 | $76,000 | $0 | $179,562 | $179,562 |
| 2007 | $104,887 | $85,000 | $0 | $189,887 | $189,887 |
Deed and Sales History
| 1 | 11/01/1997 | WD | Warranty Deed | CK&M, ASSOCIATES | MCNEAL, SHAWN L | | | $96,500.00 | 74112 | 97019747 |
| 2 | 10/01/1995 | QCD | Quit Claim Deed | COOK, CHARLES A | CK&M, ASSOCIATES | | | $0.00 | 53635 | 95016679 |
| 3 | 10/01/1995 | QCD | Quit Claim Deed | COOK, CHARLES A | COOK, CHARLES A | | | $0.00 | 53667 | 95016881 |
| 4 | 09/01/1995 | QCD | Quit Claim Deed | COOK, CHARLIE & | COOK, CHARLES A | | | $0.00 | 53513 | 95016089 |
| 5 | 11/01/1994 | OTHER | Other - Misc. Documents | COOK, CHARLIE & | COOK, CHARLIE & | | | $0.00 | 66127 | 94023926 |
| 6 | 08/01/1993 | WD | Warranty Deed | WARD, VICTOR V | COOK, CHARLIE & | | | $7,500.00 | 33416 | 93017710 |
| 7 | 01/01/1900 | OTHER | Other - Misc. Documents | Unknown | WARD, VICTOR V | | | $0.00 | 0 | 0 |
Payout Agreement
| No payout information available.. |