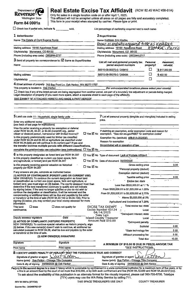
Property
Account |
| Property ID: | 195951 | Abbreviated Legal Description: | BON AIR 4 SLY 24' OF LOT 14 BLK 17 TGW LOT 13 BLK 17 EX SLY 14' EX WLY 20' OF SLY 27.24' MEAS ALG WLN OF LOT 13 BLK 17 |
| Geographic ID: | S6140-04-17014-0 | Agent Code: | |
| Type: | Real | | |
| Tax Area: | 310 - APPRAISER-Cpvl Schl Dist, outside Cpvl, improved & 1 acre or less | Land Use Code | 11 |
| Open Space: | N | DFL | N |
| Historic Property: | N | Remodel Property: | N |
| Multi-Family Redevelopment: | N | | |
| Township: | | Section: | |
| Range: | |
Location |
| Address: | 1938 DONNA DR COUPEVILLE, WA 98239 | Mapsco: | |
| Neighborhood: | Cycle 2 | Map ID: | 516 |
| Neighborhood CD: | 2 |
Owner |
| Name: | ERACA, KEVIN N | Owner ID: | 272207 |
| Mailing Address: | SHANNON A ERACA 1938 DONNA DR COUPEVILLE, WA 98239 | % Ownership: | 100.0000000000% |
| | | Exemptions: | |
Taxes and Assessment Details
Values
| (+) Improvement Homesite Value: | + | $0 | |
| (+) Improvement Non-Homesite Value: | + | $187,777 | |
| (+) Land Homesite Value: | + | $0 | |
| (+) Land Non-Homesite Value: | + | $190,000 | |
| (+) Curr Use (HS): | + | $0 | $0 |
| (+) Curr Use (NHS): | + | $0 | $0 |
| | | -------------------------- | |
| (=) Market Value: | = | $377,777 | |
| (–) Productivity Loss: | – | $0 | |
| | | -------------------------- | |
| (=) Subtotal: | = | $377,777 | |
| (+) Senior Appraised Value: | + | $0 | |
| (+) Non-Senior Appraised Value: | + | $377,777 | |
| | | -------------------------- | |
| (=) Total Appraised Value: | = | $377,777 | |
| (–) Senior Exemption Loss: | – | $0 | |
| (–) Exemption Loss: | – | $0 | |
| | | -------------------------- | |
| (=) Taxable Value: | = | $377,777 | |
Taxing Jurisdiction
| Owner: | ERACA, KEVIN N | | |
| % Ownership: | 100.0000000000% | | |
| Total Value: | $377,777 | | |
| Tax Area: | 310 - APPRAISER-Cpvl Schl Dist, outside Cpvl, improved & 1 acre or less |
| CF | Conservation Futures | 0.0316035091 | $377,777 | $377,777 | $11.94 | | |
| CEM2 | Cemetery #2 | 0.0095056933 | $377,777 | $377,777 | $3.59 | | |
| FIRE5 | Fire & Rescue Dist #5 C Whidbey GEN | 1.2008080668 | $377,777 | $377,777 | $453.64 | | |
| FIRE5BOND | Fire & Rescue Dist #5 C Whidbey BOND | 0.1400090713 | $377,777 | $377,777 | $52.89 | | |
| HOBOND | Hospital BOND | 0.1910887512 | $377,777 | $377,777 | $72.19 | | |
| HOGEN | Hospital GEN | 0.3902502903 | $377,777 | $377,777 | $147.43 | | |
| CE | County Current Expense | 0.3708482477 | $377,777 | $377,777 | $140.10 | | |
| CR | County Roads | 0.4584763726 | $377,777 | $377,777 | $173.20 | | |
| ISLANDEMS | Hospital GEN (EMS) | 0.5000000000 | $377,777 | $377,777 | $188.89 | | |
| LIB | Library Sno-Isle GEN | 0.3153421757 | $377,777 | $377,777 | $119.13 | | |
| LIBCAP | Library Sno-Isle BOND (Cap Fac Imp Area) | 0.0543427938 | $377,777 | $377,777 | $20.53 | | |
| POCOUP | Port of Coupeville GEN | 0.1093371703 | $377,777 | $377,777 | $41.31 | | |
| POCOUPIDD | Port of Coupeville IDD | 0.3409740022 | $377,777 | $377,777 | $128.81 | | |
| COUPSDTECH | School 204 CP (TECH) | 0.7545480007 | $377,777 | $377,777 | $285.05 | | |
| SCH204MO | School 204 Enrichment | 0.6716186034 | $377,777 | $377,777 | $253.72 | | |
| ST | State School | 1.3035497053 | $377,777 | $377,777 | $492.45 | | |
| ST2 | State School Part 2 | 0.8169543533 | $377,777 | $377,777 | $308.63 | | |
| | Total Tax Rate: | 7.6592568070 | | | | | |
| | | | | Taxes w/Current Exemptions: | $2,893.50 | | |
| | | | | Taxes w/o Exemptions: | $2,893.50 | | |
Improvement / Building
| Improvement #1: | RESIDENTIAL | State Code: | Y | 998.0 sqft | Value: | $187,777 |
| Bathrooms: | 1 | Bedrooms: | 2 | | Ceiling: | DRYWALL PAINTED | Exterior Wall/Cover: | PLY/HARDBOARD T-111 | | Floor Covering: | CARPET/VINYL 80-20 | Floor Structure: | WOOD W/SUBFLOOR | | Foundation: | CONCRETE | Heating: | WALL HEAT ELECTRIC | | Interior Finish: | DRYWALL PAINT | Plumbing Fixture Cnt: | 6 | | Roof Slope: | 6" IN 12" | Roof Structure/Cover: | CJ ASPHALT |
|
| | Type | Description | Class CD | Sub Class CD | Year Built | Area |
| | BAS | BASE/MAIN FLOOR | 3 | 0 | 1995 | 998.0 |
| | OP4 | OPEN PORCH W/CEILING-ROOF | 3 | 0 | 1995 | 84.0 |
| | AGR | ATTACHED GARAGE | 3 | 0 | 1995 | 338.0 |
Sketch
Property Image
Land
| 1 | 14 | SQ (08001-12000) | 0.1900 | 8276.40 | 0.00 | 0.00 | 1.00 | $190,000 | $0 |
Roll Value History
| 2026 | N/A | N/A | N/A | N/A | N/A |
| 2025 | $187,777 | $190,000 | $0 | $377,777 | $377,777 |
| 2024 | $185,494 | $180,000 | $0 | $365,494 | $365,494 |
| 2023 | $187,777 | $175,000 | $0 | $362,777 | $362,777 |
| 2022 | $172,100 | $150,000 | $0 | $322,100 | $322,100 |
| 2021 | $151,454 | $100,000 | $0 | $251,454 | $251,454 |
| 2020 | $147,487 | $85,000 | $0 | $232,487 | $232,487 |
| 2019 | $105,750 | $130,000 | $0 | $235,750 | $235,750 |
| 2018 | $106,650 | $130,000 | $0 | $236,650 | $236,650 |
| 2017 | $107,267 | $100,000 | $0 | $207,267 | $207,267 |
| 2016 | $108,501 | $75,000 | $0 | $183,501 | $183,501 |
| 2015 | $98,240 | $50,000 | $0 | $148,240 | $148,240 |
| 2014 | $99,439 | $50,000 | $0 | $149,439 | $149,439 |
| 2013 | $100,637 | $50,000 | $0 | $150,637 | $150,637 |
| 2012 | $104,886 | $57,000 | $0 | $161,886 | $161,886 |
| 2011 | $106,155 | $60,000 | $0 | $166,155 | $166,155 |
| 2010 | $110,768 | $60,000 | $0 | $170,768 | $170,768 |
| 2009 | $115,565 | $75,000 | $0 | $190,565 | $190,565 |
| 2008 | $117,006 | $76,000 | $0 | $193,006 | $193,006 |
| 2007 | $118,509 | $85,000 | $0 | $203,509 | $203,509 |
Deed and Sales History
| 1 | 09/14/2015 | WD | Warranty Deed | RIVERA, LUCIENNE E | ERACA, KEVIN N | | | $192,500.00 | 21440 | 4386411 |
| 2 | 06/02/2011 | WD | Warranty Deed | SECRETARY OF HOUSING AND URBAN DEVELOPMENT | RIVERA, LUCIENNE E | | | $102,000.00 | 4989 | 4298283 |
| 3 | 08/30/2010 | WD | Warranty Deed | WELLS FARGO BANK NA | SECRETARY OF HOUSING AND URBAN DEVELOPMENT | | | $214,497.00 | 2136 | 4279752 |
| 4 | 07/12/2010 | TRUSTEED | Trustee's Deed | CORONEL, JOSE | WELL FARGO BANK NA, | | | $232,086.00 | 1745 | 4277107 |
| 5 | 09/24/2008 | ESTSEPPROP | Establish Separate Property | HOGAN, LONNA | CORONEL, JOSE | | | $0.00 | 82707 | 4238435 |
| 6 | 10/02/2006 | 5 | DNU - Marriage License/Name Change | CORONEL, JOSE | HOGAN, LONNA | | | $0.00 | 64375 | 4183844 |
| 7 | 02/21/2006 | ESTSEPPROP | Establish Separate Property | CORONEL, JOSE | CORONEL, JOSE | | | $0.00 | 60887 | 4163543 |
| 8 | 02/21/2006 | WD | Warranty Deed | DARNELL, JANET E | CORONEL, JOSE | | | $212,000.00 | 60885 | 4163542 |
| 9 | 03/28/2001 | WD | Warranty Deed | KJARGAARD, JOHN | DARNELL, JANET E | | | $106,000.00 | 11020 | 20028465 |
| 10 | 12/01/1995 | QCD | Quit Claim Deed | CK&M, ASSOCIATES | KJARGAARD, JOHN | | | $0.00 | 54399 | 95020336 |
| 11 | 10/01/1995 | QCD | Quit Claim Deed | KJARGAARD, JOHN | CK&M, ASSOCIATES | | | $0.00 | 53629 | 95016673 |
| 12 | 10/01/1995 | QCD | Quit Claim Deed | CK&M, ASSOCIATES | KJARGAARD, JOHN | | | $0.00 | 53669 | 95016883 |
| 13 | 09/01/1995 | QCD | Quit Claim Deed | CK&M, ASSOCIATES | CK&M, ASSOCIATES | | | $0.00 | 53518 | 95016095 |
| 14 | 11/01/1994 | OTHER | Other - Misc. Documents | CK&M, ASSOCIATES | CK&M, ASSOCIATES | | | $0.00 | 66127 | 94023926 |
| 15 | 03/01/1994 | WD | Warranty Deed | VINSON, JAMES M | CK&M, ASSOCIATES | | | $8,000.00 | 41315 | 94008248 |
| 16 | 10/01/1980 | TRUSTEED | Trustee's Deed | BROWN, GARY L | VINSON, JAMES M | | | $3,000.00 | 3374 | 374856 |
| 17 | 10/01/1980 | EXECUTORD | Executor Deed | BRAZIER, FRANCIS C | BROWN, GARY L | | | $6,800.00 | 3626 | 375709 |
| 18 | 01/01/1900 | OTHER | Other - Misc. Documents | Unknown | BRAZIER, FRANCIS C | | | $0.00 | 0 | 0 |
Payout Agreement
| No payout information available.. |