Property
Account |
| Property ID: | 195988 | Abbreviated Legal Description: | BON AIR 4 LOT 17 BLK 17 |
| Geographic ID: | S6140-04-17017-0 | Agent Code: | |
| Type: | Real | | |
| Tax Area: | 310 - APPRAISER-Cpvl Schl Dist, outside Cpvl, improved & 1 acre or less | Land Use Code | 11 |
| Open Space: | N | DFL | N |
| Historic Property: | N | Remodel Property: | N |
| Multi-Family Redevelopment: | N | | |
| Township: | | Section: | |
| Range: | |
Location |
| Address: | 1926 DONNA DR COUPEVILLE, WA 98239 | Mapsco: | |
| Neighborhood: | Cycle 2 | Map ID: | 516 |
| Neighborhood CD: | 2 |
Owner |
| Name: | HUGHES, ALAN | Owner ID: | 313013 |
| Mailing Address: | TERESA HUGHES 1926 DONNA DR COUPEVILLE, WA 98239 | % Ownership: | 100.0000000000% |
| | | Exemptions: | |
Taxes and Assessment Details
Values
| (+) Improvement Homesite Value: | + | $0 | |
| (+) Improvement Non-Homesite Value: | + | $310,642 | |
| (+) Land Homesite Value: | + | $0 | |
| (+) Land Non-Homesite Value: | + | $190,000 | |
| (+) Curr Use (HS): | + | $0 | $0 |
| (+) Curr Use (NHS): | + | $0 | $0 |
| | | -------------------------- | |
| (=) Market Value: | = | $500,642 | |
| (–) Productivity Loss: | – | $0 | |
| | | -------------------------- | |
| (=) Subtotal: | = | $500,642 | |
| (+) Senior Appraised Value: | + | $0 | |
| (+) Non-Senior Appraised Value: | + | $500,642 | |
| | | -------------------------- | |
| (=) Total Appraised Value: | = | $500,642 | |
| (–) Senior Exemption Loss: | – | $0 | |
| (–) Exemption Loss: | – | $0 | |
| | | -------------------------- | |
| (=) Taxable Value: | = | $500,642 | |
Taxing Jurisdiction
| Owner: | HUGHES, ALAN | | |
| % Ownership: | 100.0000000000% | | |
| Total Value: | $500,642 | | |
| Tax Area: | 310 - APPRAISER-Cpvl Schl Dist, outside Cpvl, improved & 1 acre or less |
| CF | Conservation Futures | 0.0316035091 | $500,642 | $500,642 | $15.82 | | |
| CEM2 | Cemetery #2 | 0.0095056933 | $500,642 | $500,642 | $4.76 | | |
| FIRE5 | Fire & Rescue Dist #5 C Whidbey GEN | 1.2008080668 | $500,642 | $500,642 | $601.17 | | |
| FIRE5BOND | Fire & Rescue Dist #5 C Whidbey BOND | 0.1400090713 | $500,642 | $500,642 | $70.09 | | |
| HOBOND | Hospital BOND | 0.1910887512 | $500,642 | $500,642 | $95.67 | | |
| HOGEN | Hospital GEN | 0.3902502903 | $500,642 | $500,642 | $195.38 | | |
| CE | County Current Expense | 0.3708482477 | $500,642 | $500,642 | $185.66 | | |
| CR | County Roads | 0.4584763726 | $500,642 | $500,642 | $229.53 | | |
| ISLANDEMS | Hospital GEN (EMS) | 0.5000000000 | $500,642 | $500,642 | $250.32 | | |
| LIB | Library Sno-Isle GEN | 0.3153421757 | $500,642 | $500,642 | $157.87 | | |
| LIBCAP | Library Sno-Isle BOND (Cap Fac Imp Area) | 0.0543427938 | $500,642 | $500,642 | $27.21 | | |
| POCOUP | Port of Coupeville GEN | 0.1093371703 | $500,642 | $500,642 | $54.74 | | |
| POCOUPIDD | Port of Coupeville IDD | 0.3409740022 | $500,642 | $500,642 | $170.71 | | |
| COUPSDTECH | School 204 CP (TECH) | 0.7545480007 | $500,642 | $500,642 | $377.76 | | |
| SCH204MO | School 204 Enrichment | 0.6716186034 | $500,642 | $500,642 | $336.24 | | |
| ST | State School | 1.3035497053 | $500,642 | $500,642 | $652.61 | | |
| ST2 | State School Part 2 | 0.8169543533 | $500,642 | $500,642 | $409.00 | | |
| | Total Tax Rate: | 7.6592568070 | | | | | |
| | | | | Taxes w/Current Exemptions: | $3,834.54 | | |
| | | | | Taxes w/o Exemptions: | $3,834.54 | | |
Improvement / Building
| Improvement #1: | RESIDENTIAL | State Code: | Y | 1385.0 sqft | Value: | $310,642 |
| Bathrooms: | 1.75 | Bedrooms: | 2 | | Ceiling: | DRYWALL PAINTED | Cooling: | HEAT PUMP/CONV/V | | Exterior Wall/Cover: | CEMENT FIBER | Floor Covering: | VINYL TILE/CARP 20-80 | | Floor Structure: | WOOD W/SUBFLOOR | Foundation: | CONCRETE | | Interior Finish: | DRYWALL PAINT | Plumbing Fixture Cnt: | 10 | | Roof Slope: | 5" IN 12" | Roof Structure/Cover: | CJ ASPHALT |
|
| | Type | Description | Class CD | Sub Class CD | Year Built | Area |
| | BAS | BASE/MAIN FLOOR | 3 | 0 | 2018 | 1385.0 |
| | AGR | ATTACHED GARAGE | 3 | 0 | 2018 | 440.0 |
| | OWP | OPEN WOOD PORCH W/STEPS | 3 | 0 | 2018 | 130.0 |
| | OWC | OPEN WOOD PORCH W/STEPS/ROOF/C | 3 | 0 | 2018 | 36.0 |
Sketch
Property Image
Land
| 1 | 13 | SQ (06001-08000) | 0.1700 | 7405.20 | 0.00 | 0.00 | 1.00 | $190,000 | $0 |
Roll Value History
| 2026 | N/A | N/A | N/A | N/A | N/A |
| 2025 | $310,642 | $190,000 | $0 | $500,642 | $500,642 |
| 2024 | $313,167 | $180,000 | $0 | $493,167 | $493,167 |
| 2023 | $315,693 | $175,000 | $0 | $490,693 | $490,693 |
| 2022 | $288,154 | $150,000 | $0 | $438,154 | $438,154 |
| 2021 | $252,553 | $100,000 | $0 | $352,553 | $352,553 |
| 2020 | $232,340 | $85,000 | $0 | $317,340 | $317,340 |
| 2019 | $170,030 | $130,000 | $0 | $300,030 | $300,030 |
| 2018 | $171,315 | $130,000 | $0 | $301,315 | $301,315 |
| 2017 | $0 | $30,000 | $0 | $30,000 | $30,000 |
| 2016 | $0 | $5,000 | $0 | $5,000 | $5,000 |
| 2015 | $0 | $5,000 | $0 | $5,000 | $5,000 |
| 2014 | $0 | $5,000 | $0 | $5,000 | $5,000 |
| 2013 | $0 | $5,000 | $0 | $5,000 | $5,000 |
| 2012 | $0 | $8,400 | $0 | $8,400 | $8,400 |
| 2011 | $0 | $8,400 | $0 | $8,400 | $8,400 |
| 2010 | $0 | $8,400 | $0 | $8,400 | $8,400 |
| 2009 | $0 | $12,600 | $0 | $12,600 | $12,600 |
| 2008 | $0 | $6,080 | $0 | $6,080 | $6,080 |
| 2007 | $0 | $4,000 | $0 | $4,000 | $4,000 |
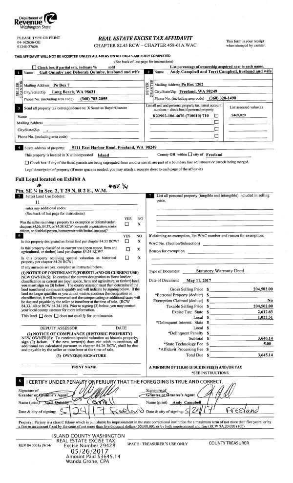
Deed and Sales History
| 1 | 06/14/2024 | WD | Warranty Deed | ABBOTT, NICHOLAS | HUGHES, ALAN | | | $479,000.00 | 60531 | 4574135 |
| 2 | 02/03/2021 | WD | Warranty Deed | MARINGO JR, JOSEPH THOMAS | ABBOTT, NICHOLAS | | | $388,400.00 | 47055 | 4511740 |
| 3 | 01/04/2018 | WD | Warranty Deed | WALDRON CONSTRUCTION INC | MARINGO JR, JOSEPH THOMAS | | | $269,900.00 | 32826 | 4438475 |
| 4 | 03/21/2017 | WD | Warranty Deed | BINGHAM, LARRY | WALDRON CONSTRUCTION INC | | | $21,500.00 | 28509 | 4419188 |
| 5 | 05/01/2006 | REC | Real Estate Contract | WAHLE, DANIEL C | BINGHAM, LARRY | | | $15,000.00 | 72301 | 4206646 |
| 6 | 06/01/1979 | EXECUTORD | Executor Deed | MCMILLAN, A J | WAHLE, DANIEL C | | | $4,200.00 | 93202 | 35496 |
| 7 | 01/01/1900 | OTHER | Other - Misc. Documents | Unknown | MCMILLAN, A J | | | $0.00 | 0 | 0 |
Payout Agreement
| No payout information available.. |