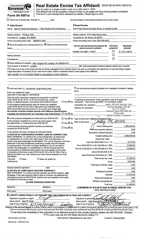
Property
Account |
| Property ID: | 1964 | Abbreviated Legal Description: | 13 - IN NENE:BG NE CR SEC 1 S1*W190'N88*W356.70'TPB N88*W400.74' S26*E19.25' S35*E179.52' S16*E137.91' S88*E53.48' S66*E201.26' N1*E365.90'TPB TGW & SUB EZ (TR 29 SP 75-32 AF#308735) |
| Geographic ID: | R13101-494-4700 | Agent Code: | |
| Type: | Real | | |
| Tax Area: | 312 - APPRAISER-Cpvl Schl Dist, outside Cpvl, improved, greater than 1 acre | Land Use Code | 11 |
| Open Space: | N | DFL | N |
| Historic Property: | N | Remodel Property: | N |
| Multi-Family Redevelopment: | N | | |
| Township: | 31 | Section: | 01 |
| Range: | R1 |
Location |
| Address: | 33 S PHEASANT RUN RD COUPEVILLE, WA 98239 | Mapsco: | |
| Neighborhood: | Cycle 2 | Map ID: | 20 |
| Neighborhood CD: | 2 |
Owner |
| Name: | WILDMAN, ROBERT | Owner ID: | 81519 |
| Mailing Address: | PATRICIA WILDMAN 33 N PHEASANT RUN RD COUPEVILLE, WA 98239-9531 | % Ownership: | 100.0000000000% |
| | | Exemptions: | |
Taxes and Assessment Details
Values
| (+) Improvement Homesite Value: | + | $0 | |
| (+) Improvement Non-Homesite Value: | + | $330,615 | |
| (+) Land Homesite Value: | + | $0 | |
| (+) Land Non-Homesite Value: | + | $298,983 | |
| (+) Curr Use (HS): | + | $0 | $0 |
| (+) Curr Use (NHS): | + | $0 | $0 |
| | | -------------------------- | |
| (=) Market Value: | = | $629,598 | |
| (–) Productivity Loss: | – | $0 | |
| | | -------------------------- | |
| (=) Subtotal: | = | $629,598 | |
| (+) Senior Appraised Value: | + | $0 | |
| (+) Non-Senior Appraised Value: | + | $629,598 | |
| | | -------------------------- | |
| (=) Total Appraised Value: | = | $629,598 | |
| (–) Senior Exemption Loss: | – | $0 | |
| (–) Exemption Loss: | – | $0 | |
| | | -------------------------- | |
| (=) Taxable Value: | = | $629,598 | |
Taxing Jurisdiction
| Owner: | WILDMAN, ROBERT | | |
| % Ownership: | 100.0000000000% | | |
| Total Value: | $629,598 | | |
| Tax Area: | 312 - APPRAISER-Cpvl Schl Dist, outside Cpvl, improved, greater than 1 acre |
| CF | Conservation Futures | 0.0316035091 | $629,598 | $629,598 | $19.90 | | |
| CEM2 | Cemetery #2 | 0.0095056933 | $629,598 | $629,598 | $5.98 | | |
| FIRE5 | Fire & Rescue Dist #5 C Whidbey GEN | 1.2008080668 | $629,598 | $629,598 | $756.03 | | |
| FIRE5BOND | Fire & Rescue Dist #5 C Whidbey BOND | 0.1400090713 | $629,598 | $629,598 | $88.15 | | |
| HOBOND | Hospital BOND | 0.1910887512 | $629,598 | $629,598 | $120.31 | | |
| HOGEN | Hospital GEN | 0.3902502903 | $629,598 | $629,598 | $245.70 | | |
| CE | County Current Expense | 0.3708482477 | $629,598 | $629,598 | $233.49 | | |
| CR | County Roads | 0.4584763726 | $629,598 | $629,598 | $288.66 | | |
| ISLANDEMS | Hospital GEN (EMS) | 0.5000000000 | $629,598 | $629,598 | $314.80 | | |
| LIB | Library Sno-Isle GEN | 0.3153421757 | $629,598 | $629,598 | $198.54 | | |
| LIBCAP | Library Sno-Isle BOND (Cap Fac Imp Area) | 0.0543427938 | $629,598 | $629,598 | $34.21 | | |
| POCOUP | Port of Coupeville GEN | 0.1093371703 | $629,598 | $629,598 | $68.84 | | |
| POCOUPIDD | Port of Coupeville IDD | 0.3409740022 | $629,598 | $629,598 | $214.68 | | |
| COUPSDTECH | School 204 CP (TECH) | 0.7545480007 | $629,598 | $629,598 | $475.06 | | |
| SCH204MO | School 204 Enrichment | 0.6716186034 | $629,598 | $629,598 | $422.85 | | |
| ST | State School | 1.3035497053 | $629,598 | $629,598 | $820.71 | | |
| ST2 | State School Part 2 | 0.8169543533 | $629,598 | $629,598 | $514.35 | | |
| | Total Tax Rate: | 7.6592568070 | | | | | |
| | | | | Taxes w/Current Exemptions: | $4,822.26 | | |
| | | | | Taxes w/o Exemptions: | $4,822.26 | | |
Improvement / Building
| Improvement #1: | RESIDENTIAL | State Code: | Y | 1744.9 sqft | Value: | $330,615 |
| Bathrooms: | 2 | Bedrooms: | 2 | | Ceiling: | DRYWALL PAINTED | Cooling: | HEAT PUMP/CONV/V | | Exterior Wall/Cover: | VINYL | Floor Covering: | VINYL/HARDWOOD 60-40 | | Floor Structure: | WOOD W/SUBFLOOR | Foundation: | CONCRETE | | Interior Finish: | DRYWALL PAINT | Plumbing Fixture Cnt: | 10 | | Roof Slope: | 12" IN 12" | Roof Structure/Cover: | CJ ASPHALT |
|
| | Type | Description | Class CD | Sub Class CD | Year Built | Area |
| | BAS | BASE/MAIN FLOOR | 3 | 0 | 1998 | 1104.0 |
| | AGR | ATTACHED GARAGE | 3 | 0 | 1998 | 576.0 |
| | UPS | UPPER STORY | 3 | 0 | 1998 | 353.0 |
| | OWP | OPEN WOOD PORCH W/STEPS | 3 | 0 | 1998 | 133.0 |
| | OWC | OPEN WOOD PORCH W/STEPS/ROOF/C | 3 | 0 | 1998 | 272.0 |
| | LOF | LOFT | 3 | 0 | 1998 | 287.9 |
Sketch
Property Image
Land
| 1 | 91 | UNDEVELOPED LAND-METES AND BOUNDS | 1.2100 | 52707.60 | 0.00 | 0.00 | 1.00 | $78,983 | $0 |
| 2 | HS | HOMESITE | 1.0000 | 43560.00 | 0.00 | 0.00 | 1.00 | $220,000 | $0 |
Roll Value History
| 2026 | N/A | N/A | N/A | N/A | N/A |
| 2025 | $330,615 | $298,983 | $0 | $629,598 | $629,598 |
| 2024 | $318,701 | $280,000 | $0 | $598,701 | $598,701 |
| 2023 | $322,672 | $260,000 | $0 | $582,672 | $582,672 |
| 2022 | $295,778 | $250,000 | $0 | $545,778 | $545,778 |
| 2021 | $260,332 | $160,000 | $0 | $420,332 | $420,332 |
| 2020 | $253,885 | $150,000 | $0 | $403,885 | $403,885 |
| 2019 | $188,049 | $180,000 | $0 | $368,049 | $368,049 |
| 2018 | $165,364 | $135,000 | $0 | $300,364 | $300,364 |
| 2017 | $166,405 | $125,000 | $0 | $291,405 | $291,405 |
| 2016 | $168,484 | $120,000 | $0 | $288,484 | $288,484 |
| 2015 | $170,565 | $95,000 | $0 | $265,565 | $265,565 |
| 2014 | $172,645 | $95,000 | $0 | $267,645 | $267,645 |
| 2013 | $174,726 | $95,000 | $0 | $269,726 | $269,726 |
| 2012 | $181,092 | $114,750 | $0 | $295,842 | $295,842 |
| 2011 | $183,222 | $135,000 | $0 | $318,222 | $318,222 |
| 2010 | $191,879 | $135,000 | $0 | $326,879 | $326,879 |
| 2009 | $200,167 | $150,000 | $0 | $350,167 | $350,167 |
| 2008 | $200,910 | $124,000 | $0 | $324,910 | $324,910 |
| 2007 | $203,388 | $124,000 | $0 | $327,388 | $327,388 |
Deed and Sales History
| 1 | 08/01/1997 | WD | Warranty Deed | Unknown | WILDMAN, ROBERT/PATRICIA | | | $37,500.00 | 72717 | 97012893 |
| 2 | 08/01/1997 | WD | Warranty Deed | SCHIMMELS, GARY D | WILDMAN, ROBERT/PATRICIA | | | $37,500.00 | 72717 | 97012893 |
| 3 | 06/01/1985 | WD | Warranty Deed | LANDRO, MAGNUS | SCHIMMELS, GARY D | | | $15,000.00 | 51632 | 85006556 |
| 4 | 01/01/1900 | OTHER | Other - Misc. Documents | WILDMAN, ROBERT/PATRICIA | LANDRO, MAGNUS | | | $0.00 | 0 | 0 |
Payout Agreement
| No payout information available.. |