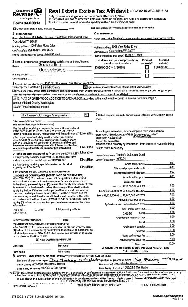
Property
Account |
| Property ID: | 196718 | Abbreviated Legal Description: | BONNIE VIEW LOT 17 BLK 2 |
| Geographic ID: | S6145-00-02017-0 | Agent Code: | |
| Type: | Real | | |
| Tax Area: | 110 - APPRAISER-OH Schl Dist, outside OH, improved & 1 acre or less | Land Use Code | 11 |
| Open Space: | N | DFL | N |
| Historic Property: | N | Remodel Property: | N |
| Multi-Family Redevelopment: | N | | |
| Township: | | Section: | |
| Range: | |
Location |
| Address: | 1424 BONNIE VIEW ACRES RD OAK HARBOR, WA 98277 | Mapsco: | |
| Neighborhood: | Cycle 1 | Map ID: | 123 |
| Neighborhood CD: | 1 |
Owner |
| Name: | HOUCK, KENNETH T | Owner ID: | 74831 |
| Mailing Address: | LAURA A HOUCK 1424 BONNIE VIEW ACRES RD OAK HARBOR, WA 98277-8440 | % Ownership: | 100.0000000000% |
| | | Exemptions: | |
Taxes and Assessment Details
Values
| (+) Improvement Homesite Value: | + | $0 | |
| (+) Improvement Non-Homesite Value: | + | $561,155 | |
| (+) Land Homesite Value: | + | $0 | |
| (+) Land Non-Homesite Value: | + | $525,000 | |
| (+) Curr Use (HS): | + | $0 | $0 |
| (+) Curr Use (NHS): | + | $0 | $0 |
| | | -------------------------- | |
| (=) Market Value: | = | $1,086,155 | |
| (–) Productivity Loss: | – | $0 | |
| | | -------------------------- | |
| (=) Subtotal: | = | $1,086,155 | |
| (+) Senior Appraised Value: | + | $0 | |
| (+) Non-Senior Appraised Value: | + | $1,086,155 | |
| | | -------------------------- | |
| (=) Total Appraised Value: | = | $1,086,155 | |
| (–) Senior Exemption Loss: | – | $0 | |
| (–) Exemption Loss: | – | $0 | |
| | | -------------------------- | |
| (=) Taxable Value: | = | $1,086,155 | |
Taxing Jurisdiction
| Owner: | HOUCK, KENNETH T | | |
| % Ownership: | 100.0000000000% | | |
| Total Value: | $1,086,155 | | |
| Tax Area: | 110 - APPRAISER-OH Schl Dist, outside OH, improved & 1 acre or less |
| CF | Conservation Futures | 0.0316035091 | $1,086,155 | $1,086,155 | $34.33 | | |
| CEM1 | Cemetery #1 | 0.0040320932 | $1,086,155 | $1,086,155 | $4.38 | | |
| FIRE2 | Fire & Rescue Dist #2 N Whidbey GEN | 0.5475949600 | $1,086,155 | $1,086,155 | $594.77 | | |
| HOBOND | Hospital BOND | 0.1910887512 | $1,086,155 | $1,086,155 | $207.55 | | |
| HOGEN | Hospital GEN | 0.3902502903 | $1,086,155 | $1,086,155 | $423.87 | | |
| CE | County Current Expense | 0.3708482477 | $1,086,155 | $1,086,155 | $402.80 | | |
| CR | County Roads | 0.4584763726 | $1,086,155 | $1,086,155 | $497.98 | | |
| ISLANDEMS | Hospital GEN (EMS) | 0.5000000000 | $1,086,155 | $1,086,155 | $543.08 | | |
| LIB | Library Sno-Isle GEN | 0.3153421757 | $1,086,155 | $1,086,155 | $342.51 | | |
| NWHIDPRMT | P & R N Whidbey GEN | 0.2004466701 | $1,086,155 | $1,086,155 | $217.72 | | |
| SCH201MO | School 201 Enrichment | 1.8559231640 | $1,086,155 | $1,086,155 | $2,015.82 | | |
| ST | State School | 1.3035497053 | $1,086,155 | $1,086,155 | $1,415.86 | | |
| ST2 | State School Part 2 | 0.8169543533 | $1,086,155 | $1,086,155 | $887.34 | | |
| | Total Tax Rate: | 6.9861102925 | | | | | |
| | | | | Taxes w/Current Exemptions: | $7,588.01 | | |
| | | | | Taxes w/o Exemptions: | $7,588.01 | | |
Improvement / Building
| Improvement #1: | RESIDENTIAL | State Code: | Y | 3272.0 sqft | Value: | $561,155 |
| Bathrooms: | 3 | Bedrooms: | 3 | | Ceiling: | DRY WALL SPRAYED | Cooling: | HEAT PUMP/CONV/V | | Exterior Wall/Cover: | PLY/HARDBOARD T-111 | Floor Covering: | HARDWOOD 100% | | Floor Structure: | WOOD W/SUBFLOOR | Foundation: | CONCRETE | | Interior Finish: | DRYWALL PAINT | Plumbing Fixture Cnt: | 12 | | Roof Slope: | 5" IN 12" | Roof Structure/Cover: | CJ ASPHALT |
|
| | Type | Description | Class CD | Sub Class CD | Year Built | Area |
| | BAS | BASE/MAIN FLOOR | 4 | 0 | 1983 | 2352.0 |
| | OP2 | OPEN PORCH W/STEPS | 4 | 0 | 1983 | 572.0 |
| | OP3 | OPEN PORCH W/ROOF | 4 | 0 | 1983 | 264.0 |
| | AGR | ATTACHED GARAGE | 4 | 0 | 1983 | 816.0 |
| | UPS | UPPER STORY | 4 | 0 | 1983 | 920.0 |
Sketch
Property Image
Land
| 1 | HB | HIGH BLUFF | 0.6100 | 26571.60 | 82.00 | 0.00 | 1.00 | $525,000 | $0 |
Roll Value History
| 2026 | N/A | N/A | N/A | N/A | N/A |
| 2025 | $561,155 | $525,000 | $0 | $1,086,155 | $1,086,155 |
| 2024 | $568,235 | $500,000 | $0 | $1,068,235 | $1,068,235 |
| 2023 | $539,928 | $500,000 | $0 | $1,039,928 | $1,039,928 |
| 2022 | $495,246 | $400,000 | $0 | $895,246 | $895,246 |
| 2021 | $436,133 | $300,000 | $0 | $736,133 | $736,133 |
| 2020 | $426,482 | $300,000 | $0 | $726,482 | $726,482 |
| 2019 | $343,048 | $350,000 | $0 | $693,048 | $693,048 |
| 2018 | $344,103 | $250,000 | $0 | $594,103 | $594,103 |
| 2017 | $271,883 | $250,000 | $0 | $521,883 | $521,883 |
| 2016 | $275,658 | $250,000 | $0 | $525,658 | $525,658 |
| 2015 | $279,434 | $250,000 | $0 | $529,434 | $529,434 |
| 2014 | $283,212 | $250,000 | $0 | $533,212 | $533,212 |
| 2013 | $286,988 | $211,623 | $0 | $498,611 | $498,611 |
| 2012 | $290,764 | $211,623 | $0 | $502,387 | $502,387 |
| 2011 | $296,087 | $211,623 | $0 | $507,710 | $507,710 |
| 2010 | $308,384 | $211,623 | $0 | $520,007 | $520,007 |
| 2009 | $321,669 | $264,529 | $0 | $586,198 | $586,198 |
| 2008 | $323,379 | $301,562 | $0 | $624,941 | $624,941 |
| 2007 | $327,204 | $301,562 | $0 | $628,766 | $628,766 |
Deed and Sales History
| 1 | 01/19/2005 | WD | Warranty Deed | ANDERSON, ROBERT P | HOUCK, KENNETH T | | | $400,000.00 | 50420 | 4124694 |
| 2 | 01/19/2005 | WD | Warranty Deed | ANDERSON, ROBERT P | ANDERSON, ROBERT P | | | $0.00 | 50356 | 4124362 |
| 3 | 10/01/1995 | WD | Warranty Deed | JOHNSON, ROLFE S | ANDERSON, ROBERT P | | | $300,000.00 | 53637 | 95016691 |
| 4 | 02/01/1993 | QCD | Quit Claim Deed | JOHNSON, ROLFE S | JOHNSON, ROLFE S | | | $0.00 | 30475 | 93002575 |
| 5 | 01/01/1993 | QCD | Quit Claim Deed | JOHNSON, ROLFE S | JOHNSON, ROLFE S | | | $0.00 | 30733 | 93003812 |
| 6 | 06/01/1982 | WD | Warranty Deed | MARKHAM, GERALD D | JOHNSON, ROLFE S | | | $48,000.00 | 21453 | 397466 |
| 7 | 01/01/1900 | OTHER | Other - Misc. Documents | Unknown | MARKHAM, GERALD D | | | $0.00 | 0 | 0 |
Payout Agreement
| No payout information available.. |