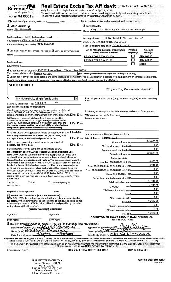
Property
Account |
| Property ID: | 196852 | Abbreviated Legal Description: | BOWERS ADD LOT 2 |
| Geographic ID: | S6150-00-00002-0 | Agent Code: | |
| Type: | Real | | |
| Tax Area: | 100 - APPRAISER-OH Schl Dist, in OH | Land Use Code | 11 |
| Open Space: | N | DFL | N |
| Historic Property: | N | Remodel Property: | N |
| Multi-Family Redevelopment: | N | | |
| Township: | | Section: | |
| Range: | |
Location |
| Address: | 446 SE ELY ST OAK HARBOR, WA 98277 | Mapsco: | |
| Neighborhood: | Cycle 1 | Map ID: | 88 |
| Neighborhood CD: | 1 |
Owner |
| Name: | ROTH, MARISSA JACQUELINE | Owner ID: | 308919 |
| Mailing Address: | 446 SE ELY ST OAK HARBOR, WA 98277 | % Ownership: | 100.0000000000% |
| | | Exemptions: | |
Taxes and Assessment Details
Values
| (+) Improvement Homesite Value: | + | $165,468 | |
| (+) Improvement Non-Homesite Value: | + | $0 | |
| (+) Land Homesite Value: | + | $180,000 | |
| (+) Land Non-Homesite Value: | + | $0 | |
| (+) Curr Use (HS): | + | $0 | $0 |
| (+) Curr Use (NHS): | + | $0 | $0 |
| | | -------------------------- | |
| (=) Market Value: | = | $345,468 | |
| (–) Productivity Loss: | – | $0 | |
| | | -------------------------- | |
| (=) Subtotal: | = | $345,468 | |
| (+) Senior Appraised Value: | + | $0 | |
| (+) Non-Senior Appraised Value: | + | $345,468 | |
| | | -------------------------- | |
| (=) Total Appraised Value: | = | $345,468 | |
| (–) Senior Exemption Loss: | – | $0 | |
| (–) Exemption Loss: | – | $0 | |
| | | -------------------------- | |
| (=) Taxable Value: | = | $345,468 | |
Taxing Jurisdiction
| Owner: | ROTH, MARISSA JACQUELINE | | |
| % Ownership: | 100.0000000000% | | |
| Total Value: | $345,468 | | |
| Tax Area: | 100 - APPRAISER-OH Schl Dist, in OH |
| CF | Conservation Futures | 0.0316035091 | $345,468 | $345,468 | $10.92 | | |
| CEM1 | Cemetery #1 | 0.0040320932 | $345,468 | $345,468 | $1.39 | | |
| COH | City of Oak Harbor | 2.3001546061 | $345,468 | $345,468 | $794.63 | | |
| OAKBOND | City of Oak Harbor BOND | 0.1926904192 | $345,468 | $345,468 | $66.57 | | |
| HOBOND | Hospital BOND | 0.1910887512 | $345,468 | $345,468 | $66.02 | | |
| HOGEN | Hospital GEN | 0.3902502903 | $345,468 | $345,468 | $134.82 | | |
| CE | County Current Expense | 0.3708482477 | $345,468 | $345,468 | $128.12 | | |
| ISLANDEMS | Hospital GEN (EMS) | 0.5000000000 | $345,468 | $345,468 | $172.73 | | |
| LIB | Library Sno-Isle GEN | 0.3153421757 | $345,468 | $345,468 | $108.94 | | |
| NWHIDPRMT | P & R N Whidbey GEN | 0.2004466701 | $345,468 | $345,468 | $69.25 | | |
| SCH201MO | School 201 Enrichment | 1.8559231640 | $345,468 | $345,468 | $641.16 | | |
| ST | State School | 1.3035497053 | $345,468 | $345,468 | $450.33 | | |
| ST2 | State School Part 2 | 0.8169543533 | $345,468 | $345,468 | $282.23 | | |
| | Total Tax Rate: | 8.4728839852 | | | | | |
| | | | | Taxes w/Current Exemptions: | $2,927.11 | | |
| | | | | Taxes w/o Exemptions: | $2,927.11 | | |
Improvement / Building
| Improvement #1: | RESIDENTIAL | State Code: | Y | 946.0 sqft | Value: | $165,468 |
| Bathrooms: | 1 | Bedrooms: | 2 | | Ceiling: | DRYWALL PAINTED | Exterior Wall/Cover: | WOOD SIDING | | Floor Covering: | CARPET/VINYL 80-20 | Floor Structure: | WOOD W/SUBFLOOR | | Foundation: | CONCRETE | Heating: | FHA GAS | | Interior Finish: | DRYWALL PAINT | Plumbing Fixture Cnt: | 6 | | Roof Slope: | 5" IN 12" | Roof Structure/Cover: | CJ ASPHALT |
|
| | Type | Description | Class CD | Sub Class CD | Year Built | Area |
| | BAS | BASE/MAIN FLOOR | 3 | 0 | 1954 | 946.0 |
| | AGR | ATTACHED GARAGE | 3 | 0 | 1954 | 110.0 |
| | OWP | OPEN WOOD PORCH W/STEPS | 3 | 0 | 1954 | 24.0 |
| | OWC | OPEN WOOD PORCH W/STEPS/ROOF/C | 3 | 0 | 1954 | 64.0 |
Sketch
Property Image
Land
| 1 | HS | HOMESITE | 0.1600 | 6969.60 | 0.00 | 0.00 | 1.00 | $180,000 | $0 |
Roll Value History
| 2026 | N/A | N/A | N/A | N/A | N/A |
| 2025 | $165,468 | $180,000 | $0 | $345,468 | $345,468 |
| 2024 | $167,504 | $170,000 | $0 | $337,504 | $337,504 |
| 2023 | $163,575 | $170,000 | $0 | $333,575 | $333,575 |
| 2022 | $149,940 | $160,000 | $0 | $309,940 | $309,940 |
| 2021 | $111,114 | $125,000 | $0 | $236,114 | $236,114 |
| 2020 | $108,214 | $100,000 | $0 | $208,214 | $52,103 |
| 2019 | $75,620 | $140,000 | $0 | $215,620 | $52,103 |
| 2018 | $75,869 | $125,000 | $0 | $200,869 | $52,103 |
| 2017 | $65,379 | $110,000 | $0 | $175,379 | $52,103 |
| 2016 | $66,356 | $90,000 | $0 | $156,356 | $52,103 |
| 2015 | $67,331 | $70,000 | $0 | $137,331 | $52,103 |
| 2014 | $68,306 | $55,000 | $0 | $123,306 | $49,322 |
| 2013 | $69,283 | $55,000 | $0 | $124,283 | $49,713 |
| 2012 | $70,258 | $60,000 | $0 | $130,258 | $52,103 |
| 2011 | $72,334 | $50,000 | $0 | $122,334 | $72,334 |
| 2010 | $76,338 | $50,000 | $0 | $126,338 | $76,338 |
| 2009 | $79,799 | $60,000 | $0 | $139,799 | $89,799 |
| 2008 | $81,099 | $71,918 | $0 | $153,017 | $61,207 |
| 2007 | $81,764 | $72,508 | $0 | $154,272 | $61,709 |
Deed and Sales History
| 1 | 06/07/2023 | WD | Warranty Deed | KNOX, PATRICA MAE | ROTH, MARISSA JACQUELINE | | | $392,000.00 | 56956 | 4560865 |
| 2 | 01/04/2022 | WD | Warranty Deed | BRECKENRIDGE PROPERTY FUND 2016 LLC | KNOX, PATRICA MAE | | | $380,000.00 | 51597 | 4537465 |
| 3 | 03/31/2021 | BARGSLD | Bargain And Sale Deed | FANNING, DONNA M | BRECKENRIDGE PROPERTY FUND 2016 LLC | | | $203,252.00 | 47648 | 4515580 |
| 4 | 12/13/2012 | WD | Warranty Deed | FANNING JR, ALBERT H | FANNING, DONNA M | | | $0.00 | 9802 | 4329521 |
| 5 | 02/01/1993 | QCD | Quit Claim Deed | FANNING, WILLIAM D | FANNING, ALBERT H | | | $0.00 | 30663 | 93003471 |
| 6 | 09/01/1992 | PRD | Personal Representatives Deed | FANNING, MARION | FANNING, WILLIAM D | | | $0.00 | 24105 | 92019959 |
| 7 | 07/01/1991 | PRD | Personal Representatives Deed | FANNING, ALBERT H | FANNING, MARION | | | $0.00 | 12634 | 91011172 |
| 8 | 01/01/1900 | OTHER | Other - Misc. Documents | Unknown | FANNING, ALBERT H | | | $0.00 | 0 | 0 |
Payout Agreement
| No payout information available.. |