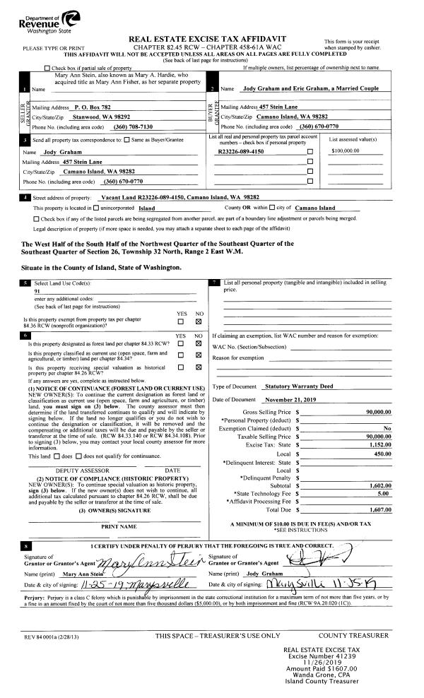
Property
Account |
| Property ID: | 197147 | Abbreviated Legal Description: | BRADSHAWS LOTS 27 & 28 TGW EZ AF#60478 AFF#410282 COMB 6/86 |
| Geographic ID: | S6155-00-00028-0 | Agent Code: | |
| Type: | Real | | |
| Tax Area: | 710 - APPRAISER-S Whid Schl Dist, outside Langley, improved & 1 acre or less | Land Use Code | 11 |
| Open Space: | N | DFL | N |
| Historic Property: | N | Remodel Property: | N |
| Multi-Family Redevelopment: | N | | |
| Township: | | Section: | |
| Range: | |
Location |
| Address: | 5005 RALPH RD FREELAND, WA 98249 | Mapsco: | |
| Neighborhood: | Cycle 3 | Map ID: | 288 |
| Neighborhood CD: | 3 |
Owner |
| Name: | DONHAM, BRUCE JOHN | Owner ID: | 291855 |
| Mailing Address: | NANCY LYNN DONHAM 6911 137 DR NE LAKE STEVENS, WA 98258 | % Ownership: | 100.0000000000% |
| | | Exemptions: | |
Taxes and Assessment Details
Values
| (+) Improvement Homesite Value: | + | $0 | |
| (+) Improvement Non-Homesite Value: | + | $559,501 | |
| (+) Land Homesite Value: | + | $0 | |
| (+) Land Non-Homesite Value: | + | $700,000 | |
| (+) Curr Use (HS): | + | $0 | $0 |
| (+) Curr Use (NHS): | + | $0 | $0 |
| | | -------------------------- | |
| (=) Market Value: | = | $1,259,501 | |
| (–) Productivity Loss: | – | $0 | |
| | | -------------------------- | |
| (=) Subtotal: | = | $1,259,501 | |
| (+) Senior Appraised Value: | + | $0 | |
| (+) Non-Senior Appraised Value: | + | $1,259,501 | |
| | | -------------------------- | |
| (=) Total Appraised Value: | = | $1,259,501 | |
| (–) Senior Exemption Loss: | – | $0 | |
| (–) Exemption Loss: | – | $0 | |
| | | -------------------------- | |
| (=) Taxable Value: | = | $1,259,501 | |
Taxing Jurisdiction
| Owner: | DONHAM, BRUCE JOHN | | |
| % Ownership: | 100.0000000000% | | |
| Total Value: | $1,259,501 | | |
| Tax Area: | 710 - APPRAISER-S Whid Schl Dist, outside Langley, improved & 1 acre or less |
| CF | Conservation Futures | 0.0316035091 | $1,259,501 | $1,259,501 | $39.80 | | |
| FIRE3 | Fire & Rescue Dist #3 S Whidbey GEN | 1.2004855531 | $1,259,501 | $1,259,501 | $1,512.01 | | |
| HOBOND | Hospital BOND | 0.1910887512 | $1,259,501 | $1,259,501 | $240.68 | | |
| HOGEN | Hospital GEN | 0.3902502903 | $1,259,501 | $1,259,501 | $491.52 | | |
| CE | County Current Expense | 0.3708482477 | $1,259,501 | $1,259,501 | $467.08 | | |
| CR | County Roads | 0.4584763726 | $1,259,501 | $1,259,501 | $577.45 | | |
| ISLANDEMS | Hospital GEN (EMS) | 0.5000000000 | $1,259,501 | $1,259,501 | $629.75 | | |
| LIB | Library Sno-Isle GEN | 0.3153421757 | $1,259,501 | $1,259,501 | $397.17 | | |
| PORTWHID | Port of S Whidbey GEN | 0.1094540357 | $1,259,501 | $1,259,501 | $137.86 | | |
| SCH206BOND | School 206 BOND | 0.3161759235 | $1,259,501 | $1,259,501 | $398.22 | | |
| SCH206MO | School 206 Enrichment | 0.4547169547 | $1,259,501 | $1,259,501 | $572.72 | | |
| ST | State School | 1.3035497053 | $1,259,501 | $1,259,501 | $1,641.82 | | |
| ST2 | State School Part 2 | 0.8169543533 | $1,259,501 | $1,259,501 | $1,028.95 | | |
| SWHIDPRBD | P & R S Whidbey BOND | 0.0152817568 | $1,259,501 | $1,259,501 | $19.25 | | |
| SWHIDPRBD2 | P & R S Whidbey BOND2 | 0.0138911264 | $1,259,501 | $1,259,501 | $17.50 | | |
| SWHIDPRMT | P & R S Whidbey GEN | 0.2053334452 | $1,259,501 | $1,259,501 | $258.62 | | |
| | Total Tax Rate: | 6.6934522006 | | | | | |
| | | | | Taxes w/Current Exemptions: | $8,430.40 | | |
| | | | | Taxes w/o Exemptions: | $8,430.40 | | |
Improvement / Building
| Improvement #1: | RESIDENTIAL | State Code: | Y | 2203.5 sqft | Value: | $559,501 |
| Bathrooms: | 3.5 | Bedrooms: | 2 | | Ceiling: | DRYWALL PAINTED | Exterior Wall/Cover: | WOOD SIDING | | Floor Covering: | HARDWOOD/CARP 60-40 | Floor Structure: | WOOD W/SUBFLOOR | | Foundation: | CONCRETE | Heating: | FHA GAS | | Interior Finish: | DRYWALL PAINT | Plumbing Fixture Cnt: | 18 | | Roof Slope: | 8" IN 12" | Roof Structure/Cover: | CJ ASPHALT |
|
| | Type | Description | Class CD | Sub Class CD | Year Built | Area |
| | BAS | BASE/MAIN FLOOR | 5 | 0 | 1988 | 1273.5 |
| | BIG | BUILT IN GARAGE | 5 | 0 | 1988 | 576.0 |
| | UPS | UPPER STORY | 5 | 0 | 1988 | 444.0 |
| | OWP | OPEN WOOD PORCH W/STEPS | 5 | 0 | 1988 | 441.0 |
| | OWP | OPEN WOOD PORCH W/STEPS | 5 | 0 | 1988 | 81.0 |
| | OWP | OPEN WOOD PORCH W/STEPS | 5 | 0 | 1988 | 284.0 |
| | OWP | OPEN WOOD PORCH W/STEPS | 5 | 0 | 1988 | 313.0 |
| | DWN | DOWNSTAIRS LIVING AREA | 5 | 0 | 1988 | 486.0 |
Sketch
Property Image
Land
| 1 | MB | MEDIUM BANK | 0.0000 | 0.00 | 160.00 | 0.00 | 1.00 | $700,000 | $0 |
Roll Value History
| 2026 | N/A | N/A | N/A | N/A | N/A |
| 2025 | $559,501 | $700,000 | $0 | $1,259,501 | $1,259,501 |
| 2024 | $566,386 | $675,000 | $0 | $1,241,386 | $1,241,386 |
| 2023 | $573,271 | $650,000 | $0 | $1,223,271 | $1,223,271 |
| 2022 | $525,340 | $650,000 | $0 | $1,175,340 | $1,175,340 |
| 2021 | $462,239 | $550,000 | $0 | $1,012,239 | $1,012,239 |
| 2020 | $448,382 | $550,000 | $0 | $998,382 | $998,382 |
| 2019 | $319,565 | $600,000 | $0 | $919,565 | $919,565 |
| 2018 | $320,550 | $500,000 | $0 | $820,550 | $820,550 |
| 2017 | $322,215 | $500,000 | $0 | $822,215 | $822,215 |
| 2016 | $326,144 | $500,000 | $0 | $826,144 | $826,144 |
| 2015 | $330,073 | $500,000 | $0 | $830,073 | $830,073 |
| 2014 | $334,002 | $500,000 | $0 | $834,002 | $834,002 |
| 2013 | $441,443 | $500,000 | $0 | $941,443 | $941,443 |
| 2012 | $446,528 | $566,685 | $0 | $1,013,213 | $1,013,213 |
| 2011 | $451,614 | $566,685 | $0 | $1,018,299 | $1,018,299 |
| 2010 | $463,390 | $566,685 | $0 | $1,030,075 | $1,030,075 |
| 2009 | $482,565 | $708,357 | $0 | $1,190,922 | $1,190,922 |
| 2008 | $487,741 | $708,357 | $0 | $1,196,098 | $1,196,098 |
| 2007 | $271,903 | $687,106 | $0 | $959,009 | $959,009 |
Deed and Sales History
| 1 | 09/09/2019 | WD | Warranty Deed | RANDOLPH TRUSTEE, ROBERT K | DONHAM, BRUCE JOHN | | | $1,000,000.00 | 40369 | 4471812 |
| 2 | 02/28/2013 | WD | Warranty Deed | RANDOLPH, ROBERT K | RANDOLPH TRUSTEE, ROBERT K | | | $0.00 | 10564 | 4334870 |
| 3 | 06/01/1986 | OTHER | Other - Misc. Documents | RANDOLPH, ROBERT K | RANDOLPH, ROBERT K | | | $0.00 | 61680 | 86002185 |
| 4 | 04/01/1984 | WD | Warranty Deed | SHEPARD, H M | RANDOLPH, ROBERT K | | | $80,000.00 | 41258 | 424177 |
| 5 | 01/01/1900 | OTHER | Other - Misc. Documents | Unknown | SHEPARD, H M | | | $0.00 | 0 | 0 |
Payout Agreement
| No payout information available.. |