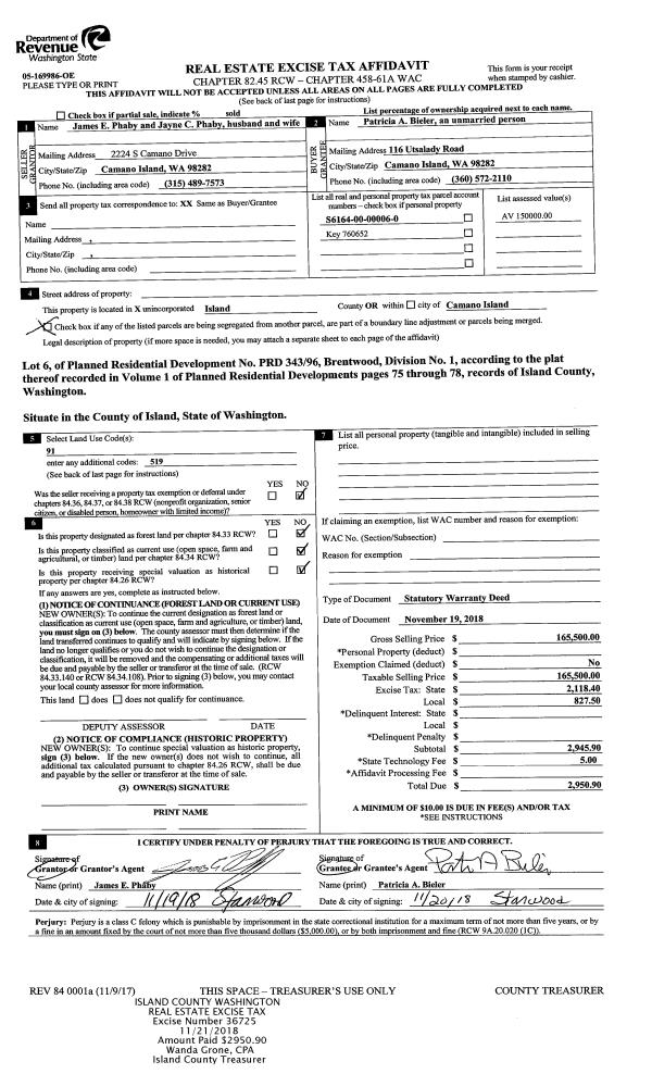
Property
Account |
| Property ID: | 197156 | Abbreviated Legal Description: | BRADSHAWS LOT 29 TGW & SUB EZS |
| Geographic ID: | S6155-00-00029-0 | Agent Code: | |
| Type: | Real | | |
| Tax Area: | 710 - APPRAISER-S Whid Schl Dist, outside Langley, improved & 1 acre or less | Land Use Code | 11 |
| Open Space: | N | DFL | N |
| Historic Property: | N | Remodel Property: | N |
| Multi-Family Redevelopment: | N | | |
| Township: | | Section: | |
| Range: | |
Location |
| Address: | 5009 RALPH RD FREELAND, WA 98249 | Mapsco: | |
| Neighborhood: | Cycle 3 | Map ID: | 288 |
| Neighborhood CD: | 3 |
Owner |
| Name: | RANDLOPH TTEE, ROBERT K | Owner ID: | 293568 |
| Mailing Address: | CAROL A RANDOLPH PO BOX 873 FREELAND, WA 98249 | % Ownership: | 100.0000000000% |
| | | Exemptions: | |
Taxes and Assessment Details
Values
| (+) Improvement Homesite Value: | + | $0 | |
| (+) Improvement Non-Homesite Value: | + | $357,424 | |
| (+) Land Homesite Value: | + | $0 | |
| (+) Land Non-Homesite Value: | + | $650,000 | |
| (+) Curr Use (HS): | + | $0 | $0 |
| (+) Curr Use (NHS): | + | $0 | $0 |
| | | -------------------------- | |
| (=) Market Value: | = | $1,007,424 | |
| (–) Productivity Loss: | – | $0 | |
| | | -------------------------- | |
| (=) Subtotal: | = | $1,007,424 | |
| (+) Senior Appraised Value: | + | $0 | |
| (+) Non-Senior Appraised Value: | + | $1,007,424 | |
| | | -------------------------- | |
| (=) Total Appraised Value: | = | $1,007,424 | |
| (–) Senior Exemption Loss: | – | $0 | |
| (–) Exemption Loss: | – | $0 | |
| | | -------------------------- | |
| (=) Taxable Value: | = | $1,007,424 | |
Taxing Jurisdiction
| Owner: | RANDLOPH TTEE, ROBERT K | | |
| % Ownership: | 100.0000000000% | | |
| Total Value: | $1,007,424 | | |
| Tax Area: | 710 - APPRAISER-S Whid Schl Dist, outside Langley, improved & 1 acre or less |
| CF | Conservation Futures | 0.0316035091 | $1,007,424 | $1,007,424 | $31.84 | | |
| FIRE3 | Fire & Rescue Dist #3 S Whidbey GEN | 1.2004855531 | $1,007,424 | $1,007,424 | $1,209.40 | | |
| HOBOND | Hospital BOND | 0.1910887512 | $1,007,424 | $1,007,424 | $192.51 | | |
| HOGEN | Hospital GEN | 0.3902502903 | $1,007,424 | $1,007,424 | $393.15 | | |
| CE | County Current Expense | 0.3708482477 | $1,007,424 | $1,007,424 | $373.60 | | |
| CR | County Roads | 0.4584763726 | $1,007,424 | $1,007,424 | $461.88 | | |
| ISLANDEMS | Hospital GEN (EMS) | 0.5000000000 | $1,007,424 | $1,007,424 | $503.71 | | |
| LIB | Library Sno-Isle GEN | 0.3153421757 | $1,007,424 | $1,007,424 | $317.68 | | |
| PORTWHID | Port of S Whidbey GEN | 0.1094540357 | $1,007,424 | $1,007,424 | $110.27 | | |
| SCH206BOND | School 206 BOND | 0.3161759235 | $1,007,424 | $1,007,424 | $318.52 | | |
| SCH206MO | School 206 Enrichment | 0.4547169547 | $1,007,424 | $1,007,424 | $458.09 | | |
| ST | State School | 1.3035497053 | $1,007,424 | $1,007,424 | $1,313.23 | | |
| ST2 | State School Part 2 | 0.8169543533 | $1,007,424 | $1,007,424 | $823.02 | | |
| SWHIDPRBD | P & R S Whidbey BOND | 0.0152817568 | $1,007,424 | $1,007,424 | $15.40 | | |
| SWHIDPRBD2 | P & R S Whidbey BOND2 | 0.0138911264 | $1,007,424 | $1,007,424 | $13.99 | | |
| SWHIDPRMT | P & R S Whidbey GEN | 0.2053334452 | $1,007,424 | $1,007,424 | $206.86 | | |
| | Total Tax Rate: | 6.6934522006 | | | | | |
| | | | | Taxes w/Current Exemptions: | $6,743.15 | | |
| | | | | Taxes w/o Exemptions: | $6,743.15 | | |
Improvement / Building
| Improvement #1: | RESIDENTIAL | State Code: | Y | 2128.0 sqft | Value: | $357,424 |
| Bathrooms: | 2 | Bedrooms: | 2 | | Ceiling: | DRYWALL PAINTED | Cooling: | HEAT PUMP/CONV/V | | Exterior Wall/Cover: | CEMENT FIBER | Floor Covering: | CARPET/VINYL 20-80 | | Floor Structure: | WOOD W/SUBFLOOR | Foundation: | CONCRETE | | Interior Finish: | DRYWALL PAINT | Plumbing Fixture Cnt: | 10 | | Roof Slope: | 4" IN 12" | Roof Structure/Cover: | CJ ASPHALT |
|
| | Type | Description | Class CD | Sub Class CD | Year Built | Area |
| | BAS | BASE/MAIN FLOOR | 3 | 0 | 2017 | 900.0 |
| | UPS | UPPER STORY | 3 | 0 | 2017 | 1228.0 |
| | OWR | OPEN WOOD PORCH W/STEPS/ROOF | 3 | 0 | 2017 | 216.0 |
| | OWR | OPEN WOOD PORCH W/STEPS/ROOF | 3 | 0 | 2017 | 348.0 |
Sketch
Property Image
Land
| 1 | MB | MEDIUM BANK | 0.2223 | 9683.39 | 60.00 | 0.00 | 1.00 | $650,000 | $0 |
Roll Value History
| 2026 | N/A | N/A | N/A | N/A | N/A |
| 2025 | $357,424 | $650,000 | $0 | $1,007,424 | $1,007,424 |
| 2024 | $360,355 | $625,000 | $0 | $985,355 | $985,355 |
| 2023 | $363,285 | $600,000 | $0 | $963,285 | $963,285 |
| 2022 | $331,618 | $575,000 | $0 | $906,618 | $906,618 |
| 2021 | $290,664 | $325,000 | $0 | $615,664 | $615,664 |
| 2020 | $282,493 | $325,000 | $0 | $607,493 | $607,493 |
| 2019 | $221,463 | $375,000 | $0 | $596,463 | $596,463 |
| 2018 | $222,027 | $300,000 | $0 | $522,027 | $522,027 |
| 2017 | $96,253 | $200,000 | $0 | $296,253 | $296,253 |
| 2016 | $9,646 | $200,000 | $0 | $209,646 | $209,646 |
| 2015 | $25,000 | $200,000 | $0 | $225,000 | $225,000 |
| 2014 | $25,000 | $200,000 | $0 | $225,000 | $225,000 |
| 2013 | $24,028 | $100,000 | $0 | $124,028 | $124,028 |
| 2012 | $24,028 | $92,663 | $0 | $116,691 | $116,691 |
| 2011 | $24,028 | $92,663 | $0 | $116,691 | $116,691 |
| 2010 | $24,028 | $92,663 | $0 | $116,691 | $116,691 |
| 2009 | $24,366 | $102,958 | $0 | $127,324 | $127,324 |
| 2008 | $24,940 | $102,958 | $0 | $127,898 | $127,898 |
| 2007 | $3,401 | $109,962 | $0 | $113,363 | $113,363 |
Deed and Sales History
| 1 | 02/18/2020 | QCD | Quit Claim Deed | RANDOLPH, ROBERT K | RANDLOPH TTEE, ROBERT K | | | $0.00 | 42201 | 4481878 |
| 2 | 12/27/2018 | QCD | Quit Claim Deed | ISLAND BEACH HOUSE, LLC | RANDOLPH, ROBERT K | | | $0.00 | 37163 | 4457333 |
| 3 | 03/23/2015 | WD | Warranty Deed | RANDOLPH TRUSTEE, ROBERT K | ISLAND BEACH HOUSE, LLC | | | $0.00 | 18898 | 4375401 |
| 4 | 02/28/2013 | WD | Warranty Deed | RANDOLPH, ROBERT K | RANDOLPH TRUSTEE, ROBERT K | | | $0.00 | 10563 | 4334869 |
| 5 | 08/01/1986 | QCD | Quit Claim Deed | RANDOLPH, ROBERT K | RANDOLPH, ROBERT K | | | $0.00 | 70372 | 87002300 |
| 6 | 05/01/1986 | WD | Warranty Deed | STEELE, NORMAN W | RANDOLPH, ROBERT K | | | $16,000.00 | 61205 | 86005659 |
| 7 | 01/01/1900 | OTHER | Other - Misc. Documents | Unknown | STEELE, NORMAN W | | | $0.00 | 0 | 0 |
Payout Agreement
| No payout information available.. |